Информационная система
«Ёшкин Кот»

Скачать базу одним архивом
Скачать обновления
История создания базы
Карта сайта

Скачать Типовой проект 903-4-12 Альбом III. Электротехническая часть

Дата актуализации: 10.08.2017

Типовой проект 903-4-12

Альбом III. Электротехническая часть

Обозначение: Типовой проект 903-4-12
Обозначение англ: 903-4-12
Статус:не действует
Название рус.:Альбом III. Электротехническая часть
Дата добавления в базу:01.09.2013
Дата актуализации:05.05.2017
Оглавление:ТП 903-4-12 Содержание альбома и пояснительная записка
ТП 903-4-12 Схема электроснабжения дренажной насосной станции
ТП 903-4-12 Полная схема АВР питания дренажной насосной станции
ТП 903-4-12 Принципиальная схема управления электродвигателями дренажных насосов
ТП 903-4-12 Полная схема управления электродвигателями дренажных насосов
ТП 903-4-12 Ряды зажимов в шкафу управления и спецификация
ТП 903-4-12 Размещение электрооборудования, раскладка кабелей в дренажной насосной станции и журнал силовых и контрольных кабелей
ТП 903-4-12 Сеть освещения и заземление дренажной насосной станции
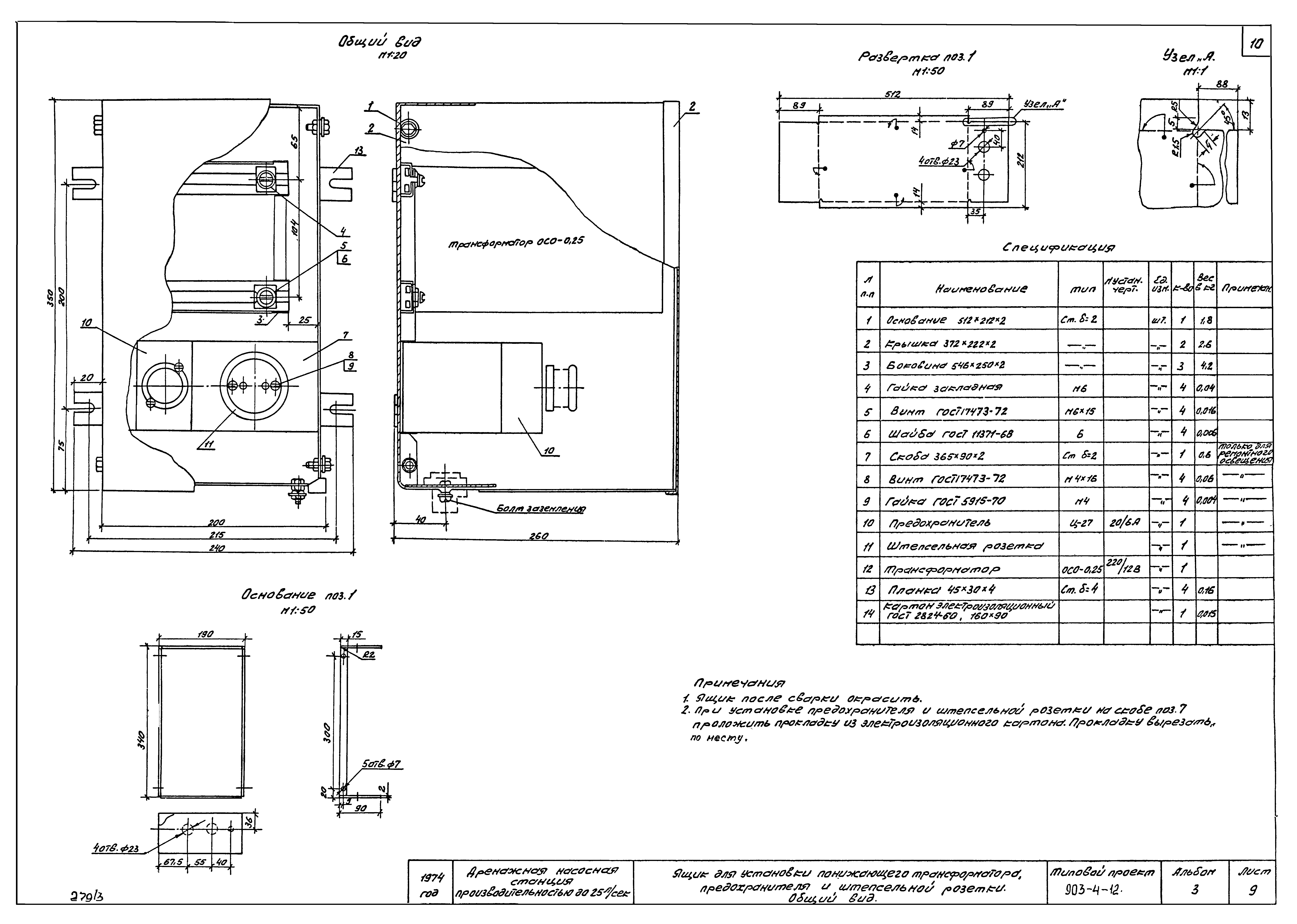
ТП 903-4-12 Ящик для установки понижающего трансформатора, предохранителя и штепсельной розетки. Общий вид
ТП 903-4-12 Ящик для установки понижающего трансформатора, предохранителя и штепсельной розетки. Детали
ТП 903-4-12 Задание заводу на шкафы ШС-2-1-67, ШС-2-2-67
Разработан: Теплоэлектропроект
Утверждён:26.10.1974 Минэнерго СССР (USSR Minenergo 221)
Расположен в:Техническая документация Строительство Справочные документы Типовые строительные конструкции, изделия и узлы Общероссийский строительный каталог Промышленные предприятия, здания и сооружения Здания и сооружения санитарно-технические Канализация Сооружения для очистки производственных сточных вод Дренажные насосные станции
Типовой проект 903-4-12Типовой проект 903-4-12Типовой проект 903-4-12Типовой проект 903-4-12Типовой проект 903-4-12Типовой проект 903-4-12Типовой проект 903-4-12Типовой проект 903-4-12Типовой проект 903-4-12Типовой проект 903-4-12Типовой проект 903-4-12

© 2013 Ёшкин Кот :-) Карта сайта