| ||||||||||||||||||||||||||||
Скачать Типовой проект 904-1-39 Альбом IX. Нестандартизированное оборудованиеДата актуализации: 10.08.2017
|
| Обозначение: | Типовой проект 904-1-39 |
| Обозначение англ: | 904-1-39 |
| Статус: | не действует |
| Название рус.: | Альбом IX. Нестандартизированное оборудование |
| Дата добавления в базу: | 01.09.2013 |
| Дата актуализации: | 05.05.2017 |
| Дата окончания срока действия: | 01.04.1985 |
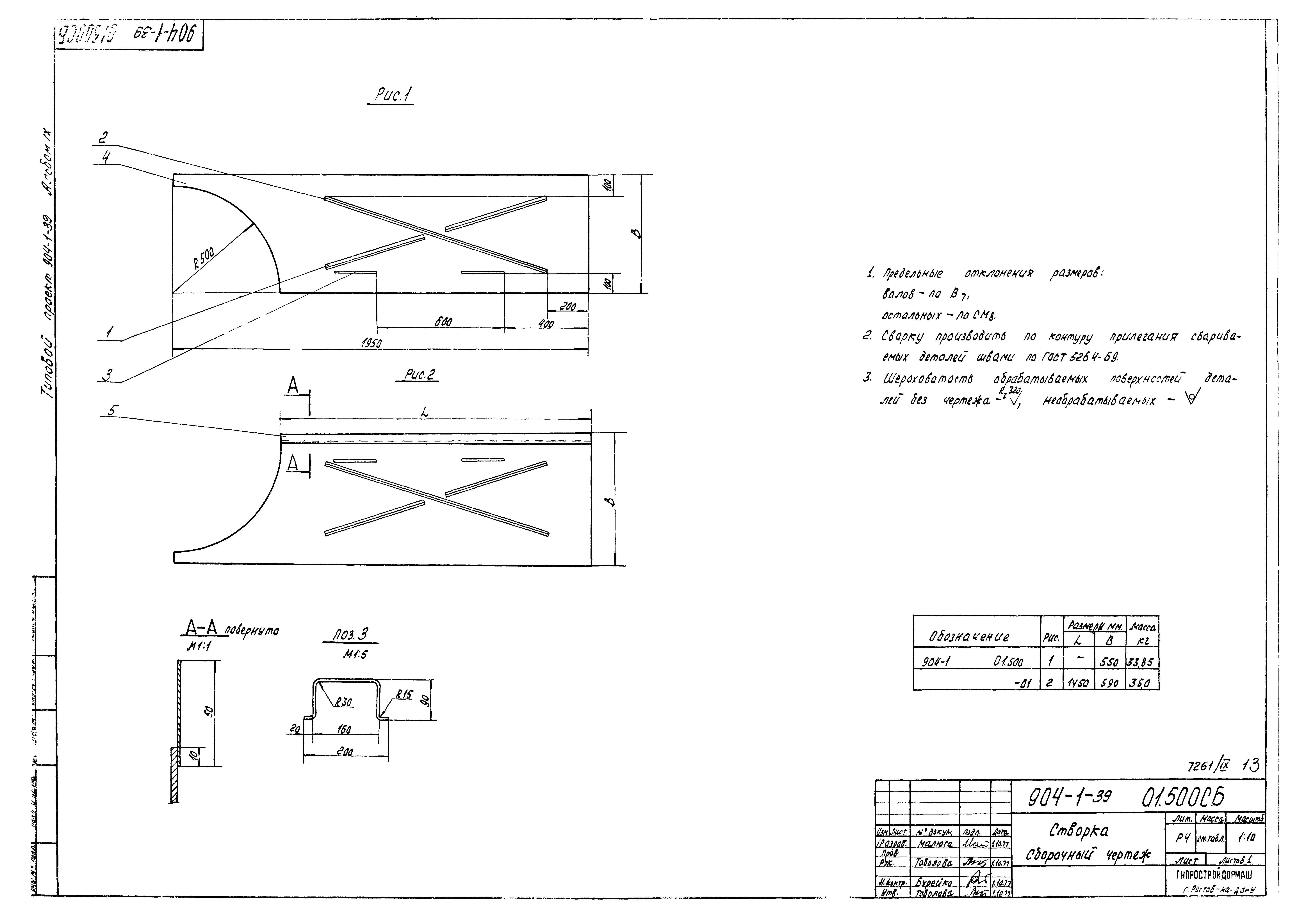
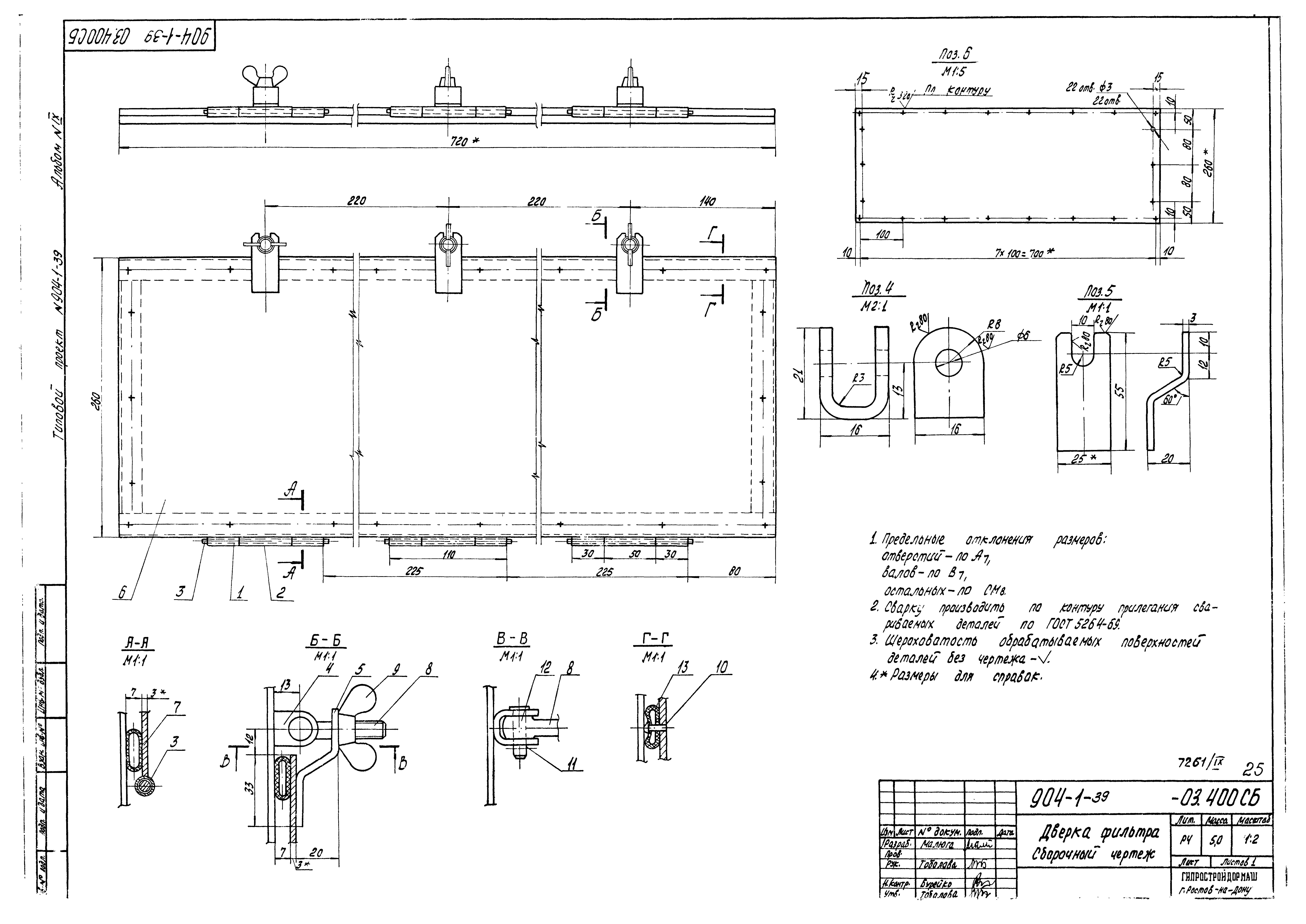
| Оглавление: | ТП 904-1-39 Обложка ТП 904-1-39 Титульный лист ТП 904-1-39-ТХ Содержание ТП 904-1-39-01.000 Бак продувочный ТП 904-1-39-01.000 ТУ Бак продувочный. Технические условия ТП 904-1-39-01.100 Крышка ТП 904-1-39-01.100 СБ Крышка. Сборочный чертеж ТП 904-1-39-01.000 СБ Бак продувочный. Сборочный чертеж ТП 904-1-39-01.200 Корпус ТП 904-1-39-01.200 СБ Корпус. Сборочный чертеж ТП 904-1-39-01.201 Днище ТП 904-1-39-01.203 Перегородка ТП 904-1-39-01.300 Корпус ТП 904-1-39-01.300 СБ Корпус. Сборочный чертеж ТП 904-1-39-01.400 Отвод ТП 904-1-39-01.400 СБ Отвод. Сборочный чертеж ТП 904-1-39-01.500 Створка ТП 904-1-39-01.700 СБ Патрубок. Сборочный чертеж ТП 904-1-39-01.700 Патрубок ТП 904-1-39-01.500 СБ Створка. Сборочный чертеж ТП 904-1-39-02.000 Глушитель на выхлопе ТП 904-1-39-02.000 ТУ Глушитель на выхлопе. Технические условия ТП 904-1-39-02.000 СБ Глушитель на выхлопе. Сборочный чертеж ТП 904-1-39-02.100 Патрубок ТП 904-1-39-02.100 СБ Патрубок. Сборочный чертеж ТП 904-1-39-02.102 Обечайка ТП 904-1-39-02.200 Секция ТП 904-1-39-02.200 СБ Секция. Сборочный чертеж ТП 904-1-39-02.204 Фланец ТП 904-1-39-02.300 Секция ТП 904-1-39-02.300 СБ Секция. Сборочный чертеж ТП 904-1-39-02.301 Дно ТП 904-1-39-03.000 Фильтр воздушный ТП 904-1-39-03.000 ТУ Фильтр воздушный. Технические условия ТП 904-1-39-03.100 Рамка ТП 904-1-39-03.200 Нижняя часть корпуса ТП 904-1-39-03.000 СБ Фильтр воздушный. Сборочный чертеж ТП 904-1-39-03.100 СБ Рамка. Сборочный чертеж ТП 904-1-39-03.200 СБ Нижняя часть корпуса. Сборочный чертеж ТП 904-1-39-03.300 Верхняя часть корпуса ТП 904-1-39-03.400 Дверка фильтра ТП 904-1-39-03.300 СБ Верхняя часть корпуса. Сборочный чертеж ТП 904-1-39-03.400 СБ Дверка фильтра. Сборочный чертеж ТП 904-1-39-04.000 Площадка для обслуживания воздухосборника ТП 904-1-39-04.000 СБ Площадка для обслуживания воздухосборника. Сборочный чертеж ТП 904-1-39-05.000 Бак расходный для масла V=50 л ТП 904-1-39-05.100 Корпус ТП 904-1-39-05.200 Колпачок ТП 904-1-39-05.000 ТУ Бак расходный для масла V=50 л. Технические условия ТП 904-1-39-05.000 СБ Бак расходный для масла V=50 л. Сборочный чертеж ТП 904-1-39-05.100 СБ Корпус. Сборочный чертеж ТП 904-1-39-05.300 Крышка ТП 904-1-39-05.300 СБ Крышка. Сборочный чертеж ТП 904-1-39-05.200 СБ Колпачок. Сборочный чертеж ТП 904-1-39-06.000 Стол для отстоя ячеек фильтра ТП 904-1-39-06.200 Металлоконструкция ТП 904-1-39-06.100 Бункер ТП 904-1-39-06.100 СБ Бункер. Сборочный чертеж ТП 904-1-39-06.000 СБ Стол для отстоя ячеек фильтра. Сборочный чертеж ТП 904-1-39-06.200 СБ Металлоконструкция. Сборочный чертеж ТП 904-1-39-06.101 Боковина ТП 904-1-39-06.102 Боковина ТП 904-1-39-06.103 Патрубок ТП 904-1-39-07.000 Ванна для промывки ячеек фильтров ТП 904-1-39-07.000 ТУ Ванна для промывки ячеек фильтров. Технические условия ТП 904-1-39-07.000 СБ Ванна для промывки ячеек фильтров. Сборочный чертеж ТП 904-1-39-07.100 Металлоконструкция ТП 904-1-39-07.200 Поддон ТП 904-1-39-07.200 СБ Поддон. Сборочный чертеж ТП 904-1-39-07.100 СБ Металлоконструкция. Сборочный чертеж ТП 904-1-39-07.202 Лапка ТП 904-1-39-07.300 Крышка ТП 904-1-39-07.300 СБ Крышка. Сборочный чертеж ТП 904-1-39-08.000 Опора под маслобаки ТП 904-1-39-08.000 СБ Опора под маслобаки. Сборочный чертеж ТП 904-1-39-08.100 Металлоконструкция ТП 904-1-39-08.100 СБ Металлоконструкция. Сборочный чертеж ТП 904-1-39-09.000 Обратный клапан ТП 904-1-39-09.000 СБ Обратный клапан. Сборочный чертеж ТП 904-1-39-09.001 Корпус ТП 904-1-39-10.000 Фильтр воздушный ТП 904-1-39-10.000 ТУ Фильтр воздушный. Технические условия ТП 904-1-39-10.100 Верхняя часть корпуса ТП 904-1-39-10.100 СБ Верхняя часть корпуса. Сборочный чертеж ТП 904-1-39-10.000 СБ Фильтр воздушный. Сборочный чертеж ТП 904-1-39-10.200 Дверка ТП 904-1-39-10.200 СБ Дверка. Сборочный чертеж ТП 904-1-39-10.201 Втулка ТП 904-1-39-10.300 Нижняя часть корпуса ТП 904-1-39-10.311 Ребро ТП 904-1-39-10.303 Боковина ТП 904-1-39-10.300 СБ Нижняя часть корпуса. Сборочный чертеж ТП 904-1-39-10.400 Рамка ТП 904-1-39-10.400 СБ Рамка. Сборочный чертеж ТП 904-1-39-10.500 Щеколда ТП 904-1-39-10.500 СБ Щеколда. Сборочный чертеж ТП 904-1-39-11.000 Установка для очистки трасс сжатого воздуха ТП 904-1-39-11.001 Коллектор ТП 904-1-39-11.000 ТУ Установка для очистки трасс сжатого воздуха. Технические условия ТП 904-1-39-11.000 ТО Установка для очистки трасс сжатого воздуха. Техническое описание и инструкция по эксплуатации ТП 904-1-39-11.003 Гайка накладная ТП 904-1-39-11.000 СБ Установка для очистки троса сжатого воздуха. Сборочный чертеж ТП 904-1-39-11.002 Штуцер ТП 904-1-39-11.100 Форсунка ТП 904-1-39-11.100 СБ Форсунка. Сборочный чертеж ТП 904-1-39-11.101 Гайка-сопло ТП 904-1-39-12.000 Узел крепления трубопроводов ø219х6 и ø57х3.5 ТП 904-1-39-12.000 СБ Узел крепления трубопроводов ø219х6 и ø57х3.6. Сборочный чертеж ТП 904-1-39-12.001 Косынка ТП 904-1-39-13.000 Узел крепления трубопроводов ø219х6 и ø57х3.5 ТП 904-1-39-13.000 СБ Узел крепления трубопроводов ø219х6 и ø57х3.5. Сборочный чертеж ТП 904-1-39-13.001 Косынка ТП 904-1-39-14.000 Маслосборник ТП 904-1-39-14.000 СБ Маслосборник. Сборочный чертеж ТП 904-1-39-ТХ Перечень примененных и ссылочных документов |
| Разработан: | Ростовский Промстройниипроект Госстроя СССР |
| Утверждён: | 30.03.1978 Минстройдормаш (Minstroydormash 7/78) |
| Расположен в: | |
| Чем заменён: |



































































