Информационная система
«Ёшкин Кот»

Скачать базу одним архивом
Скачать обновления
История создания базы
Карта сайта

Скачать Типовой проект 904-1-35 Альбом VI. Архитектурно-строительная и сантехническая части

Дата актуализации: 10.08.2017

Типовой проект 904-1-35

Альбом VI. Архитектурно-строительная и сантехническая части

Обозначение: Типовой проект 904-1-35
Обозначение англ: 904-1-35
Статус:не действует
Название рус.:Альбом VI. Архитектурно-строительная и сантехническая части
Дата добавления в базу:01.09.2013
Дата актуализации:05.05.2017
Оглавление:I Архитектурно-строительная часть
ТП 904-1-35 Титульный лист (обложка)
ТП 904-1-35 Содержание альбома
ТП 904-1-35 Общие указания
ТП 904-1-35-АР-1 Заглавный лист
ТП 904-1-35-АР-2 Заглавный лист (продолжение)
ТП 904-1-35-АР-3 План на отм. 10.000
ТП 904-1-35-АР-4 План на отм. 3.800 и 4.200
ТП 904-1-35-АР-5 План на отм. 10.000 (продолжение). План на отм. 3.800 (продолжение)
ТП 904-1-35-АР-6 Разрезы 1-1÷4-4
ТП 904-1-35-АР-7 Разрезы 5-5÷8-8. Экспликация проемов ворот и дверей. Спецификация перемычек и элементов лестничной клетки
ТП 904-1-35-АР-8 Фасады. План кровли
ТП 904-1-35-АР-9 Экспликация полов
ТП 904-1-35-АР-10 Таблица внутренних отделочных работ
ТП 904-1-35-АР-11 Детали 2-17
ТП 904-1-35-АР-12 Детали 18-31
ТП 904-1-35-АР-13 План опор для двойного пола
ТП 904-1-35-АР-14 Сечения 1-1÷8-8. Узел "А"
ТП 904-1-35-АР-15 План раскладки деревянных щитов. Деревянные щиты ДЩ-1-4. Детали
ТП 904-1-35-АР-16 План балок и асбестобетонных плит подвесного потолка
ТП 904-1-35-АР-17 Фасад смотрового окна ОС-1. Разрезы 1-1÷2-2. Переплет смотрового окна ОС-1. Узел А". Общие указания
ТП 904-1-35-АР-18 Коробка смотрового окна ОС-1. Схема разверток листов перфорированной фанеры. Выборка материалов на один оконных проем. Узлы "Б","В"
ТП 904-1-35-АР-19 Монтажные и маркировочные схемы остекленной и сетчатой стальной перегородок
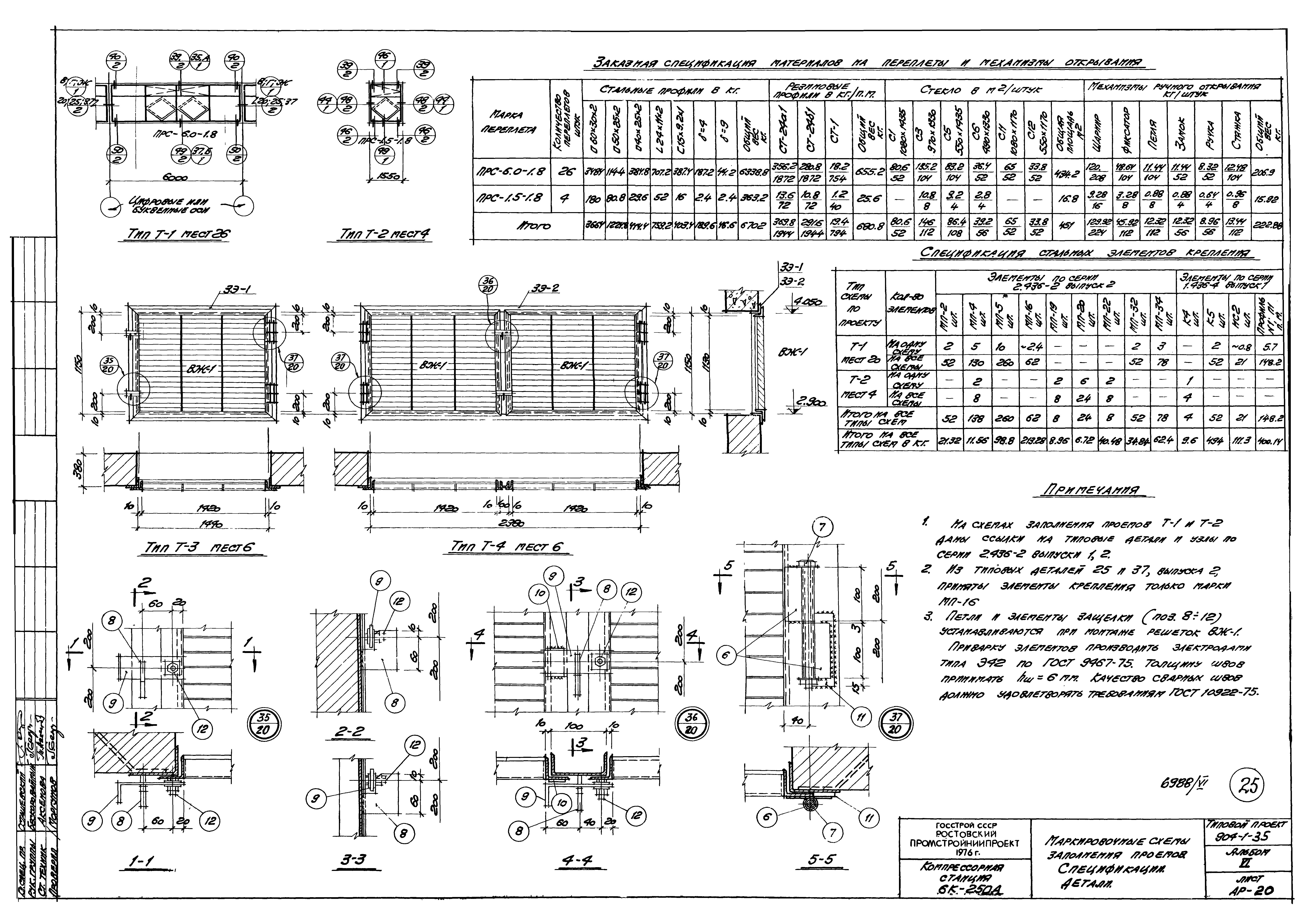
ТП 904-1-35-АР-20 Маркировочные схемы заполнения проемов. Спецификации. Детали
ТП 904-1-35-АР-21 Стальные жалюзи ВЖ-1 и закладные элементы 3Э-1÷3Э-8
ТП 904-1-35-АР-22 Спецификация к листу АР-21
ТП 904-1-35-АР-23 Маркировочные схемы решеток в камерах глушения
ТП 904-1-35-АР-24 План подземного хозяйства
ТП 904-1-35-АР-25 Подземное хозяйство. Элементы плана №1,№2
ТП 904-1-35-АР-26 Подземное хозяйство. Элемент плана №3. Сечения 1-1÷6-6
ТП 904-1-35-АР-27 Подземное хозяйство. Сечения 7-7÷21-21
ТП 904-1-35-АР-28 Подземное хозяйство. Фундаменты под оборудование ФО-2÷ФО-13
ТП 904-1-35-АР-29 Подземное хозяйство. Закладные элементы 3Э-9÷3Э-23. Детали
ТП 904-1-35-АР-30 Подземное хозяйство. Закладные элементы 3Э-24÷3Э-35. Спецификация закладных элементов
Чертежи марки КЖ
ТП 904-1-35-КЖ-1 Перечень листов марки "КЖ"
ТП 904-1-35-КЖ-2 Перечень примененных в чертежах марки "КЖ" стандартов и типовых чертежей. Примечания
ТП 904-1-35-КЖ-3 Спецификация сборных и монолитных железобетонных и бетонных элементов. Расход бетона и стали на здание
ТП 904-1-35-КЖ-4 План фундаментов и фундаментных балок сечения 1-1÷6-6. Спецификация примечания
ТП 904-1-35-КЖ-5 Маркировочные схемы бетонных блоков ленточных фундаментов (сечения 7-7÷16-16)
ТП 904-1-35-КЖ-6 Фундаменты ФБ43-1,ФБ43-1а,ФБ43-1б,ФБ43-1в
ТП 904-1-35-КЖ-7 Фундаменты ФА37-1,ФА37-1а,ФА1-1
ТП 904-1-35-КЖ-8 Фундаменты ФА37-1б,ФА37-1в,МФ5
ТП 904-1-35-КЖ-9 Фундаменты МФ1-МФ3
ТП 904-1-35-КЖ-10 Фундаменты МФ4,МФ6. Спецификация арматуры
ТП 904-1-35-КЖ-11 Спецификация и выборка арматуры к листам КЖ-6÷КЖ-10
ТП 904-1-35-КЖ-12 Монтажные схемы колонн, ригелей, рамы ворот, связей, стоек и балок покрытия. Разрезы 9-9,10-10. Спецификация
ТП 904-1-35-КЖ-13 Монтажные схемы плит покрытия, перекрытия, стаканов
ТП 904-1-35-КЖ-14 Монтажные схемы опорных столиков. Спецификации
ТП 904-1-35-КЖ-15 Разрезы 1-1÷8-8. Схема перекрытия на отм. 3.770
ТП 904-1-35-КЖ-16 Монтажные детали 1-3
ТП 904-1-35-КЖ-17 Монтажные детали 4-8
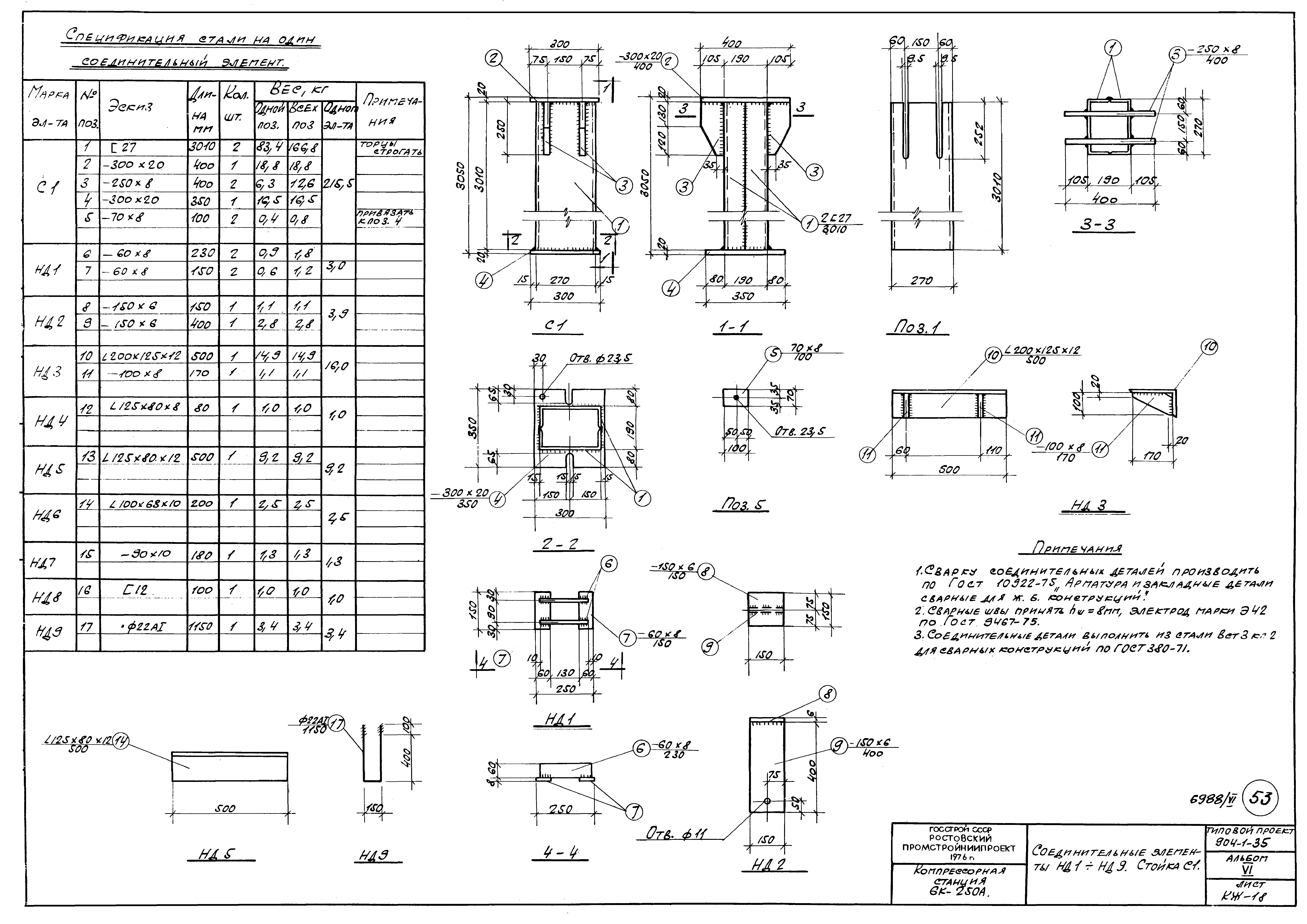
ТП 904-1-35-КЖ-18 Соединительные элементы НД1-НД-9. Стойка С1
ТП 904-1-35-КЖ-19 Колонные КН-42-а,КН-42-б,КН-42-в,КН-42-Г,НК1,НК2
ТП 904-1-35-КЖ-20 Колонны НК1,НК2 (Арматурные чертежи)
ТП 904-1-35-КЖ-21 Ригели НР1,НР1а
ТП 904-1-35-КЖ-22 Сборные железобетонные элементы
ТП 904-1-35-КЖ-23 Сборные железобетонные плиты перекрытия и покрытия
ТП 904-1-35-КЖ-24 Вертикальная связь СВ1
ТП 904-1-35-КЖ-25 Монтажные схемы стеновых панелей по осям "А","Г","10","1"
ТП 904-1-35-КЖ-26 Фрагменты Ф1-Ф9
ТП 904-1-35-КЖ-27 Фрагменты Ф10-Ф19
ТП 904-1-35-КЖ-28 Спецификация типов крепления на фрагменты
ТП 904-1-35-КЖ-29 Монолитные участки МУ1,МУ2. Монолитная балка
ТП 904-1-35-КЖ-30 Закладные детали НМ1-НМ10
ТП 904-1-35-КЖ-31 Фундамент ФО1. План. Опалубочный чертеж
ТП 904-1-35-КЖ-32 Фундамент ФО1. Разрезы 1-1÷4-4. Опалубочный чертеж
ТП 904-1-35-КЖ-33 Фундамент ФО1. Разрезы 6-6÷8-8. Опалубочный чертеж
ТП 904-1-35-КЖ-34 Фундамент ФО1. Разрезы 9-9÷13-13. Узлы 1,2. Опалубочный чертеж
ТП 904-1-35-КЖ-35 Фундамент ФО1. Разрезы 1-1,11-11,14-14,15-15,16-16. Арматурный чертеж
ТП 904-1-35-КЖ-36 Фундамент ФО1. Разрезы 2-2,12-12,17-17. Арматурный чертеж
ТП 904-1-35-КЖ-37 Фундамент ФО1. Разрезы 4-4,18-18÷25-25. Арматурный чертеж
ТП 904-1-35-КЖ-38 Фундамент ФО1. Спецификация арматуры и выборка стали к листам КЖ-35÷КЖ-37
ТП 904-1-35-КЖ-39 Закладные элементы Р1,М1-М3
ТП 904-1-35-КЖ-40 Закладные и соединительные элементы М4-М6,НД1. Спецификация
ТП 904-1-35-КЖ-41 Монтажный план плит перекрытия канала. Монолитные участки МУ2,МУ4
Чертежи марки КМ
ТП 904-1-35-КМ-1 Заглавный лист
ТП 904-1-35-КМ-2 Монтажные схемы подкрановых балок, упоров и крановых рельсов
ТП 904-1-35-КМ-3 Монтажные схемы балок под монолитный участок МУ4 и стоек под всасывающий трубопровод
ТП 904-1-35-КМ-4 Монтажная схема металлических щитов на отм. 10.000. Таблица щитов
ТП 904-1-35-КМ-5 План перекрытия на отм. 4.200
ТП 904-1-35-КМ-6 Щиты Щ1-Щ21
ТП 904-1-35-КМ-7 План металлических балок перекрытия на отм. 3.800
ТП 904-1-35-КМ-8 План раскладки щитов и металлических участков перекрытия на отм. 3.800
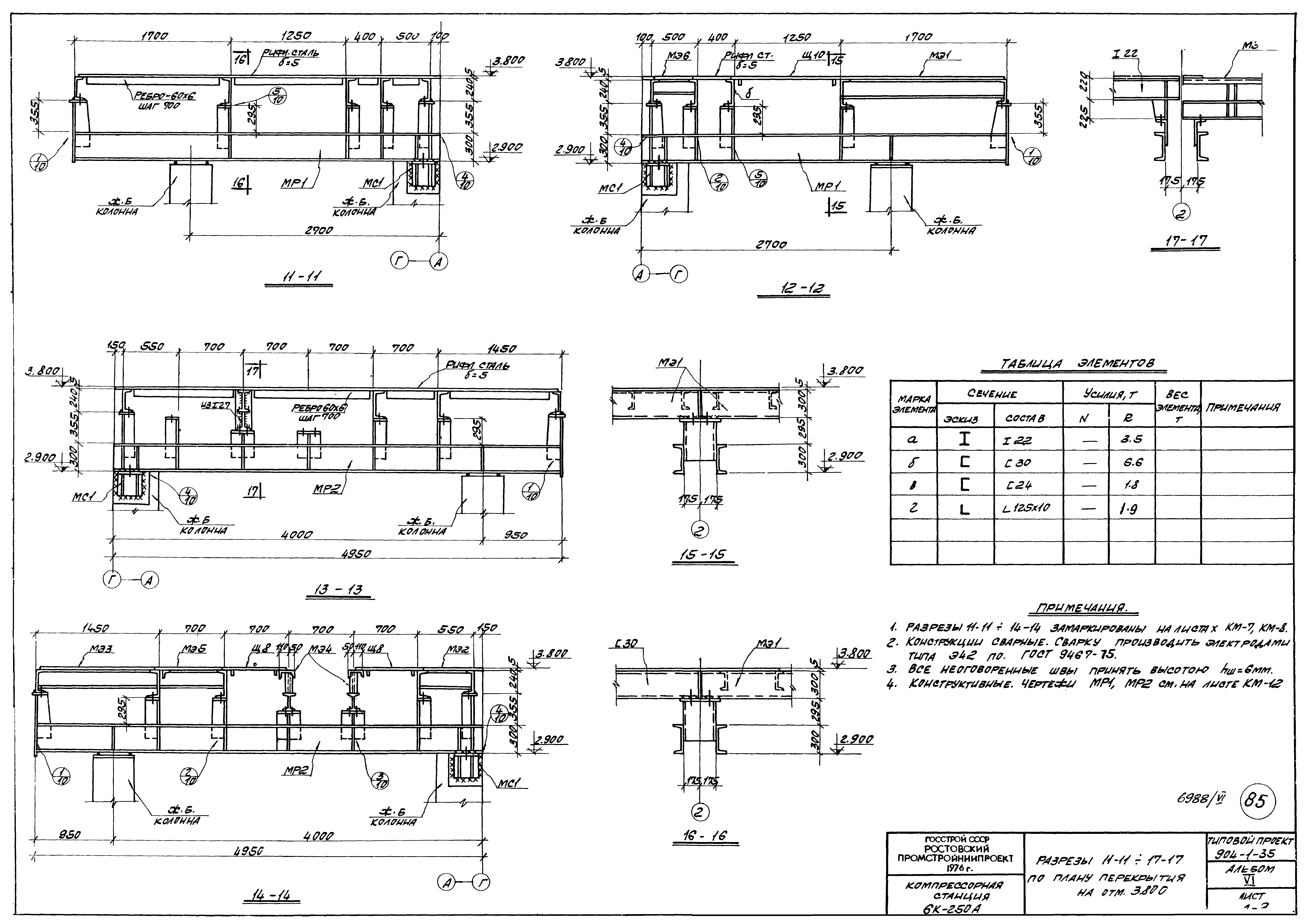
ТП 904-1-35-КМ-9 Разрезы 11-11÷17-17 по плану перекрытия на отм. 3.800
ТП 904-1-35-КМ-10 Узлы "1-7"
ТП 904-1-35-КМ-11 Элементы МЭ-1÷МЭ-6
ТП 904-1-35-КМ-12 Ригели МР1,МР2. Шахта электрокабелей
ТП 904-1-35-КМ-13 Короба электрокабелей
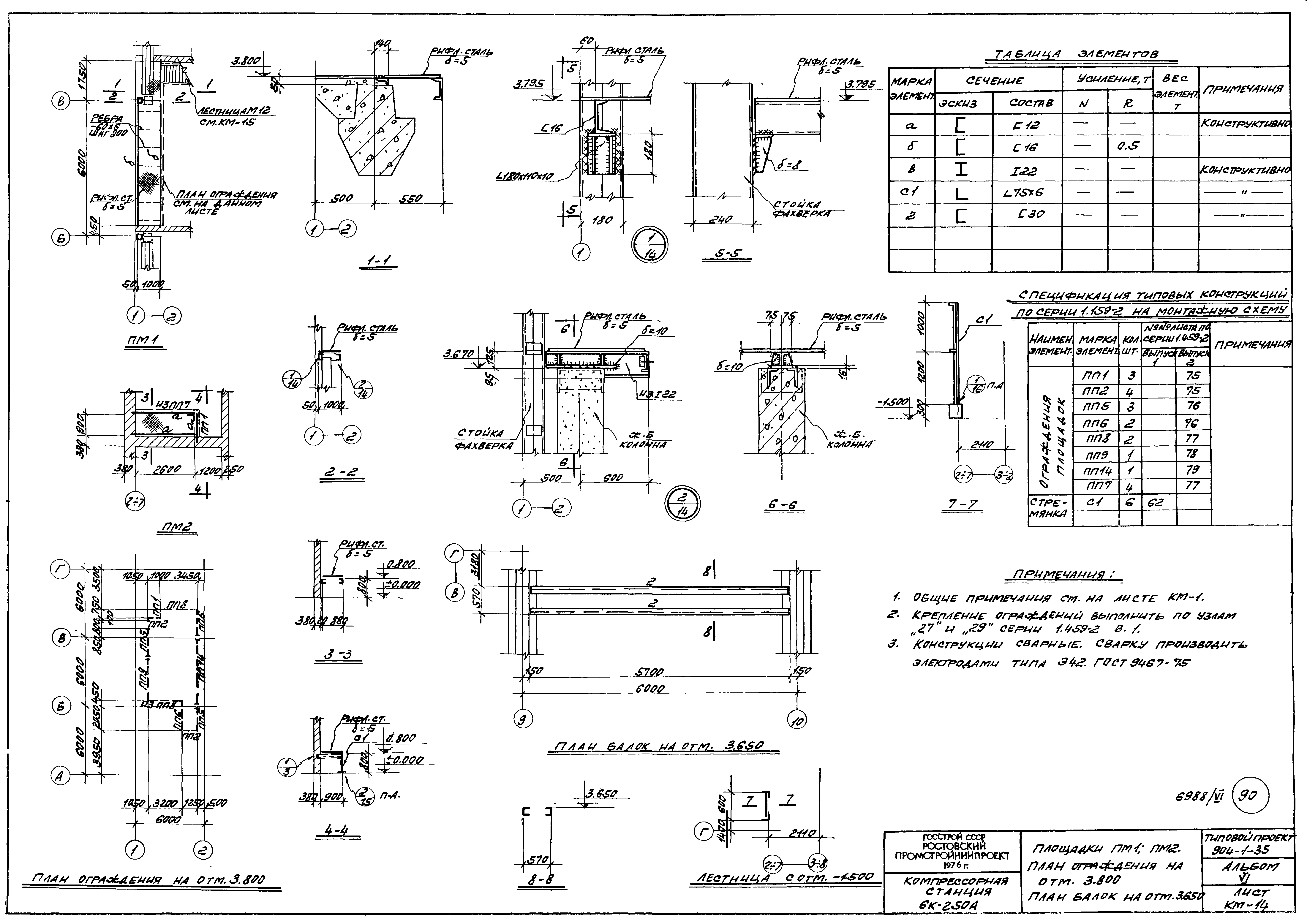
ТП 904-1-35-КМ-14 Площадки ПМ1,ПМ2. План ограждения на отм. 3.800. План балок на отм. 3ю650
ТП 904-1-35-КМ-15 Наружная лестница по оси "Г". Лестница на отм. 3.800
ТП 904-1-35-КМ-16 План опоры под трубопровод. Узлы
II Санитарно-техническая часть
Чертежи марки ОВ
ТП 904-1-35-ОВ-1 Заглавный лист
ТП 904-1-35-ОВ-2 Характеристика отопительно-вентиляционного оборудования. Таблица воздушно-тепловых балансов
ТП 904-1-35-ОВ-3 План отопления и вентиляции на отм. 0.000
ТП 904-1-35-ОВ-4 План отопления и вентиляции на отм. 3.800
ТП 904-1-35-ОВ-5 План отопления и вентиляции на отм. 0.000 и 3.800 (продолжение). Разрез 3-3
ТП 904-1-35-ОВ-6 Схема трубопроводов отопления. Разрез 4-4
ТП 904-1-35-ОВ-7 Схемы воздуховодов систем П1,В6,ВЕ1. Разрезы 1-1;2-2
ТП 904-1-35-ОВ-8 Установка оборудования систем П1,В6
ТП 904-1-35-ОВ-9 Сводная спецификация систем отопления и вентиляции
Чертежи марки ВК
ТП 904-1-35-ВК-1 Заглавный лист
ТП 904-1-35-ВК-2 Сводная спецификация систем водопровода и канализации
ТП 904-1-35-ВК-3 План на отм. 0.000
ТП 904-1-35-ВК-4 Схемы систем В1,Т3,К1,К13
Разработан: Ростовский Промстройниипроект Госстроя СССР
Утверждён:29.11.1976 Минстройдормаш (Minstroydormash 39/76)
Расположен в:Техническая документация Строительство Справочные документы Типовые строительные конструкции, изделия и узлы Общероссийский строительный каталог Промышленные предприятия, здания и сооружения Здания и сооружения санитарно-технические Воздухоснабжение, вентиляция и кондиционирование воздуха Воздухоснабжение
Типовой проект 904-1-35Типовой проект 904-1-35Типовой проект 904-1-35Типовой проект 904-1-35Типовой проект 904-1-35Типовой проект 904-1-35Типовой проект 904-1-35Типовой проект 904-1-35Типовой проект 904-1-35Типовой проект 904-1-35Типовой проект 904-1-35Типовой проект 904-1-35Типовой проект 904-1-35Типовой проект 904-1-35Типовой проект 904-1-35Типовой проект 904-1-35Типовой проект 904-1-35Типовой проект 904-1-35Типовой проект 904-1-35Типовой проект 904-1-35Типовой проект 904-1-35Типовой проект 904-1-35Типовой проект 904-1-35Типовой проект 904-1-35Типовой проект 904-1-35Типовой проект 904-1-35Типовой проект 904-1-35Типовой проект 904-1-35Типовой проект 904-1-35Типовой проект 904-1-35Типовой проект 904-1-35Типовой проект 904-1-35Типовой проект 904-1-35Типовой проект 904-1-35Типовой проект 904-1-35Типовой проект 904-1-35Типовой проект 904-1-35Типовой проект 904-1-35Типовой проект 904-1-35Типовой проект 904-1-35Типовой проект 904-1-35Типовой проект 904-1-35Типовой проект 904-1-35Типовой проект 904-1-35Типовой проект 904-1-35Типовой проект 904-1-35Типовой проект 904-1-35Типовой проект 904-1-35Типовой проект 904-1-35Типовой проект 904-1-35Типовой проект 904-1-35Типовой проект 904-1-35Типовой проект 904-1-35Типовой проект 904-1-35Типовой проект 904-1-35Типовой проект 904-1-35Типовой проект 904-1-35Типовой проект 904-1-35Типовой проект 904-1-35Типовой проект 904-1-35Типовой проект 904-1-35Типовой проект 904-1-35Типовой проект 904-1-35Типовой проект 904-1-35Типовой проект 904-1-35Типовой проект 904-1-35Типовой проект 904-1-35Типовой проект 904-1-35Типовой проект 904-1-35Типовой проект 904-1-35Типовой проект 904-1-35Типовой проект 904-1-35Типовой проект 904-1-35Типовой проект 904-1-35Типовой проект 904-1-35Типовой проект 904-1-35Типовой проект 904-1-35Типовой проект 904-1-35Типовой проект 904-1-35Типовой проект 904-1-35Типовой проект 904-1-35Типовой проект 904-1-35Типовой проект 904-1-35Типовой проект 904-1-35Типовой проект 904-1-35Типовой проект 904-1-35Типовой проект 904-1-35Типовой проект 904-1-35Типовой проект 904-1-35Типовой проект 904-1-35Типовой проект 904-1-35Типовой проект 904-1-35Типовой проект 904-1-35Типовой проект 904-1-35Типовой проект 904-1-35Типовой проект 904-1-35Типовой проект 904-1-35Типовой проект 904-1-35Типовой проект 904-1-35Типовой проект 904-1-35Типовой проект 904-1-35Типовой проект 904-1-35Типовой проект 904-1-35Типовой проект 904-1-35Типовой проект 904-1-35Типовой проект 904-1-35

© 2013 Ёшкин Кот :-) Карта сайта