Информационная система
«Ёшкин Кот»

Скачать базу одним архивом
Скачать обновления
История создания базы
Карта сайта

Скачать Типовой проект 903-2-14 Альбом I. Часть 4. Мазутонасосная. Блоки тепломеханического оборудования

Дата актуализации: 10.08.2017

Типовой проект 903-2-14

Альбом I. Часть 4. Мазутонасосная. Блоки тепломеханического оборудования

Обозначение: Типовой проект 903-2-14
Обозначение англ: 903-2-14
Статус:не действует
Название рус.:Альбом I. Часть 4. Мазутонасосная. Блоки тепломеханического оборудования
Дата добавления в базу:01.09.2013
Дата актуализации:05.05.2017
Оглавление:ТП 903-2-14-ТМ-8/1 Общие данные (начало)
ТП 903-2-14-ТМ-8/1 Общие данные (продолжение)
ТП 903-2-14-ТМ-8/1 Общие данные (окончание)
ТП 903-2-14-ТМ-8/2 Перечень изолированных поверхностей
ТП 903-2-14-ТМ-8/3 Блок насосов подачи мазута к котлам Б-МН-2х3.2-25
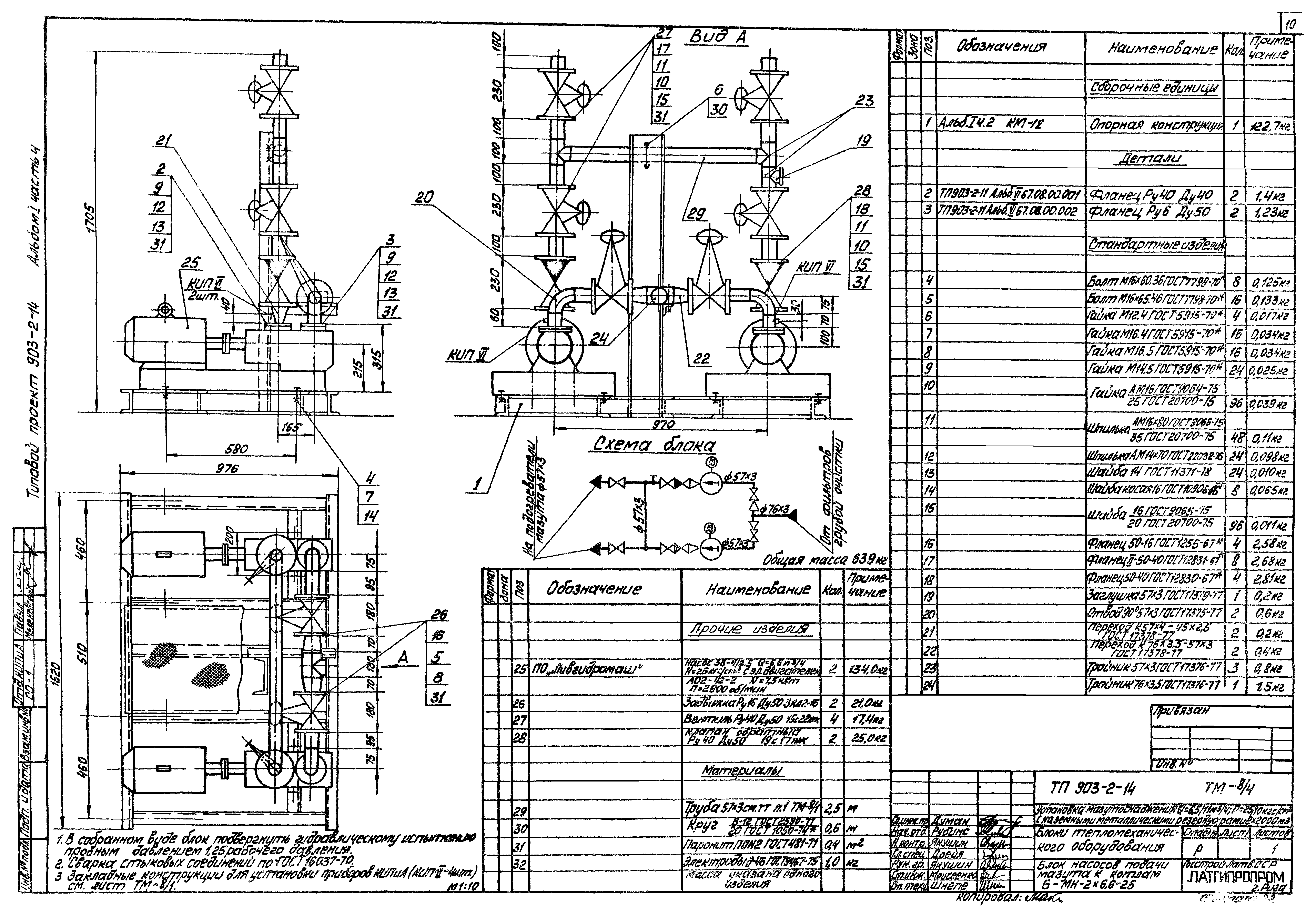
ТП 903-2-14-ТМ-8/4 Блок насосов подачи мазута к котлам Б-МН-2х6.6-25
ТП 903-2-14-ТМ-8/5 Блок насосов рециркуляции мазута Б-МНр-2х55-4
ТП 903-2-14-ТМ-8/6 Блок перекачивающих насосов мазута Б-МНп-2х120-4
ТП 903-2-14-ТМ-8/7 Блок фильтров грубой очистки мазута Б-МФГ-2х140-6
ТП 903-2-14-ТМ-8/8 Блок фильтров тонкой очистки мазута Б-МФТ-2х30-25
ТП 903-2-14-ТМ-8/9 Блок установки для жидких присадок Б-УЖП-2х0.4-16
Разработан: Латгипропром
Утверждён:11.10.1979 Латгипропром (251)
Расположен в:Техническая документация Строительство Справочные документы Типовые строительные конструкции, изделия и узлы Общероссийский строительный каталог Промышленные предприятия, здания и сооружения Здания и сооружения санитарно-технические Теплоснабжение Установка для снабжения котельных жидким топливом
Типовой проект 903-2-14Типовой проект 903-2-14Типовой проект 903-2-14Типовой проект 903-2-14Типовой проект 903-2-14Типовой проект 903-2-14Типовой проект 903-2-14Типовой проект 903-2-14Типовой проект 903-2-14Типовой проект 903-2-14Типовой проект 903-2-14Типовой проект 903-2-14Типовой проект 903-2-14Типовой проект 903-2-14Типовой проект 903-2-14Типовой проект 903-2-14Типовой проект 903-2-14Типовой проект 903-2-14Типовой проект 903-2-14Типовой проект 903-2-14

© 2013 Ёшкин Кот :-) Карта сайта