Информационная система
«Ёшкин Кот»

Скачать базу одним архивом
Скачать обновления
История создания базы
Карта сайта

Скачать Типовой проект 903-1-224.86 Альбом 5.4. Котельная. Строительные изделия

Дата актуализации: 10.08.2017

Типовой проект 903-1-224.86

Альбом 5.4. Котельная. Строительные изделия

Обозначение: Типовой проект 903-1-224.86
Обозначение англ: 903-1-224.86
Статус:действует
Название рус.:Альбом 5.4. Котельная. Строительные изделия
Дата добавления в базу:01.09.2013
Дата актуализации:05.05.2017
Оглавление:ТП 903-1-224.86-КЖ.И.ТУ Технические условия
ТП 903-1-224.86-КЖ.И.03.900 Колонна К7-1-1
ТП 903-1-224.86-КЖ.И.03.100.1 Колонна (К54-5а К54-5б)
ТП 903-1-224.86-КЖ.И.03.100.2 Колонна (К54-5в К54-5г К54-5д)
ТП 903-1-224.86-КЖ.И.03.200.1 Колонна К108-15а
ТП 903-1-224.86-КЖ.И.03.200.2 Колонна К108-15б
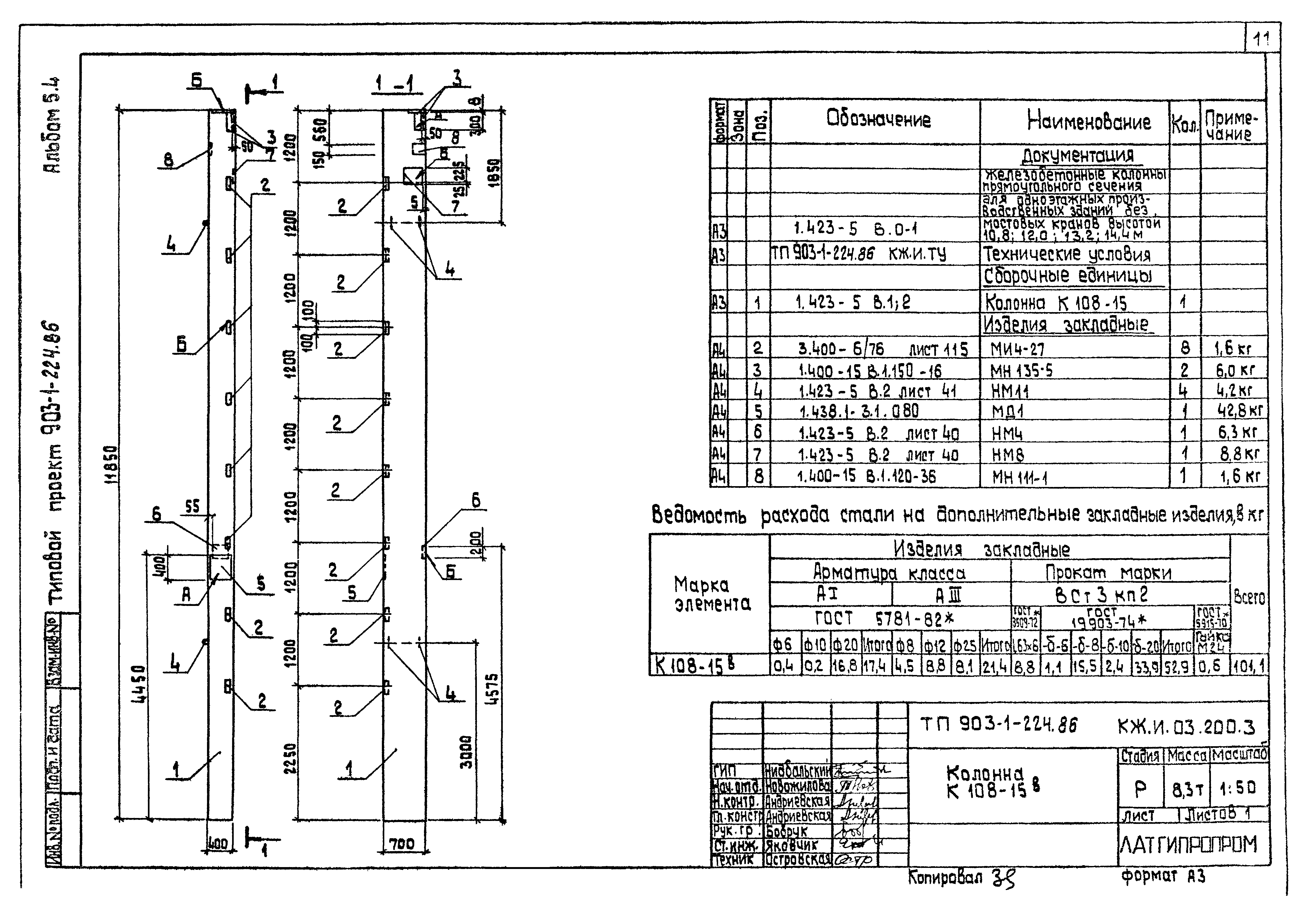
ТП 903-1-224.86-КЖ.И.03.200.3 Колонна К108-15в
ТП 903-1-224.86-КЖ.И.03.200.4 Колонна К108-15г
ТП 903-1-224.86-КЖ.И.03.200.5 Колонна К108-15д
ТП 903-1-224.86-КЖ.И.03.200.6 Колонна К108-15г
ТП 903-1-224.86-КЖ.И.03.200.7 Колонна К108-15ж
ТП 903-1-224.86-КЖ.И.03.200.8 Колонна К108-15и
ТП 903-1-224.86-КЖ.И.03.200.9 Колонна К108-15к
ТП 903-1-224.86-КЖ.И.03.200.10 Колонна К108-15л
ТП 903-1-224.86-КЖ.И.03.200.11 Колонна К108-15м
ТП 903-1-224.86-КЖ.И.03.200.12 Колонна К108-15н
ТП 903-1-224.86-КЖ.И.03.200.13 Колонна К108-15п
ТП 903-1-224.86-КЖ.И.03.200.14 Колонна К108-15у
ТП 903-1-224.86-КЖ.И.03.200.15 Колонна К108-15ф
ТП 903-1-224.86-КЖ.И.03.200.16 Колонна К108-15р
ТП 903-1-224.86-КЖ.И.03.200.17 Колонна К108-15с
ТП 903-1-224.86-КЖ.И.03.200.18 Колонна К108-15т
ТП 903-1-224.86-КЖ.И.03.300 Колонна 4КФ109-2-а
ТП 903-1-224.86-КЖ.И.03.400.1 Колонна К65а-2-2-а
ТП 903-1-224.86-КЖ.И.03.400.2 Колонна К65а-2-2-б
ТП 903-1-224.86-КЖ.И.03.400.3 Колонна К65а-2-2-в
ТП 903-1-224.86-КЖ.И.03.400.4 Колонна К65а-2-2-г
ТП 903-1-224.86-КЖ.И.03.400.5 Колонна К65а-2-2-д
ТП 903-1-224.86-КЖ.И.03.400.6 Колонна К65а-2-2-е
ТП 903-1-224.86-КЖ.И.03.400.7 Колонна (К65а-2-2-ж К65а-3-2-в)
ТП 903-1-224.86-КЖ.И.03.400.8 Колонна К65а-3-2-а
ТП 903-1-224.86-КЖ.И.03.400.9 Колонна К65а-3-2-б
ТП 903-1-224.86-КЖ.И.03.400.10 Колонна К65а-2-2-и
ТП 903-1-224.86-КЖ.И.03.500 Колонна НК35а-1-1
ТП 903-1-224.86-КЖ.И.03.500.1 Колонна (НК35а-1-1-а НК35а-1-1-е)
ТП 903-1-224.86-КЖ.И.03.500.2 Колонна (НК35а-1-1-б НК35а-1-1-в)
ТП 903-1-224.86-КЖ.И.03.500.3 Колонна (НК35а-1-1-г НК35а-1-1-д)
ТП 903-1-224.86-КЖ.И.03.500.4 Колонна (НК35а-1-1-ж НК35а-1-1-и)
ТП 903-1-224.86-КЖ.И.03.500.5 Колонна (НК35а-1-1-к НК35а-1-1-л)
ТП 903-1-224.86-КЖ.И.03.500.6 Колонна (НК35а-1-1-м НК35а-1-1-н)
ТП 903-1-224.86-КЖ.И.03.510 Каркас пространственный
ТП 903-1-224.86-КЖ.И.03.511 Каркас плоский
ТП 903-1-224.86-КЖ.И.03.611 Каркас плоский
ТП 903-1-224.86-КЖ.И.03.512 Изделие закладное МН-1
ТП 903-1-224.86-КЖ.И.03.600 Колонна НК79-1-1
ТП 903-1-224.86-КЖ.И.03.600.1 Колонна (НК79-1-1-б НК79-1-1-г)
ТП 903-1-224.86-КЖ.И.03.600.2 Колонна (НК79-1-1-в НК79-1-1-е)
ТП 903-1-224.86-КЖ.И.03.600.3 Колонна (НК79-1-1-а НК79-1-1-д)
ТП 903-1-224.86-КЖ.И.03.610 Каркас пространственный
ТП 903-1-224.86-КЖ.И.03.700 Колонна (К1а-1-2-а К1а-1-2-б К1а-1-2-в)
ТП 903-1-224.86-КЖ.И.03.800.1 Колонна (НК78-1-1-а НК78-1-1-б НК78-1-1-в)
ТП 903-1-224.86-КЖ.И.03.800.2 Колонна (НК78-1-1-г НК78-1-1-д НК78-1-1-е)
ТП 903-1-224.86-КЖ.И.03.800 Колонна НК78-1-1
ТП 903-1-224.86-КЖ.И.03.811 Каркас плоский
ТП 903-1-224.86-КЖ.И.03.810 Каркас пространственный
ТП 903-1-224.86-КЖ.И.04.1 Балка (1БСП12-3АтV-А 1БСП12-6АтV-А)
ТП 903-1-224.86-КЖ.И.04.2.1 Балка (1БСТ6-4АтVТ-А 1БСТ6-7АтVТ-А 1БСТ6-6АтVТ-А)
ТП 903-1-224.86-КЖ.И.04.2.2 Балка (1БСТ6-4АтVТ-Б 1БСТ6-4АтVТ-В 1БСТ6-6АтVТ-Б 1БСТБ-7АтVТ-Б)
ТП 903-1-224.86-КЖ.И.04.3 Балка (1БСТ6-1АтVТ-А 1БСТ6-1АтVТ-Б 1БСТ6-1АтVТ-В)
ТП 903-1-224.86-КЖ.И.05.1 Плита (ПАV/1.5)х6-4-А
ТП 903-1-224.86-КЖ.И.06.1 Ригель (Б39-1-А; Б39-1-Б)
ТП 903-1-224.86-КЖ.И.06.2 Ригель (ИБ1-1-А; ИБ1-2-А; ИБ1-2-Б; ИБ1-2-В)
ТП 903-1-224.86-КЖ.И.07.1 Плита 1П3-2АIVТ-А
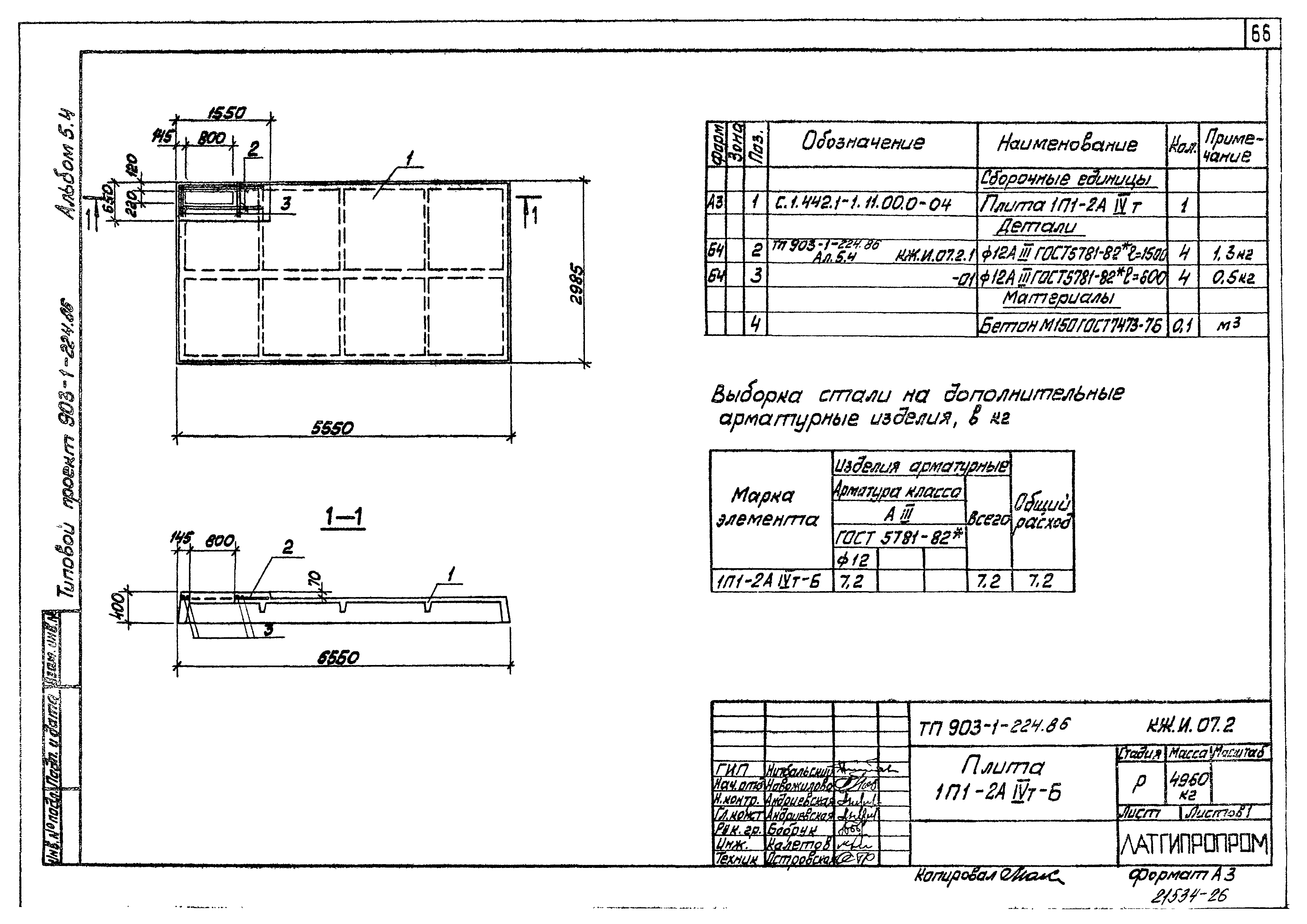
ТП 903-1-224.86-КЖ.И.07.2 Плита 1П1-1АТVТ-Б
ТП 903-1-224.86-КЖ.И.07.3 Плита (1П1-2АIVТ-А 1П1-2АIVТ-Б)
ТП 903-1-224.86-КЖ.И.07.4 Плита 1П1-1АТVТ-А
ТП 903-1-224.86-КЖ.И.08.1 Стеновая панель (ПС62.5.12.2.0-2л-1.34-1;ПС62.5.18.2.0-3л-1-51-1;ПС65.18.2.0-2л-1-31-1;ПС65.12.2.0-2л-1.31-1;Пс65.12.2.0-2л-1.33-1;ПС65.9.2.0-2л-1.31-1;ПС65.18.2.0-2л-1.33-2)
ТП 903-1-224.86-КЖ.И.08.2 Стеновая панель (ПС60.12.2.0-2л-41-1;ПС62.5.12.2.0-2л-1.41-1;ПС62.5.12.2.0-2л-2.41-1;ПС30.12.2.0-6л-53-1;ПС60.12.2.0-2л-47-1;ПС62.5.12.2.0-21.1-47-1)
ТП 903-1-224.86-КЖ.И.08.3 Стеновая панель (ПС60.12.2.0-2л-34-1;ПС62.5.12.2.0-2л-1-39-1;ПС60.12.2.0-2д-32-1;ПС62.5.12.2.0-2л-1-32-1)
ТП 903-1-224.86-КЖ.И.08.4 Стеновая панель (ПС60.12.2.0-2л-31-1;ПС60.12.2.0-2л-31-2;ПС62.5.12.2.0-2л-1.31-1;ПС62.5.12.2.0-2л-2.31-1)
ТП 903-1-224.86-КЖ.И.2.3 Каркас плоский КР13
ТП 903-1-224.86-КЖ.И.1.1 Изделие закладное (МН1;МН2)
ТП 903-1-224.86-КЖ.И.1.2 Изделие закладное МН3
ТП 903-1-224.86-КЖ.И.1.3 Изделие закладное (МН4;МН5;МН6)
ТП 903-1-224.86-КЖ.И.1.4 Изделие закладное МН7
ТП 903-1-224.86-КЖ.И.1.5 Изделие закладное МН8
ТП 903-1-224.86-КЖ.И.1.6 Изделие закладное МН9
ТП 903-1-224.86-КЖ.И.1.7 Изделие закладное МН10
ТП 903-1-224.86-КЖ.И.1.8 Изделие закладное МН11
ТП 903-1-224.86-КЖ.И.1.9 Изделие закладное МН12
ТП 903-1-224.86-КЖ.И.1.10 Изделие закладное МН13
ТП 903-1-224.86-КЖ.И.1.11 Изделие закладное МН14
ТП 903-1-224.86-КЖ.И.1.12 Изделие закладное МН15
ТП 903-1-224.86-КЖ.И.1.13 Изделие закладное ЖР1
ТП 903-1-224.86-КЖ.И.2.1 Каркас (КР1,КР2,КР3,КР4,КР10,КР11)
ТП 903-1-224.86-КЖ.И.2.2 Каркас (КР5,КР6,КР7,КР8,КР9,КР12)
ТП 903-1-224.86-КЖ.И.2.4 Каркас (КР14,КР15,КР16,КР17,КР18)
ТП 903-1-224.86-КЖ.И.2.5 Каркас (КР19,КР20,КР21)
ТП 903-1-224.86-КЖ.И.2.6 Каркас плоский КР22
ТП 903-1-224.86-КЖ.И.2.7 Сетка арматурная С3
ТП 903-1-224.86-КЖ.И.2.8 Сетка арматурная С1
ТП 903-1-224.86-КЖ.И.2.9 Сетка арматурная С2
ТП 903-1-224.86-КЖ.И.4.1 Насадка фахверка НФ1
ТП 903-1-224.86-КЖ.И.4.2 Соединительный элемент МС1
ТП 903-1-224.86-КЖ.И.4.3 Соединительный элемент МС2
ТП 903-1-224.86-КЖ.И.4.4 Соединительный элемент МС3
ТП 903-1-224.86-КЖ.И.4.14 Изделие закладное МН16
ТП 903-1-224.86-КЖ.И.4.5 Соединительное изделие (МС4;МС5)
ТП 903-1-224.86-КЖ.И.10.000 Ворота распашные АТУ1. Лист1
ТП 903-1-224.86-КЖ.И.10.000 Ворота распашные АТУ1. Лист2
ТП 903-1-224.86-КЖ.И.10.000 Ворота распашные АТУ1. Лист3
ТП 903-1-224.86-КЖ.И.10.000 СБ Ворота распашные АТУ1. Сборочный чертеж. Лист1
ТП 903-1-224.86-КЖ.И.10.000 СБ Ворота распашные АТУ1. Сборочный чертеж. Лист2
ТП 903-1-224.86-КЖ.И.10.000 СБ Ворота распашные АТУ1. Сборочный чертеж. Лист3
ТП 903-1-224.86-КЖ.И.10.000 СБ Ворота распашные АТУ1. Сборочный чертеж. Лист4
ТП 903-1-224.86-КЖ.И.10.000 СБ Ворота распашные АТУ1. Сборочный чертеж. Лист5
ТП 903-1-224.86-КЖ.И.10.001 Перемычка
ТП 903-1-224.86-КЖ.И.10.002 Стойка
ТП 903-1-224.86-КЖ.И.10.003 Швеллер
ТП 903-1-224.86-КЖ.И.10.004 Швеллер
ТП 903-1-224.86-КЖ.И.10.005 Уголок
ТП 903-1-224.86-КЖ.И.10.006 Уголок
ТП 903-1-224.86-КЖ.И.10.007 Уголок
ТП 903-1-224.86-КЖ.И.10.008 Лист
ТП 903-1-224.86-КЖ.И.10.009 Втулка
ТП 903-1-224.86-КЖ.И.10.010 Втулка
ТП 903-1-224.86-КЖ.И.10.011 Ребро
ТП 903-1-224.86-КЖ.И.10.012 Полоса
ТП 903-1-224.86-КЖ.И.10.013 Ось
ТП 903-1-224.86-КЖ.И.10.014 Ось
ТП 903-1-224.86-КЖ.И.10.015 Ручка
ТП 903-1-224.86-КЖ.И.10.016 Ручка
ТП 903-1-224.86-КЖ.И.10.017 Крюк
ТП 903-1-224.86-КЖ.И.10.018 Обшивка
ТП 903-1-224.86-КЖ.И.10.019 Обшивка
ТП 903-1-224.86-КЖ.И.10.020 Обшивка
ТП 903-1-224.86-КЖ.И.10.100 Рама полотна ворот
ТП 903-1-224.86-КЖ.И.10.101 Стойка
ТП 903-1-224.86-КЖ.И.10.100 СБ Рама полотна ворот. Сборочный чертеж
ТП 903-1-224.86-КЖ.И.10.102 Стойка
ТП 903-1-224.86-КЖ.И.10.103 Стойка
ТП 903-1-224.86-КЖ.И.10.200 Клапан
ТП 903-1-224.86-КЖ.И.10.201 Деталь рамы
ТП 903-1-224.86-КЖ.И.10.200 СБ Клапан. Сборочный чертеж
ТП 903-1-224.86-КЖ.И.10.300 Шпингалет
ТП 903-1-224.86-КЖ.И.10.300 СБ Шпингалет. Сборочный чертеж
ТП 903-1-224.86-КЖ.И.10.301 Ось
ТП 903-1-224.86-КЖ.И.10.302 Втулка
ТП 903-1-224.86-КЖ.И.10.303 Кольцо
ТП 903-1-224.86-КЖ.И.10.304 Стяжка
ТП 903-1-224.86-КЖ.И.11.000 Дверь (ДВ1,ДВ2). Дист1
ТП 903-1-224.86-КЖ.И.11.000 Дверь (ДВ1,ДВ2). Дист2
ТП 903-1-224.86-КЖ.И.11.000 СБ Дверь (ДВ1,ДВ2). Сборочный чертеж. Лист 1
ТП 903-1-224.86-КЖ.И.11.000 СБ Дверь (ДВ1,ДВ2). Сборочный чертеж. Лист 2
ТП 903-1-224.86-КЖ.И.11.001 Перемычка
ТП 903-1-224.86-КЖ.И.11.002 Стойка
ТП 903-1-224.86-КЖ.И.11.100 Полотно дверей
ТП 903-1-224.86-КЖ.И.11.100 СБ Полотно дверей. Сборочный чертеж
ТП 903-1-224.86-КЖ.И.11.101 Перемычка
ТП 903-1-224.86-КЖ.И.11.102 Стойка
ТП 903-1-224.86-КЖ.И.11.103 Стяжка
ТП 903-1-224.86-КЖ.И.11.104 Полоса
ТП 903-1-224.86-КЖ.И.11.105 Обшивка
ТП 903-1-224.86-КЖ.И.11.106 Обшивка
ТП 903-1-224.86-КЖ.И.10.10 Перегородка железобетонная (ПГ60.27-1-Т-Д1-а ПГ58.30-1-Т-Д1-а ПГ58.30-1-Т-Д1-а)
ТП 903-1-224.86-КЖ.И.10.11 Каркас перегородок (Крп1,Крп2,Крп3)
ТП 903-1-224.86-КЖ.И.10.11.1 Сетка арматурная (С4,С7)
ТП 903-1-224.86-КЖ.И.10.11.2 Сетка арматурная (С5,С10,С11)
ТП 903-1-224.86-КЖ.И.10.11.4 Сетка арматурная (С8,С9)
ТП 903-1-224.86-КЖ.И.10.11.3 Сетка арматурная С6
ТП 903-1-224.86-КЖ.И.10.20 Перегородка гипсобетонная (ПГ60.30-Г-В1-Д1 ПГ60.27-Г-Д1-а ПГ60.30-Г-Д1-а)
ТП 903-1-224.86-КЖ.И.10.20 СБ Перегородка гипсобетонная (ПГ60.30-Г-В1-Д1 ПГ60.27-Г-Д1-а ПГ60.30-Г-Д1-а). Сборочный чертеж. Лист 1
ТП 903-1-224.86-КЖ.И.10.20 СБ Перегородка гипсобетонная (ПГ60.30-Г-В1-Д1 ПГ60.27-Г-Д1-а ПГ60.30-Г-Д1-а). Сборочный чертеж. Лист 2
ТП 903-1-224.86-КЖ.И.4.5 Столик РК2-1
ТП 903-1-224.86-КЖ.И.4.6 Столик РК2-2
Разработан: Латгипропром
Утверждён:20.05.1986 Госстрой СССР (Государственный комитет Совета Министров СССР по делам строительства) (USSR Gosstroy А4-29)
Расположен в:Техническая документация Строительство Справочные документы Типовые строительные конструкции, изделия и узлы Общероссийский строительный каталог Промышленные предприятия, здания и сооружения Здания и сооружения санитарно-технические Теплоснабжение Котельные установки Открытые системы теплоснабжения Топливо - каменные и бурые угли
Заменяет собой:
  • Типовой проект 903-1-148
Типовой проект 903-1-224.86Типовой проект 903-1-224.86Типовой проект 903-1-224.86Типовой проект 903-1-224.86Типовой проект 903-1-224.86Типовой проект 903-1-224.86Типовой проект 903-1-224.86Типовой проект 903-1-224.86Типовой проект 903-1-224.86Типовой проект 903-1-224.86Типовой проект 903-1-224.86Типовой проект 903-1-224.86Типовой проект 903-1-224.86Типовой проект 903-1-224.86Типовой проект 903-1-224.86Типовой проект 903-1-224.86Типовой проект 903-1-224.86Типовой проект 903-1-224.86Типовой проект 903-1-224.86Типовой проект 903-1-224.86Типовой проект 903-1-224.86Типовой проект 903-1-224.86Типовой проект 903-1-224.86Типовой проект 903-1-224.86Типовой проект 903-1-224.86Типовой проект 903-1-224.86Типовой проект 903-1-224.86Типовой проект 903-1-224.86Типовой проект 903-1-224.86Типовой проект 903-1-224.86Типовой проект 903-1-224.86Типовой проект 903-1-224.86Типовой проект 903-1-224.86Типовой проект 903-1-224.86Типовой проект 903-1-224.86Типовой проект 903-1-224.86Типовой проект 903-1-224.86Типовой проект 903-1-224.86Типовой проект 903-1-224.86Типовой проект 903-1-224.86Типовой проект 903-1-224.86Типовой проект 903-1-224.86Типовой проект 903-1-224.86Типовой проект 903-1-224.86Типовой проект 903-1-224.86Типовой проект 903-1-224.86Типовой проект 903-1-224.86Типовой проект 903-1-224.86Типовой проект 903-1-224.86Типовой проект 903-1-224.86Типовой проект 903-1-224.86Типовой проект 903-1-224.86Типовой проект 903-1-224.86Типовой проект 903-1-224.86Типовой проект 903-1-224.86Типовой проект 903-1-224.86Типовой проект 903-1-224.86Типовой проект 903-1-224.86Типовой проект 903-1-224.86Типовой проект 903-1-224.86Типовой проект 903-1-224.86Типовой проект 903-1-224.86Типовой проект 903-1-224.86Типовой проект 903-1-224.86Типовой проект 903-1-224.86Типовой проект 903-1-224.86Типовой проект 903-1-224.86Типовой проект 903-1-224.86Типовой проект 903-1-224.86Типовой проект 903-1-224.86Типовой проект 903-1-224.86Типовой проект 903-1-224.86Типовой проект 903-1-224.86Типовой проект 903-1-224.86Типовой проект 903-1-224.86Типовой проект 903-1-224.86Типовой проект 903-1-224.86Типовой проект 903-1-224.86Типовой проект 903-1-224.86Типовой проект 903-1-224.86Типовой проект 903-1-224.86Типовой проект 903-1-224.86Типовой проект 903-1-224.86Типовой проект 903-1-224.86Типовой проект 903-1-224.86Типовой проект 903-1-224.86Типовой проект 903-1-224.86Типовой проект 903-1-224.86Типовой проект 903-1-224.86Типовой проект 903-1-224.86Типовой проект 903-1-224.86Типовой проект 903-1-224.86Типовой проект 903-1-224.86Типовой проект 903-1-224.86Типовой проект 903-1-224.86Типовой проект 903-1-224.86Типовой проект 903-1-224.86Типовой проект 903-1-224.86Типовой проект 903-1-224.86Типовой проект 903-1-224.86Типовой проект 903-1-224.86Типовой проект 903-1-224.86Типовой проект 903-1-224.86Типовой проект 903-1-224.86Типовой проект 903-1-224.86Типовой проект 903-1-224.86Типовой проект 903-1-224.86Типовой проект 903-1-224.86Типовой проект 903-1-224.86Типовой проект 903-1-224.86Типовой проект 903-1-224.86Типовой проект 903-1-224.86Типовой проект 903-1-224.86Типовой проект 903-1-224.86Типовой проект 903-1-224.86Типовой проект 903-1-224.86Типовой проект 903-1-224.86Типовой проект 903-1-224.86Типовой проект 903-1-224.86Типовой проект 903-1-224.86Типовой проект 903-1-224.86Типовой проект 903-1-224.86Типовой проект 903-1-224.86Типовой проект 903-1-224.86Типовой проект 903-1-224.86Типовой проект 903-1-224.86Типовой проект 903-1-224.86Типовой проект 903-1-224.86Типовой проект 903-1-224.86

© 2013 Ёшкин Кот :-) Карта сайта