Информационная система
«Ёшкин Кот»

Скачать базу одним архивом
Скачать обновления
История создания базы
Карта сайта

Скачать Типовой проект 903-1-224.86 Альбом 2.4. Часть 1. Металлоконструкции газовоздухопроводов для блок-секции котлоагрегата КВ-ТС-10 (вариант без воздухоподогревателя)

Дата актуализации: 10.08.2017

Типовой проект 903-1-224.86

Альбом 2.4. Часть 1. Металлоконструкции газовоздухопроводов для блок-секции котлоагрегата КВ-ТС-10 (вариант без воздухоподогревателя)

Обозначение: Типовой проект 903-1-224.86
Обозначение англ: 903-1-224.86
Статус:действует
Название рус.:Альбом 2.4. Часть 1. Металлоконструкции газовоздухопроводов для блок-секции котлоагрегата КВ-ТС-10 (вариант без воздухоподогревателя)
Дата добавления в базу:01.10.2014
Дата актуализации:05.05.2017
Оглавление:Воздуховоды котла КВ-ТС-10
   64.88.01.100СБ Воздухозаборник
   64.88.01.000 Воздухопровод всасывающий
   64.88.01.100 Воздухозаборник
   64.88.01.111 Боковина
   64.88.01.112 Стенка
   64.88.01.000СБ Воздухопровод всасывающий
   64.88.01.110 Короб
   64.88.01.113 Стенка
   64.88.01.110СБ Короб
   64.88.01.120 Фланец
   64.88.01.120СБ Фланец
   64.88.01.200 Короб
   64.88.01.200СБ Короб
   64.88.01.300 Короб с заслонкой
   64.88.01.301 Вал
   64.88.01.300СБ Короб с заслонкой
   64.88.01.302 Шайба
   64.88.01.310 Короб
   64.88.01.310СБ Короб
   64.88.01.311 Боковина
   64.88.01.312 Стенка
   64.88.01.313 Бобышка
   64.88.01.314 Усилитель
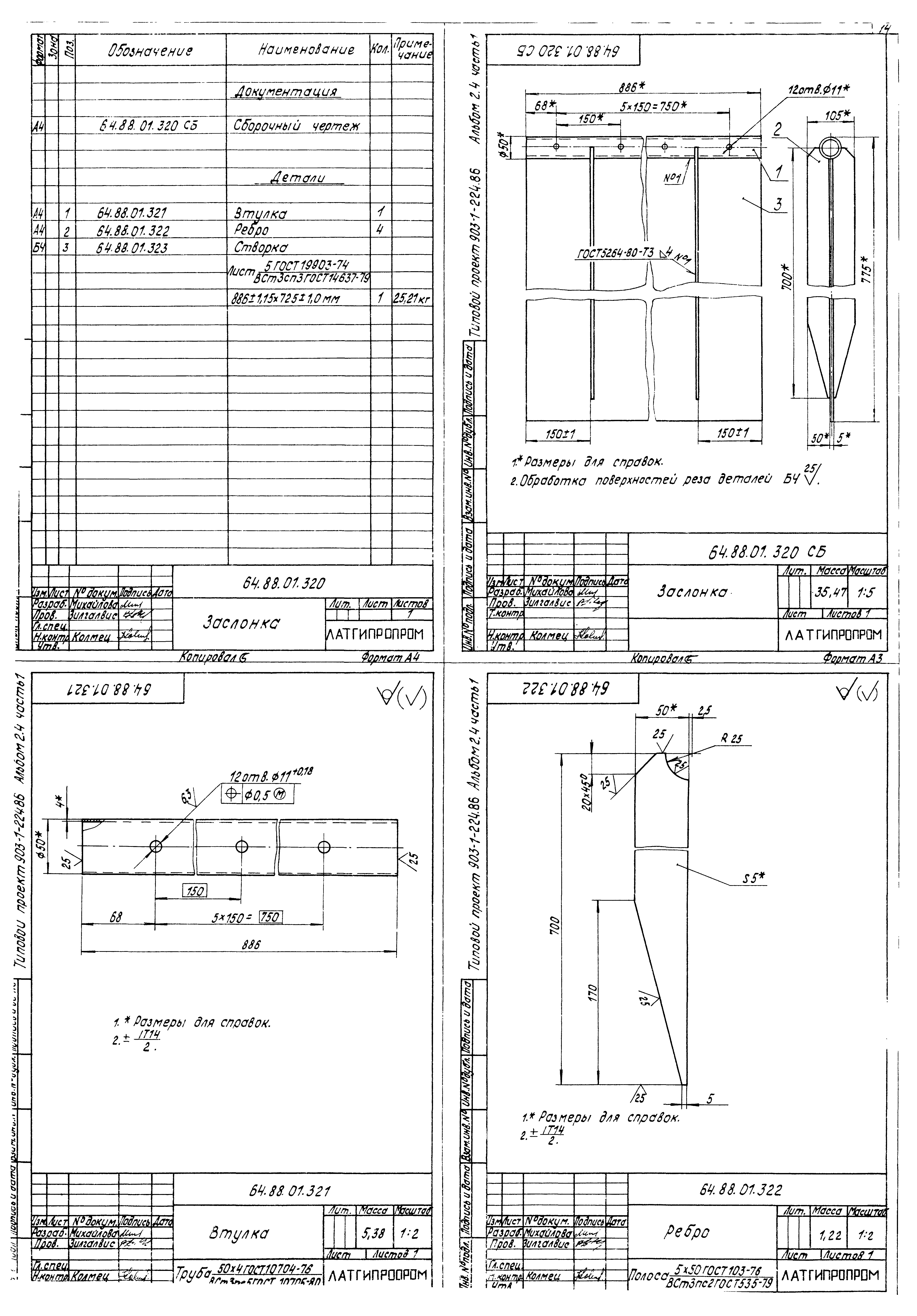
   64.88.01.320 Заслонка
   64.88.01.320СБ Заслонка
   64.88.01.321 Втулка
   64.88.01.322 Ребро
   64.88.01.400 Короб
   64.88.01.400СБ Короб
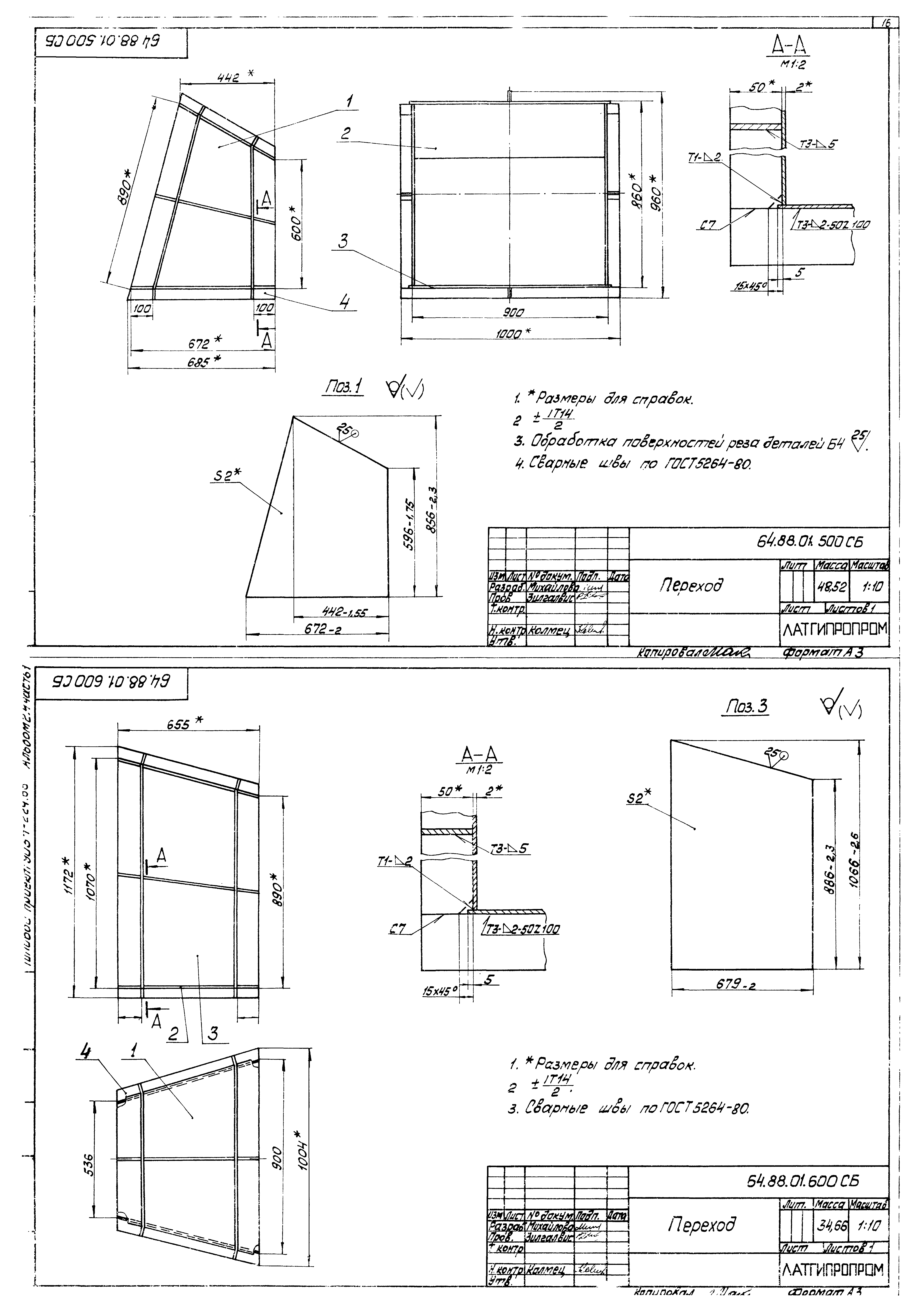
   64.88.01.500 Переход
   64.88.01.600 Переход
   64.88.01.500СБ Переход
   64.88.01.600СБ Переход
   64.88.01.601 Стенка
   64.30.02.000 Карман
   64.30.02.000СБ Карман
   64.30.02.001 Стенка
   64.30.02.002 Стенка
   64.30.02.003 Полуконус
   64.30.02.005 Боковина
   64.30.02.004 Фланец
   64.30.02.006 Конус
   64.30.02.007 Удлинитель
   58.02.00.000 Люк лаза
   58.02.00.000СБ Люк лаза
   58.02.00.001 Прокладка
   58.02.01.000 Фланец
   58.02.01.000СБ Фланец
   58.02.02.000 Крышка
   58.02.02.000СБ Крышка
   58.02.02.001 Ручка
   64.88.02.000 Короб
   64.88.02.000СБ Короб
   64.88.02.100 Переход
   64.88.02.101 Стенка
   64.88.02.100СБ Переход
   64.88.02.102 Стенка
   64.88.02.103 Стенка
   64.88.02.110 Фланец
   64.88.02.110СБ Фланец
   64.88.02.200 Колено
   64.88.02.300 Короб
   64.88.02.200СБ Колено
   64.88.02.300СБ Короб
   64.88.02.400 Короб
   64.88.02.400СБ Короб
   64.88.03.000 Короб
   64.88.03.100 Короб
   64.88.03.000СБ Короб
   64.88.03.101 Стенка
   64.88.03.100СБ Короб
   64.88.03.102 Стенка
   64.88.03.200 Патрубок
   64.88.03.200СБ Патрубок
   64.88.03.300СБ Патрубок
   64.88.03.300 Патрубок
   64.88.04.000 Колено
   64.88.04.000СБ Колено
   64.88.04.001 Стенка
   64.88.04.002 Стенка
   64.88.04.003 Стенка
   64.88.05.000 Колено
   64.88.05.000СБ Колено
   64.88.05.100СБ Патрубок
   64.88.07.200 Колено
   64.88.07.201 Стенка
   64.88.07.200СБ Колено
   64.88.07.400 Колено
   64.88.07.401 Стенка
   64.88.07.400СБ Колено
   64.88.05.100 Патрубок
   64.88.05.200 Короб
   64.88.05.200СБ Короб
   64.88.05.300СБ Короб
   64.88.05.300 Короб
   64.88.06.000 Опора
   64.88.06.000СБ Опора
   64.88.07.000 Опора
   64.88.07.000СБ Опора
   64.88.07.001 Распорка
Газоходы котла КВ-ТС-10
   65.120.01.000 Переход
   65.120.01.000СБ Переход
   65.120.01.100 Колено
   65.120.01.101 Стенка
   65.120.01.100СБ Колено
   65.120.01.102 Стенка
   65.120.01.103 Стенка
   65.120.01.200 Переход
   65.120.01.201 Стенка
   65.120.01.200СБ Переход
   65.120.01.300 Короб
   65.120.02.000 Колено
   65.120.01.300СБ Короб
   65.120.02.000СБ Колено
   65.120.02.100 Колено
   65.120.02.100СБ Колено
   65.120.02.101 Стенка
   65.120.02.102 Стенка
   65.120.02.200 Короб
   65.120.02.200СБ Короб
   65.120.02.300 Переход
   65.120.02.301 Стенка
   65.120.02.300СБ Переход
   65.120.02.302 Стенка
   65.120.03.000 Переход
   65.120.03.000СБ Переход
   65.120.03.100СБ Колено
   65.120.03.100 Колено
   65.120.03.200 Короб
   65.120.03.101 Стенка
   65.120.03.102 Стенка
   65.120.03.200СБ Короб
   65.120.03.300 Переход
   65.120.03.300СБ Переход
   65.120.03.301 Стенка
   65.120.03.400 Переход
   65.120.03.400СБ Переход
   65.120.03.401 Стенка
   65.120.03.402 Стенка
   65.120.03.500 Колено
   65.120.03.501 Стенка
   65.120.03.500СБ Колено
   65.120.04.000 Короб
   65.120.03.502 Стенка
   65.120.04.100СБ Короб
   65.120.04.100 Короб
   65.120.04.000СБ Короб
   65.120.04.200 Переход
   65.120.04.201 Стенка
   65.120.04.200СБ Переход
   65.120.04.202 Стенка
   65.120.04.300 Переход
   65.120.04.300СБ Переход
   65.120.04.301 Стенка
   65.29.04.000 Карман
   65.29.04.000СБ Карман
   65.29.04.001 Боковина
   65.29.04.003 Стенка
   65.29.04.004 Полуконус
   65.29.04.002 Стенка
   65.29.04.005 Конус
   65.29.04.006 Фланец
   65.29.04.007 Удлинитель
   65.120.05.000 Переход
   65.120.05.001 Стенка
   65.120.05.000СБ Переход
   65.120.05.002 Стенка
   65.120.05.003 Стенка
   65.120.06.000 Патрубок
   65.120.07.000 Колено
   65.120.06.000СБ Патрубок
   65.120.07.000СБ Колено
   65.120.07.100 Короб
   65.120.07.200 Колено
   65.120.07.100СБ Короб
   65.120.07.200СБ Колено
   65.120.07.300 Переход
   65.120.07.400 Короб
   65.120.07.300СБ Переход
   65.120.07.400СБ Короб
   65.120.08.000 Опора
   65.120.08.000СБ Опора
   65.120.09.000 Опора
   65.120.10.000 Опора
   65.120.09.000СБ Опора
   65.120.10.000СБ Опора
   65.120.11.000 Подвеска
   65.120.11.000СБ Подвеска
   65.120.11.001 Балка
   65.120.11.002 Тяга
Разработан: Латгипропром
Утверждён:20.05.1986 Госстрой СССР (Государственный комитет Совета Министров СССР по делам строительства) (USSR Gosstroy АЧ-29)
Расположен в:Техническая документация Строительство Справочные документы Типовые строительные конструкции, изделия и узлы Общероссийский строительный каталог Промышленные предприятия, здания и сооружения Здания и сооружения санитарно-технические Теплоснабжение Котельные установки Открытые системы теплоснабжения Топливо - каменные и бурые угли
Заменяет собой:
  • Типовой проект 903-1-148
Типовой проект 903-1-224.86Типовой проект 903-1-224.86Типовой проект 903-1-224.86Типовой проект 903-1-224.86Типовой проект 903-1-224.86Типовой проект 903-1-224.86Типовой проект 903-1-224.86Типовой проект 903-1-224.86Типовой проект 903-1-224.86Типовой проект 903-1-224.86Типовой проект 903-1-224.86Типовой проект 903-1-224.86Типовой проект 903-1-224.86Типовой проект 903-1-224.86Типовой проект 903-1-224.86Типовой проект 903-1-224.86Типовой проект 903-1-224.86Типовой проект 903-1-224.86Типовой проект 903-1-224.86Типовой проект 903-1-224.86Типовой проект 903-1-224.86Типовой проект 903-1-224.86Типовой проект 903-1-224.86Типовой проект 903-1-224.86Типовой проект 903-1-224.86Типовой проект 903-1-224.86Типовой проект 903-1-224.86Типовой проект 903-1-224.86Типовой проект 903-1-224.86Типовой проект 903-1-224.86Типовой проект 903-1-224.86Типовой проект 903-1-224.86Типовой проект 903-1-224.86Типовой проект 903-1-224.86Типовой проект 903-1-224.86Типовой проект 903-1-224.86Типовой проект 903-1-224.86Типовой проект 903-1-224.86Типовой проект 903-1-224.86Типовой проект 903-1-224.86Типовой проект 903-1-224.86Типовой проект 903-1-224.86Типовой проект 903-1-224.86Типовой проект 903-1-224.86Типовой проект 903-1-224.86Типовой проект 903-1-224.86Типовой проект 903-1-224.86Типовой проект 903-1-224.86Типовой проект 903-1-224.86Типовой проект 903-1-224.86Типовой проект 903-1-224.86Типовой проект 903-1-224.86Типовой проект 903-1-224.86Типовой проект 903-1-224.86Типовой проект 903-1-224.86Типовой проект 903-1-224.86Типовой проект 903-1-224.86Типовой проект 903-1-224.86Типовой проект 903-1-224.86Типовой проект 903-1-224.86Типовой проект 903-1-224.86Типовой проект 903-1-224.86Типовой проект 903-1-224.86Типовой проект 903-1-224.86Типовой проект 903-1-224.86Типовой проект 903-1-224.86Типовой проект 903-1-224.86Типовой проект 903-1-224.86Типовой проект 903-1-224.86Типовой проект 903-1-224.86

© 2013 Ёшкин Кот :-) Карта сайта