Информационная система
«Ёшкин Кот»

Скачать базу одним архивом
Скачать обновления
История создания базы
Карта сайта

Скачать Типовой проект 903-1-224.86 Альбом 2.2. Строительно-технологическая блок-секция котлоагрегата КВ-ТС(В)-10. Тепломеханическая часть (вариант с воздухоподогревателем)

Дата актуализации: 10.08.2017

Типовой проект 903-1-224.86

Альбом 2.2. Строительно-технологическая блок-секция котлоагрегата КВ-ТС(В)-10. Тепломеханическая часть (вариант с воздухоподогревателем)

Обозначение: Типовой проект 903-1-224.86
Обозначение англ: 903-1-224.86
Статус:действует
Название рус.:Альбом 2.2. Строительно-технологическая блок-секция котлоагрегата КВ-ТС(В)-10. Тепломеханическая часть (вариант с воздухоподогревателем)
Дата добавления в базу:01.10.2014
Дата актуализации:05.05.2017
Оглавление:Основной комплект рабочих чертежей марки ТМ5
   Общие данные
   Ведомость теплоизоляционных конструкций и антикоррозийных покрытий
   Блок-секция котлоагрегата КВ-ТСВ-10. Вид сверху. План Б-Б
   Блок-секция котлоагрегата КВ-ТСВ-10. Разрез А-А
   Воздуховоды котла КВ-ТСВ-10. Разрез А-А. Фланцы
   Воздуховоды котла КВ-ТСВ-10. Разрезы Б-Б, В-В, К-К, Л-Л. Узел I
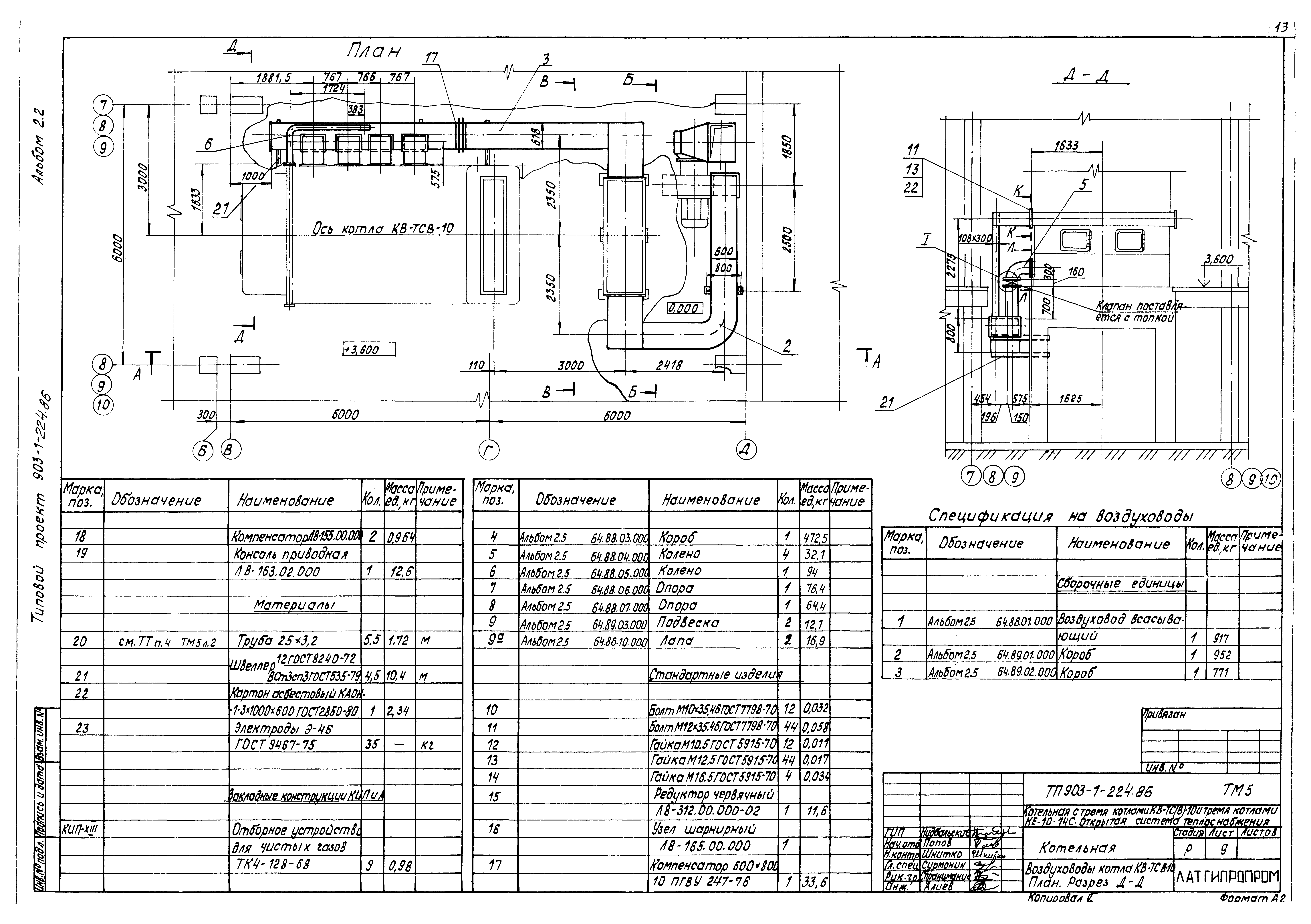
   Воздуховоды котла КВ-ТСВ-10. План. Разрез Д-Д
   Газоходы котла КВ-ТСВ-10. Вид сверху. Разрез Г-Г. Фланцы
   Газоходы котла КВ-ТСВ-10. Разрезы А-А, В-В
   Газоходы котла КВ-ТСВ-10. Разрез Б-Б. Узлы I, II
   Трубопроводы сетевой воды. Разрез А-А
   Трубопроводы подключения предохранительных клапанов. План. Разрез А-А
   Схема дренажа и продувки котла КВ-ТСВ-10
   Подъемник ПСК для шлакоудаления. План. Узлы I, II. Таблица комплектации и характеристика
   Подъемник ПСК для шлакоудаления. Разрезы А-А, Б-Б
   Подъемник ПСК для шлакоудаления. Узлы III, IV. Разрезы В-В, Г-Г, Д-Д, Е-Е
   Подъемник ПСК для шлакоудаления. Принципиальная схема монтажа каната
   Топливоподача и золошлакоудаление. Общий вид
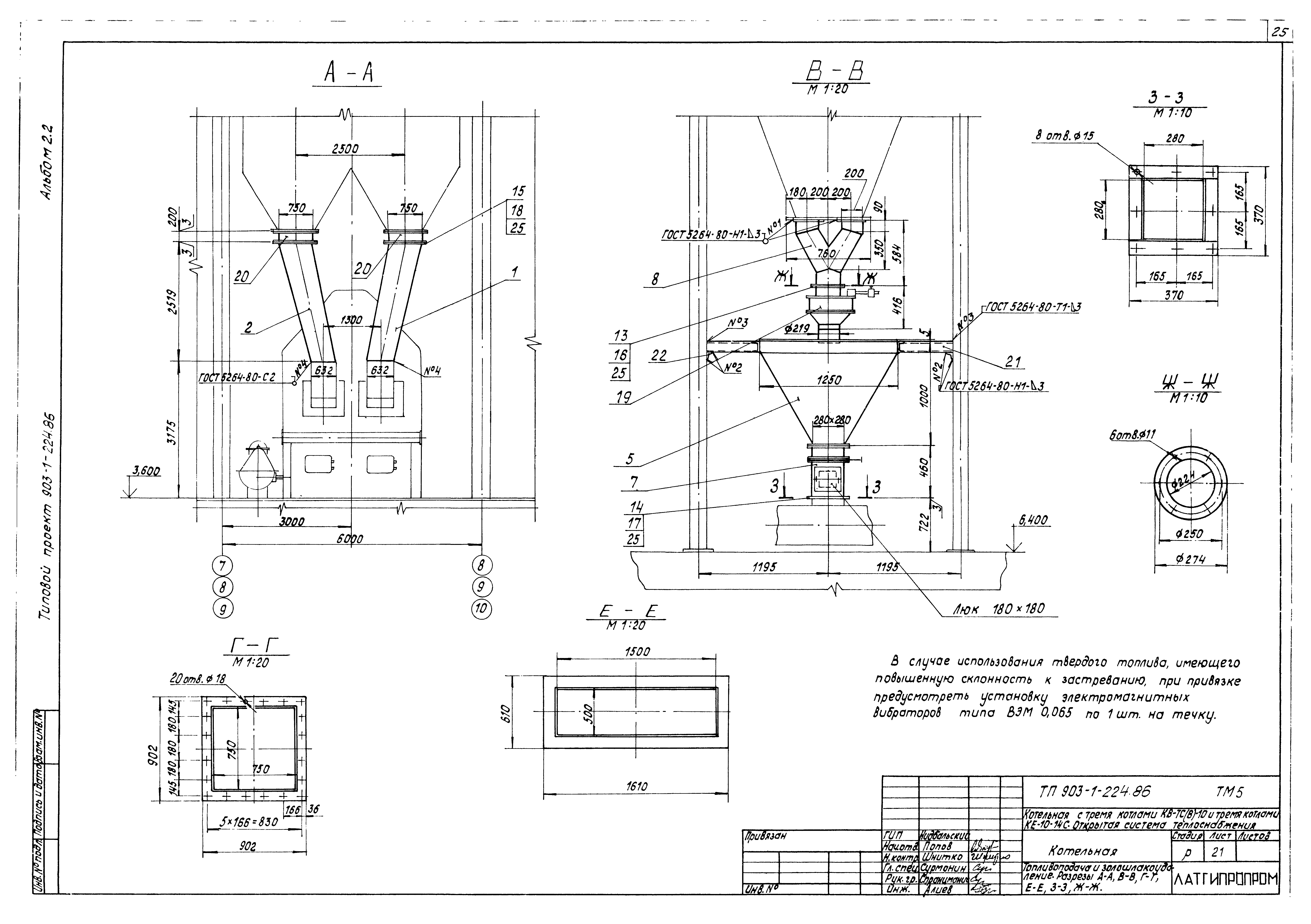
   Топливоподача и золошлакоудаление. Разрезы А-А, В-В, Г-Г, Е-Е, З-З, Ж-Ж
   Топливоподача и золошлакоудаление. Разрезы Б-Б, Д-Д, М-М, Н-Н. Вид К
   Трубопровод острого дутья и возврата уноса. План. Разрезы А-А, Б-Б, В-В
   Обмуровка предтопка и шлакового бункера. Общий вид. Разрез А-А. Узел I
Разработан: Латгипропром
Утверждён:20.05.1986 Госстрой СССР (Государственный комитет Совета Министров СССР по делам строительства) (USSR Gosstroy АЧ-29)
Расположен в:Техническая документация Строительство Справочные документы Типовые строительные конструкции, изделия и узлы Общероссийский строительный каталог Промышленные предприятия, здания и сооружения Здания и сооружения санитарно-технические Теплоснабжение Котельные установки Открытые системы теплоснабжения Топливо - каменные и бурые угли
Заменяет собой:
  • Типовой проект 903-1-148
Типовой проект 903-1-224.86Типовой проект 903-1-224.86Типовой проект 903-1-224.86Типовой проект 903-1-224.86Типовой проект 903-1-224.86Типовой проект 903-1-224.86Типовой проект 903-1-224.86Типовой проект 903-1-224.86Типовой проект 903-1-224.86Типовой проект 903-1-224.86Типовой проект 903-1-224.86Типовой проект 903-1-224.86Типовой проект 903-1-224.86Типовой проект 903-1-224.86Типовой проект 903-1-224.86Типовой проект 903-1-224.86Типовой проект 903-1-224.86Типовой проект 903-1-224.86Типовой проект 903-1-224.86Типовой проект 903-1-224.86Типовой проект 903-1-224.86Типовой проект 903-1-224.86Типовой проект 903-1-224.86Типовой проект 903-1-224.86Типовой проект 903-1-224.86Типовой проект 903-1-224.86Типовой проект 903-1-224.86Типовой проект 903-1-224.86Типовой проект 903-1-224.86Типовой проект 903-1-224.86

© 2013 Ёшкин Кот :-) Карта сайта