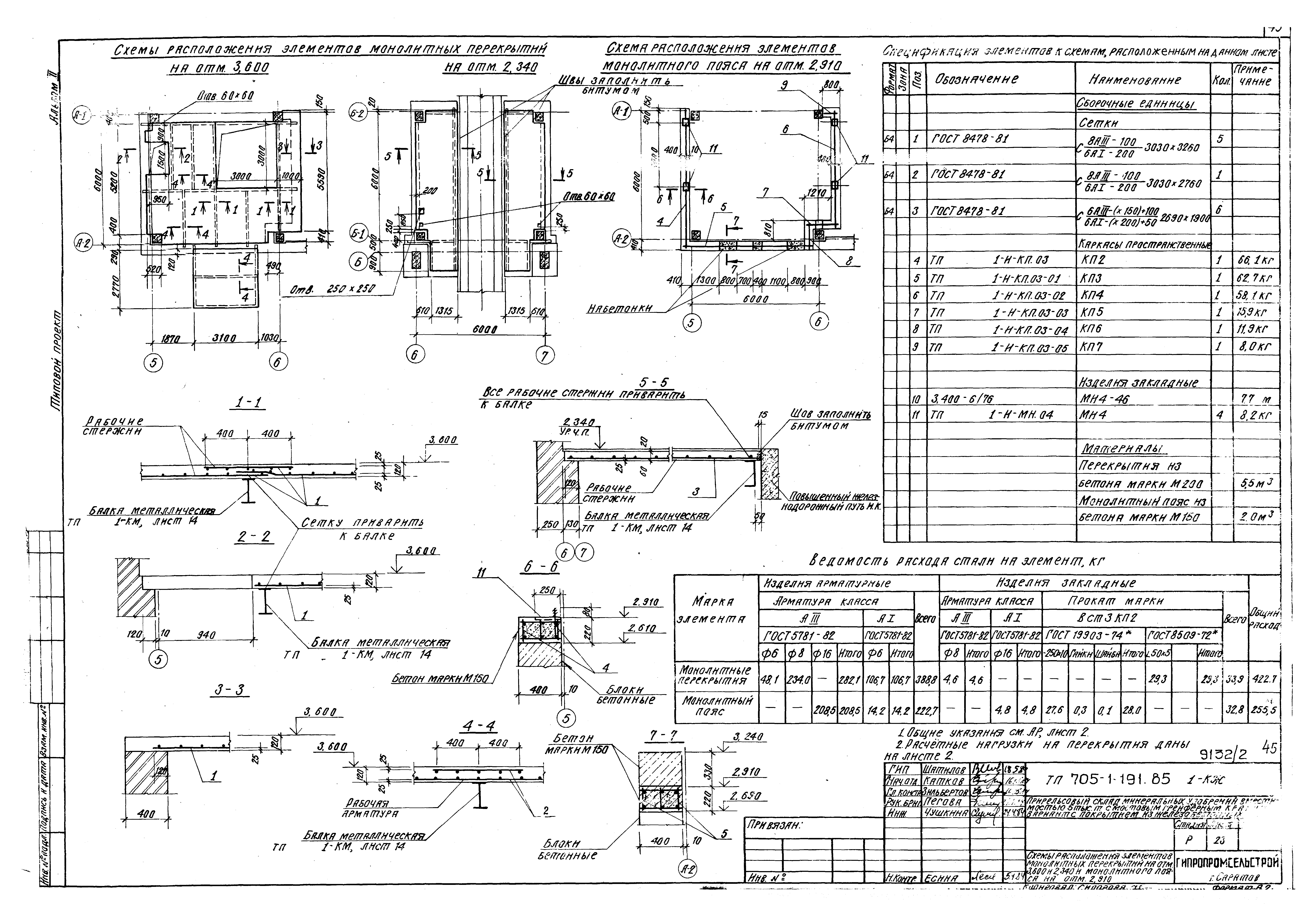
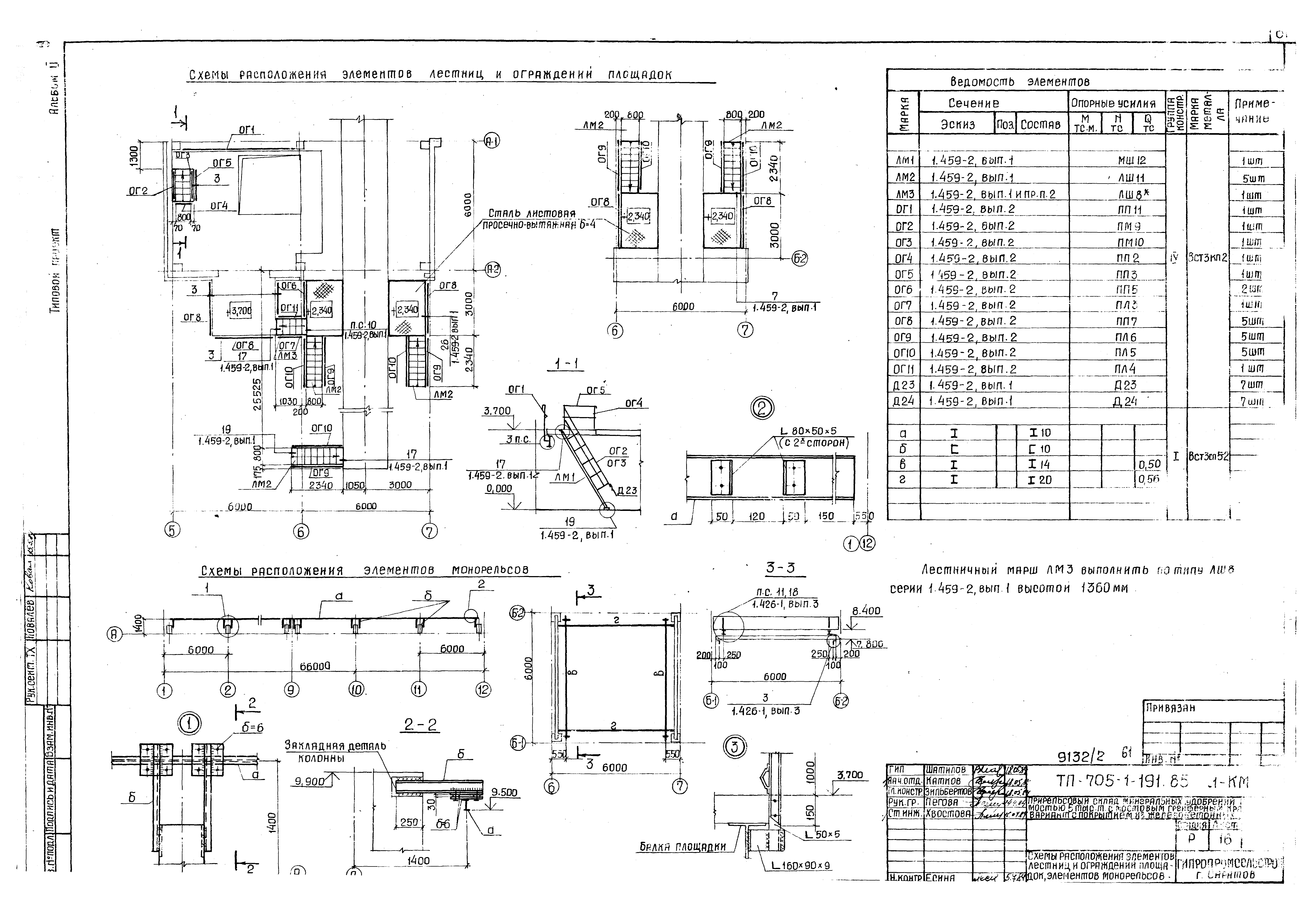
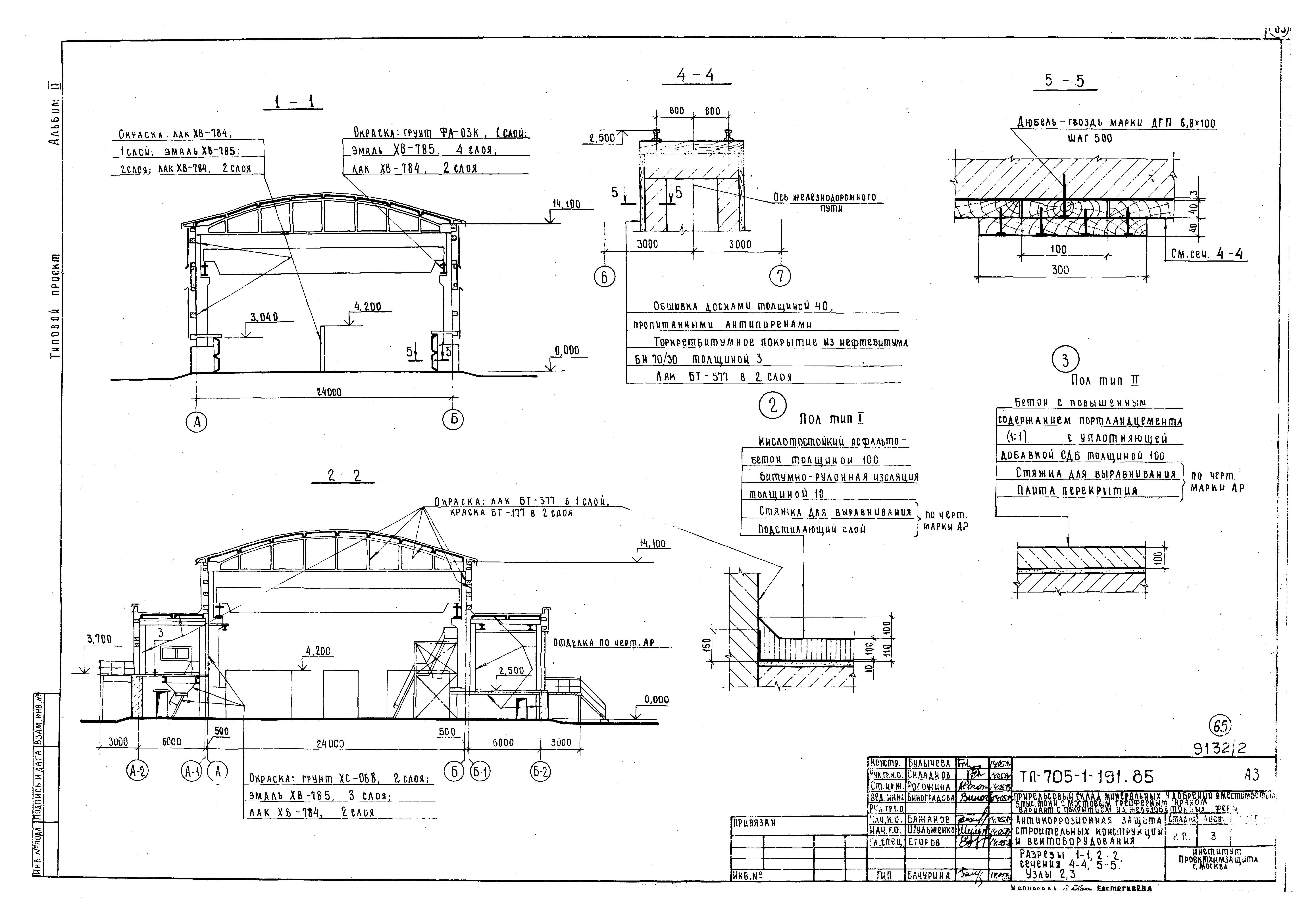
Скачать Типовой проект 705-1-191.85 Альбом II. Архитектурные решения. Конструкции железобетонные. Конструкции металлические. Антикоррозийная защита конструкций и оборудованияДата актуализации: 10.08.2017 Типовой проект 705-1-191.85
Альбом II. Архитектурные решения. Конструкции железобетонные. Конструкции металлические. Антикоррозийная защита конструкций и оборудованияОбозначение: | Типовой проект 705-1-191.85 | Обозначение англ: | 705-1-191.85 | Статус: | не действует | Название рус.: | Альбом II. Архитектурные решения. Конструкции железобетонные. Конструкции металлические. Антикоррозийная защита конструкций и оборудования | Дата добавления в базу: | 01.09.2013 | Дата актуализации: | 05.05.2017 | Разработан: | Гипропромсельстрой
| Утверждён: | 20.12.1984 Министерство сельского хозяйства и продовольствия Российской Федерации (105-ЭГ)
| Расположен в: |
|
                                                                 
|