Информационная система
«Ёшкин Кот»

Скачать базу одним архивом
Скачать обновления
История создания базы
Карта сайта

Скачать Типовой проект 902-2-344 Альбом II. Конструкции железобетонные

Дата актуализации: 10.08.2017

Типовой проект 902-2-344

Альбом II. Конструкции железобетонные

Обозначение: Типовой проект 902-2-344
Обозначение англ: 902-2-344
Статус:не определен законодательством
Название рус.:Альбом II. Конструкции железобетонные
Дата добавления в базу:01.09.2013
Дата актуализации:05.05.2017
Дата введения:05.02.1981
Оглавление:ТП 902-2-344-КЖ-1 Общие данные (начало)
ТП 902-2-344-КЖ-2 Общие данные (продолжение)
ТП 902-2-344-КЖ-3 Общие данные (продолжение)
ТП 902-2-344-КЖ-4 Общие данные (продолжение)
ТП 902-2-344-КЖ-5 Общие данные (продолжение)
ТП 902-2-344-КЖ-6 Общие данные (продолжение)
ТП 902-2-344-КЖ-7 Общие данные (продолжение)
ТП 902-2-344-КЖ-8 Общие данные (продолжение)
ТП 902-2-344-КЖ-9 Общие данные (окончание)
ТП 902-2-344-КЖ-10 Компоновочные планы на 5 и 10 секций
ТП 902-2-344-КЖ-11 Компоновочные планы на 6 и 9 секций
ТП 902-2-344-КЖ-12 Компоновочные планы на 7 и 8 секций
ТП 902-2-344-КЖ-13 План, узлы
ТП 902-2-344-КЖ-14 Разрезы
ТП 902-2-344-КЖ-15 Секция "А". Днище. Опалубочный чертеж. План, разрезы
ТП 902-2-344-КЖ-16 Секция "Б". Днище. Опалубочный чертеж. План, разрезы
ТП 902-2-344-КЖ-17 Секция "В". Днище. Опалубочный чертеж. План, разрезы
ТП 902-2-344-КЖ-18 Секции "А,Б,В". Днище. Опалубочный чертеж. Сечения
ТП 902-2-344-КЖ-19 Секции "А,Б,В". Днище. Опалубочный чертеж. Узлы
ТП 902-2-344-КЖ-20 Секции "А,Б,В". Днище. Спецификация элементов монолитной конструкции
ТП 902-2-344-КЖ-21 Секция "А". Днище. Арматурный чертеж. Раскладка нижней арматуры
ТП 902-2-344-КЖ-22 Секция "А". Днище. Арматурный чертеж. Раскладка верхней арматуры
ТП 902-2-344-КЖ-23 Секция "А". Днище. Ведомость одиночных стержней
ТП 902-2-344-КЖ-24 Секция "Б". Днище. Арматурный чертеж. Раскладка нижней арматуры
ТП 902-2-344-КЖ-25 Секция "Б". Днище. Арматурный чертеж. Раскладка верхней арматуры
ТП 902-2-344-КЖ-26 Секция "Б". Днище. Ведомость одиночных стержней
ТП 902-2-344-КЖ-27 Секция "В". Днище. Арматурный чертеж. Раскладка нижней арматуры
ТП 902-2-344-КЖ-28 Секция "В". Днище. Арматурный чертеж. Раскладка верхней арматуры
ТП 902-2-344-КЖ-29 Секция "В". Днище. Ведомость одиночных стержней
ТП 902-2-344-КЖ-30 Секции "А,Б,В". Днище. Арматурный чертеж. Сечения 1-1÷6-6
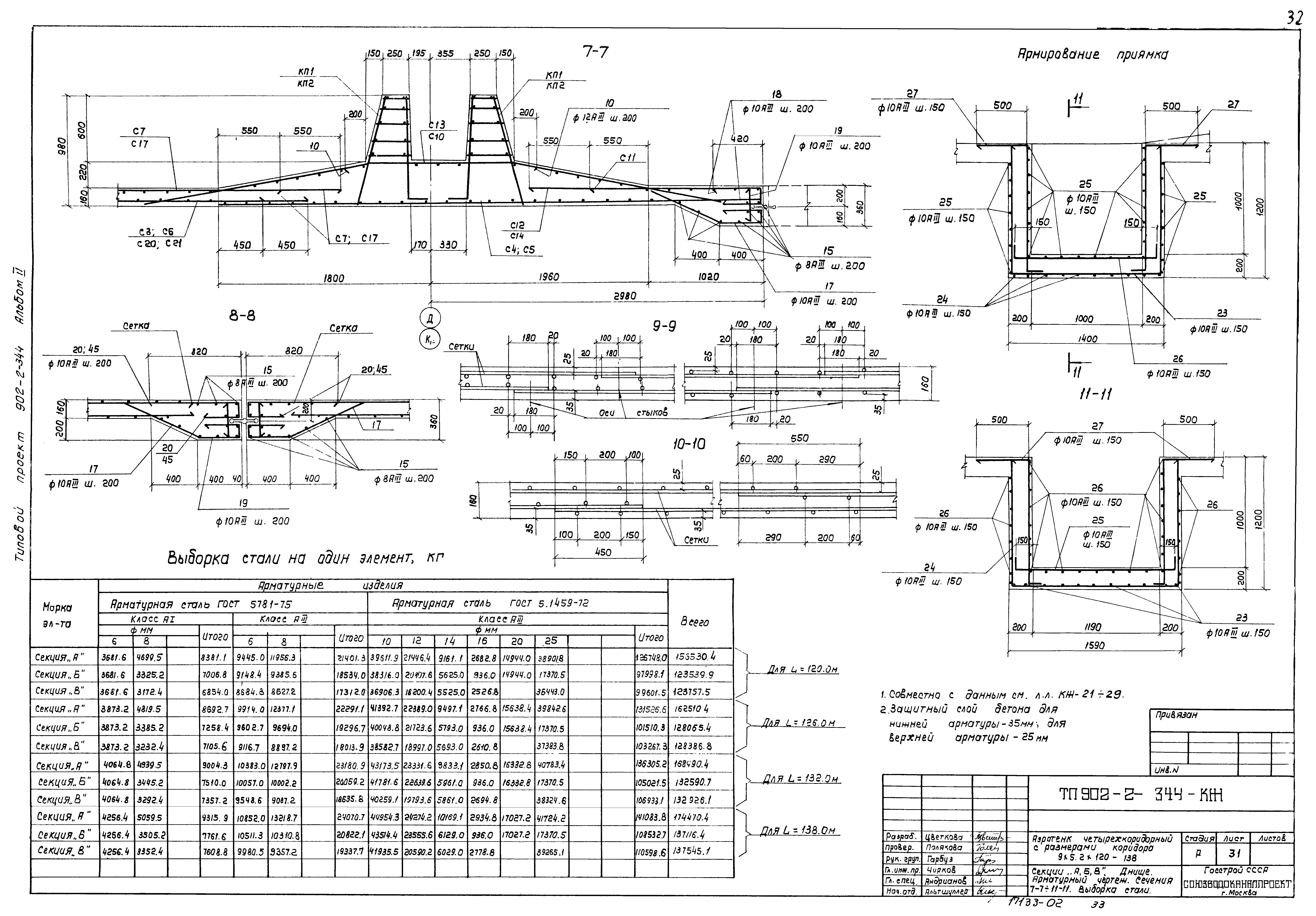
ТП 902-2-344-КЖ-31 Секции "А,Б,В". Днище. Арматурный чертеж. Сечения 7-7÷11. Выборка стали
ТП 902-2-344-КЖ-32 Секция "А". Монтажный чертеж стен. План
ТП 902-2-344-КЖ-33 Секция "Б". Монтажный чертеж стен. План
ТП 902-2-344-КЖ-34 Секция "В". Монтажный чертеж стен. План
ТП 902-2-344-КЖ-35 Монтажный чертеж стен. Виды 1-1÷4-4
ТП 902-2-344-КЖ-36 Монтажный чертеж стен. Виды 5-5÷9-9
ТП 902-2-344-КЖ-37 Монтажный чертеж стен. Виды 10-10÷17-17
ТП 902-2-344-КЖ-38 Монтажный чертеж стен. Узлы
ТП 902-2-344-КЖ-39 Монолитные участки УМ-1,2,3,4. Опалубочный чертеж
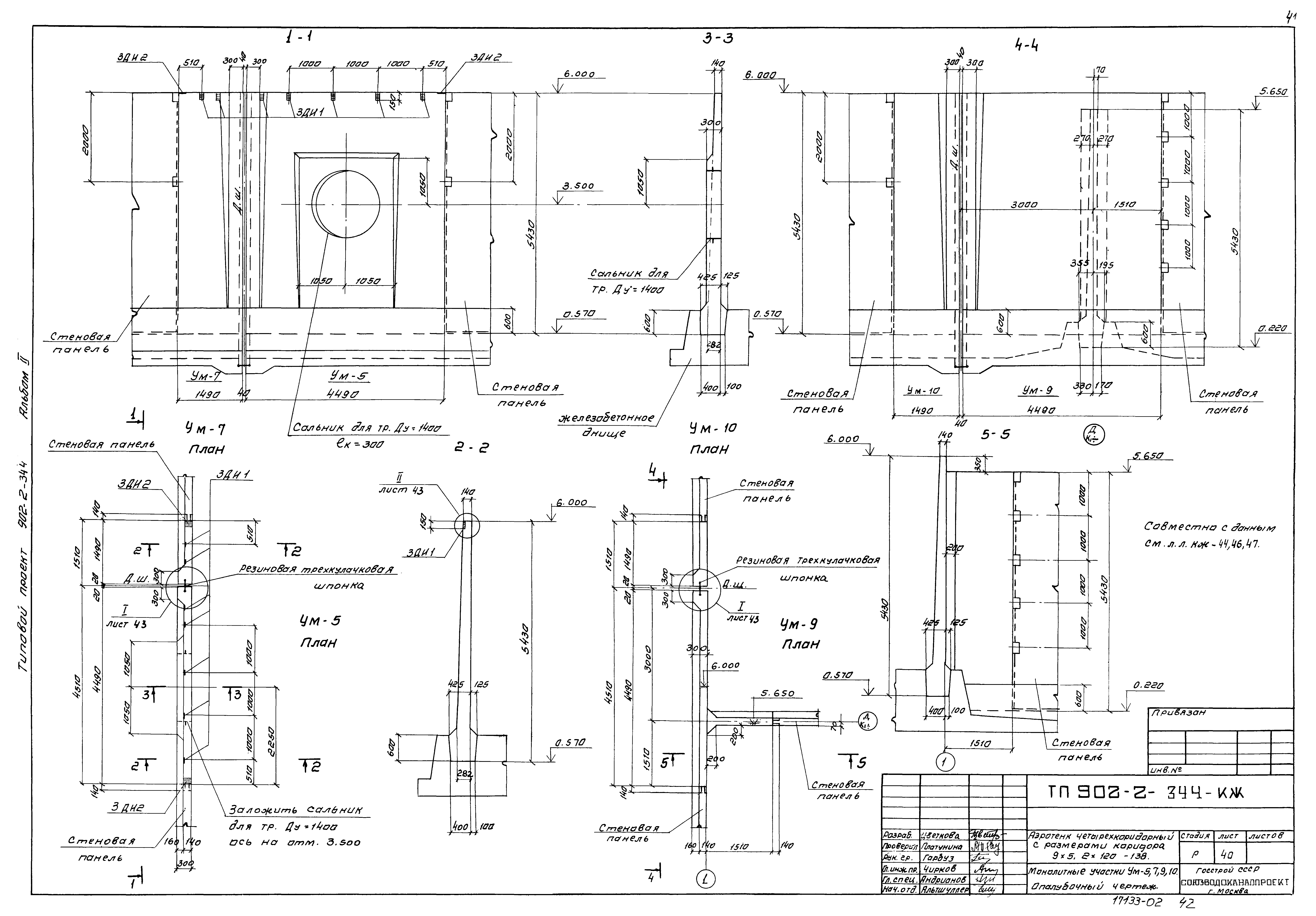
ТП 902-2-344-КЖ-40 Монолитные участки УМ-5,7,9,10. Опалубочный чертеж
ТП 902-2-344-КЖ-41 Монолитные участки УМ-6,8,11,12,13,14. Опалубочный чертеж
ТП 902-2-344-КЖ-42 Монолитные участки УМ-15,16,17,18 Опалубочный чертеж
ТП 902-2-344-КЖ-43 Монолитные участки УМ-19,20. Узлы. Опалубочный чертеж
ТП 902-2-344-КЖ-44 Монолитные участки стен. Спецификация элементов монолитной конструкции
ТП 902-2-344-КЖ-45 Монолитные участки УМ-1,2,3,4. Арматурный чертеж
ТП 902-2-344-КЖ-46 Монолитные участки УМ-5,6,7,8. Арматурный чертеж
ТП 902-2-344-КЖ-47 Монолитные участки УМ-9,10,19,20. Арматурный чертеж
ТП 902-2-344-КЖ-48 Монолитные участки УМ-11,12,13,14,15,16. Арматурный чертеж
ТП 902-2-344-КЖ-49 Монолитные участки УМ-17,18. Узлы. Арматурный чертеж
ТП 902-2-344-КЖ-50 Монолитные участки УМ-21,22,23.. Арматурно-опалубочный чертеж
ТП 902-2-344-КЖ-51 Монолитные участки УМ-1÷17,19. Спецификация арматуры
ТП 902-2-344-КЖ-52 Монолитные участки УМ-18,20÷23. Спецификация и выборка арматуры
ТП 902-2-344-КЖ-53 Монтажные планы плит, лотков и балок (L аэротенка - 120м)
ТП 902-2-344-КЖ-54 Монтажные планы плит, лотков и балок (L аэротенка - 126м)
ТП 902-2-344-КЖ-55 Монтажные планы плит, лотков и балок (L аэротенка - 132м)
ТП 902-2-344-КЖ-56 Монтажные планы плит, лотков и балок (L аэротенка - 138м)
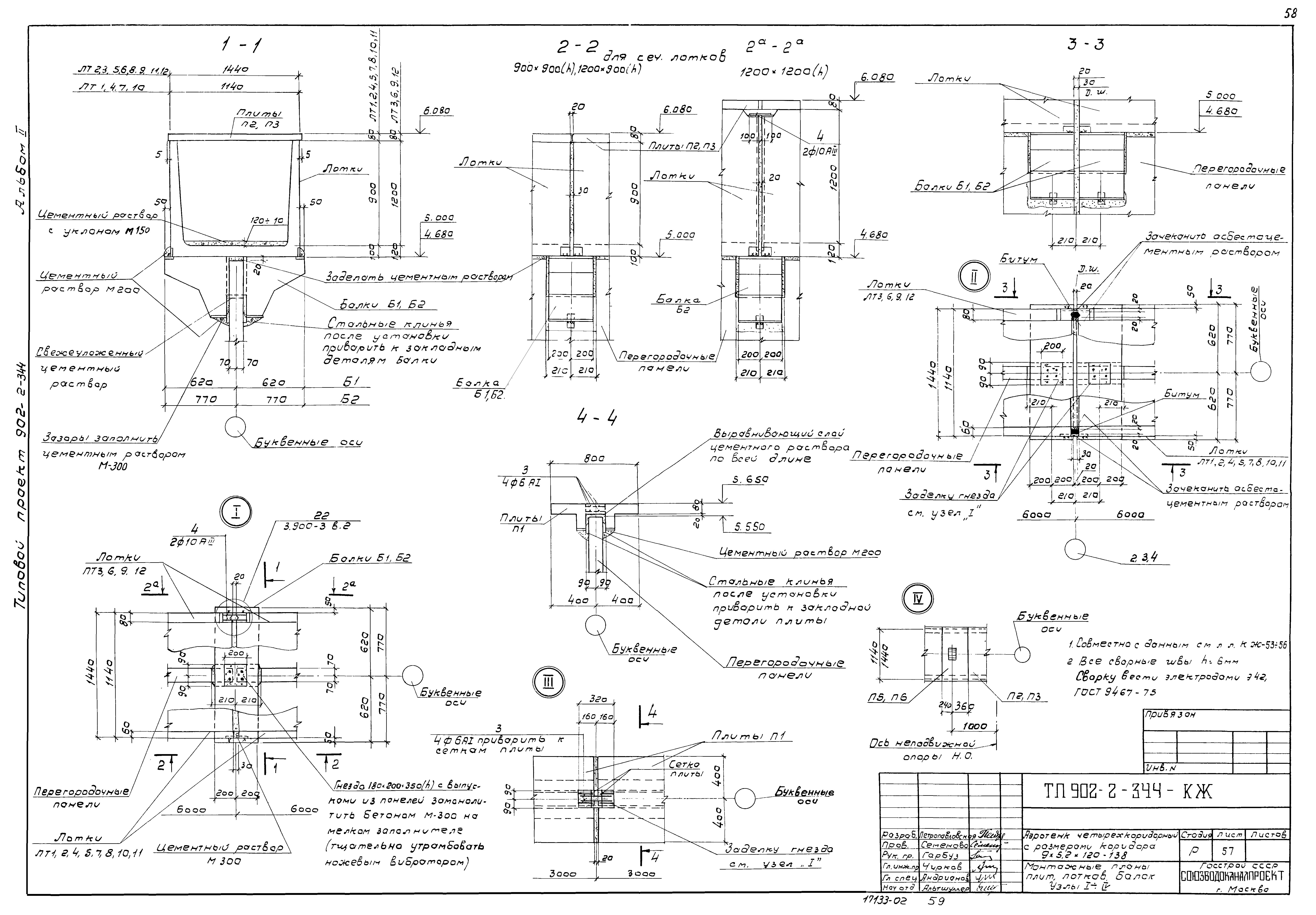
ТП 902-2-344-КЖ-57 Монтажные планы плит, лотков и балок. Узлы 1-4
ТП 902-2-344-КЖ-58 Монтажные планы плит, лотков, балок. Скользящие и неподвижные опоры
ТП 902-2-344-КЖ-59 Монолитные участки УМ-24,25,26
ТП 902-2-344-КЖ-60 Монтажный план площадок
ТП 902-2-344-КЖ-61 Монтажный план площадок. Узлы 1-6
ТП 902-2-344-КЖ-62 Монтажный план площадок. Узлы 7-10
ТП 902-2-344-КЖ-63 Конструкция водослива
ТП 902-2-344-КЖ-64 Днище. Разбивка закладных деталей в набетонке. Вариант с фильтросными каналами
ТП 902-2-344-КЖ-65 Днище. План набетонки и фильтросных каналов (7 рядов аэраторов)
ТП 902-2-344-КЖ-66 Днище. План набетонки и фильтросных каналов (14 рядов аэраторов)
ТП 902-2-344-КЖ-67 Днище. План набетонки и фильтросных каналов (21 рядов аэраторов)
ТП 902-2-344-КЖ-68 Днище. Фильтросные каналы. Узлы, детали
ТП 902-2-344-КЖ-69 Днище. Разбивка закладных деталей в набетонке. Вариант с пористыми трубами
ТП 902-2-344-КЖ-70 Днище. План набетонки под пористые трубы (7 рядов аэраторов)
ТП 902-2-344-КЖ-71 Днище. План набетонки под пористые трубы (14 рядов аэраторов)
ТП 902-2-344-КЖ-72 Днище. План набетонки под пористые трубы (21 рядов аэраторов)
ТП 902-2-344-КЖ-73 Камеры распределения ила №1,2 с помощью эрлифтов. Опалубочный чертеж. План, разрезы
ТП 902-2-344-КЖ-74 Камеры распределения ила №3,4 с помощью эрлифтов. Опалубочный чертеж. План, разрезы
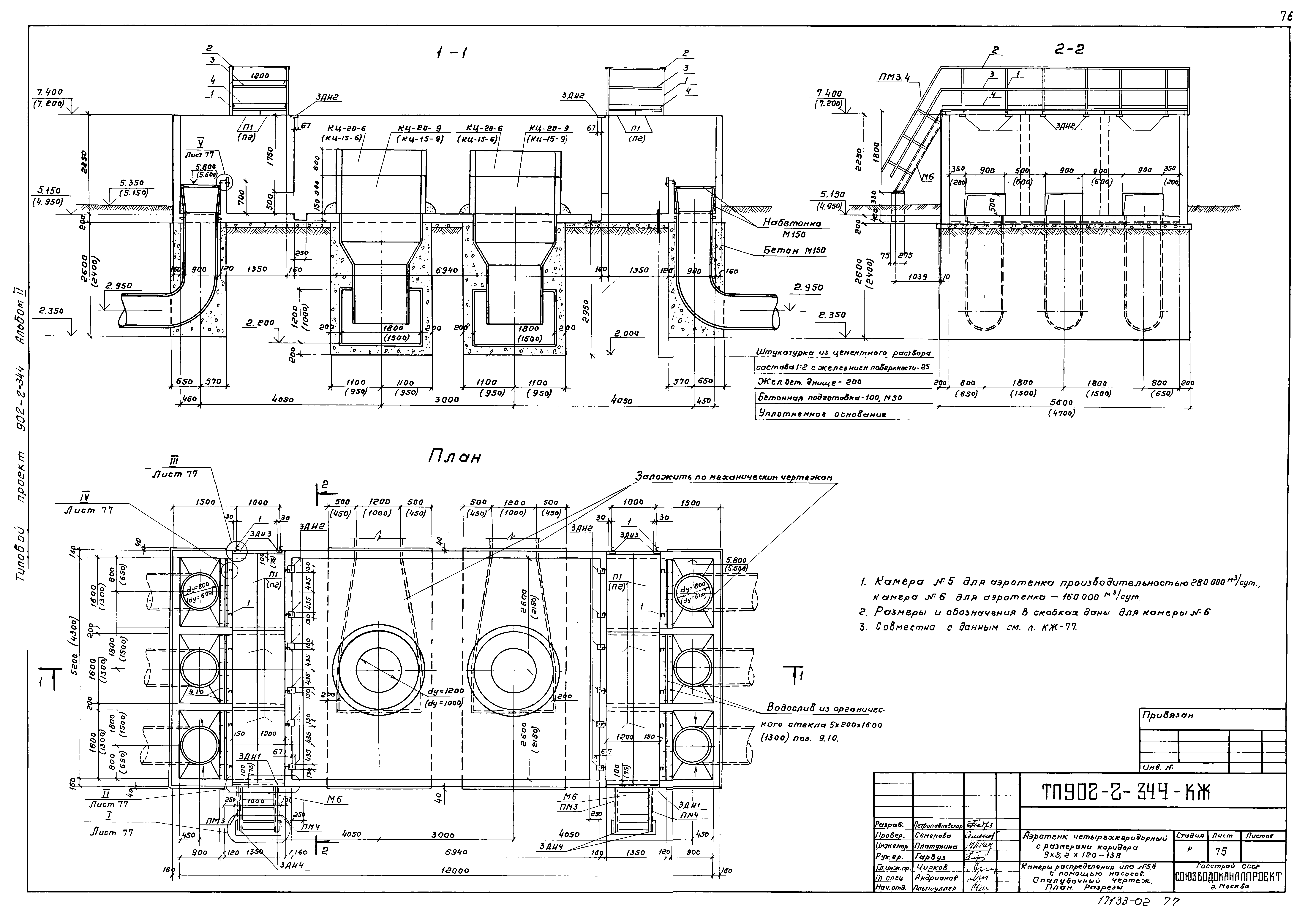
ТП 902-2-344-КЖ-75 Камеры распределения ила №5,6 с помощью эрлифтов. Опалубочный чертеж. План, разрезы
ТП 902-2-344-КЖ-76 Камеры распределения ила №7,8 с помощью эрлифтов. Опалубочный чертеж. План, разрезы
ТП 902-2-344-КЖ-77 Камеры распределения ила №1-8 с помощью эрлифтов. Опалубочный чертеж. Узлы 1-5
ТП 902-2-344-КЖ-78 Камеры распределения ила №1-8. Общие данные
ТП 902-2-344-КЖ-79 Камеры распределения ила №1,2 с помощью эрлифтов. Арматурный чертеж. Раскладка сеток стен. Разрезы
ТП 902-2-344-КЖ-80 Камеры распределения ила №1,2 с помощью эрлифтов. Арматурный чертеж. Раскладка сеток днища. Узлы
ТП 902-2-344-КЖ-81 Камеры распределения ила №3,4 с помощью эрлифтов. Арматурный чертеж. Раскладка сеток стен. Разрезы
ТП 902-2-344-КЖ-82 Камеры распределения ила №3,4 с помощью эрлифтов. Арматурный чертеж. Раскладка сеток днища. Узлы
ТП 902-2-344-КЖ-83 Камеры распределения ила №5,6 с помощью насосов. Арматурный чертеж. Раскладка сеток стен. Разрезы
ТП 902-2-344-КЖ-84 Камеры распределения ила №5,6 с помощью насосов. Арматурный чертеж. Раскладка сеток днища. Узлы
ТП 902-2-344-КЖ-85 Камеры распределения ила №7,8 с помощью насосов. Арматурный чертеж. Раскладка сеток стен. Разрезы
ТП 902-2-344-КЖ-86 Камеры распределения ила №7,8 с помощью насосов. Арматурный чертеж. Раскладка сеток днища. Узлы
ТП 902-2-344-КЖ-87 Посты гидрогеологических наблюдений за движением уровня грунтовых вод
Разработан: Союзводоканалпроект
Утверждён:12.09.1980 Союзводоканалпроект (Soyuzvodokanalproject 57)
Расположен в:Техническая документация Строительство Справочные документы Типовые строительные конструкции, изделия и узлы Общероссийский строительный каталог Промышленные предприятия, здания и сооружения Здания и сооружения санитарно-технические Канализация Сооружения биологической (биохимической) очистки Аэротенки, аэрируемые биопруды, аэроакселаторы
Типовой проект 902-2-344Типовой проект 902-2-344Типовой проект 902-2-344Типовой проект 902-2-344Типовой проект 902-2-344Типовой проект 902-2-344Типовой проект 902-2-344Типовой проект 902-2-344Типовой проект 902-2-344Типовой проект 902-2-344Типовой проект 902-2-344Типовой проект 902-2-344Типовой проект 902-2-344Типовой проект 902-2-344Типовой проект 902-2-344Типовой проект 902-2-344Типовой проект 902-2-344Типовой проект 902-2-344Типовой проект 902-2-344Типовой проект 902-2-344Типовой проект 902-2-344Типовой проект 902-2-344Типовой проект 902-2-344Типовой проект 902-2-344Типовой проект 902-2-344Типовой проект 902-2-344Типовой проект 902-2-344Типовой проект 902-2-344Типовой проект 902-2-344Типовой проект 902-2-344Типовой проект 902-2-344Типовой проект 902-2-344Типовой проект 902-2-344Типовой проект 902-2-344Типовой проект 902-2-344Типовой проект 902-2-344Типовой проект 902-2-344Типовой проект 902-2-344Типовой проект 902-2-344Типовой проект 902-2-344Типовой проект 902-2-344Типовой проект 902-2-344Типовой проект 902-2-344Типовой проект 902-2-344Типовой проект 902-2-344Типовой проект 902-2-344Типовой проект 902-2-344Типовой проект 902-2-344Типовой проект 902-2-344Типовой проект 902-2-344Типовой проект 902-2-344Типовой проект 902-2-344Типовой проект 902-2-344Типовой проект 902-2-344Типовой проект 902-2-344Типовой проект 902-2-344Типовой проект 902-2-344Типовой проект 902-2-344Типовой проект 902-2-344Типовой проект 902-2-344Типовой проект 902-2-344Типовой проект 902-2-344Типовой проект 902-2-344Типовой проект 902-2-344Типовой проект 902-2-344Типовой проект 902-2-344Типовой проект 902-2-344Типовой проект 902-2-344Типовой проект 902-2-344Типовой проект 902-2-344Типовой проект 902-2-344Типовой проект 902-2-344Типовой проект 902-2-344Типовой проект 902-2-344Типовой проект 902-2-344Типовой проект 902-2-344Типовой проект 902-2-344Типовой проект 902-2-344Типовой проект 902-2-344Типовой проект 902-2-344Типовой проект 902-2-344Типовой проект 902-2-344Типовой проект 902-2-344Типовой проект 902-2-344Типовой проект 902-2-344Типовой проект 902-2-344Типовой проект 902-2-344Типовой проект 902-2-344Типовой проект 902-2-344Типовой проект 902-2-344

© 2013 Ёшкин Кот :-) Карта сайта