Информационная система
«Ёшкин Кот»

Скачать базу одним архивом
Скачать обновления
История создания базы
Карта сайта

Скачать Шифр М8.22-1/2010 Волма-плиты. Конструкции с применением гипсовых пазогребневых плит. Часть 1. Материалы для проектирования и строительства

Дата актуализации: 10.08.2017

Шифр М8.22-1/2010

"Волма-плиты". Конструкции с применением гипсовых пазогребневых плит. Часть 1. Материалы для проектирования и строительства

Обозначение: Шифр М8.22-1/2010
Обозначение англ: М8.22-1/2010
Статус:не определен законодательством
Название рус.:"Волма-плиты". Конструкции с применением гипсовых пазогребневых плит. Часть 1. Материалы для проектирования и строительства
Дата добавления в базу:01.09.2013
Дата актуализации:05.05.2017
Дата введения:01.05.2010
Область применения:Альбом включает материалы для проектирования и рабочие чертежи узлов конструкций из гипсовых пазогребных плит толщиной 80 мм для перегородок и облицовки внутренних стен зданий различного назначения
Оглавление:М8.22-1/2010-ПЗ. Часть 1 Пояснительная записка
М8.22-1/2010-ПЗ. Часть 1 1. Область применения
М8.22-1/2010-ПЗ. Часть 1 2. Применяемые материалы и изделия
М8.22-1/2010-ПЗ. Часть 1 3. Конструкции перегородок
М8.22-1/2010-ПЗ. Часть 1 4. Внутренняя облицовка ограждающих конструкций
М8.22-1/2010-ПЗ. Часть 1 5. Технология монтажа
М8.22-1/2010-ПЗ. Часть 1 6. Монтаж слаботочной проводки и инженерных коммуникаций
М8.22-1/2010-ПЗ. Часть 1 7. Отделка поверхностей конструкций из гипсовых пазогребневых плит
М8.22-1/2010-ПЗ. Часть 1 8. Основные правила техники безопасности при производстве работ
М8.22-1/2010-ПЗ. Часть 1 9. Транспортирование и хранение материалов и изделий
М8.22-1/2010-ПЗ. Часть 1 10. Основные правила технической эксплуатации конструкций
М8.22-1/2010-ПЗ. Часть 1 11. Приемка смонтированных конструкций
М8.22-1/2010 Графический материал
М8.22-1/2010-1. Часть 1 Схема перегородок
М8.22-1/2010-2. Часть 1 Жесткое присоединение перегородок. Узлы
М8.22-1/2010-3. Часть 1 Эластичное присоединение перегородок. Узлы
М8.22-1/2010-4. Часть 1 Устройство дверных проемов
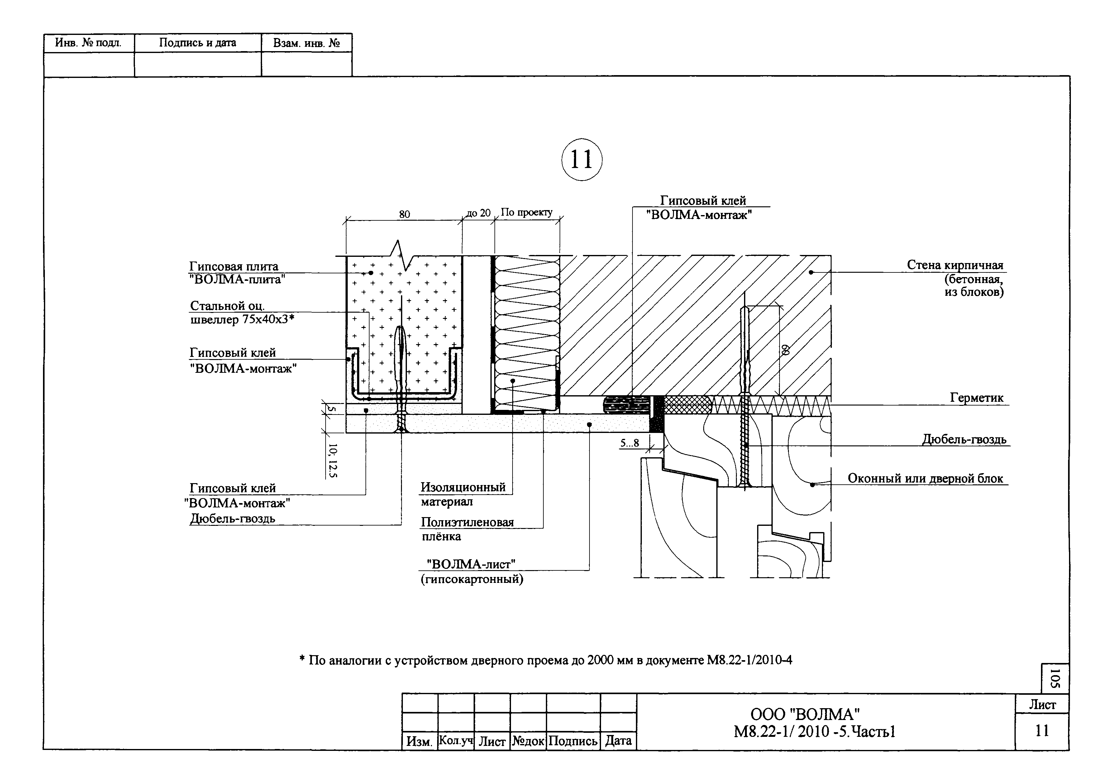
М8.22-1/2010-5. Часть 1 Внутренняя облицовка наружных стен
М8.22-1/2010-6. Часть 1 Устройство коммуникаций в перегородках
М8.22-1/2010. Часть 1 Инструменты
Разработан: ОАО ЦНИИпромзданий
Утверждён:01.05.2010 ОАО ЦНИИпромзданий (TsNIIpromzdaniy OAO )
Расположен в:Техническая документация Строительство Справочные документы Типовые строительные конструкции, изделия и узлы Разработанные другими министерствами, ведомствами и организациями
Заменяет собой:
  • Шифр М8.22/08
Шифр М8.22-1/2010Шифр М8.22-1/2010Шифр М8.22-1/2010Шифр М8.22-1/2010Шифр М8.22-1/2010Шифр М8.22-1/2010Шифр М8.22-1/2010Шифр М8.22-1/2010Шифр М8.22-1/2010Шифр М8.22-1/2010Шифр М8.22-1/2010Шифр М8.22-1/2010Шифр М8.22-1/2010Шифр М8.22-1/2010Шифр М8.22-1/2010Шифр М8.22-1/2010Шифр М8.22-1/2010Шифр М8.22-1/2010Шифр М8.22-1/2010Шифр М8.22-1/2010Шифр М8.22-1/2010Шифр М8.22-1/2010Шифр М8.22-1/2010Шифр М8.22-1/2010Шифр М8.22-1/2010Шифр М8.22-1/2010Шифр М8.22-1/2010Шифр М8.22-1/2010Шифр М8.22-1/2010Шифр М8.22-1/2010Шифр М8.22-1/2010Шифр М8.22-1/2010Шифр М8.22-1/2010Шифр М8.22-1/2010Шифр М8.22-1/2010Шифр М8.22-1/2010Шифр М8.22-1/2010Шифр М8.22-1/2010Шифр М8.22-1/2010Шифр М8.22-1/2010Шифр М8.22-1/2010Шифр М8.22-1/2010Шифр М8.22-1/2010Шифр М8.22-1/2010Шифр М8.22-1/2010Шифр М8.22-1/2010Шифр М8.22-1/2010Шифр М8.22-1/2010Шифр М8.22-1/2010Шифр М8.22-1/2010Шифр М8.22-1/2010Шифр М8.22-1/2010Шифр М8.22-1/2010Шифр М8.22-1/2010Шифр М8.22-1/2010Шифр М8.22-1/2010Шифр М8.22-1/2010Шифр М8.22-1/2010Шифр М8.22-1/2010Шифр М8.22-1/2010Шифр М8.22-1/2010Шифр М8.22-1/2010Шифр М8.22-1/2010Шифр М8.22-1/2010Шифр М8.22-1/2010Шифр М8.22-1/2010Шифр М8.22-1/2010Шифр М8.22-1/2010Шифр М8.22-1/2010Шифр М8.22-1/2010Шифр М8.22-1/2010Шифр М8.22-1/2010Шифр М8.22-1/2010Шифр М8.22-1/2010Шифр М8.22-1/2010Шифр М8.22-1/2010Шифр М8.22-1/2010Шифр М8.22-1/2010Шифр М8.22-1/2010Шифр М8.22-1/2010Шифр М8.22-1/2010Шифр М8.22-1/2010Шифр М8.22-1/2010Шифр М8.22-1/2010Шифр М8.22-1/2010Шифр М8.22-1/2010Шифр М8.22-1/2010Шифр М8.22-1/2010Шифр М8.22-1/2010Шифр М8.22-1/2010Шифр М8.22-1/2010Шифр М8.22-1/2010Шифр М8.22-1/2010Шифр М8.22-1/2010Шифр М8.22-1/2010Шифр М8.22-1/2010Шифр М8.22-1/2010Шифр М8.22-1/2010Шифр М8.22-1/2010Шифр М8.22-1/2010Шифр М8.22-1/2010Шифр М8.22-1/2010Шифр М8.22-1/2010Шифр М8.22-1/2010Шифр М8.22-1/2010Шифр М8.22-1/2010Шифр М8.22-1/2010Шифр М8.22-1/2010Шифр М8.22-1/2010Шифр М8.22-1/2010Шифр М8.22-1/2010Шифр М8.22-1/2010Шифр М8.22-1/2010Шифр М8.22-1/2010Шифр М8.22-1/2010Шифр М8.22-1/2010Шифр М8.22-1/2010Шифр М8.22-1/2010Шифр М8.22-1/2010Шифр М8.22-1/2010Шифр М8.22-1/2010Шифр М8.22-1/2010Шифр М8.22-1/2010

© 2013 Ёшкин Кот :-) Карта сайта