Информационная система
«Ёшкин Кот»

Скачать базу одним архивом
Скачать обновления
История создания базы
Карта сайта

Скачать Серия 2.445-1 Выпуск 3. Узлы установки и крепления светильников

Дата актуализации: 10.08.2017

Серия 2.445-1

Выпуск 3. Узлы установки и крепления светильников

Обозначение: Серия 2.445-1
Обозначение англ: Series 2.445-1
Статус:не действует
Название рус.:Выпуск 3. Узлы установки и крепления светильников
Дата добавления в базу:01.09.2013
Дата актуализации:05.05.2017
Дата введения:01.06.1988
Оглавление:2.445-1 Титульный лист
2.445-1 Содержание
2.445-1 Пояснительная записка
2.445-1 Таблица возможного расположения светильников относительно несущих балок подвесных потолков
2.445-1 План сети электроосвещения. Пример пользования типовым проектом
2.445-1 Крепление потолочного люминесцентного светильника на потолках из акустических перфорированных плит 500х500х10 мм из асбестоцементных прессованных плит 12000х12000х8 мм, из асбестоцементных перфорированных плит 12000х750х5 мм
2.445-1 Крепление потолочного люминесцентного светильника на потолке из акустических плит "Акмигран" 300х300х20 мм
2.445-1 Крепление потолочного люминесцентного светильника на потолке из стальных перфорированных панелей 499х499 мм
2.445-1 Крепление потолочного люминесцентного светильника на потолке из стальных перфорированных панелей 599х599 и 599х1199 мм
2.445-1 Крепление потолочного люминесцентного светильника на потолке из усиленных асбестоцементных плит
2.445-1 Крепление потолочного люминесцентного светильника на потолках из акустических перфорированных плит 500х500х10 мм, из асбестоцементных прессованных плит 12000х12000х8 мм, из асбестоцементных перфорированных плит 12000х750х5 мм
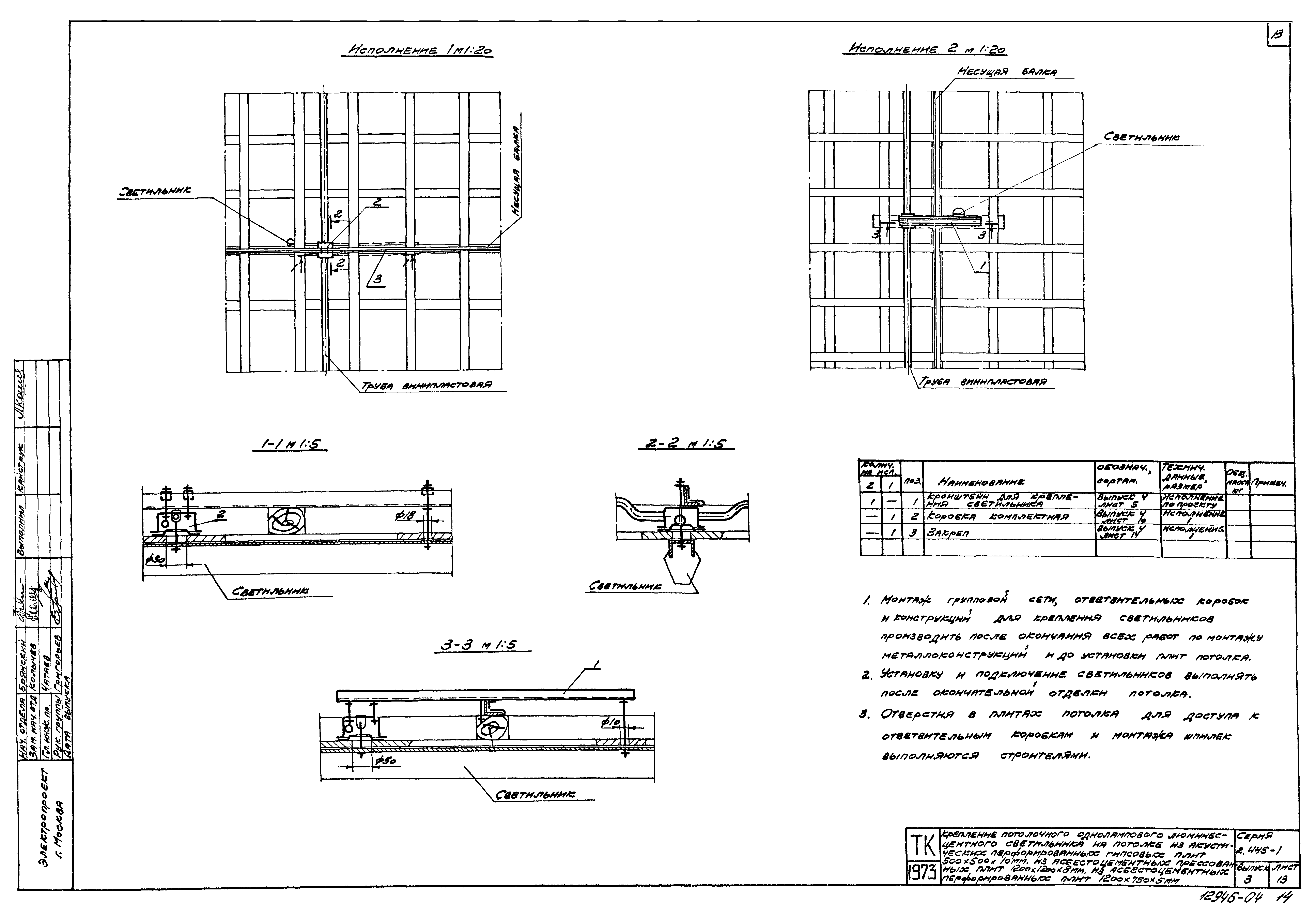
2.445-1 Крепление потолочного однолампового люминесцентного светильника на потолке из акустических плит типа "Акмигран" 300х300х20 мм
2.445-1 Крепление потолочного однолампового люминесцентного светильника на потолке из стальных перфорированных панелей 499х499 мм
2.445-1 Крепление потолочного однолампового люминесцентного светильника на потолке из алюминиевых перфорированных панелей 499х499 мм
2.445-1 Крепление потолочного однолампового люминесцентного светильника на потолке из алюминиевых перфорированных панелей 599х599 мм и 599х1199 мм
2.445-1 Крепление подвесного люминесцентного светильника на потолке из акустических перфорированных плит 500х500х10 мм из асбестоцементных прессованных плит 1200х1200х8 мм, из асбестоцементных перфорированных плит 1200х75х5 мм
2.445-1 Крепление подвесного люминесцентного светильника на потолке из акустических плит типа "Акмигран" 300х300х20 мм
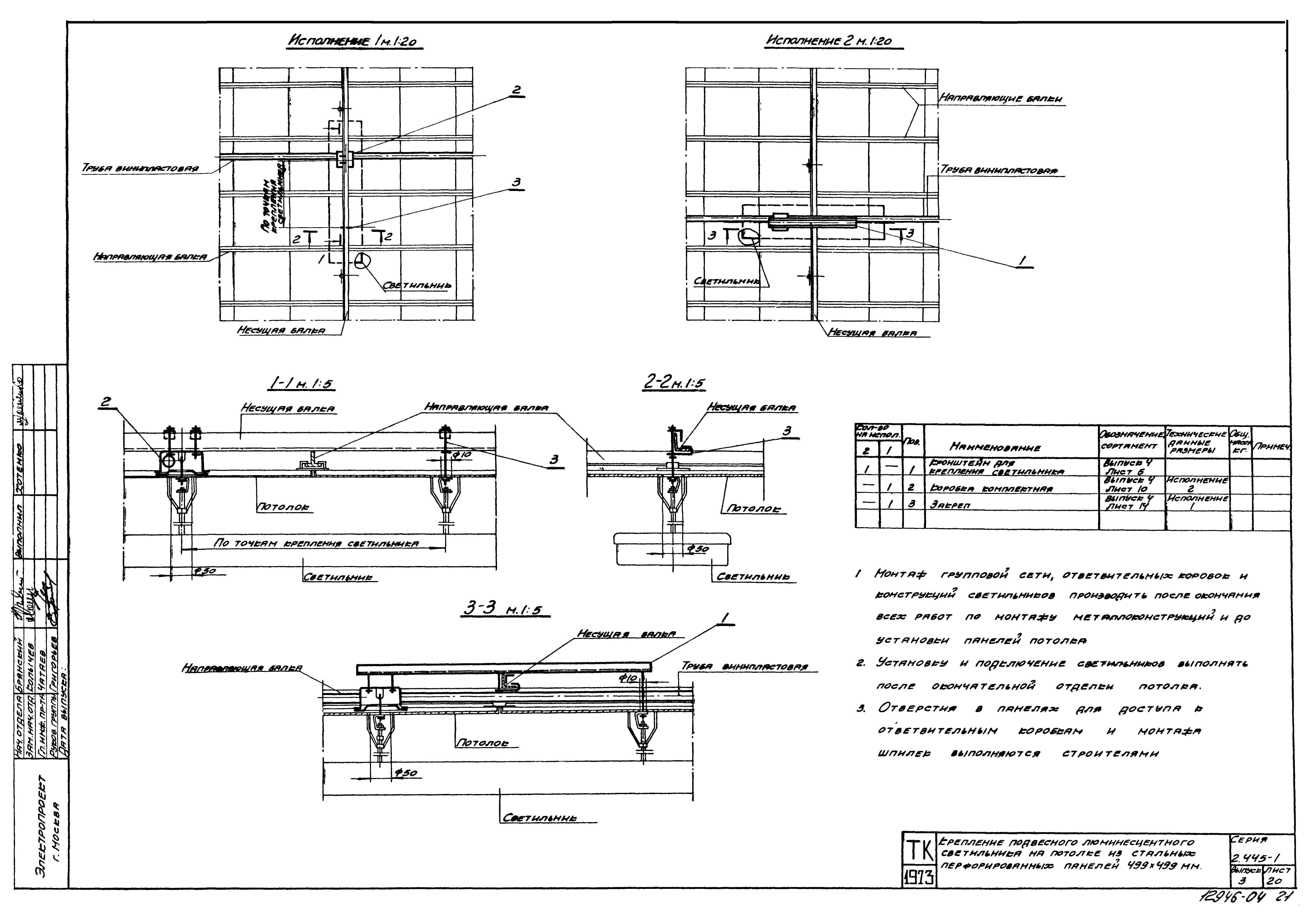
2.445-1 Крепление подвесного люминесцентного светильника на потолке из стальных перфорированных панелей 499х499 мм
2.445-1 Крепление подвесного люминесцентного светильника на потолке из алюминиевых перфорированных панелей 499х499 мм
2.445-1 Крепление подвесного люминесцентного светильника на потолке из алюминиевых перфорированных панелей 599х599 мм и 599х1199 мм
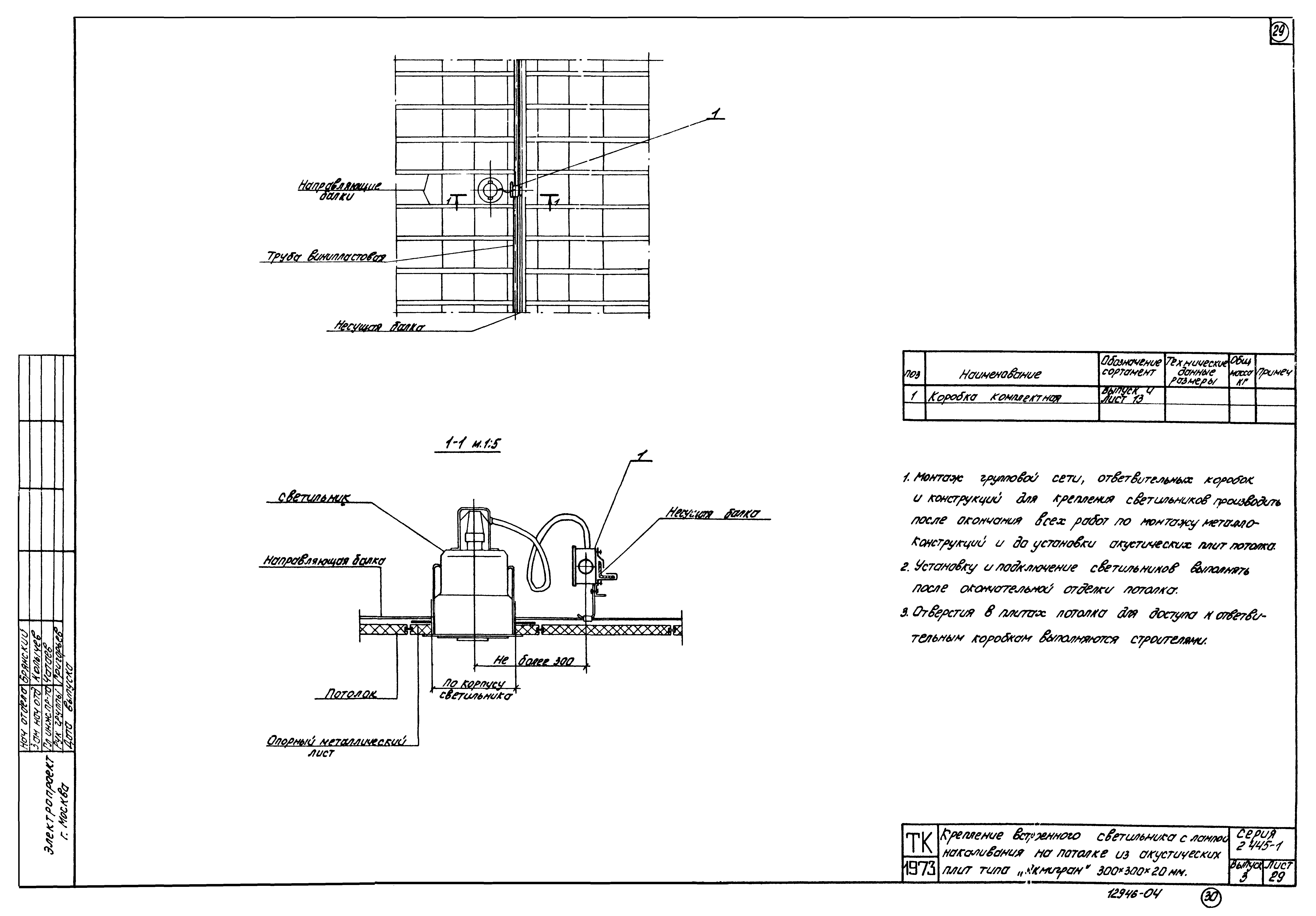
2.445-1 Крепление встроенного люминесцентного светильника на потолке из акустических плит типа "Акмигран" 300х300х20 мм
2.445-1 Крепление встроенного люминесцентного светильника на потолке из усиленных асбестоцементных плит
2.445-1 Крепление потолочного светильника с лампой накаливания на потолках из акустических перфорированных плит 500х500х10 мм, из асбестоцементных прессованных плит 1200х1200х8 мм, из асбестоцементных перфорированных плит 1200х750х5 мм
2.445-1 Крепление потолочного светильника с лампой накаливания на потолке из стальных перфорированных панелей 499х499 мм
2.445-1 Крепление потолочного светильника с лампой накаливания на потолке из стальных алюминиевых панелей 499х499 мм
2.445-1 Крепление потолочного светильника с лампой накаливания на потолке из стальных алюминиевых панелей 599х599 мм и 599х1199 мм
2.445-1 Крепление потолочного светильника с лампой накаливания на потолке из акустических панелей типа "Акмигран" 300х300х20 мм
Разработан: ГПИ Электропроект
Утверждён:30.01.1973 Госстрой СССР (Государственный комитет Совета Министров СССР по делам строительства) (USSR Gosstroy )
Расположен в:Техническая документация Строительство Справочные документы Типовые строительные конструкции, изделия и узлы Общероссийский строительный каталог Строительные конструкции, изделия и узлы зданий и сооружений для всех видов строительства Конструкции, изделия и узлы зданий Разные конструктивные элементы, изделия и узлы
Серия 2.445-1Серия 2.445-1Серия 2.445-1Серия 2.445-1Серия 2.445-1Серия 2.445-1Серия 2.445-1Серия 2.445-1Серия 2.445-1Серия 2.445-1Серия 2.445-1Серия 2.445-1Серия 2.445-1Серия 2.445-1Серия 2.445-1Серия 2.445-1Серия 2.445-1Серия 2.445-1Серия 2.445-1Серия 2.445-1Серия 2.445-1Серия 2.445-1Серия 2.445-1Серия 2.445-1Серия 2.445-1Серия 2.445-1Серия 2.445-1Серия 2.445-1Серия 2.445-1Серия 2.445-1Серия 2.445-1

© 2013 Ёшкин Кот :-) Карта сайта