Информационная система
«Ёшкин Кот»

Скачать базу одним архивом
Скачать обновления
История создания базы
Карта сайта

Скачать Типовой проект 902-5-36.86 Альбом III. Архитектурно-строительные решения. Конструкции железобетонные и металлические

Дата актуализации: 10.08.2017

Типовой проект 902-5-36.86

Альбом III. Архитектурно-строительные решения. Конструкции железобетонные и металлические

Обозначение: Типовой проект 902-5-36.86
Обозначение англ: 902-5-36.86
Статус:не определен законодательством
Название рус.:Альбом III. Архитектурно-строительные решения. Конструкции железобетонные и металлические
Дата добавления в базу:01.09.2013
Дата актуализации:05.05.2017
Дата введения:05.06.1986
Оглавление:ТП 902-5-36.86 АР Листы марки АР
ТП 902-5-36.86 АР-1 Общие данные
ТП 902-5-36.86 АР-2 План на отм. 0.000
ТП 902-5-36.86 АР-3 План на отм. 3.600;4.800;7.200;-3.000
ТП 902-5-36.86 АР-4 Разрезы 1-1;2-2;3-3
ТП 902-5-36.86 АР-5 Фасады 1-17;17-1
ТП 902-5-36.86 АР-6 Фасады М-А-А-М. Узлы 7,8
ТП 902-5-36.86 АР-7 Узлы 1-6. Фрагменты планов 1-4
ТП 902-5-36.86 АР-8 Планы перегородок и отверстий на отм. 0.000;3.600. Спецификация перегородок. Узлы 8-10
ТП 902-5-36.86 АР-9 Спецификация элементов заполнения проемов. Ведомость проемов ворот и дверей. Спецификация перемычек. Ведомость перемычек
ТП 902-5-36.86 АР-10 Ведомость отделки помещений
ТП 902-5-36.86 АР-11 Планы полов и кровли
ТП 902-5-36.86 АР-12 Транспортерная галерея. План, разрезы и фасады
ТП 902-5-36.86 КЖ Листы марки КЖ
ТП 902-5-36.86 КЖ-1 Общие данные (начало)
ТП 902-5-36.86 КЖ-2 Общие данные (продолжение)
ТП 902-5-36.86 КЖ-3 Общие данные (окончание)
ТП 902-5-36.86 КЖ-4 Схема расположения фундаментов под здания
ТП 902-5-36.86 КЖ-5 Фундаменты зданий. Сечения. Спецификация
ТП 902-5-36.86 КЖ-6 Фундаменты ФМ1,ФМ2,ФМ3,ФМ4. Опалубка. Армирование
ТП 902-5-36.86 КЖ-7 Фундаменты ФМ5,ФМ6,ФМ7. Опалубка
ТП 902-5-36.86 КЖ-8 Фундаменты ФМ8,ФМ9,ФМ10. Опалубка
ТП 902-5-36.86 КЖ-9 Фундаменты ФМ11-ФМ14. Опалубка
ТП 902-5-36.86 КЖ-10 Фундаменты ФМ15-ФМ18. Опалубка
ТП 902-5-36.86 КЖ-11 Фундаменты ФМ19,ФМ20,ФМ24,ФМ25. Опалубка
ТП 902-5-36.86 КЖ-12 Фундаменты ФМ21-ФМ23. Опалубка
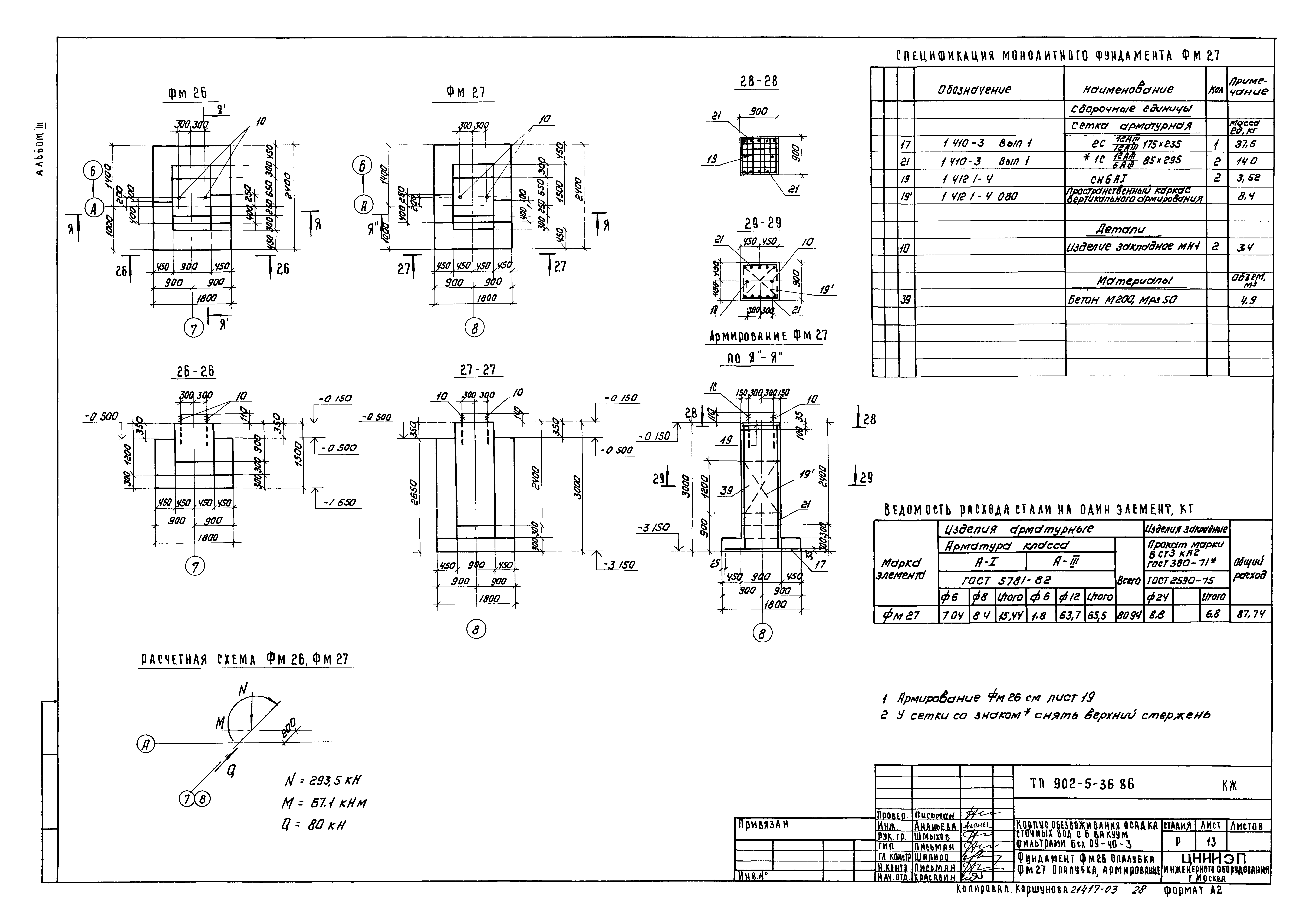
ТП 902-5-36.86 КЖ-13 Фундаменты ФМ26. Опалубка. ФМ 26. Опалубка. Армирование
ТП 902-5-36.86 КЖ-14 Фундаменты ФМ5,ФМ6,ФМ7. Армирование
ТП 902-5-36.86 КЖ-15 Фундаменты ФМ8-ФМ14. Армирование
ТП 902-5-36.86 КЖ-16 Фундаменты ФМ15-ФМ16. Армирование
ТП 902-5-36.86 КЖ-17 Фундаменты ФМ17,ФМ18,ФМ19. Армирование
ТП 902-5-36.86 КЖ-18 Фундаменты ФМ20,ФМ21,ФМ22,ФМ23. Армирование
ТП 902-5-36.86 КЖ-19 Фундаменты ФМ24,ФМ25,ФМ26. Армирование
ТП 902-5-36.86 КЖ-20 Фундаменты ФМ5-ФМ15. Спецификация
ТП 902-5-36.86 КЖ-21 Фундаменты ФМ16-ФМ24. Спецификация
ТП 902-5-36.86 КЖ-22 Фундаменты ФМ1-ФМ27. Ведомость расхода стали
ТП 902-5-36.86 КЖ-23 Резервуар РЕ1. Схема расположения стеновых панелей и монолитных участков
ТП 902-5-36.86 КЖ-24 Резервуар РЕ1. Схема расположения обвязочных балок и закладных деталей
ТП 902-5-36.86 КЖ-25 Резервуар РЕ1. Узлы 1,2,3. Армирование
ТП 902-5-36.86 КЖ-26 Резервуар РЕ1. Узлы 4,5,6. Армирование
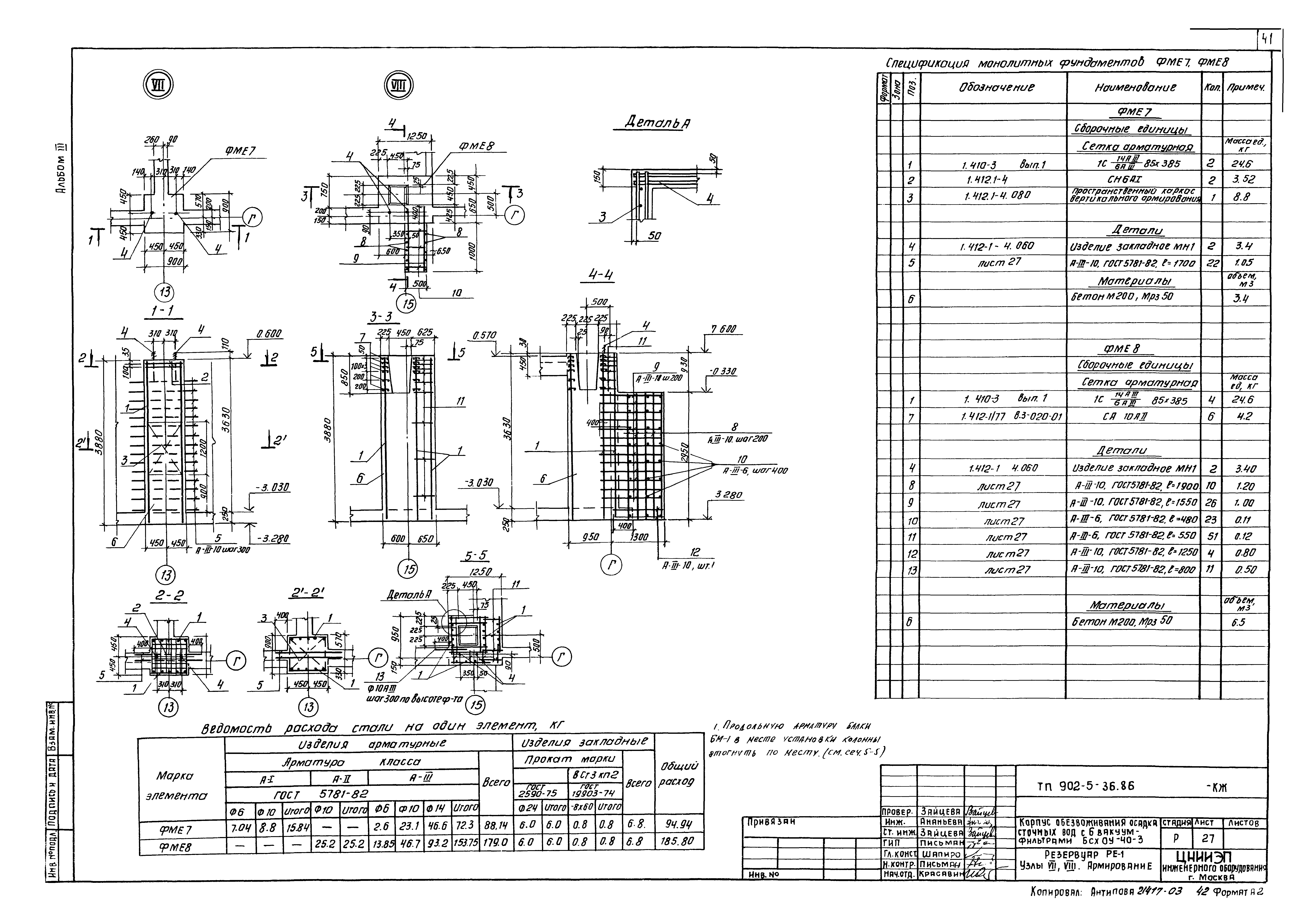
ТП 902-5-36.86 КЖ-27 Резервуар РЕ1. Узлы 7,8. Армирование
ТП 902-5-36.86 КЖ-28 Резервуар РЕ1. Обвязочные балки. Армирование
ТП 902-5-36.86 КЖ-29 Резервуар РЕ1. Монолитные стены. Армирование
ТП 902-5-36.86 КЖ-30 Резервуар РЕ1. Монолитные стены БМ-1. Армирование
ТП 902-5-36.86 КЖ-31 Резервуар РЕ1. Схема расположения верхних и нижних сеток днища ДМ
ТП 902-5-36.86 КЖ-32 Резервуар РЕ1. Днище ДМ. Разрезы. Армирование
ТП 902-5-36.86 КЖ-33 Резервуар РЕ1. Днище ДМ. Спецификация
ТП 902-5-36.86 КЖ-34 Резервуар РЕ1. Схема расположения деревянных щитов и решеток
ТП 902-5-36.86 КЖ-35 Резервуар РЕ1. Деревянные щиты ЩД1-ЩД6 и решетка РД-1;РД-2
ТП 902-5-36.86 КЖ-36 Резервуар РЕ2. Схемы расположения сборных железобетонных стенрезервуаров, плит покрытия
ТП 902-5-36.86 КЖ-37 Резервуар РЕ2. Армирование днища
ТП 902-5-36.86 КЖ-38 Резервуар РЕ2. Днище. Армирование. Спецификация к схемам расположения арматурных изделий
ТП 902-5-36.86 КЖ-39 Резервуар РЕ2. Монолитный участок. МУ-1. Опалубка и армирование
ТП 902-5-36.86 КЖ-40 Резервуар РЕ2. Поддон
ТП 902-5-36.86 КЖ-41 План фундаментов и схема расположения плит покрытия в осях 17-19,А-В. Сечения 1-1;2-2
ТП 902-5-36.86 КЖ-42 Фундаменты в осях 17-19;А-В. Сечения 3-3÷8-8. Узлы. Фундамент ФИ29
ТП 902-5-36.86 КЖ-43 Схема расположения фундаментов под оборудование в осях 6-9
ТП 902-5-36.86 КЖ-44 Схема расположения фундаментов под оборудование в осях 10-17
ТП 902-5-36.86 КЖ-45 Схема расположения фундаментов под оборудование в осях 9,11-15
ТП 902-5-36.86 КЖ-46 Фундаменты под оборудование ФО-1. Опалубочный чертеж. Армирование
ТП 902-5-36.86 КЖ-47 Фундаменты под оборудование ФО-1. Фрагмент плана №1. Фундаменты ФО2-ФО4
ТП 902-5-36.86 КЖ-48 Фундаменты под оборудование ФО5-ФО9
ТП 902-5-36.86 КЖ-49 Схема расположения колонн и балок покрытия в осях 6-17,А-Н
ТП 902-5-36.86 КЖ-50 Схемы расположения металлических стоек и насадок в осях 6-17,А-Н
ТП 902-5-36.86 КЖ-51 Схема расположения плит покрытия в осях 6-17,А-Н
ТП 902-5-36.86 КЖ-52 Схема расположения плит покрытия в осях 9-15,В-Н
ТП 902-5-36.86 КЖ-53 Схема расположения стеновых панелей в осях 6-17;А-М
ТП 902-5-36.86 КЖ-54 Схемы расположения стеновых панелей в осях 6-14,Л-Н. Фрагмент 1-8
ТП 902-5-36.86 КЖ-55 Схемы расположения колонн, диафрагм жесткости, ригелей на отм. 3.600 и 7.200 в осях 1-5,А-В
ТП 902-5-36.86 КЖ-56 Схемы расположения плит перекрытия и покрытия на отм. 3.600 и 7.200 в осях 1-5,А-В
ТП 902-5-36.86 КЖ-57 Схема расположения стеновых панелей в осях 1-5,А-В. Фрагменты 1-8
ТП 902-5-36.86 КЖ-58 Приточная венткамера на отм. 3.600 в осях 4-5 у оси "А"
ТП 902-5-36.86 КЖ-59 Схемы расположения лестничных маршей, проступей и верхней лестничной площадки в осях А-Б;3-2/3
ТП 902-5-36.86 КЖ-60 Схема расположения монолитной лестничной площадки МП-1 у оси "Б". Армирование. Узлы
ТП 902-5-36.86 КЖ-61 Схема расположения каналов и приямков КТП в осях 4-5;А-Б
ТП 902-5-36.86 КЖ-62 Транспортная галерея. Схема расположения фундаментов
ТП 902-5-36.86 КЖ-63 Транспортная галерея. Схема расположения плит покрытия, стеновых блоков и панелей гофрированного стального профиля покрытия
ТП 902-5-36.86 КЖ-64 Транспортерная галерея. Монолитные участки УМ-1;УМ-2. Армирование
ТП 902-5-36.86 КМ Листы марки КМ
ТП 902-5-36.86 КМ-1 Общие данные
ТП 902-5-36.86 КМ-2 Техническая спецификация металла (начало)
ТП 902-5-36.86 КМ-3 Техническая спецификация металла (продолжение)
ТП 902-5-36.86 КМ-4 Техническая спецификация металла (окончание)
ТП 902-5-36.86 КМ-5 Техническая спецификация стали на типовые конструкции
ТП 902-5-36.86 КМ-6 Ведомость металлоконструкций по видам профилей
ТП 902-5-36.86 КМ-7 План металлических площадок на отм. 0.000 и 2.400 в осях 6-9;А-М
ТП 902-5-36.86 КМ-8 Металлические площадки. Разрезы 1-1;8-8
ТП 902-5-36.86 КМ-9 План металлических площадок на отм. 4.800,7.200 в осях 6-9,А-М
ТП 902-5-36.86 КМ-10 Металлические площадки. Разрезы 9-9÷12-12
ТП 902-5-36.86 КМ-11 Металлические площадки. Узлы спецификации
ТП 902-5-36.86 КМ-12 Металлические лестницы, площадки на отм. 0.000;0.600 в осях 9-15;В-Н
ТП 902-5-36.86 КМ-13 Металлические лестницы, площадки в осях 9-15,8-11. Сечения 1-1÷8-8. Узлы 1-4
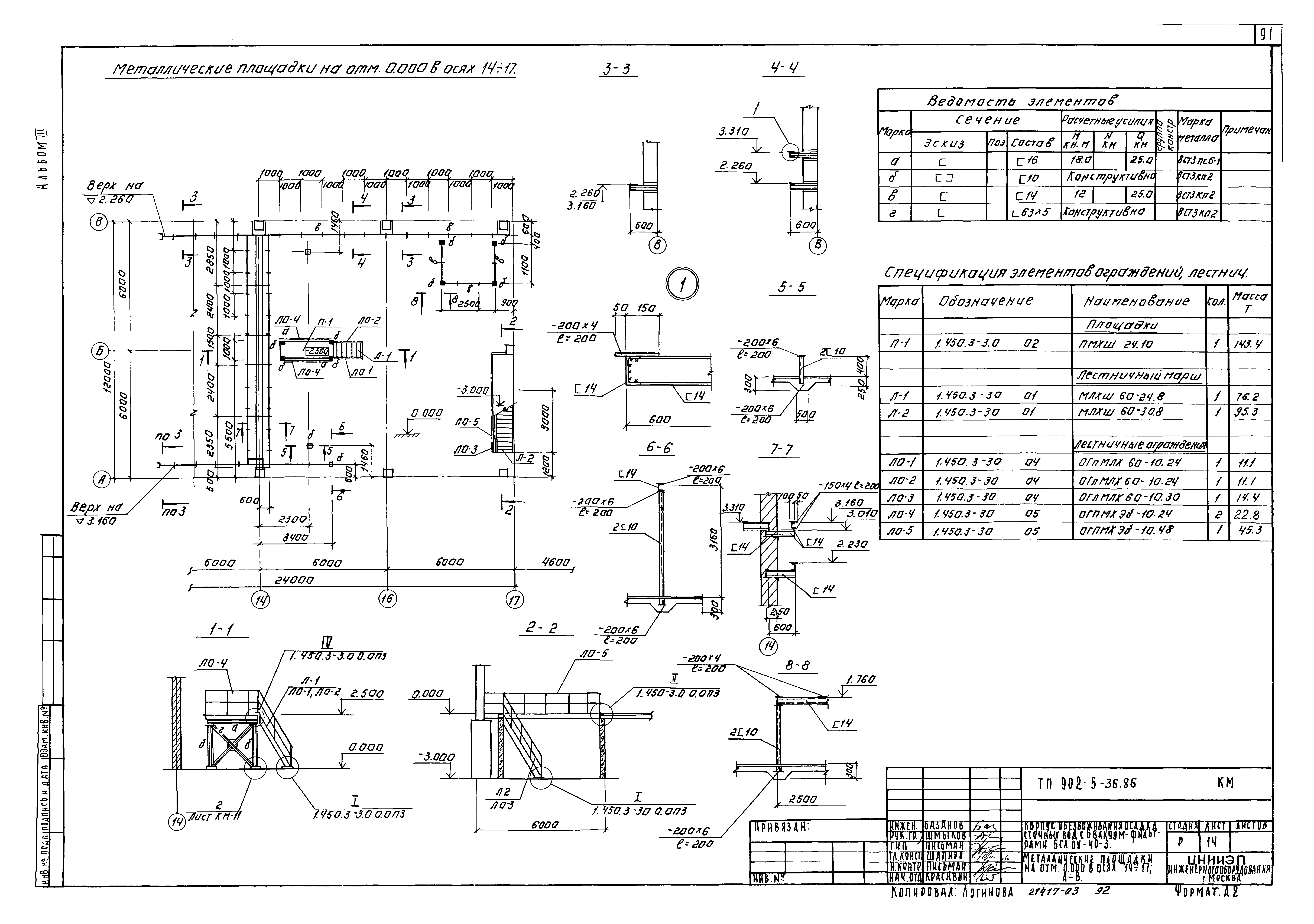
ТП 902-5-36.86 КМ-14 Металлические площадки на отм. 0.000 в осях 14-17;А-В
ТП 902-5-36.86 КМ-15 Схема расположения подвесных путей
ТП 902-5-36.86 КМ-16 Подвесные пути. Сечения 1-1÷7-7
ТП 902-5-36.86 КМ-17 Наружная площадка. Лестница. Пожарная лестница
ТП 902-5-36.86 КМ-18 Транспортерная галерея. Схема расположения балок пола, кровли, опор
Разработан: ЦНИИЭП иженерного оборудования
Утверждён:14.03.1986 Госгражданстрой (Gosgrazhdanstroy 88)
Расположен в:Техническая документация Строительство Справочные документы Типовые строительные конструкции, изделия и узлы Общероссийский строительный каталог Промышленные предприятия, здания и сооружения Здания и сооружения санитарно-технические Канализация Сооружения для очистки производственных сточных вод Сооружения для обработки осадка
Типовой проект 902-5-36.86Типовой проект 902-5-36.86Типовой проект 902-5-36.86Типовой проект 902-5-36.86Типовой проект 902-5-36.86Типовой проект 902-5-36.86Типовой проект 902-5-36.86Типовой проект 902-5-36.86Типовой проект 902-5-36.86Типовой проект 902-5-36.86Типовой проект 902-5-36.86Типовой проект 902-5-36.86Типовой проект 902-5-36.86Типовой проект 902-5-36.86Типовой проект 902-5-36.86Типовой проект 902-5-36.86Типовой проект 902-5-36.86Типовой проект 902-5-36.86Типовой проект 902-5-36.86Типовой проект 902-5-36.86Типовой проект 902-5-36.86Типовой проект 902-5-36.86Типовой проект 902-5-36.86Типовой проект 902-5-36.86Типовой проект 902-5-36.86Типовой проект 902-5-36.86Типовой проект 902-5-36.86Типовой проект 902-5-36.86Типовой проект 902-5-36.86Типовой проект 902-5-36.86Типовой проект 902-5-36.86Типовой проект 902-5-36.86Типовой проект 902-5-36.86Типовой проект 902-5-36.86Типовой проект 902-5-36.86Типовой проект 902-5-36.86Типовой проект 902-5-36.86Типовой проект 902-5-36.86Типовой проект 902-5-36.86Типовой проект 902-5-36.86Типовой проект 902-5-36.86Типовой проект 902-5-36.86Типовой проект 902-5-36.86Типовой проект 902-5-36.86Типовой проект 902-5-36.86Типовой проект 902-5-36.86Типовой проект 902-5-36.86Типовой проект 902-5-36.86Типовой проект 902-5-36.86Типовой проект 902-5-36.86Типовой проект 902-5-36.86Типовой проект 902-5-36.86Типовой проект 902-5-36.86Типовой проект 902-5-36.86Типовой проект 902-5-36.86Типовой проект 902-5-36.86Типовой проект 902-5-36.86Типовой проект 902-5-36.86Типовой проект 902-5-36.86Типовой проект 902-5-36.86Типовой проект 902-5-36.86Типовой проект 902-5-36.86Типовой проект 902-5-36.86Типовой проект 902-5-36.86Типовой проект 902-5-36.86Типовой проект 902-5-36.86Типовой проект 902-5-36.86Типовой проект 902-5-36.86Типовой проект 902-5-36.86Типовой проект 902-5-36.86Типовой проект 902-5-36.86Типовой проект 902-5-36.86Типовой проект 902-5-36.86Типовой проект 902-5-36.86Типовой проект 902-5-36.86Типовой проект 902-5-36.86Типовой проект 902-5-36.86Типовой проект 902-5-36.86Типовой проект 902-5-36.86Типовой проект 902-5-36.86Типовой проект 902-5-36.86Типовой проект 902-5-36.86Типовой проект 902-5-36.86Типовой проект 902-5-36.86Типовой проект 902-5-36.86Типовой проект 902-5-36.86Типовой проект 902-5-36.86Типовой проект 902-5-36.86Типовой проект 902-5-36.86Типовой проект 902-5-36.86Типовой проект 902-5-36.86Типовой проект 902-5-36.86Типовой проект 902-5-36.86Типовой проект 902-5-36.86Типовой проект 902-5-36.86Типовой проект 902-5-36.86Типовой проект 902-5-36.86

© 2013 Ёшкин Кот :-) Карта сайта