Информационная система
«Ёшкин Кот»

Скачать базу одним архивом
Скачать обновления
История создания базы
Карта сайта

Скачать Типовой проект 903-1-244.87 Альбом 14. Отопление и вентиляция. Внутренний водопровод и канализация

Дата актуализации: 10.08.2017

Типовой проект 903-1-244.87

Альбом 14. Отопление и вентиляция. Внутренний водопровод и канализация

Обозначение: Типовой проект 903-1-244.87
Обозначение англ: 903-1-244.87
Статус:не определен законодательством
Название рус.:Альбом 14. Отопление и вентиляция. Внутренний водопровод и канализация
Дата добавления в базу:01.09.2013
Дата актуализации:05.05.2017
Дата введения:17.04.1987
Оглавление:ТП 903-1-244.87 Содержание альбома
ТП 903-1-244.87-ОВ Чертежи основного комплекта марки ОВ
ТП 903-1-244.87-ОВ-1 Общие данные (начало)
ТП 903-1-244.87-ОВ-2 Общие данные (окончание)
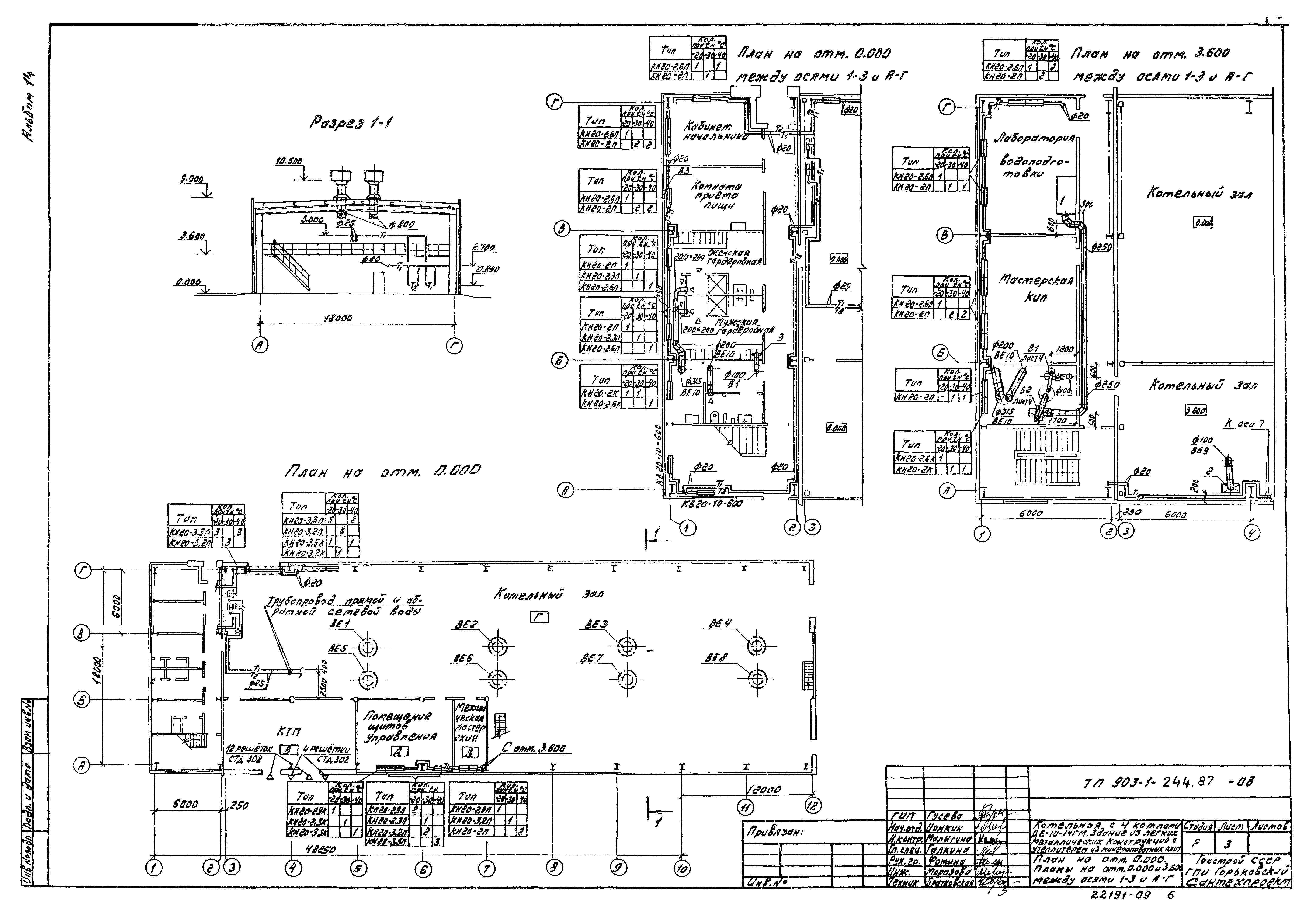
ТП 903-1-244.87-ОВ-3 План на отм. 0.000. Планы на отм. 0.000 и 3.600 между осями 1-3 и А-Г
ТП 903-1-244.87-ОВ-4 Установки систем В1,В2
ТП 903-1-244.87-ОВ-5 Схемы систем отопления и вентиляции. Узел управления
ТП 903-1-244.87-ВК Чертежи основного комплекта марки ВК
ТП 903-1-244.87-ВК-1 Общие данные (начало)
ТП 903-1-244.87-ВК-2 Общие данные (окончание)
ТП 903-1-244.87-ВК-3 Планы на отм. 0.000;3.600. Фрагмент плана. План кровли
ТП 903-1-244.87-ВК-4 Схемы систем В1,Т3,К1,К2
Разработан: Горьковский Сантехпроект
Утверждён:17.04.1987 Госстрой СССР (Государственный комитет Совета Министров СССР по делам строительства) (USSR Gosstroy А4-43)
Расположен в:Техническая документация Строительство Справочные документы Типовые строительные конструкции, изделия и узлы Общероссийский строительный каталог Промышленные предприятия, здания и сооружения Здания и сооружения санитарно-технические Теплоснабжение Котельные установки Закрытые системы теплоснабжения Топливо - газ, резерв - мазут
Типовой проект 903-1-244.87Типовой проект 903-1-244.87Типовой проект 903-1-244.87Типовой проект 903-1-244.87Типовой проект 903-1-244.87Типовой проект 903-1-244.87Типовой проект 903-1-244.87Типовой проект 903-1-244.87Типовой проект 903-1-244.87Типовой проект 903-1-244.87Типовой проект 903-1-244.87Типовой проект 903-1-244.87Типовой проект 903-1-244.87

© 2013 Ёшкин Кот :-) Карта сайта