Информационная система
«Ёшкин Кот»

Скачать базу одним архивом
Скачать обновления
История создания базы
Карта сайта

Скачать Типовой проект 903-1-244.87 Альбом 7. Конструкции металлические

Дата актуализации: 10.08.2017

Типовой проект 903-1-244.87

Альбом 7. Конструкции металлические

Обозначение: Типовой проект 903-1-244.87
Обозначение англ: 903-1-244.87
Статус:не определен законодательством
Название рус.:Альбом 7. Конструкции металлические
Дата добавления в базу:01.09.2013
Дата актуализации:05.05.2017
Дата введения:17.04.1987
Оглавление:ТП 903-1-244.87 Содержание альбома
ТП 903-1-244.87 КМ-1 Общие данные (начало)
ТП 903-1-244.87 КМ-2 Общие данные (окончание)
ТП 903-1-244.87 КМ-3 Техническая спецификация стали (начало) 1 и 2 районы строительства
ТП 903-1-244.87 КМ-4 Техническая спецификация стали (продолжение) 1 и 2 районы строительства
ТП 903-1-244.87 КМ-5 Техническая спецификация стали (окончание) 1 и 2 районы строительства
ТП 903-1-244.87 КМ-6 Техническая спецификация стали (начало) 3 район строительства
ТП 903-1-244.87 КМ-7 Техническая спецификация стали (продолжение) 3 район строительства
ТП 903-1-244.87 КМ-8 Техническая спецификация стали (окончание) 3 район строительства
ТП 903-1-244.87 КМ-9 Техническая спецификация стали 1,2 и 3 районы строительства
ТП 903-1-244.87 КМ-10 Ведомость металлоконструкций по видам профилей 1 и 2 строительства
ТП 903-1-244.87 КМ-11 Ведомость металлоконструкций по видам профилей 3 район строительства
ТП 903-1-244.87 КМ-12 Нагрузки на фундаменты 1 район строительства
ТП 903-1-244.87 КМ-13 Нагрузки на фундаменты 2 район строительства
ТП 903-1-244.87 КМ-14 Нагрузки на фундаменты 3 район строительства
ТП 903-1-244.87 КМ-15 Схема расположения прогонов по кровле, рам, вертикальных связей 1 и 2 районы строительства
ТП 903-1-244.87 КМ-16 Схема расположения прогонов по кровле, рам, вертикальных связей 3 район строительства
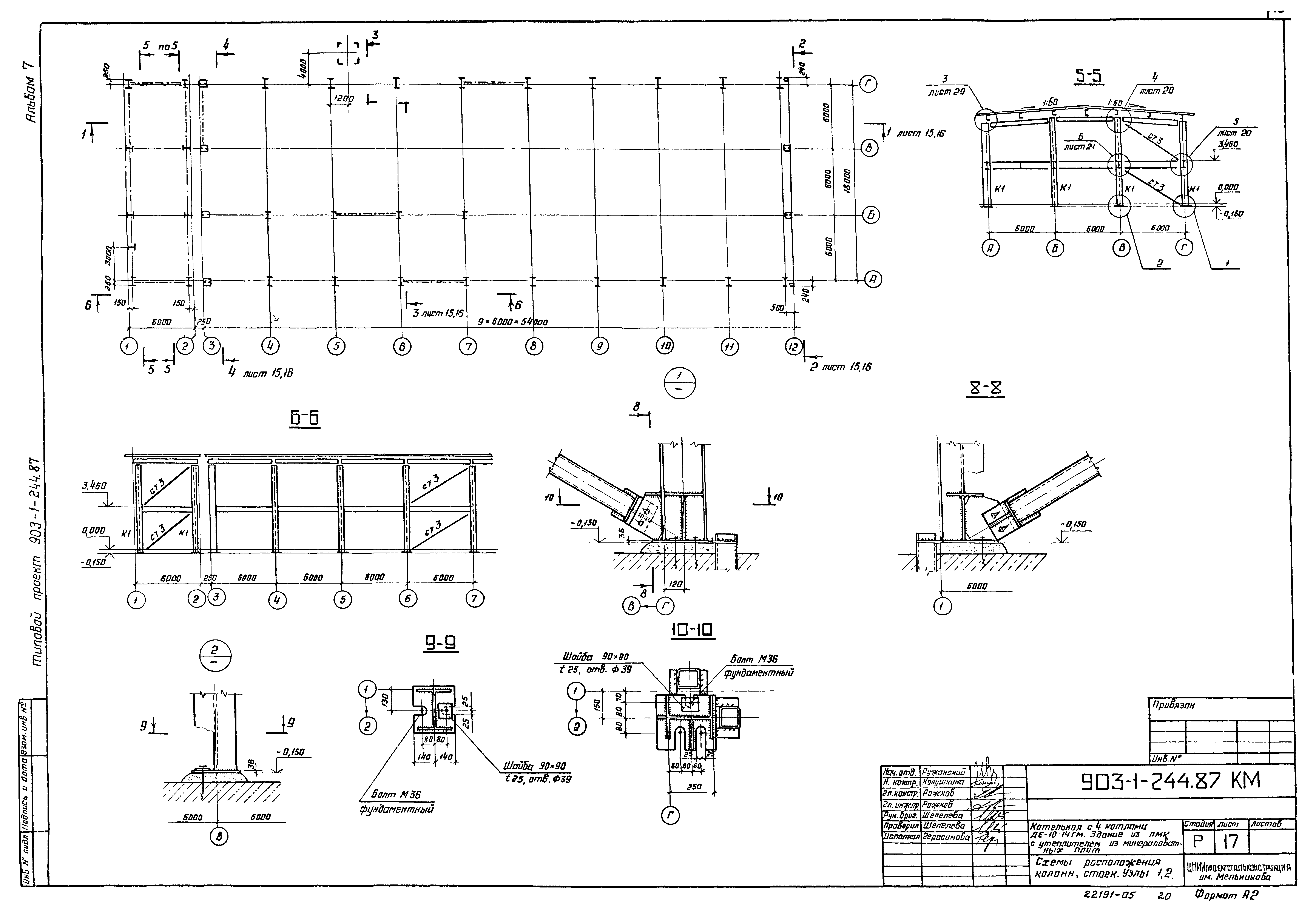
ТП 903-1-244.87 КМ-17 Схемы расположения колонн, стоек. Узлы 1,2
ТП 903-1-244.87 КМ-18 Технологическая площадка на отм. 3.600. Схема расположения балок и лестниц
ТП 903-1-244.87 КМ-19 Технологическая площадка на отм. 3.600. Разрезы 1-1;2-2;3-3;4-4
ТП 903-1-244.87 КМ-20 Узлы 3,4,5
ТП 903-1-244.87 КМ-21 Узлы 6,7,8
ТП 903-1-244.87 КМ-22 Узлы 9,10
ТП 903-1-244.87 КМ-23 Узлы 11,12,13,14,15,16. Разрез 8-8
ТП 903-1-244.87 КМ-24 Узлы 17,18,19,20,21
ТП 903-1-244.87 КМ-25 Схема расположения балок под вентиляторы и отверстий на кровле
ТП 903-1-244.87 КМ-26 Схема расположения консолей и насадок стоек фахверка
ТП 903-1-244.87 КМ-27 Схема расположения кронштейнов для крепления трубопроводов
ТП 903-1-244.87 КМ-28 Ворота ВТУ-1. Узлы 1-3
ТП 903-1-244.87 КМ-29 Ворота ВТУ-1. Узлы 4-12
ТП 903-1-244.87 КМ-30 Ворота ВТУ-1. Узел 13. Детали. Клапан КУ1
ТП 903-1-244.87 КМ-31 Схемы расположения площадки на 2.400 и ограждения приямка
ТП 903-1-244.87 КМ-32 Опора под деаэратор. Схемы расположения элементов опоры
ТП 903-1-244.87 КМ-33 Схема раскладки настила покрытия
ТП 903-1-244.87 КМ-34 Схема расположения элементов крепления трубопроводов
Разработан: ЦНИИпроектстальконструкция
Утверждён:17.04.1987 Госстрой СССР (Государственный комитет Совета Министров СССР по делам строительства) (USSR Gosstroy А4-43)
Расположен в:Техническая документация Строительство Справочные документы Типовые строительные конструкции, изделия и узлы Общероссийский строительный каталог Промышленные предприятия, здания и сооружения Здания и сооружения санитарно-технические Теплоснабжение Котельные установки Закрытые системы теплоснабжения Топливо - газ, резерв - мазут
Типовой проект 903-1-244.87Типовой проект 903-1-244.87Типовой проект 903-1-244.87Типовой проект 903-1-244.87Типовой проект 903-1-244.87Типовой проект 903-1-244.87Типовой проект 903-1-244.87Типовой проект 903-1-244.87Типовой проект 903-1-244.87Типовой проект 903-1-244.87Типовой проект 903-1-244.87Типовой проект 903-1-244.87Типовой проект 903-1-244.87Типовой проект 903-1-244.87Типовой проект 903-1-244.87Типовой проект 903-1-244.87Типовой проект 903-1-244.87Типовой проект 903-1-244.87Типовой проект 903-1-244.87Типовой проект 903-1-244.87Типовой проект 903-1-244.87Типовой проект 903-1-244.87Типовой проект 903-1-244.87Типовой проект 903-1-244.87Типовой проект 903-1-244.87Типовой проект 903-1-244.87Типовой проект 903-1-244.87Типовой проект 903-1-244.87Типовой проект 903-1-244.87Типовой проект 903-1-244.87Типовой проект 903-1-244.87Типовой проект 903-1-244.87Типовой проект 903-1-244.87Типовой проект 903-1-244.87Типовой проект 903-1-244.87Типовой проект 903-1-244.87Типовой проект 903-1-244.87Типовой проект 903-1-244.87

© 2013 Ёшкин Кот :-) Карта сайта