Информационная система
«Ёшкин Кот»

Скачать базу одним архивом
Скачать обновления
История создания базы
Карта сайта

Скачать Типовой проект 902-1-105.86 Альбом 3. Часть 2. Архитектурно-строительные решения. Надземная часть. Вариант - легкие металлические конструкции (из ТП 902-1-104.86)

Дата актуализации: 10.08.2017

Типовой проект 902-1-105.86

Альбом 3. Часть 2. Архитектурно-строительные решения. Надземная часть. Вариант - легкие металлические конструкции (из ТП 902-1-104.86)

Обозначение: Типовой проект 902-1-105.86
Обозначение англ: 902-1-105.86
Статус:не определен законодательством
Название рус.:Альбом 3. Часть 2. Архитектурно-строительные решения. Надземная часть. Вариант - легкие металлические конструкции (из ТП 902-1-104.86)
Дата добавления в базу:01.09.2013
Дата актуализации:05.05.2017
Дата введения:04.12.1986
Оглавление:ТП 902-1-104.86 Содержание альбома
ТП 902-1-104.86-АР Основной комплект марки АР
ТП 902-1-104.86-АР Общие данные (начало)
ТП 902-1-104.86-АР Общие данные (окончание)
ТП 902-1-104.86-АР План на отметке 0.000
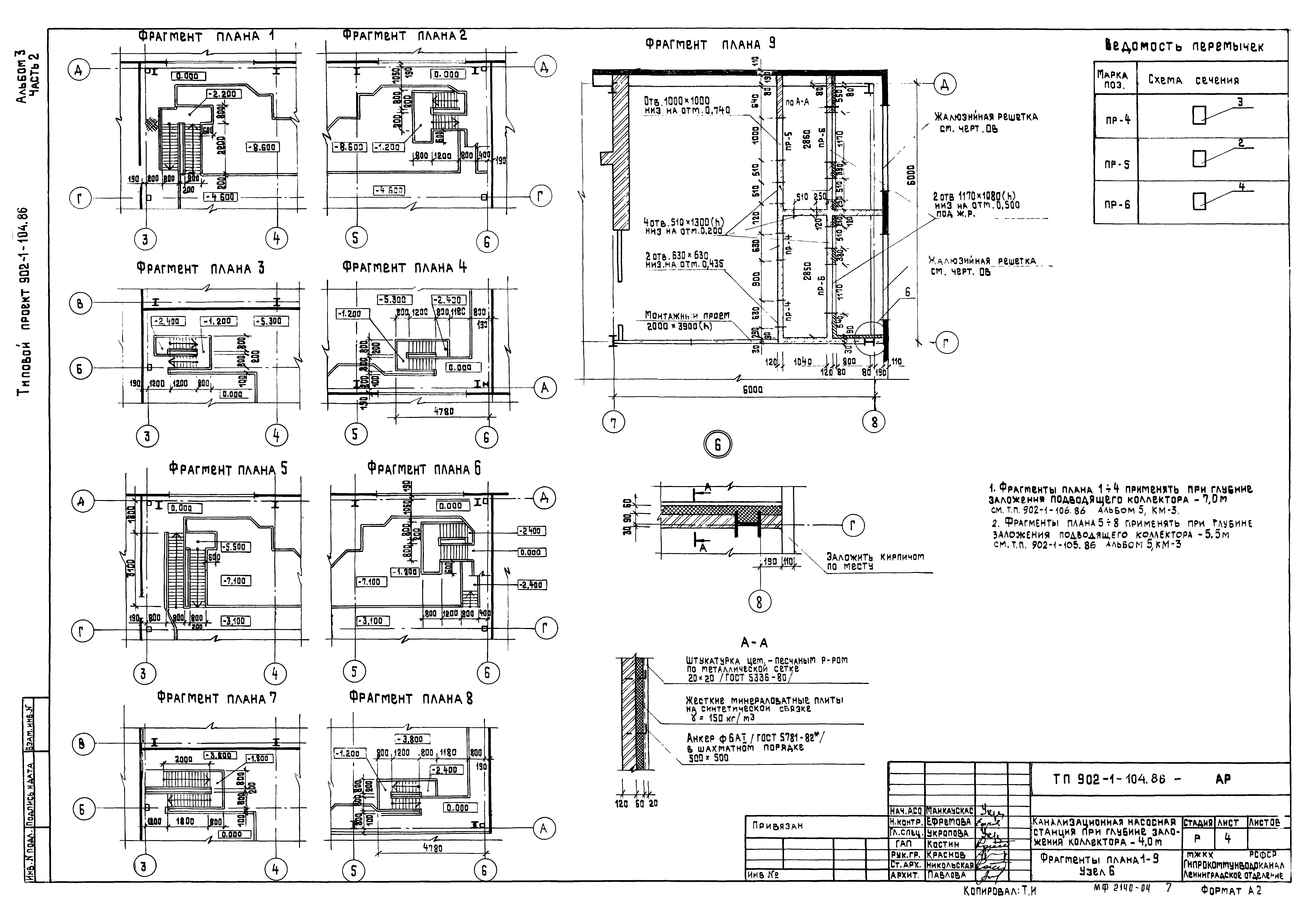
ТП 902-1-104.86-АР Фрагменты плана 1-9. Узел 6
ТП 902-1-104.86-АР Разрезы 1-1;2-2. Узлы 1-5
ТП 902-1-104.86-АР Фасады А-Д,Д-А,1-8,8-1
ТП 902-1-104.86-АР Планы полов. План отверстий на отм. 0.000
ТП 902-1-104.86-АР Схема расположения сборных перегородок
ТП 902-1-104.86-АР Узлы 7-12
ТП 902-1-104.86-КЖ Основной комплект марки КЖ
ТП 902-1-104.86-КЖ Общие данные
ТП 902-1-104.86-КЖ Схемы расположения свай и ростверков
ТП 902-1-104.86-КЖ Схема расположения фундаментов и фундаментных балок
ТП 902-1-104.86-КЖ РСм1. Армирование
ТП 902-1-104.86-КЖ РСм2-РСм4. Армирование
ТП 902-1-104.86-КЖ РСм2-РСм4. Фрагменты 1-5
ТП 902-1-104.86-КЖ РКм1. Общий вид. Разрезы 1-1÷8-8
ТП 902-1-104.86-КЖ РКм1. Балки ОБм1-ОБм5. Армирование
ТП 902-1-104.86-КЖ РКм1. Плита Пм1. Балки Бм1-Бм6. Армирование
ТП 902-1-104.86-КЖ РКм1. Спецификация (начало)
ТП 902-1-104.86-КЖ РКм1. Спецификация (окончание)
ТП 902-1-104.86-КЖ Схемы расположения плит перекрытия на отм. -1.030;-0.300;-0.030;-0.430
ТП 902-1-104.86-КЖ Электромещения. Схемы расположения элементов на отметке 0.000 и каналов
ТП 902-1-104.86-КЖ Элекропомещения. Разрезы 1-1÷4-4
ТП 902-1-104.86-КЖ Электропомещения. Плиты Пм1,2. Балки Бм1,2. Монолитный участок Ум1. Армирование. Горизонтальная диафрагма
ТП 902-1-104.86-КМ Основной комплект марки КМ
ТП 902-1-104.86-КМ Общие данные. Ведомость металлоконструкций по видам профилей
ТП 902-1-104.86-КМ Техническая спецификация металла (начало)
ТП 902-1-104.86-КМ Техническая спецификация металла (окончание)
ТП 902-1-104.86-КМ Расчетные данные
ТП 902-1-104.86-КМ Схемы каркаса
ТП 902-1-104.86-КМ Узлы к схеме каркаса 1-1÷9-9
ТП 902-1-104.86-КМ Узлы к схеме каркаса 10-15,18
ТП 902-1-104.86-КМ Схема покрытия
ТП 902-1-104.86-КМ Узлы к схеме покрытия
ТП 902-1-104.86-КМ Схемы расположения панелей
ТП 902-1-104.86-КМ Стеновые панели
ТП 902-1-104.86-КМ Схема расположения ригелей фахверка
ТП 902-1-104.86-КМ Схема расположения ригелей фахверка по оси "В". Вентшахты №1,№2
ТП 902-1-104.86-КМ Схема расположения подкрановых путей
ТП 902-1-104.86-КМ Подкрановые пути, узлы, детали
ТП 902-1-104.86-КМ Схема расположения монорельса. Площадка обслуживания
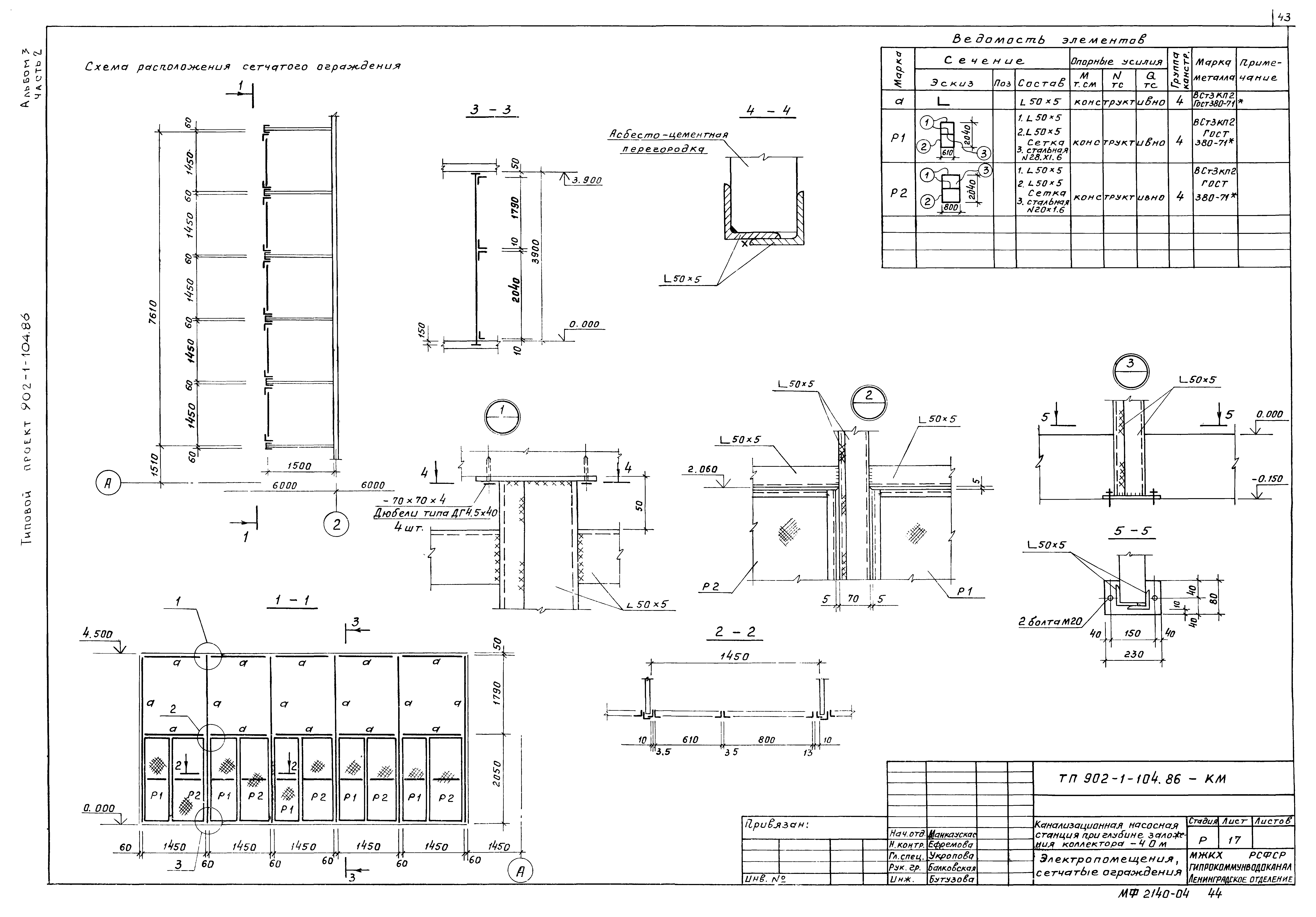
ТП 902-1-104.86-КМ Электропомещения. Сетчатые ограждения
ТП 902-1-104.86-КМ Пожарная лестница
Разработан: Ленинградское отделение Гипрокоммунводоканала
Утверждён:27.10.1986 МЖКХ РСФСР (462)
Расположен в:Техническая документация Строительство Справочные документы Типовые строительные конструкции, изделия и узлы Общероссийский строительный каталог Промышленные предприятия, здания и сооружения Здания и сооружения санитарно-технические Канализация Станции насосные Станции насосные для перекачки бытовых сточных вод
Заменяет собой:
Типовой проект 902-1-105.86Типовой проект 902-1-105.86Типовой проект 902-1-105.86Типовой проект 902-1-105.86Типовой проект 902-1-105.86Типовой проект 902-1-105.86Типовой проект 902-1-105.86Типовой проект 902-1-105.86Типовой проект 902-1-105.86Типовой проект 902-1-105.86Типовой проект 902-1-105.86Типовой проект 902-1-105.86Типовой проект 902-1-105.86Типовой проект 902-1-105.86Типовой проект 902-1-105.86Типовой проект 902-1-105.86Типовой проект 902-1-105.86Типовой проект 902-1-105.86Типовой проект 902-1-105.86Типовой проект 902-1-105.86Типовой проект 902-1-105.86Типовой проект 902-1-105.86Типовой проект 902-1-105.86Типовой проект 902-1-105.86Типовой проект 902-1-105.86Типовой проект 902-1-105.86Типовой проект 902-1-105.86Типовой проект 902-1-105.86Типовой проект 902-1-105.86Типовой проект 902-1-105.86Типовой проект 902-1-105.86Типовой проект 902-1-105.86Типовой проект 902-1-105.86Типовой проект 902-1-105.86Типовой проект 902-1-105.86Типовой проект 902-1-105.86Типовой проект 902-1-105.86Типовой проект 902-1-105.86Типовой проект 902-1-105.86Типовой проект 902-1-105.86Типовой проект 902-1-105.86Типовой проект 902-1-105.86Типовой проект 902-1-105.86Типовой проект 902-1-105.86Типовой проект 902-1-105.86Типовой проект 902-1-105.86

© 2013 Ёшкин Кот :-) Карта сайта