Информационная система
«Ёшкин Кот»

Скачать базу одним архивом
Скачать обновления
История создания базы
Карта сайта

Скачать Типовой проект 901-8-10.83 Альбом III. Электротехническая часть. Связь и сигнализация

Дата актуализации: 10.08.2017

Типовой проект 901-8-10.83

Альбом III. Электротехническая часть. Связь и сигнализация

Обозначение: Типовой проект 901-8-10.83
Обозначение англ: 901-8-10.83
Статус:не определен законодательством
Название рус.:Альбом III. Электротехническая часть. Связь и сигнализация
Дата добавления в базу:01.09.2013
Дата актуализации:05.05.2017
Дата введения:17.12.1982
Оглавление:ТП 901-8-10.83 Содержание альбома
ТП 901-8-10.83 ЭМ Силовое электрооборудование
ТП 901-8-10.83 ЭМ-1 Общие данные
ТП 901-8-10.83 ЭМ-2 Трансформаторная подстанция. Схема принципиальная электрическая
ТП 901-8-10.83 ЭМ-3 Схема электрическая принципиальная распределительной сети ~380/220В /Начало/
ТП 901-8-10.83 ЭМ-4 Схема электрическая принципиальная распределительной сети ~380/220В /Окончание/
ТП 901-8-10.83 ЭМ-5 Схема электрическая принципиальная управления хозпротивопожарными насосами М1(М2-М4)
ТП 901-8-10.83 ЭМ-6 Схема электрическая принципиальная управления дренажными насосами М7;М8
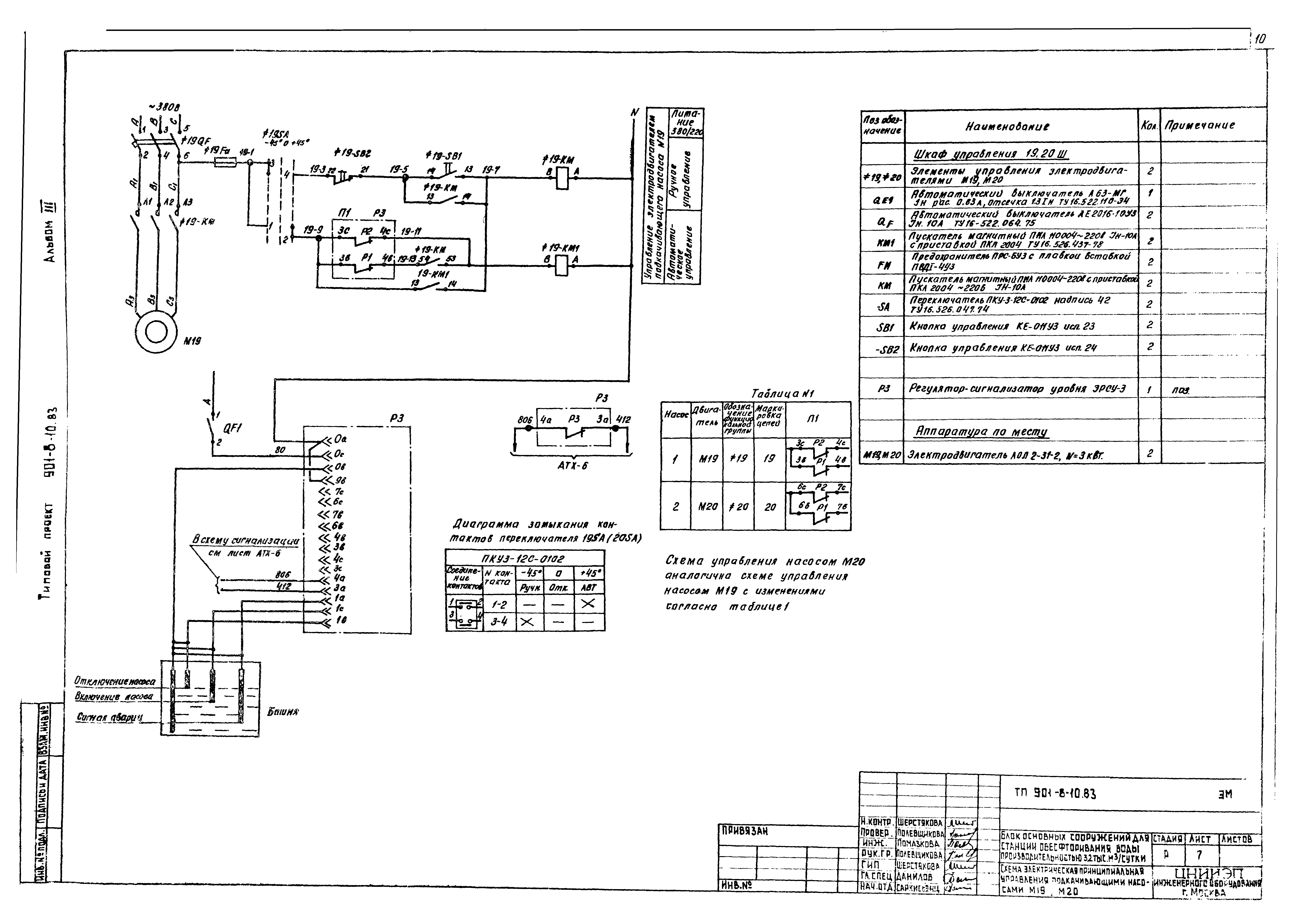
ТП 901-8-10.83 ЭМ-7 Схема электрическая принципиальная управления подкачивающими насосами М19;М20
ТП 901-8-10.83 ЭМ-8 Схема электрическая принципиальная управления задвижками М21-М25
ТП 901-8-10.83 ЭМ-9 Схема подключения задвижек М21-М25
ТП 901-8-10.83 ЭМ-10 Шкаф навесной счетчиков. Общий вид. Принципиальная схема. Схема соединений
ТП 901-8-10.83 ЭМ-11 Кабельный журнал (Начало)
ТП 901-8-10.83 ЭМ-12 Кабельный журнал (Продолжение)
ТП 901-8-10.83 ЭМ-13 Кабельный журнал (Окончание)
ТП 901-8-10.83 ЭМ-14 Размещение электрооборудования и прокладка кабелей. Планы на отм. -0.500;0.000
ТП 901-8-10.83 ЭМ-15 Размещение электрооборудования и прокладка кабелей. Планы на отм. 0.000;3.600
ТП 901-8-10.83 ЭМ-16 Размещение электрооборудования и прокладка кабелей. Планы на отм. -2.400;-0.500;0.00;3.600
ТП 901-8-10.83 ЭМ-17 Размещение электрооборудования и прокладка кабелей. Спецификация
ТП 901-8-10.83 ЭМ-18 План прокладки троллейного шинопровода для электрической тали
ТП 901-8-10.83 ЭМ-19 Трансформаторная подстанция. Установка электрооборудования. План и разрез
ТП 901-8-10.83 ЭМ-20 Трансформаторная подстанция. Выводы н.н в камере трансформатора. Конструкции
ТП 901-8-10.83 ЭМ-21 Трансформаторная подстанция. Заземление. План. Узлы и детали
ТП 901-8-10.83 ЭМ.ОЛ1 Опросный лист для заказа камер серии КСО-366
ТП 901-8-10.83 ЭМ.ОЛ2 Опросный лист для заказа щита из панелей ЩО70
ТП 901-8-10.83 ЭО Электроосвещение
ТП 901-8-10.83 ЭО-1 Общие данные
ТП 901-8-10.83 ЭО-2 Электрическое освещение. Планы на отм. -0.500;0.000
ТП 901-8-10.83 ЭО-3 Электрическое освещение. План на отм. 3.600
ТП 901-8-10.83 АТХ Автоматизация технологического процесса
ТП 901-8-10.83 АТХ-1 Общие данные. Схема функциональная приточной системы П-1
ТП 901-8-10.83 АТХ-2 Схема функциональная технологического процесса
ТП 901-8-10.83 АТХ-3 Схема электрическая принципиальная управления приточной системой П-1
ТП 901-8-10.83 АТХ-4 Схема электрическая принципиальная управления электронагревателем. Схема подключения электрооборудования
ТП 901-8-10.83 АТХ-5 Схема электрическая принципиальная распределительной сети
ТП 901-8-10.83 АТХ-6 Схема электрическая принципиальная сигнализации
ТП 901-8-10.83 АТХ-7 Схема внешних проводок приточной системы П-1
ТП 901-8-10.83 АТХ-8 Схема внешних проводок (Начало)
ТП 901-8-10.83 АТХ-9 Схема внешних проводок (Окончание)
ТП 901-8-10.83 АТХ-10 Схема подключения
ТП 901-8-10.83 АТХ-11 Размещение электрооборудования и прокладка кабелей. План на отм. 0.000;-0.500;3.600
ТП 901-8-10.83 АТХ-12 Размещение электрооборудования и прокладка кабелей. План на отм. -0.500;0.000;3.600
ТП 901-8-10.83 АТХ-13 Размещение электрооборудования и прокладка кабелей. План на отм. 3.600
ТП 901-8-10.83 СС Связь и сигнализация
ТП 901-8-10.83 СС-1 Общие данные. План на отм. 0.000 и 3.600 с сетями связи
Разработан: ЦНИИЭП иженерного оборудования
Утверждён:22.07.1981 Госгражданстрой (Gosgrazhdanstroy 219)
Расположен в:Техническая документация Строительство Справочные документы Типовые строительные конструкции, изделия и узлы Общероссийский строительный каталог Промышленные предприятия, здания и сооружения Здания и сооружения санитарно-технические Водоснабжение Сооружения и установки по подготовке питьевой воды Станции обесфторивания воды
Типовой проект 901-8-10.83Типовой проект 901-8-10.83Типовой проект 901-8-10.83Типовой проект 901-8-10.83Типовой проект 901-8-10.83Типовой проект 901-8-10.83Типовой проект 901-8-10.83Типовой проект 901-8-10.83Типовой проект 901-8-10.83Типовой проект 901-8-10.83Типовой проект 901-8-10.83Типовой проект 901-8-10.83Типовой проект 901-8-10.83Типовой проект 901-8-10.83Типовой проект 901-8-10.83Типовой проект 901-8-10.83Типовой проект 901-8-10.83Типовой проект 901-8-10.83Типовой проект 901-8-10.83Типовой проект 901-8-10.83Типовой проект 901-8-10.83Типовой проект 901-8-10.83Типовой проект 901-8-10.83Типовой проект 901-8-10.83Типовой проект 901-8-10.83Типовой проект 901-8-10.83Типовой проект 901-8-10.83Типовой проект 901-8-10.83Типовой проект 901-8-10.83Типовой проект 901-8-10.83Типовой проект 901-8-10.83Типовой проект 901-8-10.83Типовой проект 901-8-10.83Типовой проект 901-8-10.83Типовой проект 901-8-10.83Типовой проект 901-8-10.83Типовой проект 901-8-10.83Типовой проект 901-8-10.83Типовой проект 901-8-10.83Типовой проект 901-8-10.83Типовой проект 901-8-10.83Типовой проект 901-8-10.83Типовой проект 901-8-10.83Типовой проект 901-8-10.83

© 2013 Ёшкин Кот :-) Карта сайта