Информационная система
«Ёшкин Кот»

Скачать базу одним архивом
Скачать обновления
История создания базы
Карта сайта

Скачать Типовой проект 703-1-6.86 Альбом 2. Архитектурные решения. Конструкции железобетонные

Дата актуализации: 10.08.2017

Типовой проект 703-1-6.86

Альбом 2. Архитектурные решения. Конструкции железобетонные

Обозначение: Типовой проект 703-1-6.86
Обозначение англ: 703-1-6.86
Статус:не определен законодательством
Название рус.:Альбом 2. Архитектурные решения. Конструкции железобетонные
Дата добавления в базу:01.09.2013
Дата актуализации:05.05.2017
Дата введения:23.05.1986
Оглавление:ТП 703-1-6.86 АР1 Общие данные (начало)
ТП 703-1-6.86 АР2 Общие данные (окончание)
ТП 703-1-6.86 АР3 План на отм. 0.000. Фрагмент 1
ТП 703-1-6.86 АР4 Разрезы 1-1;2-2
ТП 703-1-6.86 АР5 Разрез 5-5. Фасад 1-10. Схемы заполнения оконных проемов
ТП 703-1-6.86 АР6 Фасады А-И,И-А,10-1
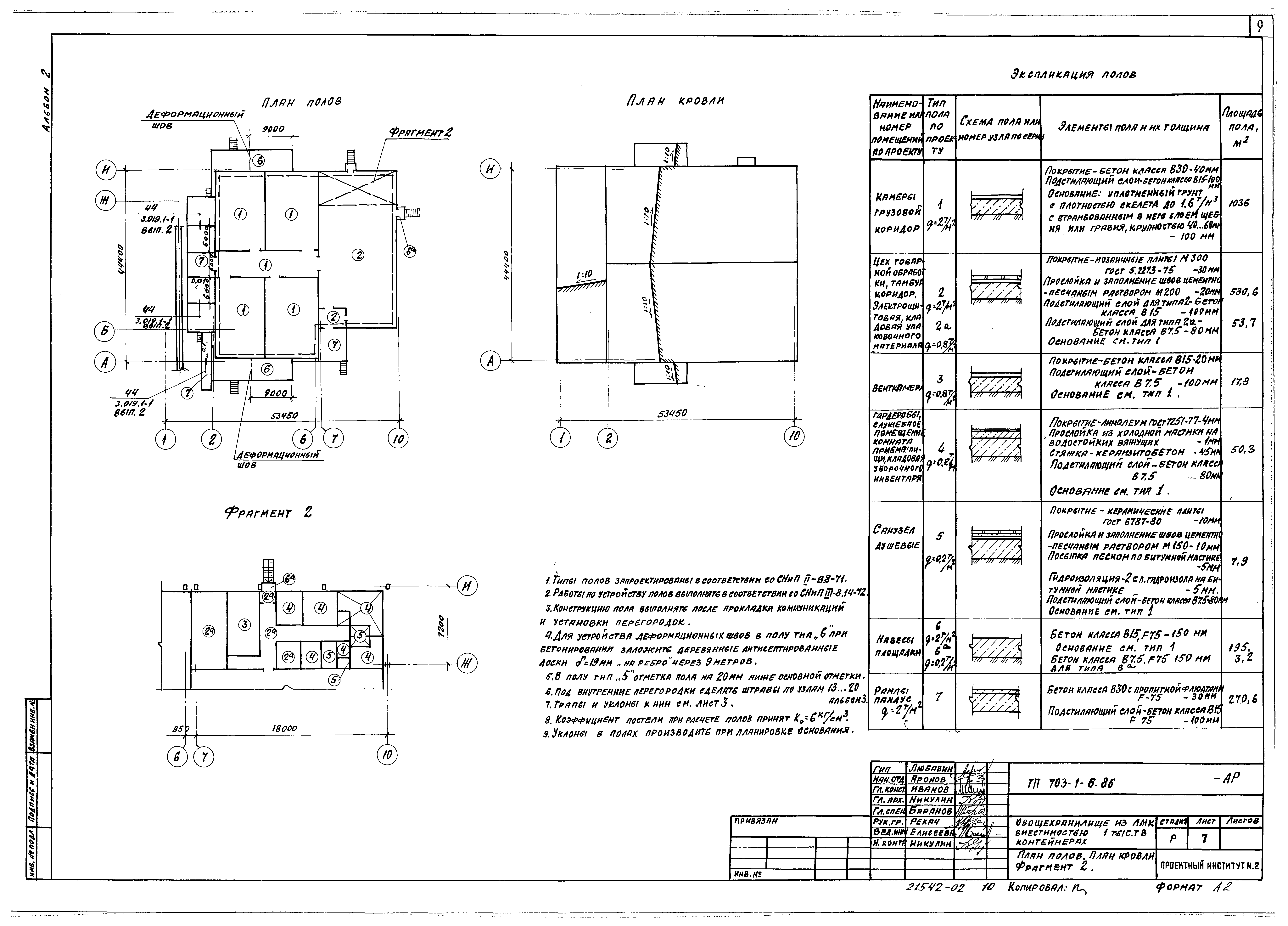
ТП 703-1-6.86 АР7 План полов, план кровли. Фрагмент 2
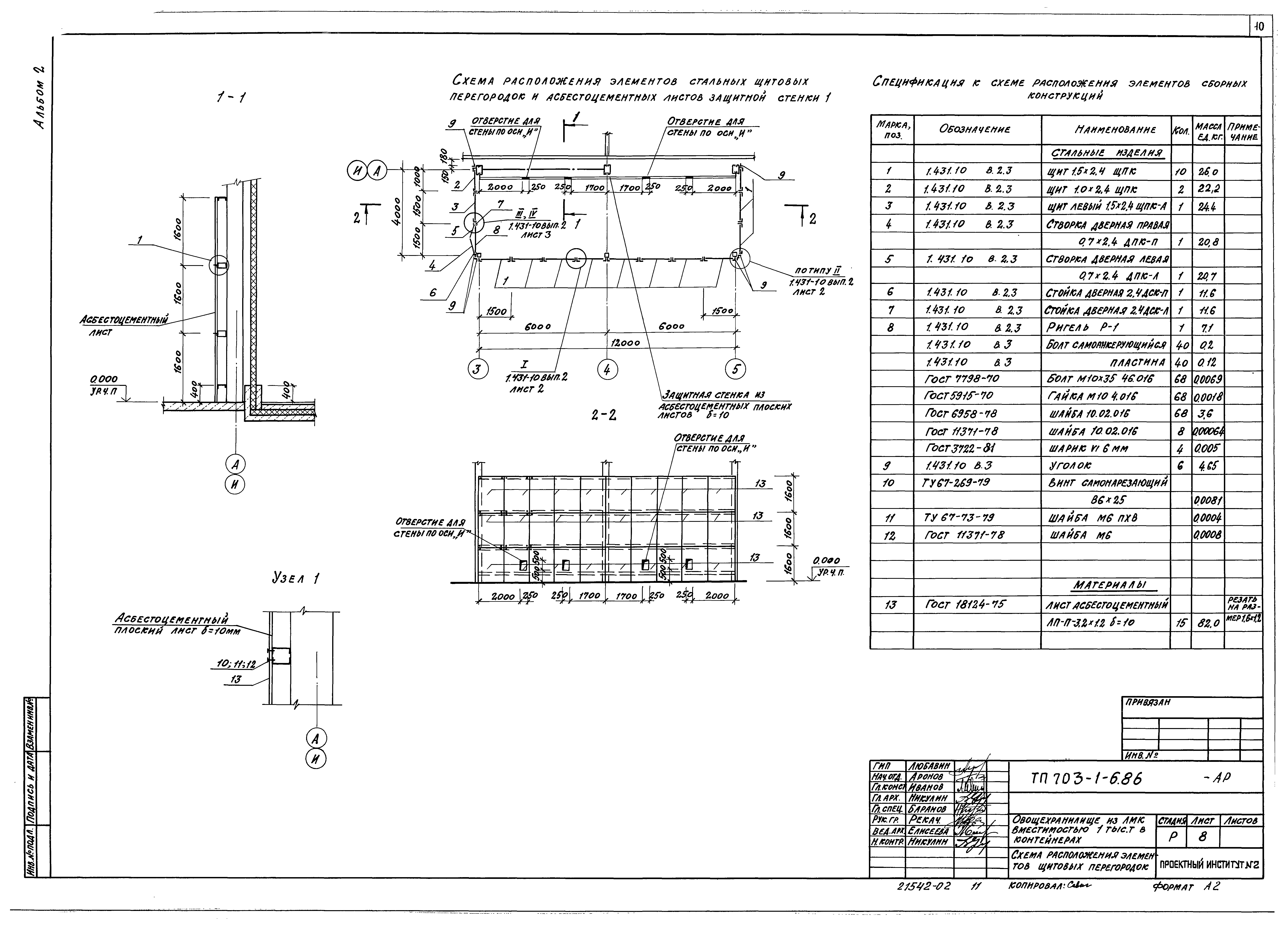
ТП 703-1-6.86 АР8 Схемы расположения элементов щитовых перегородок
ТП 703-1-6.86 АР9 Спецификация элементов к узлам заполнения дверных проемов и ворот
ТП 703-1-6.86 АР10 Схемы расположения стеновых панелей в осях "И...А";"2...6";"А";"1...10";"А/2";"2...6";"Д"
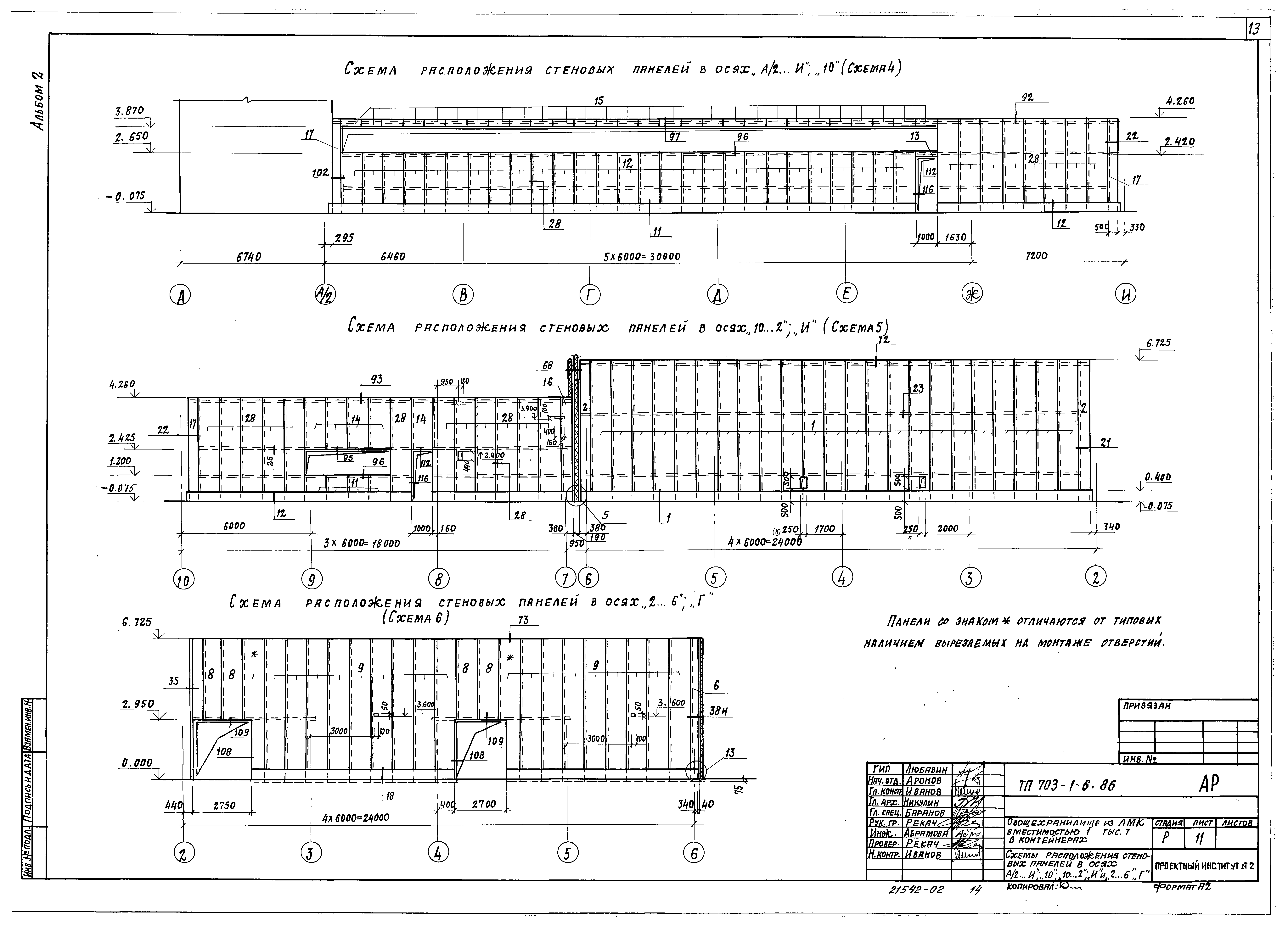
ТП 703-1-6.86 АР11 Схемы расположения стеновых панелей в осях "А/2...И";"10";"10...2";"И";и"2...6";"Г"
ТП 703-1-6.86 АР12 Схемы расположения стеновых панелей в осях "А/2...И";"7";"Б...А";"6";"7...10";"Ж...И"
ТП 703-1-6.86 АР13 Схемы расположения панелей перегородок в осях "7...10";"Ж...И". Сечение 1-1...10-10
ТП 703-1-6.86 АР14 Схемы расположения панелей перегородок в осях "7...10";"Ж...И";сечение 11-11...13-13; и "7-8"..."А/2"; сечение 14-14;15-15
ТП 703-1-6.86 АР15 Схемы расположения противопожарных стен и перегородок в осях "А...И";"6";"7...10";"Ж"; сечение 16-16...18-18
ТП 703-1-6.86 АР16 Спецификация к схемам расположения стеновых панелей и перегородок (начало)
ТП 703-1-6.86 АР17 Спецификация к схемам расположения стеновых панелей и перегородок (окончание)
ТП 703-1-6.86 АР18 Схема расположения элементов подвесного потолка
ТП 703-1-6.86 АР19 Схема расположения элементов подвесного потолка. Фрагмент 1
ТП 703-1-6.86 КЖ1 Общие данные
ТП 703-1-6.86 КЖ2 Схема расположения фундаментов
ТП 703-1-6.86 КЖ3 Схема расположения фундаментов. Фрагмент 1...4
ТП 703-1-6.86 КЖ4 Схема расположения фундаментов. Фрагмент 5...7
ТП 703-1-6.86 КЖ5 Схема расположения фундаментов. Фундамент ФМ1...ФМ4
ТП 703-1-6.86 КЖ6 Схема расположения фундаментов. Фундамент ФМ5...ФМ8Н
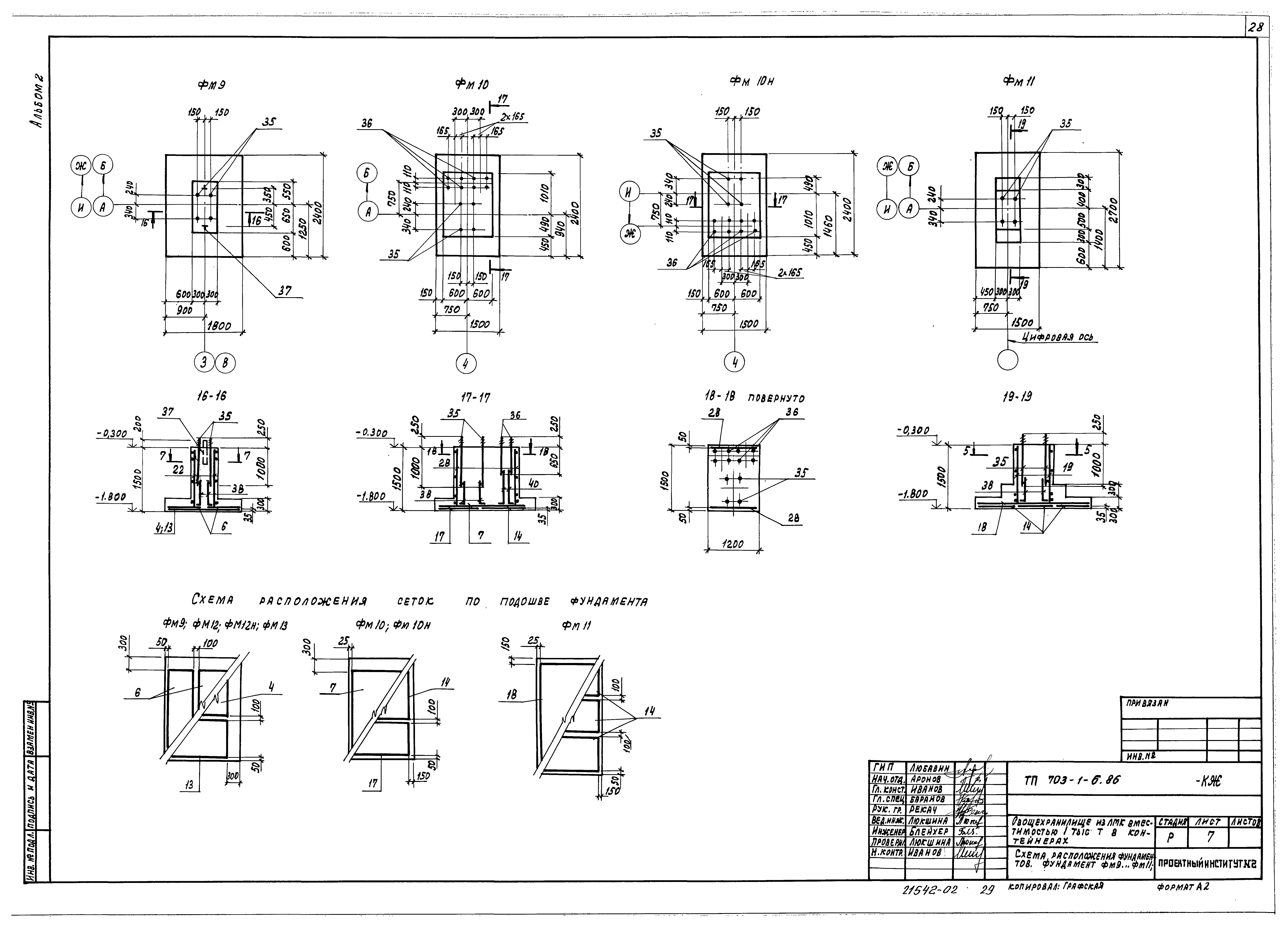
ТП 703-1-6.86 КЖ7 Схема расположения фундаментов. Фундамент ФМ9...ФМ11
ТП 703-1-6.86 КЖ8 Схема расположения фундаментов. Фундамент ФМ12...ФМ15
ТП 703-1-6.86 КЖ9 Схема расположения фундаментов. Выборка сеток фундамента (начало). Схема и таблица нагрузок на ФМ1,ФМ2
ТП 703-1-6.86 КЖ10 Схема расположения фундаментов. Выборка сеток фундамента (окончание). Фундамент ФМ16...ФМ18
ТП 703-1-6.86 КЖ11 Схема расположения фундаментов. Ведомость расхода стали на элемент. Схема и таблица нагрузок на ФМ3;ФМ4
ТП 703-1-6.86 КЖ12 Схема расположения фундаментов. Схема и таблица нагрузок на ФМ5...ФМ13
ТП 703-1-6.86 КЖ13 Схема расположения фундаментов. Схема и таблица нагрузок на ФМ12...ФМ18
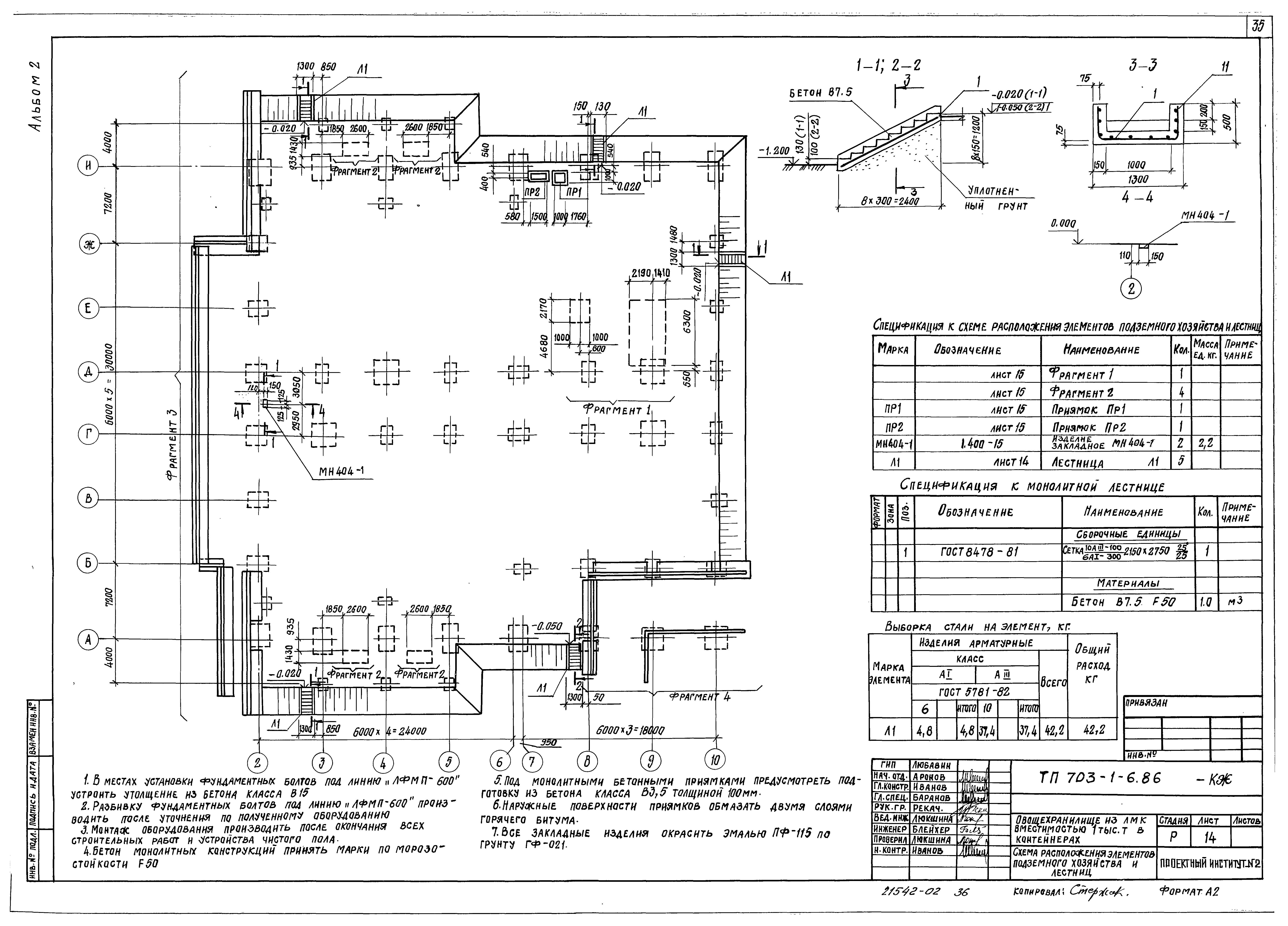
ТП 703-1-6.86 КЖ14 Схема расположения подземного хозяйства и лестниц
ТП 703-1-6.86 КЖ15 Схема расположения подземного хозяйства. Фрагмент 1,2. Приямок ПР1,ПР2
ТП 703-1-6.86 КЖ16 Схема расположения подземного хозяйства. Фрагмент 3,4. Сечение 1-1
ТП 703-1-6.86 КЖ17 Схема расположения подземного хозяйства. Фрагмент 3,4. Сечение 2-2...11-11
ТП 703-1-6.86 КЖ18 Схема расположения цоколей. Узел 1,2
ТП 703-1-6.86 КЖИ-ТУ1 Технические условия на изготовление сборных железобетонных конструкций
ТП 703-1-6.86 КЖИ-ТУ2 Технические условия на изготовление арматурных закладных изделий
ТП 703-1-6.86 КЖИ-1 Изделие закладное МН1
ТП 703-1-6.86 КЖИ-2 Плита фундаментная ПФ1-16
ТП 703-1-6.86 КЖИ-2СБ Плита фундаментная ПФ1-16. Сборочный чертеж
ТП 703-1-6.86 КЖИ-2.1 Сетка С1
ТП 703-1-6.86 КЖИ-2.2 Сетка С2
ТП 703-1-6.86 КЖИ-2.3 Сетка С3
ТП 703-1-6.86 КЖИ-2.4 Сетка С4
ТП 703-1-6.86 КЖИ-2.5 Сетка С5
ТП 703-1-6.86 КЖИ-2.6 Каркас КР1
ТП 703-1-6.86 КЖИ-3 Плита лицевая ПЛ1-1А
ТП 703-1-6.86 КЖИ-3 СБ Плита лицевая ПЛ1-1А. Сборочный чертеж
ТП 703-1-6.86 КЖИ-3.1 Сетка С6
ТП 703-1-6.86 КЖИ-3.2 Сетка С7
ТП 703-1-6.86 КЖИ-3.3 Сетка С8
ТП 703-1-6.86 КЖИ-3.4 Каркас КР2
ТП 703-1-6.86 КЖИ-4 Шпилька горизонтальная (ШП1...ШП4)
ТП 703-1-6.86 КЖИ-5 Шпилька вертикальная (А1...А4)
ТП 703-1-6.86 КЖИ-6 Щит Щ1
Разработан: Проектный институт №2
Утверждён:17.02.1986 Министерство торговли СССР (USSR Ministry of Commerce 31/П-3)
Расположен в:Техническая документация Строительство Справочные документы Типовые строительные конструкции, изделия и узлы Общероссийский строительный каталог Промышленные предприятия, здания и сооружения Предприятия, здания и сооружения складские Овощехранилища и фруктохранилища Овощехранилища
Типовой проект 703-1-6.86Типовой проект 703-1-6.86Типовой проект 703-1-6.86Типовой проект 703-1-6.86Типовой проект 703-1-6.86Типовой проект 703-1-6.86Типовой проект 703-1-6.86Типовой проект 703-1-6.86Типовой проект 703-1-6.86Типовой проект 703-1-6.86Типовой проект 703-1-6.86Типовой проект 703-1-6.86Типовой проект 703-1-6.86Типовой проект 703-1-6.86Типовой проект 703-1-6.86Типовой проект 703-1-6.86Типовой проект 703-1-6.86Типовой проект 703-1-6.86Типовой проект 703-1-6.86Типовой проект 703-1-6.86Типовой проект 703-1-6.86Типовой проект 703-1-6.86Типовой проект 703-1-6.86Типовой проект 703-1-6.86Типовой проект 703-1-6.86Типовой проект 703-1-6.86Типовой проект 703-1-6.86Типовой проект 703-1-6.86Типовой проект 703-1-6.86Типовой проект 703-1-6.86Типовой проект 703-1-6.86Типовой проект 703-1-6.86Типовой проект 703-1-6.86Типовой проект 703-1-6.86Типовой проект 703-1-6.86Типовой проект 703-1-6.86Типовой проект 703-1-6.86Типовой проект 703-1-6.86Типовой проект 703-1-6.86Типовой проект 703-1-6.86Типовой проект 703-1-6.86Типовой проект 703-1-6.86Типовой проект 703-1-6.86Типовой проект 703-1-6.86Типовой проект 703-1-6.86Типовой проект 703-1-6.86

© 2013 Ёшкин Кот :-) Карта сайта