Информационная система
«Ёшкин Кот»

Скачать базу одним архивом
Скачать обновления
История создания базы
Карта сайта

Скачать Типовой проект 703-1-5.86 Альбом 4. Конструкции металлические

Дата актуализации: 10.08.2017

Типовой проект 703-1-5.86

Альбом 4. Конструкции металлические

Обозначение: Типовой проект 703-1-5.86
Обозначение англ: 703-1-5.86
Статус:не определен законодательством
Название рус.:Альбом 4. Конструкции металлические
Дата добавления в базу:01.09.2013
Дата актуализации:05.05.2017
Дата введения:23.05.1986
Оглавление:ТП 703-1-5.86 Титульный лист
ТП 703-1-5.86 Содержание альбома
ТП 703-1-5.86 КМ-1 Общие данные (начало)
ТП 703-1-5.86 КМ-2 Общие данные (продолжение)
ТП 703-1-5.86 КМ-3 Общие данные (окончание)
ТП 703-1-5.86 КМ-4 Техническая спецификация металла (начало)
ТП 703-1-5.86 КМ-5 Техническая спецификация металла (продолжение)
ТП 703-1-5.86 КМ-6 Техническая спецификация металла (продолжение)
ТП 703-1-5.86 КМ-7 Техническая спецификация металла (окончание)
ТП 703-1-5.86 КМ-8 Ведомость металлоконструкций по видам профилей
ТП 703-1-5.86 КМ-9 Схема расчетных нагрузок на фундаменты ОП1-ОП5 в осях 1-11
ТП 703-1-5.86 КМ-10 Схема расчетных нагрузок на фундаменты ОП1-ОП5 в осях 12-16
ТП 703-1-5.86 КМ-11 Таблица нагрузок на фундаменты (начало)
ТП 703-1-5.86 КМ-12 Таблица нагрузок на фундаменты (продолжение)
ТП 703-1-5.86 КМ-13 Таблица нагрузок на фундаменты (окончание)
ТП 703-1-5.86 КМ-14 Схема расположения баз колонн. Фрагмент 1-6
ТП 703-1-5.86 КМ-15 Типы баз колонн. Сечения 1-1÷6-6
ТП 703-1-5.86 КМ-16 Схема расположения колонн и связей в осях 1-11
ТП 703-1-5.86 КМ-17 Схема расположения колонн и связей в осях 12-16
ТП 703-1-5.86 КМ-18 Разрезы 1-1;2-2
ТП 703-1-5.86 КМ-19 Разрезы 3-3;4-4;5-5
ТП 703-1-5.86 КМ-20 Разрезы 6-6;7-7;8-8;9-9;10-10
ТП 703-1-5.86 КМ-21 Схема расположения элементов покрытия в осях 1-11
ТП 703-1-5.86 КМ-22 Схема расположения элементов покрытия в осях 12-16
ТП 703-1-5.86 КМ-23 Разрезы 11-11÷15-15
ТП 703-1-5.86 КМ-24 Схема раскладки настила каркаса и навесов. Стык постов. Фрагмент1
ТП 703-1-5.86 КМ-25 Схема расположения элементов подвесного перекрытия
ТП 703-1-5.86 КМ-26 Схема расположения элементов подвесного перекрытия. Разрезы 16-16;17-17;18-18
ТП 703-1-5.86 КМ-27 Схема расположения ригелей фахверка по осям А;И;16
ТП 703-1-5.86 КМ-28 Схема расположения ригелей фахверка по осям 2;Б/1 между осями 11-12 и 6-7
ТП 703-1-5.86 КМ-29 Схема расположения ригелей фахверка по осям Г и Д
ТП 703-1-5.86 КМ-30 Схема расположения крепления коммуникаций
ТП 703-1-5.86 КМ-31 Опоры ОП1-ОП3. Сечения 1-1÷9-9
ТП 703-1-5.86 КМ-32 Площадки металлические ПМ1-ПМ4
ТП 703-1-5.86 КМ-33 Разрезы 19-19÷21-21
ТП 703-1-5.86 КМ-34 Рамы Р1,Р2. Лестница Л1. Опора ОП4
ТП 703-1-5.86 КМ-35 Схемы расположения лестниц Л2,Л3,Л4 и площадок ПМ5
ТП 703-1-5.86 КМ-36 Узлы 1,2
ТП 703-1-5.86 КМ-37 Узлы 3,4,5
ТП 703-1-5.86 КМ-38 Узлы 6,7
ТП 703-1-5.86 КМ-39 Узлы 8,9
ТП 703-1-5.86 КМ-40 Узлы 10,11
ТП 703-1-5.86 КМ-41 Узлы 12,13,14
ТП 703-1-5.86 КМ-42 Узлы 15,16
ТП 703-1-5.86 КМ-43 Узлы 17,18,19
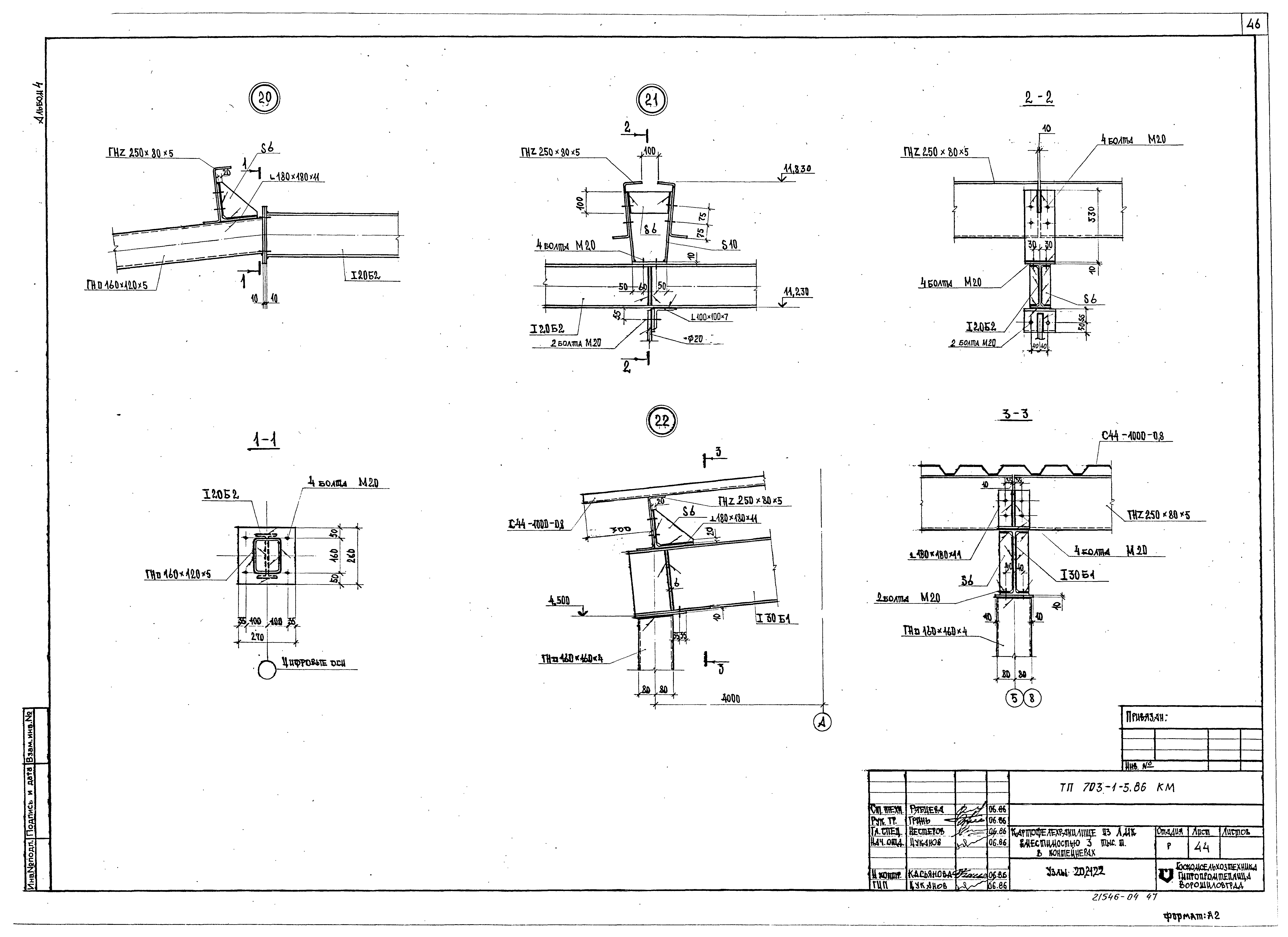
ТП 703-1-5.86 КМ-44 Узлы 20,21,22
ТП 703-1-5.86 КМ-45 Узлы 23,24
ТП 703-1-5.86 КМ-46 Узлы 25,26
ТП 703-1-5.86 КМ-47 Узлы 27,28
ТП 703-1-5.86 КМ-48 Узлы 29,30
ТП 703-1-5.86 КМ-49 Узлы 31,32
ТП 703-1-5.86 КМ-50 Узлы 33,34
ТП 703-1-5.86 КМ-51 Узлы 35,36
ТП 703-1-5.86 КМ-52 Узлы 37,38,39
ТП 703-1-5.86 КМ-53 Узлы 40
ТП 703-1-5.86 КМ-54 Узлы 41,42,43
ТП 703-1-5.86 КМ-55 Узлы 44,45
ТП 703-1-5.86 КМ-56 Узлы 46,47,48,49
ТП 703-1-5.86 КМ-57 Узлы 50,51,52
ТП 703-1-5.86 КМ-58 Узлы 53-39
ТП 703-1-5.86 КМ-59 Фермы ФС1,ФС2. Узлы 60,61,62,63,64,65,66,67
ТП 703-1-5.86 КМ-60 Схема расположения ворот. Узлы 68-70
Разработан: Гипропромтеплица
Утверждён:17.02.1986 Министерство торговли СССР (USSR Ministry of Commerce 31/П-3)
Расположен в:Техническая документация Строительство Справочные документы Типовые строительные конструкции, изделия и узлы Общероссийский строительный каталог Промышленные предприятия, здания и сооружения Предприятия, здания и сооружения складские Овощехранилища и фруктохранилища Овощехранилища
Типовой проект 703-1-5.86Типовой проект 703-1-5.86Типовой проект 703-1-5.86Типовой проект 703-1-5.86Типовой проект 703-1-5.86Типовой проект 703-1-5.86Типовой проект 703-1-5.86Типовой проект 703-1-5.86Типовой проект 703-1-5.86Типовой проект 703-1-5.86Типовой проект 703-1-5.86Типовой проект 703-1-5.86Типовой проект 703-1-5.86Типовой проект 703-1-5.86Типовой проект 703-1-5.86Типовой проект 703-1-5.86Типовой проект 703-1-5.86Типовой проект 703-1-5.86Типовой проект 703-1-5.86Типовой проект 703-1-5.86Типовой проект 703-1-5.86Типовой проект 703-1-5.86Типовой проект 703-1-5.86Типовой проект 703-1-5.86Типовой проект 703-1-5.86Типовой проект 703-1-5.86Типовой проект 703-1-5.86Типовой проект 703-1-5.86Типовой проект 703-1-5.86Типовой проект 703-1-5.86Типовой проект 703-1-5.86Типовой проект 703-1-5.86Типовой проект 703-1-5.86Типовой проект 703-1-5.86Типовой проект 703-1-5.86Типовой проект 703-1-5.86Типовой проект 703-1-5.86Типовой проект 703-1-5.86Типовой проект 703-1-5.86Типовой проект 703-1-5.86Типовой проект 703-1-5.86Типовой проект 703-1-5.86Типовой проект 703-1-5.86Типовой проект 703-1-5.86Типовой проект 703-1-5.86Типовой проект 703-1-5.86Типовой проект 703-1-5.86Типовой проект 703-1-5.86Типовой проект 703-1-5.86Типовой проект 703-1-5.86Типовой проект 703-1-5.86Типовой проект 703-1-5.86Типовой проект 703-1-5.86Типовой проект 703-1-5.86Типовой проект 703-1-5.86Типовой проект 703-1-5.86Типовой проект 703-1-5.86Типовой проект 703-1-5.86Типовой проект 703-1-5.86Типовой проект 703-1-5.86Типовой проект 703-1-5.86Типовой проект 703-1-5.86Типовой проект 703-1-5.86

© 2013 Ёшкин Кот :-) Карта сайта