Информационная система
«Ёшкин Кот»

Скачать базу одним архивом
Скачать обновления
История создания базы
Карта сайта

Скачать Типовой проект 902-2-374.83 Альбом II. Технологическая, строительная и электротехническая части

Дата актуализации: 10.08.2017

Типовой проект 902-2-374.83

Альбом II. Технологическая, строительная и электротехническая части

Обозначение: Типовой проект 902-2-374.83
Обозначение англ: 902-2-374.83
Статус:не определен законодательством
Название рус.:Альбом II. Технологическая, строительная и электротехническая части
Дата добавления в базу:01.09.2013
Дата актуализации:05.05.2017
Дата введения:17.05.1992
Оглавление:ТП 902-2-374.83 Содержание альбома
ТП 902-2-374.83 ТХ Технологическая часть
ТП 902-2-374.83 ТХ-1 Общие данные
ТП 902-2-374.83 ТХ-2 План. Разрезы 1-1,2-2. Детали
ТП 902-2-374.83 ТХ-3 Схемы систем: 1В9:И1;2В9;АО:И2
ТП 902-2-374.83 ТХ-4 Спецификация систем: 1В9:И1;2В9;АО:И2
ТП 902-2-374.83 ТХ-5 Спецификация систем: 1В9:И1;2В9;АО:И2 (продолжение)
ТП 902-2-374.83 КЖ Строительная часть. Конструкции железобетонные
ТП 902-2-374.83 КЖ-1 Общие данные
ТП 902-2-374.83 КЖ-2 Схема расположения стеновых панелей и лотков. Разрез 1-1. Узлы 1-4
ТП 902-2-374.83 КЖ-3 Схема расположения ходовых мостиков. Разрезы 2-2÷6-6. Узел 5
ТП 902-2-374.83 КЖ-4 Днище. Опалубочный чертеж
ТП 902-2-374.83 КЖ-5 Днище. Армирование. Схемы расположения верхних и нижних сеток каркаса
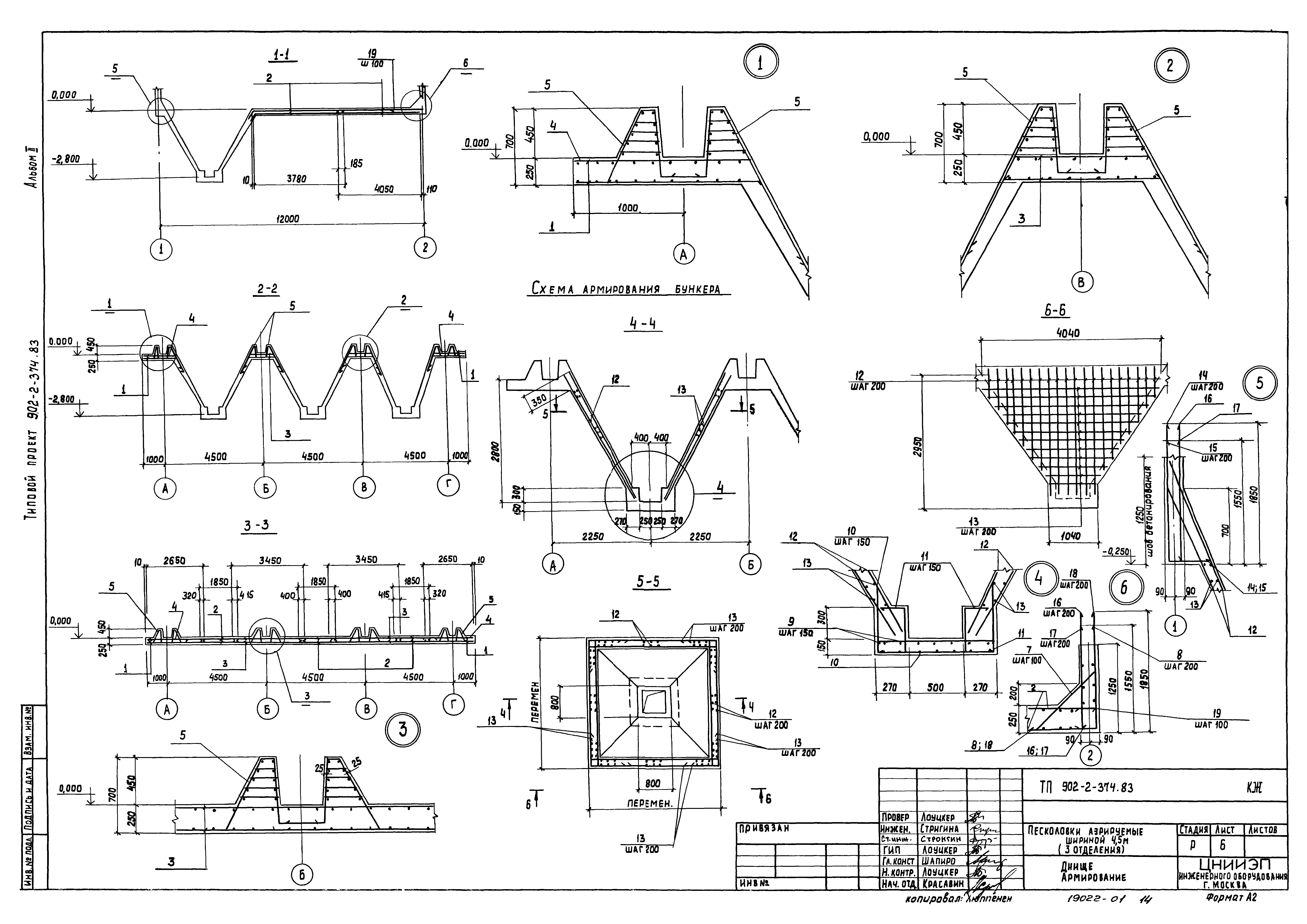
ТП 902-2-374.83 КЖ-6 Днище. Армирование
ТП 902-2-374.83 КЖ-7 Монолитные участки стен Ум1;Ум2. Армирование. Планы. Разрезы 1-1÷5-5
ТП 902-2-374.83 КЖ-8 Монолитные участки стен Ум1;Ум2. Армирование. Разрезы 6-6÷8-8. Узлы
ТП 902-2-374.83 КЖ-9 Монолитные участки стен Ум1;Ум2. Спецификации
ТП 902-2-374.83 КЖ-10 Лотки монолитные ЛТМ1;ЛТМ2. Опалубочно-арматурный чертеж
ТП 902-2-374.83 КЖ-11 Вставка длиной 3 м
ТП 902-2-374.83 ЭМ Электротехническая часть
ТП 902-2-374.83 ЭМ-1 Общие данные. Схема электрическая принципиальная питания электрооборудования
ТП 902-2-374.83 ЭМ-2 Схемы электрические принципиальные управления задвижками и насосами. Лист 1
ТП 902-2-374.83 ЭМ-3 Схемы электрические принципиальные управления задвижками и насосами. Лист 2
ТП 902-2-374.83 ЭМ-4 Схема подключения электрооборудования
ТП 902-2-374.83 ЭМ-5 Кабельный журнал
ТП 902-2-374.83 ЭМ-6 Расположение электрооборудования и прокладка кабеля
Разработан: ЦНИИЭП иженерного оборудования
Утверждён:22.07.1974 Госгражданстрой (Gosgrazhdanstroy 164)
Расположен в:Техническая документация Строительство Справочные документы Типовые строительные конструкции, изделия и узлы Общероссийский строительный каталог Промышленные предприятия, здания и сооружения Здания и сооружения санитарно-технические Канализация Сооружения механической очистки Песколовки
Типовой проект 902-2-374.83Типовой проект 902-2-374.83Типовой проект 902-2-374.83Типовой проект 902-2-374.83Типовой проект 902-2-374.83Типовой проект 902-2-374.83Типовой проект 902-2-374.83Типовой проект 902-2-374.83Типовой проект 902-2-374.83Типовой проект 902-2-374.83Типовой проект 902-2-374.83Типовой проект 902-2-374.83Типовой проект 902-2-374.83Типовой проект 902-2-374.83Типовой проект 902-2-374.83Типовой проект 902-2-374.83Типовой проект 902-2-374.83Типовой проект 902-2-374.83Типовой проект 902-2-374.83Типовой проект 902-2-374.83Типовой проект 902-2-374.83Типовой проект 902-2-374.83Типовой проект 902-2-374.83Типовой проект 902-2-374.83Типовой проект 902-2-374.83Типовой проект 902-2-374.83

© 2013 Ёшкин Кот :-) Карта сайта