Скачать Типовой проект 902-1-93.84 Альбом III. Архитектурно-строительные решения. Надземная часть. Общие чертежиДата актуализации: 10.08.2017 Типовой проект 902-1-93.84
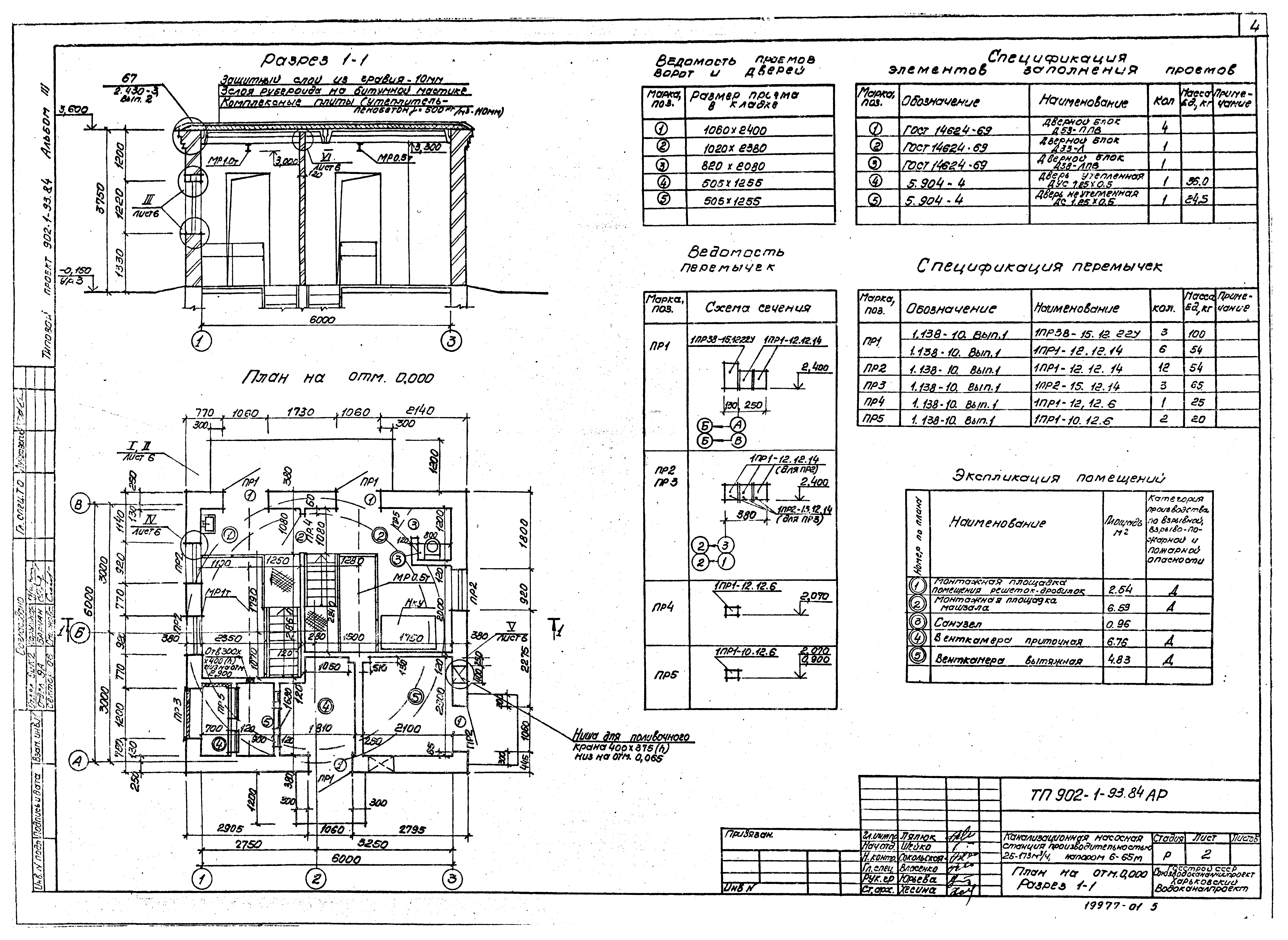
Альбом III. Архитектурно-строительные решения. Надземная часть. Общие чертежиОбозначение: | Типовой проект 902-1-93.84 | Обозначение англ: | 902-1-93.84 | Статус: | заменен | Название рус.: | Альбом III. Архитектурно-строительные решения. Надземная часть. Общие чертежи | Дата добавления в базу: | 01.09.2013 | Дата актуализации: | 05.05.2017 | Дата введения: | 01.02.1989 | Разработан: | Харьковский Водоканалпроект
| Утверждён: | 07.06.1984 СоюзводоканалНИИпроект (SoyuzvodokanalNIIproject 29)
| Расположен в: |
| Заменяет собой: | | Чем заменён: | |
                             
|