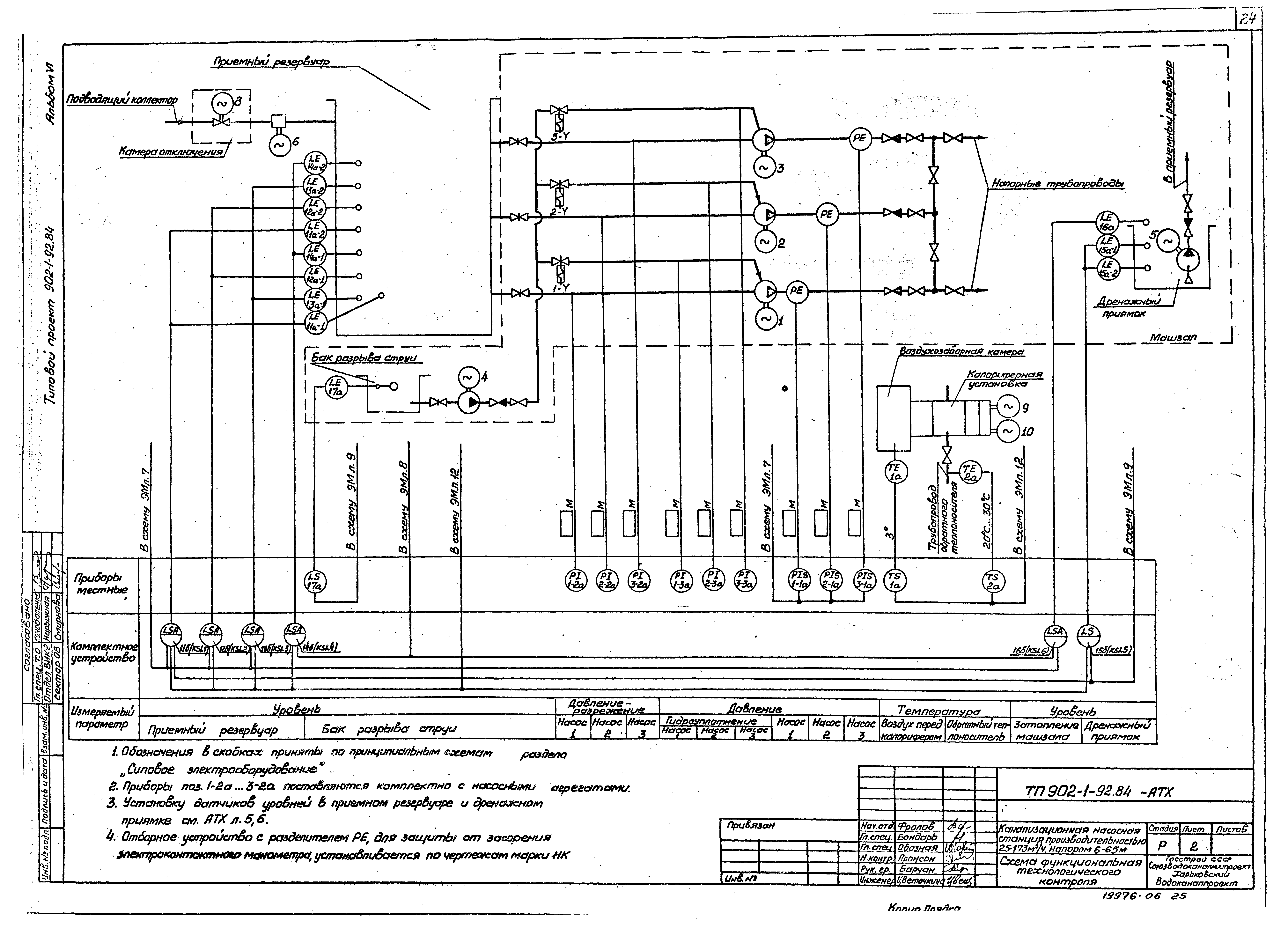
Скачать Типовой проект 902-1-92.84 Альбом VI. Силовое электрооборудование. Технологический контрольДата актуализации: 10.08.2017 Типовой проект 902-1-92.84
Альбом VI. Силовое электрооборудование. Технологический контрольОбозначение: | Типовой проект 902-1-92.84 | Обозначение англ: | 902-1-92.84 | Статус: | заменен | Название рус.: | Альбом VI. Силовое электрооборудование. Технологический контроль | Дата добавления в базу: | 01.09.2013 | Дата актуализации: | 05.05.2017 | Дата введения: | 01.02.1989 | Разработан: | Харьковский Водоканалпроект
| Утверждён: | 07.06.1984 СоюзводоканалНИИпроект (SoyuzvodokanalNIIproject 29)
| Расположен в: |
| Заменяет собой: | | Чем заменён: | |
                            
|