Информационная система
«Ёшкин Кот»

Скачать базу одним архивом
Скачать обновления
История создания базы
Карта сайта

Скачать Типовой проект 902-2-381.84 Альбом II. Архитектурно-строительная часть

Дата актуализации: 10.08.2017

Типовой проект 902-2-381.84

Альбом II. Архитектурно-строительная часть

Обозначение: Типовой проект 902-2-381.84
Обозначение англ: 902-2-381.84
Статус:не действует
Название рус.:Альбом II. Архитектурно-строительная часть
Дата добавления в базу:01.09.2013
Дата актуализации:05.05.2017
Оглавление:ТП 902-2-381.84 Содержание альбома
ТП 902-2-381.84 АС Архитектурно-строительные решения
ТП 902-2-381.84 АС-1 Общие данные (начало)
ТП 902-2-381.84 АС-2 Общие данные (продолжение)
ТП 902-2-381.84 АС-3 Общие данные (продолжение)
ТП 902-2-381.84 АС-4 Общие данные (продолжение)
ТП 902-2-381.84 АС-5 Общие данные (продолжение)
ТП 902-2-381.84 АС-6 Общие данные (продолжение)
ТП 902-2-381.84 АС-7 Общие данные (продолжение)
ТП 902-2-381.84 АС-8 Общие данные (окончание)
ТП 902-2-381.84 АС-9 План группы отстойников и коммуникаций
ТП 902-2-381.84 АС-10 Отстойник. План 1-1. Сечения 2-8, 3-3
ТП 902-2-381.84 АС-11 Отстойник. Центральная часть. Планы 4-4,6-6. Сечения 5-5,7-7,8-8. Узлы 1,2
ТП 902-2-381.84 АС-12 Отстойник. Центральная часть. Планы 9-9,10-10. Сечение 11-11. Узлы 3,4
ТП 902-2-381.84 АС-13 Отстойник. Днище. Армирование. Планы сеток и каркасов. Сечение 1-1
ТП 902-2-381.84 АС-14 Отстойник. Центральная часть. Армирование. Спецификация и ведомость деталей и расходы стали
ТП 902-2-381.84 АС-15 Отстойник. Центральная часть. Армирование. Сечения 1-1÷3-3. Узел 1
ТП 902-2-381.84 АС-16 Отстойник. Центральная часть. Армирование. Сечения 4-4÷8-8
ТП 902-2-381.84 АС-17 Отстойник. Схема расположения панелей и подкосно-ригельной системы. Сечения 1-1÷4-4. Узел 1
ТП 902-2-381.84 АС-18 Отстойник. Узлы 2-8
ТП 902-2-381.84 АС-19 Отстойник. Схема расположения лотков
ТП 902-2-381.84 АС-20 Отстойник. Узлы 1,2
ТП 902-2-381.84 АС-21 Отстойник. Узлы 3-5
ТП 902-2-381.84 АС-22 Отстойник. Крепление водослива
ТП 902-2-381.84 АС-23 Отстойник. Выпускная камера Вм1. Планы, сечения
ТП 902-2-381.84 АС-24 Отстойник. Выпускная камера Вм1. Армирование. Сечения 1-1÷7-7
ТП 902-2-381.84 АС-25 Отстойник. Выпускная камера Вм1 и борт отстойника Бм1. Армирование. Спецификации
ТП 902-2-381.84 АС-26 Распределительная чаша. План на отметке 1.690. План Н. Сечение 4-4. Узел 1
ТП 902-2-381.84 АС-27 Распределительная чаша. Планы 2-2,3-3. Сечения 5-5,6-6. Узлы 2,3
ТП 902-2-381.84 АС-28 Распределительная чаша. Армирование. План 1-1. Сечение 4-4
ТП 902-2-381.84 АС-29 Распределительная чаша. Армирование. План 2-2. Сечение 6-6, 7-7
ТП 902-2-381.84 АС-30 Распределительная чаша. Армирование. План 3-3. План днища и перекрытия на отметке - 2.650
ТП 902-2-381.84 АС-31 Распределительная чаша. Армирование. Сечения 5-5,11-11
ТП 902-2-381.84 АС-32 Распределительная чаша. Армирование. Сечения 8-8÷10-10. Спецификация чаши
ТП 902-2-381.84 АС-33 Распределительная чаша. Армирование. Спецификация чаши. Ведомости деталей, расхода стали
ТП 902-2-381.84 АС-34 Камеры ОП1 и ОП2. Планы, сечения
ТП 902-2-381.84 АС-35 Камера ОП1. Армирование
ТП 902-2-381.84 АС-36 Камера ОП2. Армирование
ТП 902-2-381.84 АС-37 Жиросборник Ж1. Опалубка и армирование. Планы, сечения
ТП 902-2-381.84 АС-38 Камера ПП1. Опалубка и армирование. Планы, сечения
ТП 902-2-381.84 АС-39 Насосная станция сырого осадка. Общие данные
ТП 902-2-381.84 АС-40 Насосная станция сырого осадка. Фасады 1-2,2-1,А-5,5-А. План надземной части
ТП 902-2-381.84 АС-41 Насосная станция сырого осадка. Разрезы 1-1,2-2. План подземной части
ТП 902-2-381.84 АС-42 Насосная станция сырого осадка. Спецификация. Ведомости, детали
ТП 902-2-381.84 АС-43 Насосная станция сырого осадка. Схема расположения стеновых панелей. Сечения 1-1,2-2
ТП 902-2-381.84 АС-44 Насосная станция сырого осадка. Схема расположения стеновых панелей. Сечения 3-3,4-4
ТП 902-2-381.84 АС-45 Насосная станция сырого осадка. Схема расположения стеновых панелей. Узлы 15-21
ТП 902-2-381.84 АС-46 Насосная станция сырого осадка. Схема опалубки днища. План, сечения 1-1÷4-4
ТП 902-2-381.84 АС-47 Насосная станция сырого осадка. Днище. Армирование. Планы раскладки сеток, каркасов
ТП 902-2-381.84 АС-48 Насосная станция сырого осадка. Днище. Армирование. Сечения 1-1÷4-4. Узел 1
ТП 902-2-381.84 АС-49 Насосная станция сырого осадка. Монолитные участки Ум1-=Ум4. Армирование. План. Сечения
ТП 902-2-381.84 АС-50 Насосная станция сырого осадка. Обвязочный пояс Опм1. Опалубка, армирование
ТП 902-2-381.84 АС-51 Насосная станция сырого осадка. План перекрытия на отметках - 1.660, -1.260, 0.040. План перекрытия
ТП 902-2-381.84 АС-52 Насосная станция сырого осадка. Перекрытие на отметке 0.000. Плита Пм1. Армирование
ТП 902-2-381.84 АС-53 Насосная станция сырого осадка. Перекрытие на отметке 0.000. Плита Пм1. Балки 5м2-5м4. Таблицы
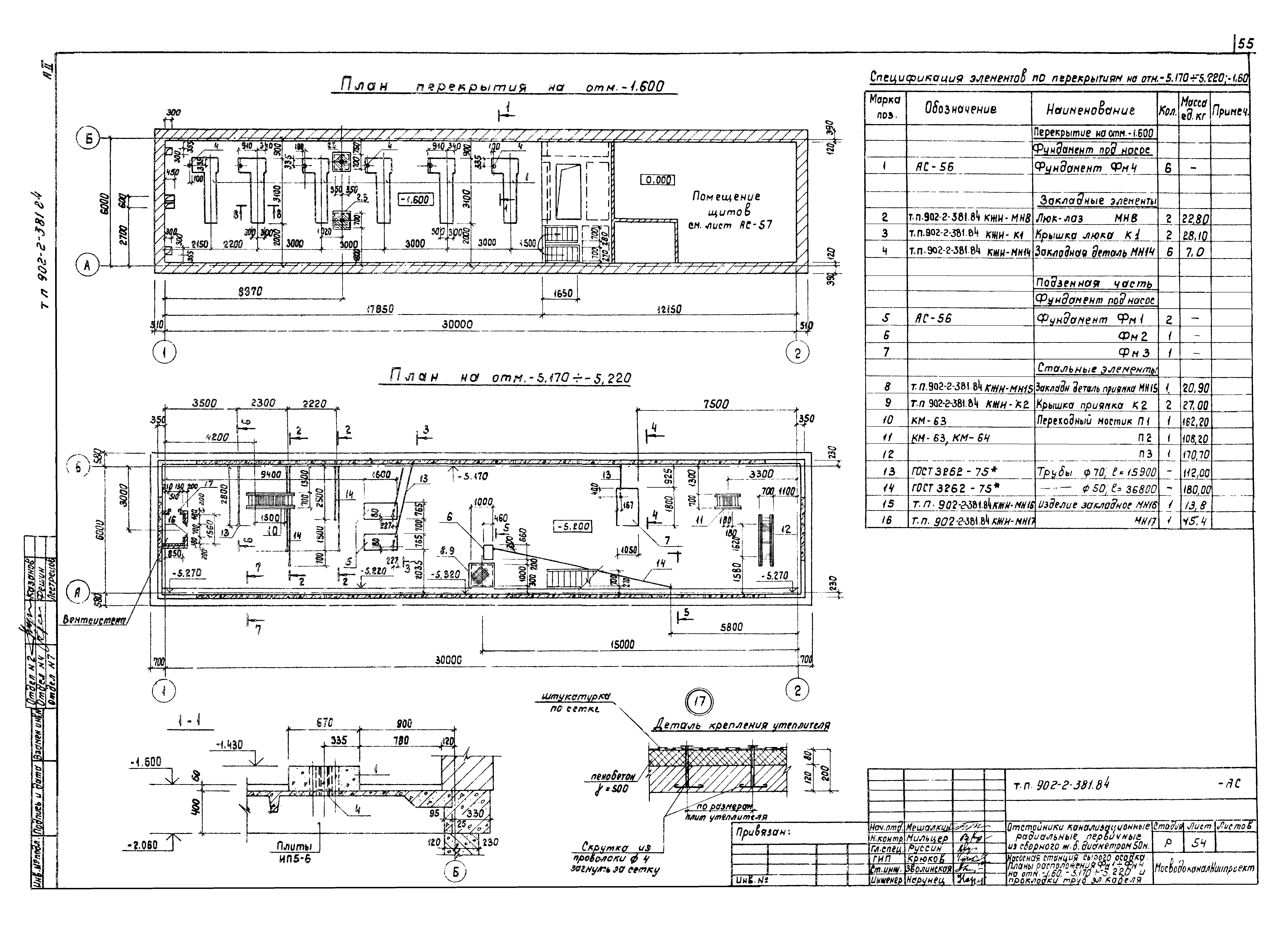
ТП 902-2-381.84 АС-54 Насосная станция сырого осадка. Планы расположения Фм1-Фм4 на отметках -1.600; -5.170÷-3.220 и прокладки труб электрокабеля
ТП 902-2-381.84 АС-55 Насосная станция сырого осадка. Прокладка труб для электрокабелей. Сечения 2-2÷8-8
ТП 902-2-381.84 АС-56 Насосная станция сырого осадка. Фундаменты под насосы Фм1-Фм4. Планы, сечения
ТП 902-2-381.84 АС-57 Насосная станция сырого осадка. Помещение щитов. Планы 1-1,2-2. Сечение 3-3. Узел 1
ТП 902-2-381.84 КМ Конструкции металлические
ТП 902-2-381.84 КМ-1 Насосная станция сырого осадка. Общие данные
ТП 902-2-381.84 КМ-2 Насосная станция сырого осадка. Схема расположения путей подвесного транспорта на отметке 4.180. МР-1. Узлы 1-3
ТП 902-2-381.84 КМ-3 Насосная станция сырого осадка. План расположения монорельсов МР-2,МР-3. Сечения 1-1,2-2,3-2. Узлы 1,2,3
ТП 902-2-381.84 КМ-4 Насосная станция сырого осадка. Площадка и лестницы. Планы, сечения
ТП 902-2-381.84 КМ-5 Насосная станция сырого осадка. Площадки на отметках 0.400, 2.800 и лестницы. План и разрезы
ТП 902-2-381.84 КМ-6 Насосная станция сырого осадка. Схема переходных мостиков П-1÷П-3. Переходной мостик П-1
ТП 902-2-381.84 КМ-7 Насосная станция сырого осадка. Переходные мостики П-2,П-3. Планы, сечения
ТП 902-2-381.84 КМ-8 Насосная станция сырого осадка. Подвеска и крепление технологических трубопроводов. План. Сечения. Узлы 1,2
ТП 902-2-381.84 КМ-9 Насосная станция сырого осадка. Подвеска и крепление технологических трубопроводов. Узлы 3-5
ТП 902-2-381.84 КМ-10 Насосная станция сырого осадка. Техническая спецификация металла
ТП 902-2-381.84 КМ-11 Насосная станция сырого осадка. Ведомость конструкции по видам профилей
Разработан: МосводоканалНИИпроект
Утверждён:20.12.1983 МосводоканалНИИпроект (312)
Расположен в:Техническая документация Строительство Справочные документы Типовые строительные конструкции, изделия и узлы Общероссийский строительный каталог Промышленные предприятия, здания и сооружения Здания и сооружения санитарно-технические Канализация Сооружения механической очистки Отстойники Отстойники радиальные первичные
Типовой проект 902-2-381.84Типовой проект 902-2-381.84Типовой проект 902-2-381.84Типовой проект 902-2-381.84Типовой проект 902-2-381.84Типовой проект 902-2-381.84Типовой проект 902-2-381.84Типовой проект 902-2-381.84Типовой проект 902-2-381.84Типовой проект 902-2-381.84Типовой проект 902-2-381.84Типовой проект 902-2-381.84Типовой проект 902-2-381.84Типовой проект 902-2-381.84Типовой проект 902-2-381.84Типовой проект 902-2-381.84Типовой проект 902-2-381.84Типовой проект 902-2-381.84Типовой проект 902-2-381.84Типовой проект 902-2-381.84Типовой проект 902-2-381.84Типовой проект 902-2-381.84Типовой проект 902-2-381.84Типовой проект 902-2-381.84Типовой проект 902-2-381.84Типовой проект 902-2-381.84Типовой проект 902-2-381.84Типовой проект 902-2-381.84Типовой проект 902-2-381.84Типовой проект 902-2-381.84Типовой проект 902-2-381.84Типовой проект 902-2-381.84Типовой проект 902-2-381.84Типовой проект 902-2-381.84Типовой проект 902-2-381.84Типовой проект 902-2-381.84Типовой проект 902-2-381.84Типовой проект 902-2-381.84Типовой проект 902-2-381.84Типовой проект 902-2-381.84Типовой проект 902-2-381.84Типовой проект 902-2-381.84Типовой проект 902-2-381.84Типовой проект 902-2-381.84Типовой проект 902-2-381.84Типовой проект 902-2-381.84Типовой проект 902-2-381.84Типовой проект 902-2-381.84Типовой проект 902-2-381.84Типовой проект 902-2-381.84Типовой проект 902-2-381.84Типовой проект 902-2-381.84Типовой проект 902-2-381.84Типовой проект 902-2-381.84Типовой проект 902-2-381.84Типовой проект 902-2-381.84Типовой проект 902-2-381.84Типовой проект 902-2-381.84Типовой проект 902-2-381.84Типовой проект 902-2-381.84Типовой проект 902-2-381.84Типовой проект 902-2-381.84Типовой проект 902-2-381.84Типовой проект 902-2-381.84Типовой проект 902-2-381.84Типовой проект 902-2-381.84Типовой проект 902-2-381.84Типовой проект 902-2-381.84Типовой проект 902-2-381.84Типовой проект 902-2-381.84Типовой проект 902-2-381.84

© 2013 Ёшкин Кот :-) Карта сайта