Информационная система
«Ёшкин Кот»

Скачать базу одним архивом
Скачать обновления
История создания базы
Карта сайта

Скачать Типовой проект 902-2-394.86 Альбом IV. Конструкции железобетонные. Общие чертежи

Дата актуализации: 10.08.2017

Типовой проект 902-2-394.86

Альбом IV. Конструкции железобетонные. Общие чертежи

Обозначение: Типовой проект 902-2-394.86
Обозначение англ: 902-2-394.86
Статус:не определен законодательством
Название рус.:Альбом IV. Конструкции железобетонные. Общие чертежи
Дата добавления в базу:01.09.2013
Дата актуализации:05.05.2017
Дата введения:09.01.1986
Оглавление:ТП 902-2-394.86-КЖ-1 Содержание альбома
ТП 902-2-394.86-КЖ-2 Днище. Опалубочный чертеж. Сечения
ТП 902-2-394.86-КЖ-3 Днище. Опалубочный чертеж. Узлы
ТП 902-2-394.86-КЖ-4 Днище. Арматурный чертеж. Сечения 1-1÷4-4
ТП 902-2-394.86-КЖ-5 Днище. Арматурный чертеж. Сечения 5-5÷8-8
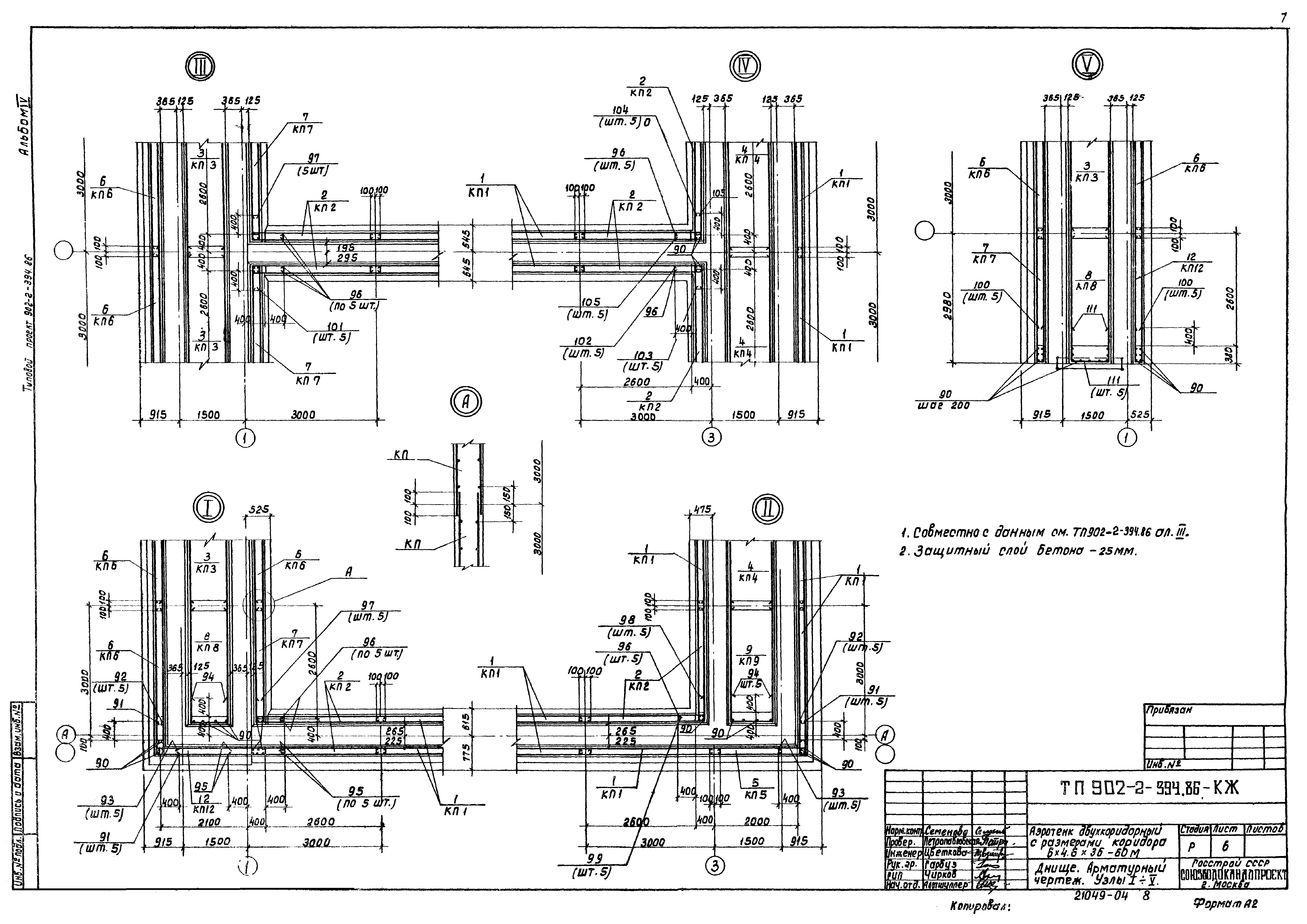
ТП 902-2-394.86-КЖ-6 Днище. Арматурный чертеж. Узлы 1-5
ТП 902-2-394.86-КЖ-7 Днище. Арматурный чертеж. Узлы 6-8. Ведомость деталей
ТП 902-2-394.86-КЖ-8 Монолитные участки стен Ум-1,2,5. Опалубочный чертеж
ТП 902-2-394.86-КЖ-9 Монолитные участки стен Ум-3,4. Опалубочный чертеж
ТП 902-2-394.86-КЖ-10 Монолитные участки стен Ум-6,8,11,12. Опалубочный чертеж
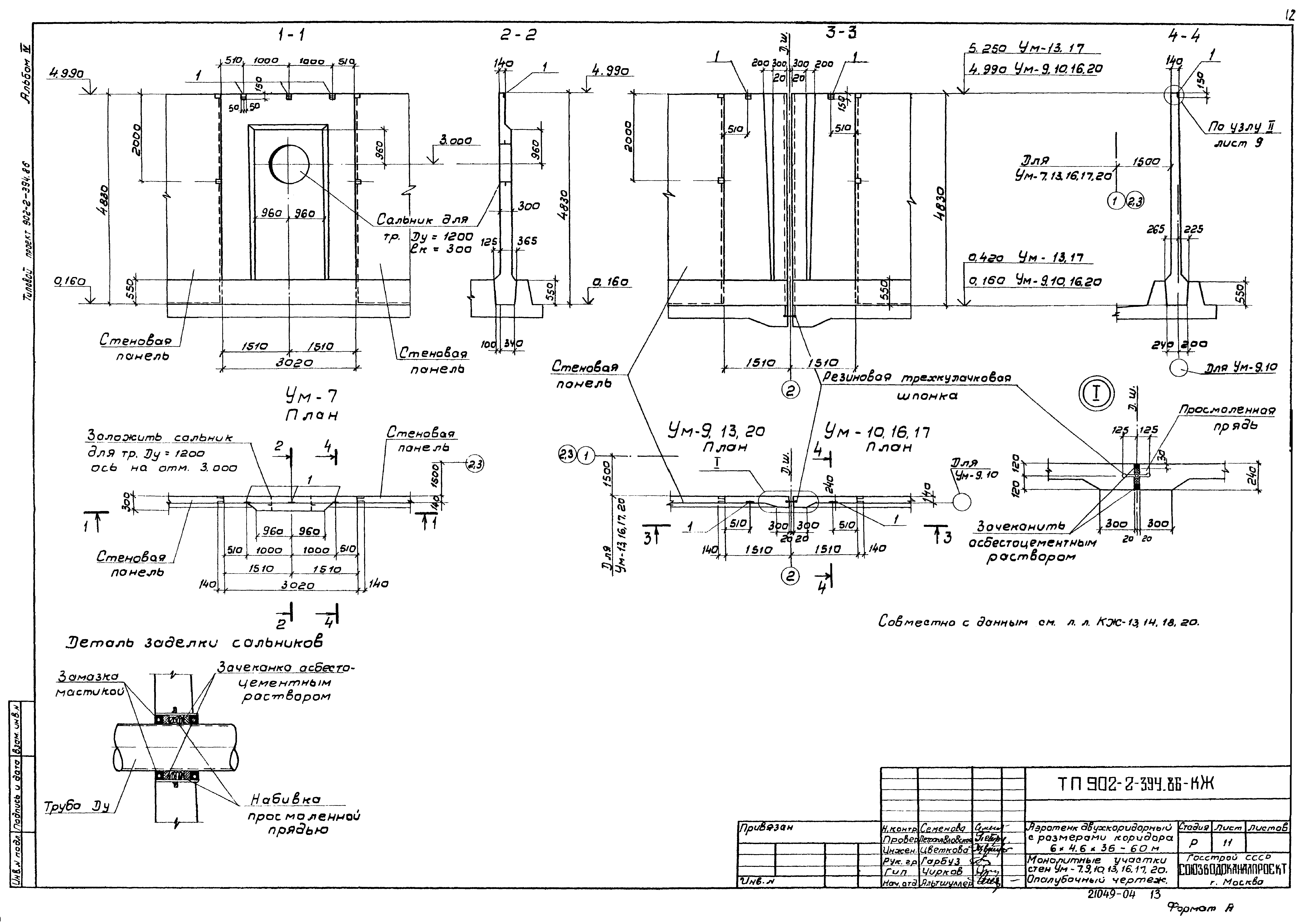
ТП 902-2-394.86-КЖ-11 Монолитные участки стен Ум-7,9,10,13,16,17,20. Опалубочный чертеж
ТП 902-2-394.86-КЖ-12 Монолитные участки стен Ум-14,15,18,19. Опалубочный чертеж
ТП 902-2-394.86-КЖ-13 Спецификация монолитных участков стен Ум-1,2,3,4,9,10,13,16,17,20
ТП 902-2-394.86-КЖ-14 Спецификация монолитных участков стен Ум-5,6,7,8,11,12,14,15
ТП 902-2-394.86-КЖ-15 Спецификация монолитных участков стен Ум-18,19,21,22,23,24
ТП 902-2-394.86-КЖ-16 Монолитные участки стен Ум-1,2. Арматурный чертеж
ТП 902-2-394.86-КЖ-17 Монолитные участки стен Ум-3,4. Арматурный чертеж
ТП 902-2-394.86-КЖ-18 Монолитные участки стен Ум-5,7. Арматурный чертеж
ТП 902-2-394.86-КЖ-19 Монолитные участки стен Ум-6,8. Арматурный чертеж
ТП 902-2-394.86-КЖ-20 Монолитные участки стен Ум-9,10,11,12,13,14,15,16,17,18,20. Арматурный чертеж
ТП 902-2-394.86-КЖ-21 Монолитные участки стен Ум-19. Арматурный чертеж. Ведомости деталей и расхода стали
ТП 902-2-394.86-КЖ-22 Монолитные участки стен Ум-21,22,23,24. Арматурно-опалубочный чертеж
ТП 902-2-394.86-КЖ-23 Схема расположения элементов стен. Узлы
ТП 902-2-394.86-КЖ-24 Схема расположения балок, лотков, плит на одну технологическую секцию. Узлы
ТП 902-2-394.86-КЖ-25 Схема расположения балок, лотков, плит на одну технологическую секцию. Скользящие и неподвижные опоры
ТП 902-2-394.86-КЖ-26 Конструкция водослива
ТП 902-2-394.86-КЖ-27 Днище. Разбивка закладных изделий на одну технологическую секцию. Вариант с фильтросными каналами
ТП 902-2-394.86-КЖ-28 Днище. План набетонки и фильтросных каналов на одну технологическую секцию (4 ряда аэраторов)
ТП 902-2-394.86-КЖ-29 Днище. План набетонки и фильтросных каналов на одну технологическую секцию (6 рядов аэраторов)
ТП 902-2-394.86-КЖ-30 Днище. Фильтросные каналы. Узлы, детали
ТП 902-2-394.86-КЖ-31 Днище. Разбивка закладных изделий на одну технологическую секцию. Вариант с пористыми трубами
ТП 902-2-394.86-КЖ-32 Днище. План набетонки под пористые трубы на одну технологическую секцию (4 ряда аэраторов)
ТП 902-2-394.86-КЖ-33 Днище. План набетонки под пористые трубы на одну технологическую секцию (6 рядов аэраторов)
ТП 902-2-394.86-КЖ-34 Схема расположения металлических площадок, ограждений на одну технологическую секцию
ТП 902-2-394.86-КЖ-35 Камеры распределения ила №1,2,7,8. Опалубочный чертеж
ТП 902-2-394.86-КЖ-36 Камеры распределения ила №1,2,7,8. Спецификации
ТП 902-2-394.86-КЖ-37 Камеры распределения ила №1,2,7,8. Арматурный чертеж
ТП 902-2-394.86-КЖ-38 Камеры распределения ила №4,5,10,11. Опалубочный чертеж
ТП 902-2-394.86-КЖ-39 Камеры распределения ила №4,5,10,11. Спецификации
ТП 902-2-394.86-КЖ-40 Камеры распределения ила №4,5,10,11. Арматурный чертеж
ТП 902-2-394.86-КЖ-41 Камеры распределения ила №1,2,4,5,7,8,10,11. Опалубочный чертеж. Узлы 1-5
ТП 902-2-394.86-КЖ-42 Камеры распределения ила №3,9. Опалубочный чертеж
ТП 902-2-394.86-КЖ-43 Камеры распределения ила №6,12. Опалубочный чертеж
ТП 902-2-394.86-КЖ-44 Камеры распределения ила №3,6,9,12. Спецификации
ТП 902-2-394.86-КЖ-45 Камеры распределения ила №3,9. Арматурный чертеж
ТП 902-2-394.86-КЖ-46 Камеры распределения ила №6,12. Арматурный чертеж
ТП 902-2-394.86-КЖ-47 Камеры распределения ила №3,6,9,12. Опалубочный чертеж. Узлы 1-4
Разработан: Союзводоканалпроект
Утверждён:20.09.1984 Союзводоканалпроект (Soyuzvodokanalproject 46)
Расположен в:Техническая документация Строительство Справочные документы Типовые строительные конструкции, изделия и узлы Общероссийский строительный каталог Промышленные предприятия, здания и сооружения Здания и сооружения санитарно-технические Канализация Сооружения биологической (биохимической) очистки Аэротенки, аэрируемые биопруды, аэроакселаторы
Заменяет собой:
Типовой проект 902-2-394.86Типовой проект 902-2-394.86Типовой проект 902-2-394.86Типовой проект 902-2-394.86Типовой проект 902-2-394.86Типовой проект 902-2-394.86Типовой проект 902-2-394.86Типовой проект 902-2-394.86Типовой проект 902-2-394.86Типовой проект 902-2-394.86Типовой проект 902-2-394.86Типовой проект 902-2-394.86Типовой проект 902-2-394.86Типовой проект 902-2-394.86Типовой проект 902-2-394.86Типовой проект 902-2-394.86Типовой проект 902-2-394.86Типовой проект 902-2-394.86Типовой проект 902-2-394.86Типовой проект 902-2-394.86Типовой проект 902-2-394.86Типовой проект 902-2-394.86Типовой проект 902-2-394.86Типовой проект 902-2-394.86Типовой проект 902-2-394.86Типовой проект 902-2-394.86Типовой проект 902-2-394.86Типовой проект 902-2-394.86Типовой проект 902-2-394.86Типовой проект 902-2-394.86Типовой проект 902-2-394.86Типовой проект 902-2-394.86Типовой проект 902-2-394.86Типовой проект 902-2-394.86Типовой проект 902-2-394.86Типовой проект 902-2-394.86Типовой проект 902-2-394.86Типовой проект 902-2-394.86Типовой проект 902-2-394.86Типовой проект 902-2-394.86Типовой проект 902-2-394.86Типовой проект 902-2-394.86Типовой проект 902-2-394.86Типовой проект 902-2-394.86Типовой проект 902-2-394.86Типовой проект 902-2-394.86Типовой проект 902-2-394.86Типовой проект 902-2-394.86Типовой проект 902-2-394.86Типовой проект 902-2-394.86

© 2013 Ёшкин Кот :-) Карта сайта