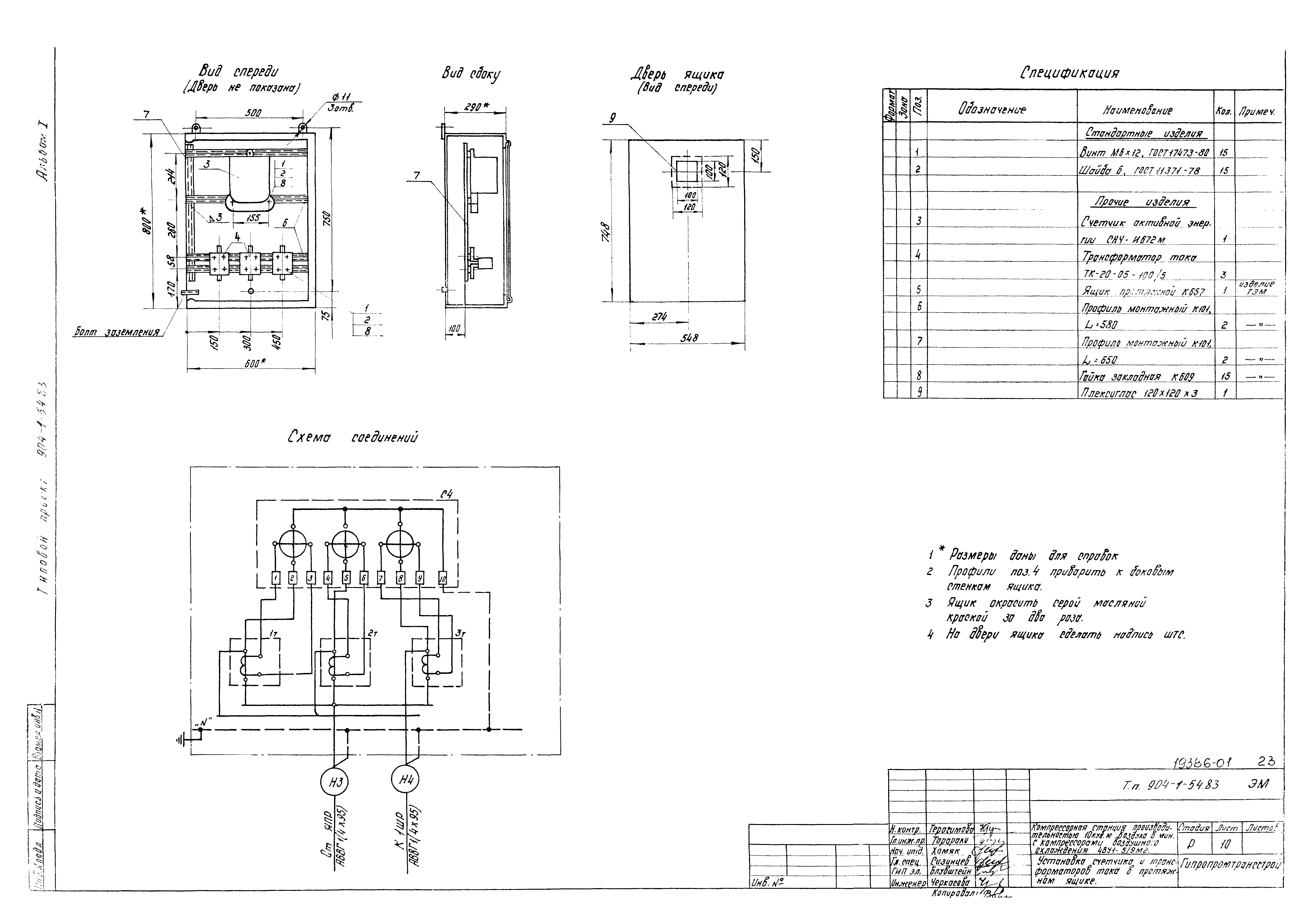
Скачать Типовой проект 904-1-54.83 Альбом I. Технологические решения. Электротехническая часть. Автоматизация технологических процессов. Сигнализация и связьДата актуализации: 10.08.2017 Типовой проект 904-1-54.83
Альбом I. Технологические решения. Электротехническая часть. Автоматизация технологических процессов. Сигнализация и связьОбозначение: | Типовой проект 904-1-54.83 | Обозначение англ: | 904-1-54.83 | Статус: | не действует | Название рус.: | Альбом I. Технологические решения. Электротехническая часть. Автоматизация технологических процессов. Сигнализация и связь | Дата добавления в базу: | 01.09.2013 | Дата актуализации: | 05.05.2017 | Разработан: | Гипропромтрансстрой
| Утверждён: | 28.10.1980 МПС (Ministry of Railroads Ш-35604)
| Расположен в: |
|
                             
|