Информационная система
«Ёшкин Кот»

Скачать базу одним архивом
Скачать обновления
История создания базы
Карта сайта

Скачать Типовой проект 902-2-223 Альбом I. Пояснительная записка. Здания и сооружения

Дата актуализации: 10.08.2017

Типовой проект 902-2-223

Альбом I. Пояснительная записка. Здания и сооружения

Обозначение: Типовой проект 902-2-223
Обозначение англ: 902-2-223
Статус:не определен законодательством
Название рус.:Альбом I. Пояснительная записка. Здания и сооружения
Дата добавления в базу:01.09.2013
Дата актуализации:05.05.2017
Дата введения:30.04.1975
Оглавление:ТП 902-2-223 Обложка
ТП 902-2-223 С-1 Содержание альбома
ТП 902-2-223 ПЗ1-ПЗ5 Пояснительная записка
ТП 902-2-223 ГП-1 Примерный генплан
ТП 902-2-223 ТХ-1 Примерный генплан с коммуникациями
ТП 902-2-223 ТХ-2 Профиль движения воды и ила
ТП 902-2-223 ЭН-1 План наружных электросетей
ТП 902-2-223 Производственно-вспомагательное здание
ТП 902-2-223 АР-1 Заглавный лист
ТП 902-2-223 АР-2 План кровли. План полов на отм. ±0.000. Схема сборных железобетонных перемычек. Спецификация перемычек. Детали полов. Ведомость внутренних отделочных работ
ТП 902-2-223 АР-3 План на отм. ±0.000
ТП 902-2-223 АР-4 Фасады 1-1;3-1;Б-А;А-6. Разрез 1-1
ТП 902-2-223 АР-5 Труба котельной. Вытяжная шахта Ш-1. Детали 1-10
ТП 902-2-223 АР-6 Жалюзийная решетка р-1 по оси 1. Детали кирпичной кладки. Детали 11,12,13,14
ТП 902-2-223 КС-1 Фундаменты. План. Развертки по осям А,Б,1,2,3. Сечения 1-1;2-2;3-3. Выборка
ТП 902-2-223 КС-2 Подпольные каналы. План сечения 1-1÷7-7. Узел 1. Выборка
ТП 902-2-223 КС-3 Подпольные каналы. Фундаменты ФО-1ФО-2. Плита ПМ1. Опора ОП-1. Спецификация арматуры и стали. Выборка материалов
ТП 902-2-223 КС-4 Покрытие. Монорельс. Планы. Узлы 1-4. Балки БС-1;БС-2. Выборки. Спецификация
ТП 902-2-223 КС-5 Металлические площадки и лестница. План МП1. Сечения. Узлы 1-5
ТП 902-2-223 КС-6 Металлические площадки и лестница ЛМ1,МО,РМ-1. Спецификация стали
ТП 902-2-223 КС-7 Выборки
ТП 902-2-223 ТХ-3 Электролизная. План оборудования. Спецификация
ТП 902-2-223 ТХ-4 Электролизная. Разрезы I-I÷V-V
ТП 902-2-223 ТХ-5 Помещение воздуходувной. Монтажный чертеж
ТП 902-2-223 ТХ-6 Помещение воздуходувной. Опора виброизолирующая для трубы dу200
ТП 902-2-223 ТХ-7 Помещение воздуходувной. Подушка. Ребра. Пружина. Плита
ТП 902-2-223 ТХ-8 Помещение воздуходувной. Трубы перфорированные dу100 и 150. Опоры скользящие для трубы dу150
ТП 902-2-223 ВК-1 Водопровод и канализация. План. Разрезы. Схема. Спецификация
ТП 902-2-223 ОВ-1 Отопление и вентиляция. Заглавный лист
ТП 902-2-223 ОВ-2 Отопление и вентиляция. Планы. Схемы
ТП 902-2-223 ОВ-3 Вентиляция. Венткамера. План. Разрез 1-1. Монтажная. Спецификация
ТП 902-2-223 ОВ-4 Котельная. План. Разрезы 1-1;2-2. Схема обвязки котельной. Экспликация основного оборудования
ТП 902-2-223 ОВ-5 Отопление и вентиляция. Спецификация оборудования и материалов
ТП 902-2-223 ОВ-6 Горячее водоснабжение. Индивидуальный водоводяной подогреватель. Общий вид
ТП 902-2-223 ОВ-7 Детали
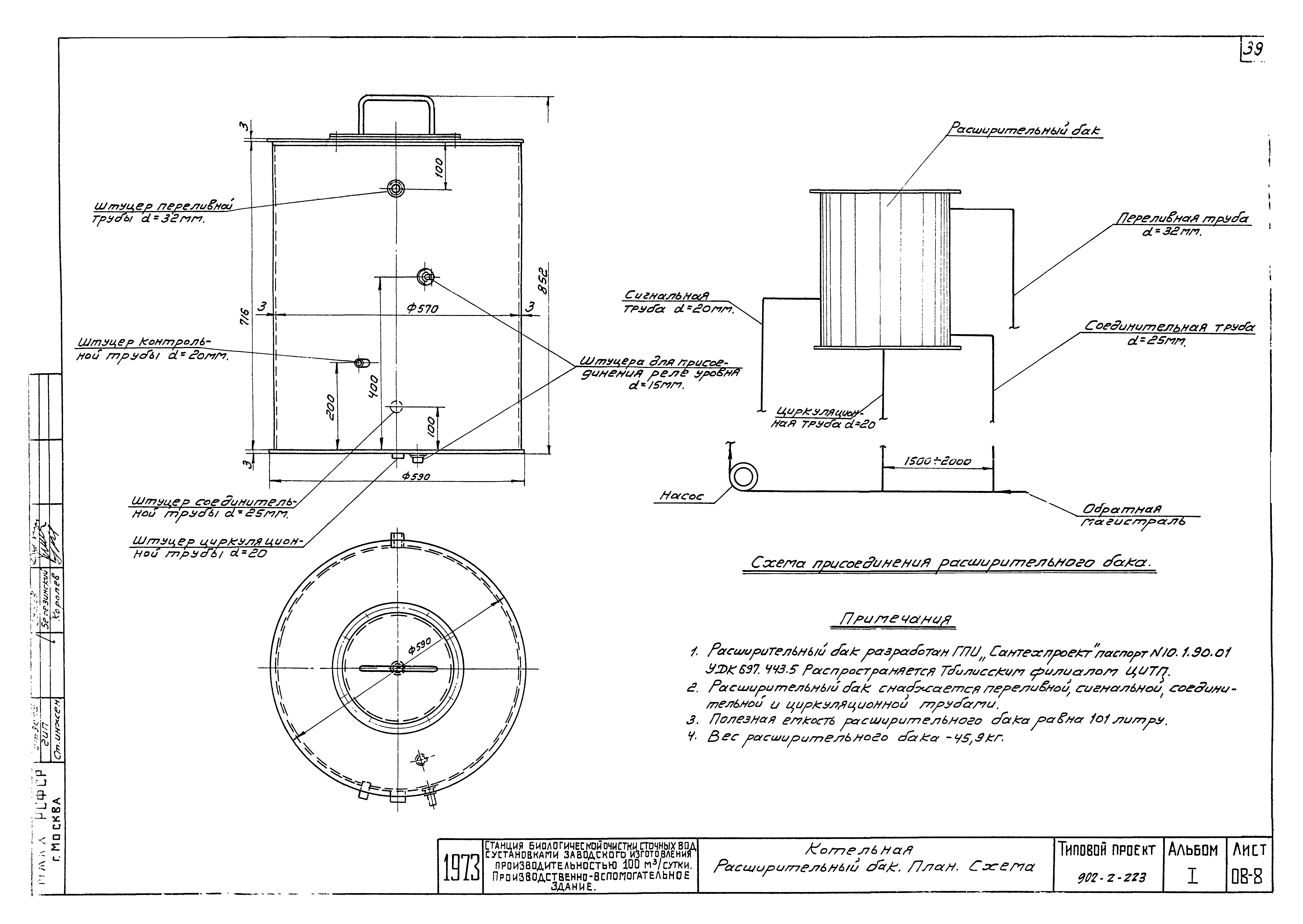
ТП 902-2-223 ОВ-8 Котельная. Расширительный бак. План. Схема
ТП 902-2-223 ОВ-9 Вытяжная вентиляция электролизеров. План. Разрез 1-1. Схема системы В-1. Спецификация
ТП 902-2-223 Э-1 Расчетная схема силовой сети 380/220В
ТП 902-2-223 Э-2 Принципиальная схема управления электродвигателя
ТП 902-2-223 Э-3 Схема подключений электролизера
ТП 902-2-223 Э-4 Схема подключений
ТП 902-2-223 Э-5 Схема подключений
ТП 902-2-223 Э-6 План трасс силовых и контрольных кабелей
ТП 902-2-223 Э-7 Кабельный журнал
ТП 902-2-223 Э-8 Электроосвещение
ТП 902-2-223 Э-9 Контур заземления
ТП 902-2-223 Э-10 Электрослаботочные устройства
ТП 902-2-223 Блок приемной камеры и решетки дробилки
ТП 902-2-223 КС-8 Опалубка. План. Разрезы 1-1÷6-6. ФО1. Выборки сальников и материалов
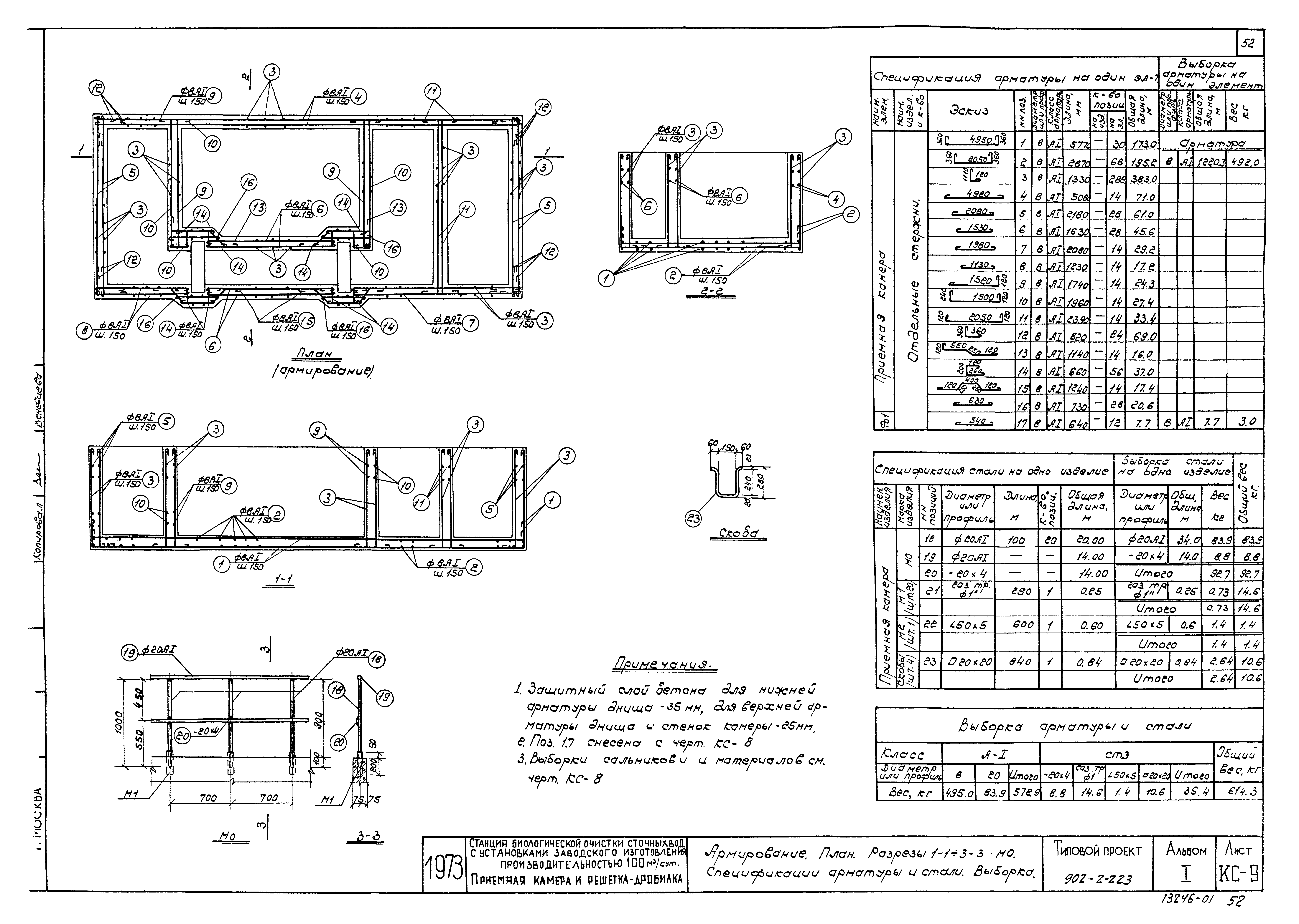
ТП 902-2-223 КС-9 Армирование. План. Разрезы 1-1÷3-3, Мо. Спецификации арматуры и стали. Выборка
ТП 902-2-223 ТХ-9 Монтажный чертеж
ТП 902-2-223 ТХ-10 Шибер в сборе. Болт анкерный. Пластина
ТП 902-2-223 ТХ-11 Решетка. Опора
ТП 902-2-223 Основание под компактные установки
ТП 902-2-223 КС-10 Раскладка плит основания. План. Разрез. Выборка
ТП 902-2-223 Иловые площадки
ТП 902-2-223 КС-11 Монтажные схемы днища и стен. План. Выборки
ТП 902-2-223 КС-12 Монтажные схемы днища и стен. Разрезы 1-1÷3-3. Узлы 1-8
ТП 902-2-223 КС-13 Монтажные участки стен Му1-Му3. Монтажные узлы
ТП 902-2-223 КС-14 Сборные железобетонные элементы днища ПФ1/2-1;ПД-1. Опалубка. Армирование
ТП 902-2-223 КС-15 Сборные железобетонные элементы днища ПФ1/2-1;ПД-1. Спецификация. Выборки
ТП 902-2-223 КС-16 Сборные железобетонные элементы стен. ПЛ1-1а;ПЛ1-1б;ПЛ1/2-1а. Опалубка. Армирование
ТП 902-2-223 КС-17 Сборные железобетонные элементы стен. ПЛ1-1а;ПЛ1-1а;ПЛ1/2-1а. Спецификация. Выборки
ТП 902-2-223 КС-18 Выборки
ТП 902-2-223 Контактный резервуар
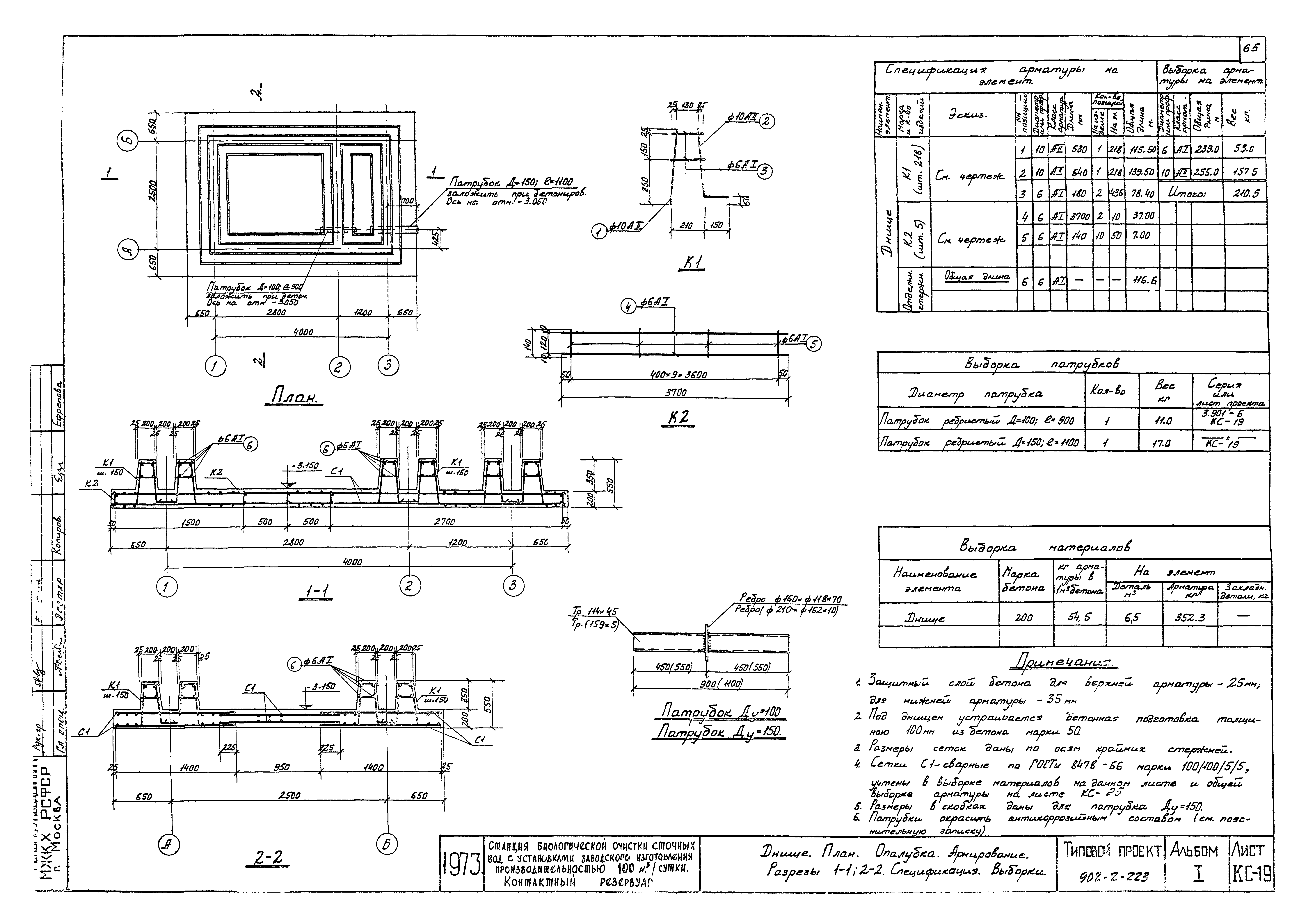
ТП 902-2-223 КС-19 Днище. План. Опалубка. Армирование. Разрезы 1-1;2-2. Спецификация. Выборка
ТП 902-2-223 КС-20 Стены. Монтажная схема. План. Разрезы 1-1;2-2. Узлы 1-4. Выборка
ТП 902-2-223 КС-21 Стены. Монолитные участки СМ-1;СМ-1а;СМ-1б;СМ-2. Опалубка. Армирование
ТП 902-2-223 КС-22 Стены. Монолитные участки СМ-1;СМ-1а;СМ-1б;СМ-2. Спецификации арматуры и стали. Выборки материалов и сальников
ТП 902-2-223 КС-23 Сборные железобетонные элементы стен ПЛ1/2-1б;ПЛ1/2-1в. Опалубка. Армирование
ТП 902-2-223 КС-24 Сборные железобетонные элементы стен ПЛ1/2-1б;ПЛ1/2-1в. Спецификация арматуры. Выборка материалов
ТП 902-2-223 КС-25 Выборки
ТП 902-2-223 ТХ-12 План. Разрезы. Спецификация
Разработан: Гипрокоммунводоканал Минжилкомхоза РСФСР
Утверждён:19.12.1974 МЖКХ РСФСР (31-ТД)
Расположен в:Техническая документация Строительство Справочные документы Типовые строительные конструкции, изделия и узлы Общероссийский строительный каталог Промышленные предприятия, здания и сооружения Здания и сооружения санитарно-технические Канализация Сооружения биологической (биохимической) очистки Станции биологической очистки сточных вод
Типовой проект 902-2-223Типовой проект 902-2-223Типовой проект 902-2-223Типовой проект 902-2-223Типовой проект 902-2-223Типовой проект 902-2-223Типовой проект 902-2-223Типовой проект 902-2-223Типовой проект 902-2-223Типовой проект 902-2-223Типовой проект 902-2-223Типовой проект 902-2-223Типовой проект 902-2-223Типовой проект 902-2-223Типовой проект 902-2-223Типовой проект 902-2-223Типовой проект 902-2-223Типовой проект 902-2-223Типовой проект 902-2-223Типовой проект 902-2-223Типовой проект 902-2-223Типовой проект 902-2-223Типовой проект 902-2-223Типовой проект 902-2-223Типовой проект 902-2-223Типовой проект 902-2-223Типовой проект 902-2-223Типовой проект 902-2-223Типовой проект 902-2-223Типовой проект 902-2-223Типовой проект 902-2-223Типовой проект 902-2-223Типовой проект 902-2-223Типовой проект 902-2-223Типовой проект 902-2-223Типовой проект 902-2-223Типовой проект 902-2-223Типовой проект 902-2-223Типовой проект 902-2-223Типовой проект 902-2-223Типовой проект 902-2-223Типовой проект 902-2-223Типовой проект 902-2-223Типовой проект 902-2-223Типовой проект 902-2-223Типовой проект 902-2-223Типовой проект 902-2-223Типовой проект 902-2-223Типовой проект 902-2-223Типовой проект 902-2-223Типовой проект 902-2-223Типовой проект 902-2-223Типовой проект 902-2-223Типовой проект 902-2-223Типовой проект 902-2-223Типовой проект 902-2-223Типовой проект 902-2-223Типовой проект 902-2-223Типовой проект 902-2-223Типовой проект 902-2-223Типовой проект 902-2-223Типовой проект 902-2-223Типовой проект 902-2-223Типовой проект 902-2-223Типовой проект 902-2-223Типовой проект 902-2-223Типовой проект 902-2-223Типовой проект 902-2-223Типовой проект 902-2-223Типовой проект 902-2-223Типовой проект 902-2-223Типовой проект 902-2-223Типовой проект 902-2-223

© 2013 Ёшкин Кот :-) Карта сайта