Скачать Типовой проект 902-2-393.85 Альбом II. Технологическая, строительная части. Автоматизация, КИП, спецификации оборудованияДата актуализации: 10.08.2017 Типовой проект 902-2-393.85
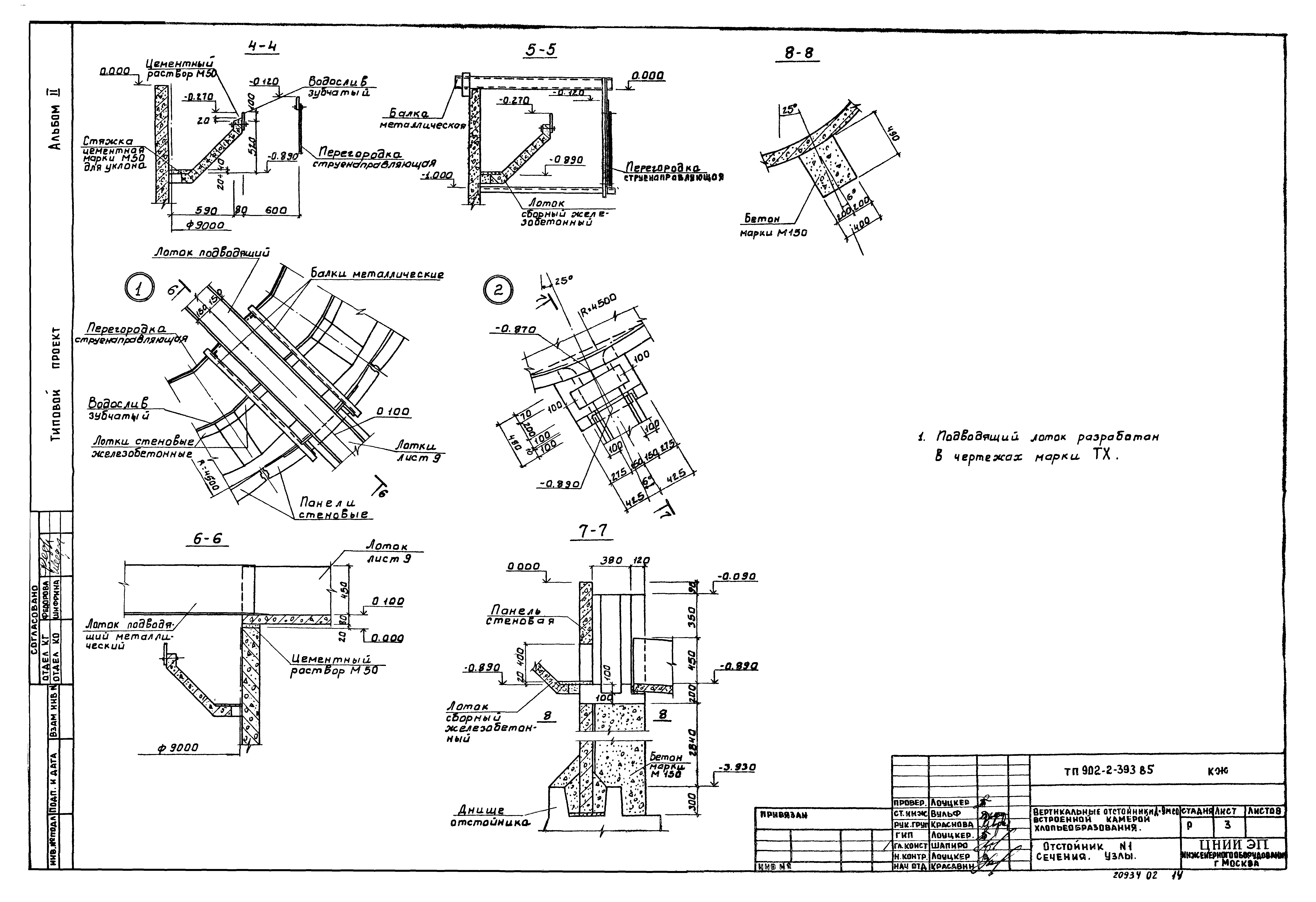
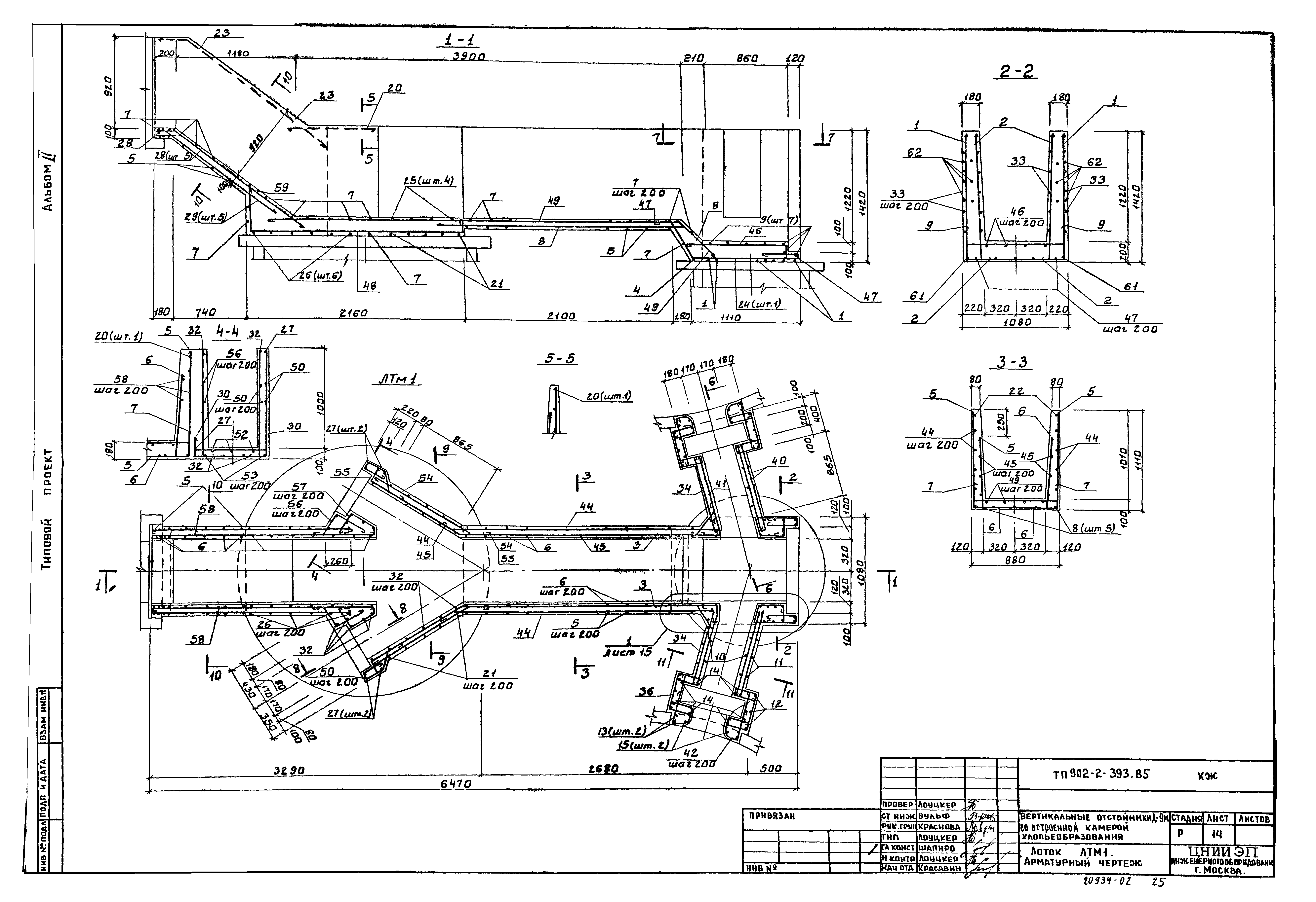
Альбом II. Технологическая, строительная части. Автоматизация, КИП, спецификации оборудованияОбозначение: | Типовой проект 902-2-393.85 | Обозначение англ: | 902-2-393.85 | Статус: | не определен законодательством | Название рус.: | Альбом II. Технологическая, строительная части. Автоматизация, КИП, спецификации оборудования | Дата добавления в базу: | 01.09.2013 | Дата актуализации: | 05.05.2017 | Дата введения: | 05.10.1992 | Оглавление: | ТП 902-2-393.85 Содержание альбома ТП 902-2-393.85 Технологическая часть ТП 902-2-393.85 ТХ-1 Общие данные ТП 902-2-393.85 ТХ-2 Компоновка узла из 4-х отстойников. Высотная схема движения воды ТП 902-2-393.85 ТХ-3 Отстойник №1. План, разрез 1-1. Детали ТП 902-2-393.85 ТХ-4 Иловые колодцы К1 и К2. Планы, разрезы 1-1;2-2 ТП 902-2-393.85 ТХ-5 Камеры смешивания №1,2,3. Планы, разрезы 1-1,2-2,3-3 ТП 902-2-393.85 ТХ-6 Спецификация оборудования (начало) ТП 902-2-393.85 ТХ-7 Спецификация оборудования (окончание) ТП 902-2-393.85 Нестандартизированное оборудование ТП 902-2-393.85 ТХ-10 Камера хлопьеобразования. Эскизный чертеж общего вида. 1323.00.000 ТП 902-2-393.85 КЖ Конструкции железобетонные ТП 902-2-393.85 КЖ-1 Общие данные ТП 902-2-393.85 КЖ-2 Отстойник №1. План, разрезы ТП 902-2-393.85 КЖ-3 Отстойник №1. Сечения. Узлы ТП 902-2-393.85 КЖ-4 Днище. Схемы расположения верхней и нижней арматуры. Сечения ТП 902-2-393.85 КЖ-5 Днище. Сечения. Узлы ТП 902-2-393.85 КЖ-6 Схема расположения сборных железобетонных элементов ФМ1 ТП 902-2-393.85 КЖ-7 Схема расположения сборных железобетонных элементов. Узлы. Сечения ТП 902-2-393.85 КЖ-8 Отстойник №1. Схемы расположения асбестоцементных листов разделительной перегородки и водосливов ТП 902-2-393.85 КЖ-9 Схема расположения лотков и распределительной камеры. Узлы ТП 902-2-393.85 КЖ-10 Схема расположения лотков и распределительной камеры. Разрезы. Сечения. Узлы ТП 902-2-393.85 КЖ-11 Монолитные участки УМ1,УМ1Н ТП 902-2-393.85 КЖ-12 Лоток ЛТМ1. Опалубочный чертеж ТП 902-2-393.85 КЖ-13 Лоток ЛТМ1. Опалубочный чертеж. Сечения ТП 902-2-393.85 КЖ-14 Лоток ЛТМ1. Арматурный чертеж ТП 902-2-393.85 КЖ-15 Лоток ЛТМ1. Арматурный чертеж. Сечения ТП 902-2-393.85 КЖ-16 Распределительная камера. Опалубочный чертеж ТП 902-2-393.85 КЖ-17 Распределительная камера. Арматурный чертеж ТП 902-2-393.85 КЖ-18 Распределительная камера. Арматурный чертеж. Сечения ТП 902-2-393.85 КЖ-19 Колодцы иловые №1,№2 ТП 902-2-393.85 КЖ-20 Камеры смешения №1,2,3. Опалубочный чертеж ТП 902-2-393.85 КЖ-21 Камера смешения №1. Арматурный чертеж ТП 902-2-393.85 КЖ-22 Камера смешения №2,3. Арматурный чертеж ТП 902-2-393.85 КМ Конструкции металлические ТП 902-2-393.85 КМ-1 Общие данные ТП 902-2-393.85 КМ-2 Техническая спецификация металла. Ведомость металлоконструкций по видам профилей ТП 902-2-393.85 КМ-3 Техническая спецификация металла на площадки, лестницы и ограждения ТП 902-2-393.85 КМ-4 Схема балок и каркаса перегородок ТП 902-2-393.85 КМ-5 Схема расположения площадок. Узлы 1,2 ТП 902-2-393.85 КМ-6 Узлы 3,4,5 ТП 902-2-393.85 АТХ Автоматизация и КИП ТП 902-2-393.85 АТХ-1 Общие данные ТП 902-2-393.85 АТХ-2 Размещение приборов технологического контроля и прокладка кабеля. План ТП 902-2-393.85 АТХ-3 Размещение приборов технологического контроля и прокладка кабеля. Разрез. Схема подключения приборов технологического контроля ТП 902-2-393.85 АТХ Спецификация оборудования | Разработан: | ЦНИИЭП иженерного оборудования
| Утверждён: | 21.08.1985 Госгражданстрой (Gosgrazhdanstroy 252)
| Расположен в: |
|
                                          
|