Информационная система
«Ёшкин Кот»

Скачать базу одним архивом
Скачать обновления
История создания базы
Карта сайта

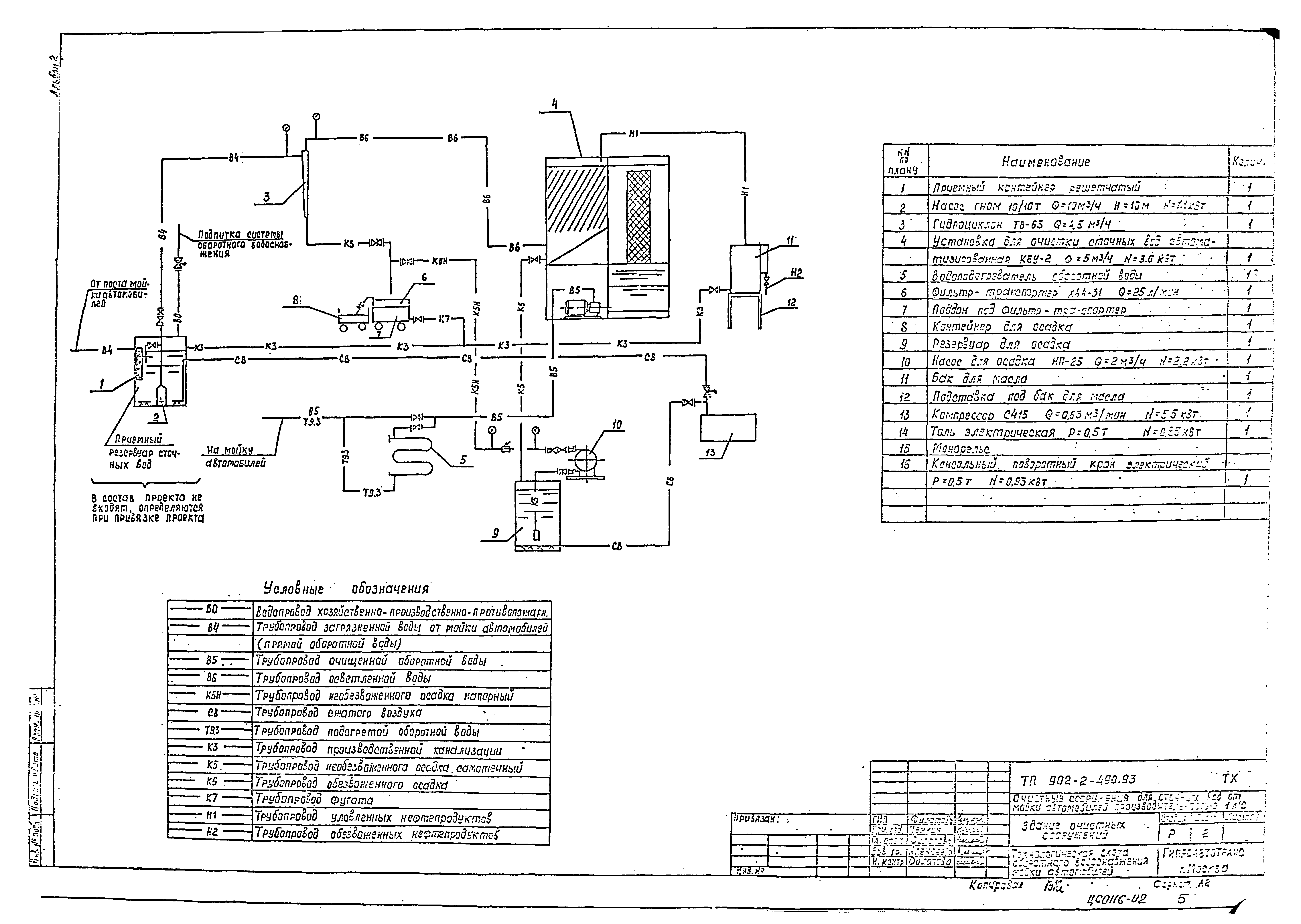
Скачать Типовой проект 902-2-490.93 Альбом 2. Технология производства. Архитектурно-строительные решения. Отопление и вентиляция. Силовое электрооборудование и электроосвещение. Автоматизация технологического процесса. Задание заводу-изготовителю

Дата актуализации: 10.08.2017

Типовой проект 902-2-490.93

Альбом 2. Технология производства. Архитектурно-строительные решения. Отопление и вентиляция. Силовое электрооборудование и электроосвещение. Автоматизация технологического процесса. Задание заводу-изготовителю

Обозначение: Типовой проект 902-2-490.93
Обозначение англ: 902-2-490.93
Статус:не определен законодательством
Название рус.:Альбом 2. Технология производства. Архитектурно-строительные решения. Отопление и вентиляция. Силовое электрооборудование и электроосвещение. Автоматизация технологического процесса. Задание заводу-изготовителю
Дата добавления в базу:01.09.2013
Дата актуализации:05.05.2017
Дата введения:30.09.1993
Разработан: Гипроавтотранс
Утверждён:30.09.1993 Гипроавтотранс (7)
Расположен в:Техническая документация Строительство Справочные документы Типовые строительные конструкции, изделия и узлы Общероссийский строительный каталог Промышленные предприятия, здания и сооружения Здания и сооружения санитарно-технические Канализация Сооружения для очистки производственных сточных вод Сооружения для очистки сточных вод от мойки автомобилей
Типовой проект 902-2-490.93Типовой проект 902-2-490.93Типовой проект 902-2-490.93Типовой проект 902-2-490.93Типовой проект 902-2-490.93Типовой проект 902-2-490.93Типовой проект 902-2-490.93Типовой проект 902-2-490.93Типовой проект 902-2-490.93Типовой проект 902-2-490.93Типовой проект 902-2-490.93Типовой проект 902-2-490.93Типовой проект 902-2-490.93Типовой проект 902-2-490.93Типовой проект 902-2-490.93Типовой проект 902-2-490.93Типовой проект 902-2-490.93Типовой проект 902-2-490.93Типовой проект 902-2-490.93Типовой проект 902-2-490.93Типовой проект 902-2-490.93Типовой проект 902-2-490.93Типовой проект 902-2-490.93Типовой проект 902-2-490.93Типовой проект 902-2-490.93

© 2013 Ёшкин Кот :-) Карта сайта