Информационная система
«Ёшкин Кот»

Скачать базу одним архивом
Скачать обновления
История создания базы
Карта сайта

Скачать Типовой проект 902-5-13.86 Альбом III. Архитектурно-строительные решения. Конструкции железобетонные и металлические. Показатели изменения сметной стоимости

Дата актуализации: 10.08.2017

Типовой проект 902-5-13.86

Альбом III. Архитектурно-строительные решения. Конструкции железобетонные и металлические. Показатели изменения сметной стоимости

Обозначение: Типовой проект 902-5-13.86
Обозначение англ: 902-5-13.86
Статус:не определен законодательством
Название рус.:Альбом III. Архитектурно-строительные решения. Конструкции железобетонные и металлические. Показатели изменения сметной стоимости
Дата добавления в базу:01.09.2013
Дата актуализации:05.05.2017
Дата введения:26.02.1986
Оглавление:ТП 902-5-13.86 АР Листы марки АР
ТП 902-5-13.86 АР Общие данные
ТП 902-5-13.86 АР Планы на отм. -2.700;0.000 и 3.600
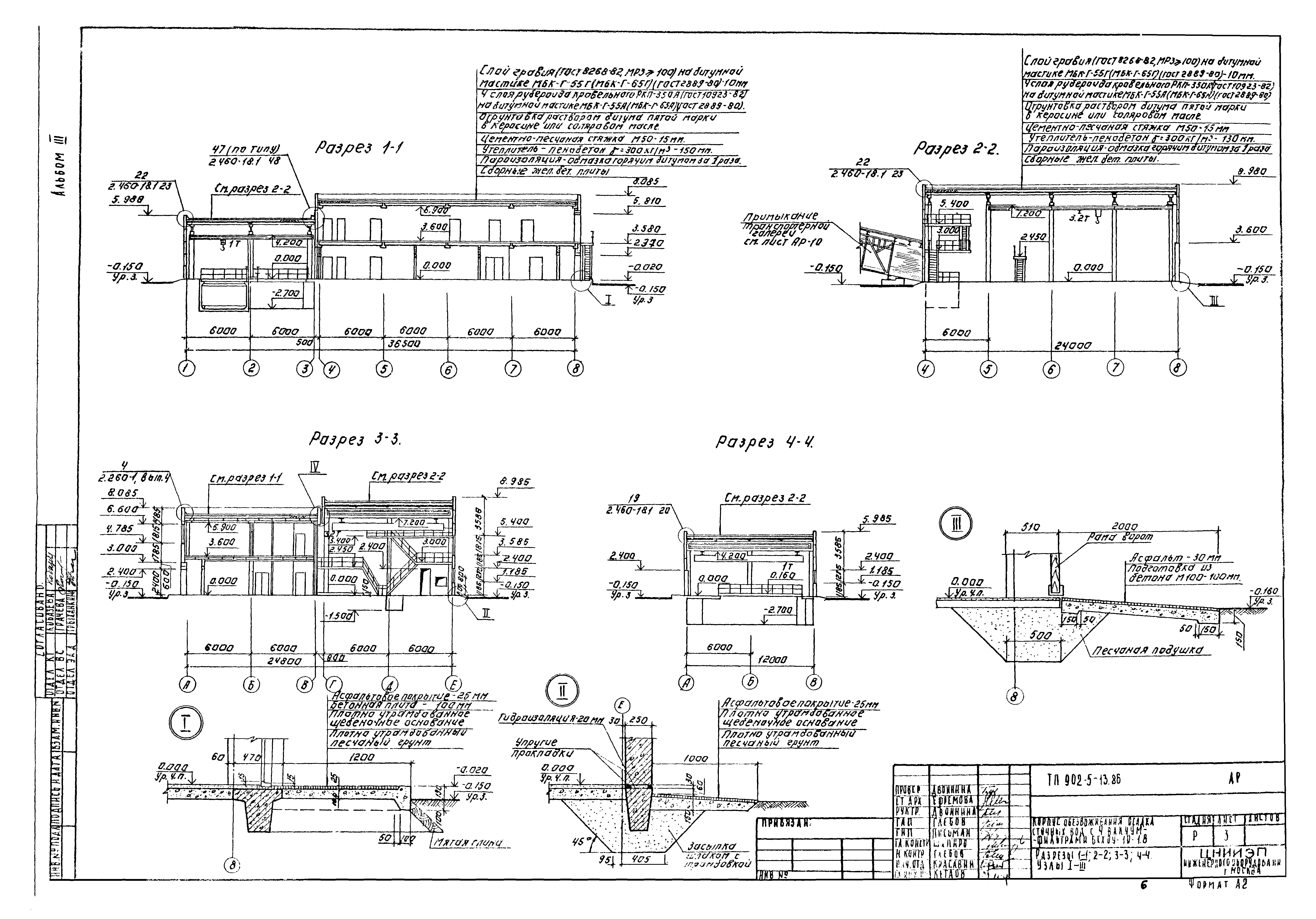
ТП 902-5-13.86 АР Разрезы 1-1;2-2;3-3;4-4. Узлы 1-3
ТП 902-5-13.86 АР Фасады 1-8;8-1;А-Е;Е-А. Схемы заполнения оконных проемов
ТП 902-5-13.86 АР Планы на отм. -2.700. Фрагменты 1-4. Узлы 6-8
ТП 902-5-13.86 АР Планы перегородок на отм. 0.000 и 3.600. Спецификация перегородок. Планы отверстий
ТП 902-5-13.86 АР Спецификация элементов заполнения проемов. Спецификация гардеробного оборудования. Спецификация перемычек. Ведомость перемычек
ТП 902-5-13.86 АР Ведомость отделки помещений
ТП 902-5-13.86 АР Планы полов и кровли. Экспликация полов
ТП 902-5-13.86 АР Транспортерная галерея. План. Разрезы. Фасады
ТП 902-5-13.86 КЖ Листы марки КЖ
ТП 902-5-13.86 КЖ Общие данные (начало)
ТП 902-5-13.86 КЖ Общие данные (продолжение)
ТП 902-5-13.86 КЖ Общие данные (окончание)
ТП 902-5-13.86 КЖ Схема расположения фундаментов, фундаментных балок и стен подвала
ТП 902-5-13.86 КЖ Фундаменты зданий. Сечения 1-1÷6-6. Спецификация
ТП 902-5-13.86 КЖ Фундаменты зданий. Разрезы 7-7÷15-15
ТП 902-5-13.86 КЖ Фундаменты Фм1-Фм5. Опалубочный чертеж
ТП 902-5-13.86 КЖ Фундаменты Фм6-Фм11. Опалубочный чертеж
ТП 902-5-13.86 КЖ Фундаменты Фм12-Фм14,Фм16. Опалубочный чертеж
ТП 902-5-13.86 КЖ Фундаменты Фм15,Фм17,Фм19. Опалубочный чертеж. Армирование
ТП 902-5-13.86 КЖ Фундаменты Фм1,Фм2,Фм3. Армирование
ТП 902-5-13.86 КЖ Фундаменты Фм4,Фм5,Фм6. Армирование
ТП 902-5-13.86 КЖ Фундаменты Фм7,Фм8,Фм9. Армирование
ТП 902-5-13.86 КЖ Фундаменты Фм10,Фм11. Армирование
ТП 902-5-13.86 КЖ Фундаменты Фм12. Армирование
ТП 902-5-13.86 КЖ Фундаменты Фм13,Фм14. Армирование
ТП 902-5-13.86 КЖ Фундаменты Фм16. Армирование
ТП 902-5-13.86 КЖ Фундаменты Фм18,Фм20. Армирование
ТП 902-5-13.86 КЖ Резервуар РЕ-1. Опалубочный чертеж. Разрезы 1-1;2-2. Узлы
ТП 902-5-13.86 КЖ Резервуар РЕ-1. План перекрытия, сечения. Деревянный щит ЩД-1
ТП 902-5-13.86 КЖ Резервуар РЕ-1. Армирование. Раскладка верхних и нижних сеток днища
ТП 902-5-13.86 КЖ Резервуар РЕ-1. Армирование. Спецификации
ТП 902-5-13.86 КЖ План фундаментов под оборудование на отм. 0.000,-2.700
ТП 902-5-13.86 КЖ План фундаментов под оборудование. Сечения 1-1÷11-11
ТП 902-5-13.86 КЖ Фундаменты под оборудование. Фрагмент плана №1. ФО-1÷ФО-3. Сечения 1-1,2-2
ТП 902-5-13.86 КЖ Фундаменты под оборудование ФО-1÷ФО-3. Сечения 3-3÷6-6
ТП 902-5-13.86 КЖ Фундаменты под оборудование. Фрагмент плана №2. ФО-4÷ФО-6. Сечения 1-1÷3-3
ТП 902-5-13.86 КЖ Фундаменты под оборудование ФО-7÷ФО-10. Сечения 1-1÷4-4
ТП 902-5-13.86 КЖ Схемы расположения колонн, балок и плит покрытия в осях А-В,1-3 и Г-Е,4-8
ТП 902-5-13.86 КЖ Схемы расположения стеновых панелей в осях А-В,1-3 и Г-Е,4-8
ТП 902-5-13.86 КЖ Торцевой фахверк в осях А-В,1-3 и Г-Е,4-8. Разрезы 1-1,2-2,3-3
ТП 902-5-13.86 КЖ Схемы расположения колонн, диаграмм жесткости, ригелей в осях А-В;4-8
ТП 902-5-13.86 КЖ Схемы расположения плит перекрытия на отм. 3.600 и 7.200 в осях А-В,4-8
ТП 902-5-13.86 КЖ Схемы расположения стеновых панелей в осях А-В,4-8
ТП 902-5-13.86 КЖ Схемы расположения лестничных маршей, проступей и верхней лестничной площадки в осях А-Б,5-6
ТП 902-5-13.86 КЖ Схемы расположения монолитной лестничной площадки МП-1. Армирование. Узлы
ТП 902-5-13.86 КЖ Приточная венткамера на отм. 0.000
ТП 902-5-13.86 КЖ Резервуар РЕ-2. Опалубочный чертеж. Разрезы 1-1,2-2. Узлы 1-5
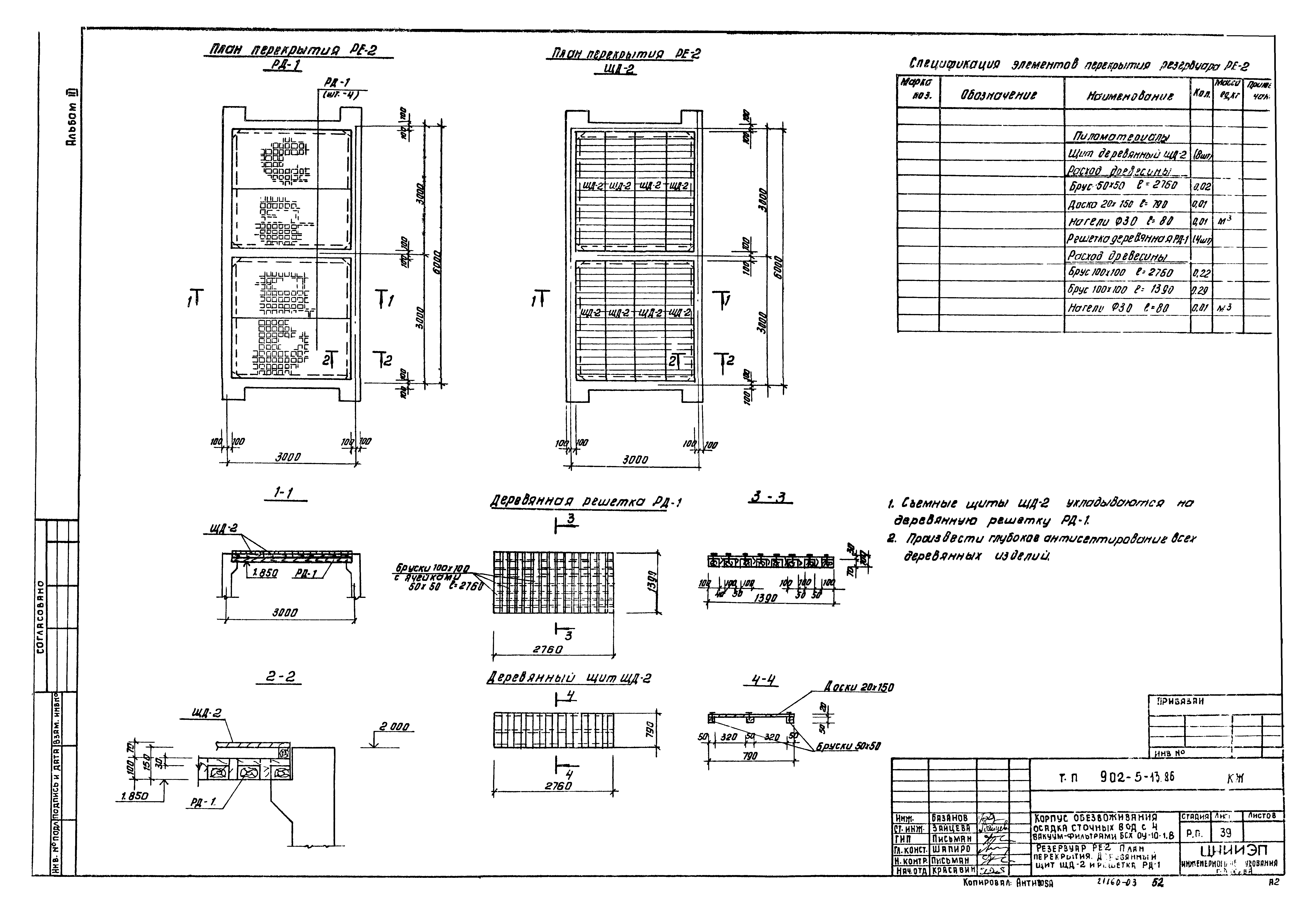
ТП 902-5-13.86 КЖ Резервуар РЕ-2. План перекрытия. Деревянный щит ЩА-2 и решетка РД-1
ТП 902-5-13.86 КЖ Резервуар РЕ-2. Армирование. Раскладка верхних и нижних сеток
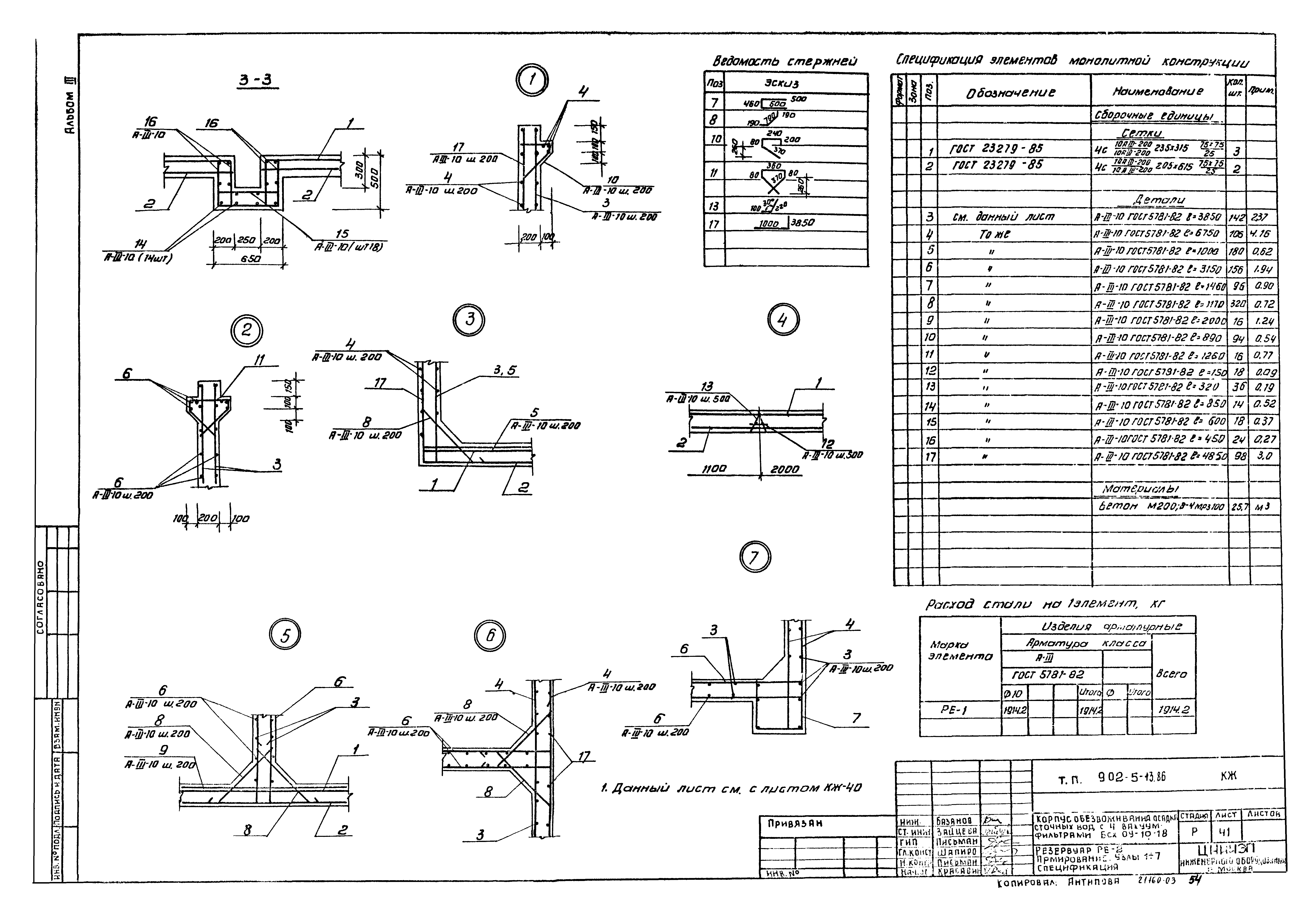
ТП 902-5-13.86 КЖ Резервуар РЕ-2. Армирование. Узлы 1-7. Спецификация
ТП 902-5-13.86 КЖ Транспортная галерея. Схемы расположения плит покрытия, стеновых блоков и панелей, гофрированного стального профиль покрытия
ТП 902-5-13.86 КЖ Транспортная галерея. Схемы расположения фундаментов
ТП 902-5-13.86 КЖ Транспортная галерея. Монолитные участки Ум1,Ум2
ТП 902-5-13.86 КЖ Показатели изменения сметной стоимости строительно-монтажных работ, затрат труда и расходы материалов
ТП 902-5-13.86 КМ Листы марки КМ
ТП 902-5-13.86 КМ Общие данные
ТП 902-5-13.86 КМ Техническая спецификация металла (начало)
ТП 902-5-13.86 КМ Техническая спецификация металла (окончание)
ТП 902-5-13.86 КМ Техническая спецификация стали на типовые конструкции
ТП 902-5-13.86 КМ Ведомость металлоконструкций по видам профилей
ТП 902-5-13.86 КМ Схема расположения металлических площадок на отм. 0.000;3.000;5.400
ТП 902-5-13.86 КМ Металлические площадки сеч. 1-1÷4-4. Спецификации
ТП 902-5-13.86 КМ Металлические площадки сеч. 5-5÷15-15
ТП 902-5-13.86 КМ Металлические площадки. Узлы 1-10
ТП 902-5-13.86 КМ Схема расположения подкрановых путей и монорельсов. Сеч. 1-1÷4-4
ТП 902-5-13.86 КМ Схема расположения подкрановых путей и монорельсов. Фрагмент плана №1. Сечения. Узлы
ТП 902-5-13.86 КМ Транспортная галерея. Схема расположения балок пола, кровли, опор
ТП 902-5-13.86 КМ Наружная площадка, лестница. Пожарные лестницы
Разработан: ЦНИИЭП иженерного оборудования
Утверждён:04.12.1985 Госгражданстрой (Gosgrazhdanstroy 386)
Расположен в:Техническая документация Строительство Справочные документы Типовые строительные конструкции, изделия и узлы Общероссийский строительный каталог Промышленные предприятия, здания и сооружения Здания и сооружения санитарно-технические Канализация Сооружения для очистки производственных сточных вод Сооружения для обработки осадка
Заменяет собой:
Типовой проект 902-5-13.86Типовой проект 902-5-13.86Типовой проект 902-5-13.86Типовой проект 902-5-13.86Типовой проект 902-5-13.86Типовой проект 902-5-13.86Типовой проект 902-5-13.86Типовой проект 902-5-13.86Типовой проект 902-5-13.86Типовой проект 902-5-13.86Типовой проект 902-5-13.86Типовой проект 902-5-13.86Типовой проект 902-5-13.86Типовой проект 902-5-13.86Типовой проект 902-5-13.86Типовой проект 902-5-13.86Типовой проект 902-5-13.86Типовой проект 902-5-13.86Типовой проект 902-5-13.86Типовой проект 902-5-13.86Типовой проект 902-5-13.86Типовой проект 902-5-13.86Типовой проект 902-5-13.86Типовой проект 902-5-13.86Типовой проект 902-5-13.86Типовой проект 902-5-13.86Типовой проект 902-5-13.86Типовой проект 902-5-13.86Типовой проект 902-5-13.86Типовой проект 902-5-13.86Типовой проект 902-5-13.86Типовой проект 902-5-13.86Типовой проект 902-5-13.86Типовой проект 902-5-13.86Типовой проект 902-5-13.86Типовой проект 902-5-13.86Типовой проект 902-5-13.86Типовой проект 902-5-13.86Типовой проект 902-5-13.86Типовой проект 902-5-13.86Типовой проект 902-5-13.86Типовой проект 902-5-13.86Типовой проект 902-5-13.86Типовой проект 902-5-13.86Типовой проект 902-5-13.86Типовой проект 902-5-13.86Типовой проект 902-5-13.86Типовой проект 902-5-13.86Типовой проект 902-5-13.86Типовой проект 902-5-13.86Типовой проект 902-5-13.86Типовой проект 902-5-13.86Типовой проект 902-5-13.86Типовой проект 902-5-13.86Типовой проект 902-5-13.86Типовой проект 902-5-13.86Типовой проект 902-5-13.86Типовой проект 902-5-13.86Типовой проект 902-5-13.86Типовой проект 902-5-13.86Типовой проект 902-5-13.86Типовой проект 902-5-13.86Типовой проект 902-5-13.86Типовой проект 902-5-13.86Типовой проект 902-5-13.86Типовой проект 902-5-13.86Типовой проект 902-5-13.86Типовой проект 902-5-13.86Типовой проект 902-5-13.86Типовой проект 902-5-13.86Типовой проект 902-5-13.86

© 2013 Ёшкин Кот :-) Карта сайта