Информационная система
«Ёшкин Кот»

Скачать базу одним архивом
Скачать обновления
История создания базы
Карта сайта

Скачать Типовой проект 903-1-250.87 Альбом 31. Оборудование индивидуального изготовления. Конвейер ленточный № 1, 2

Дата актуализации: 10.08.2017

Типовой проект 903-1-250.87

Альбом 31. Оборудование индивидуального изготовления. Конвейер ленточный № 1, 2

Обозначение: Типовой проект 903-1-250.87
Обозначение англ: 903-1-250.87
Статус:не определен законодательством
Название рус.:Альбом 31. Оборудование индивидуального изготовления. Конвейер ленточный № 1, 2
Дата добавления в базу:01.09.2013
Дата актуализации:05.05.2017
Дата введения:29.09.1987
Оглавление:ТП 903-1-250.87 4Т1.00.00.000 СБ Конвейер ленточный №1. Сборочный чертеж
ТП 903-1-250.87 4Т1.00.00.000 Конвейер ленточный №1
ТП 903-1-250.87 4Т1.01.00.000 СБ Устройство приводное. Сборочный чертеж
ТП 903-1-250.87 4Т1.01.00.000 Устройство приводное
ТП 903-1-250.87 4Т1.01.01.000 Опора приводного барабана
ТП 903-1-250.87 4Т1.01.01.000 СБ Опора приводного барабана. Сборочный чертеж
ТП 903-1-250.87 4Т1.01.02.000 Верхняя часть головной воронки
ТП 903-1-250.87 4Т1.01.02.000 СБ Верхняя часть головной воронки. Сборочный чертеж
ТП 903-1-250.87 4Т1.01.03.000 СБ Нижняя часть головной воронки. Сборочный чертеж
ТП 903-1-250.87 4Т1.01.03.000 Нижняя часть головной воронки
ТП 903-1-250.87 4Т1.01.04.000 Воронка нижняя
ТП 903-1-250.87 4Т1.01.04.000 СБ Воронка нижняя. Сборочный чертеж
ТП 903-1-250.87 4Т1.01.05.000 Привод
ТП 903-1-250.87 4Т1.01.05.000 СБ Привод. Сборочный чертеж
ТП 903-1-250.87 4Т1.01.05.100 Ограждение муфты
ТП 903-1-250.87 4Т1.01.05.100 СБ Ограждение муфты. Сборочный чертеж
ТП 903-1-250.87 4Т1.01.05.101 Планка
ТП 903-1-250.87 4Т1.01.05.102 Кожух
ТП 903-1-250.87 4Т1.01.05.200 Ограждение муфты
ТП 903-1-250.87 4Т1.01.05.200 СБ Ограждение муфты. Сборочный чертеж
ТП 903-1-250.87 4Т1.01.05.201 Кожух
ТП 903-1-250.87 4Т1.01.05.300 СБ Опора привода. Сборочный чертеж
ТП 903-1-250.87 4Т1.01.05.301 Косынка
ТП 903-1-250.87 4Т1.01.05.302 Косынка
ТП 903-1-250.87 4Т1.01.05.300 Опора привода
ТП 903-1-250.87 4Т1.02.00.000 Устройство натяжное
ТП 903-1-250.87 4Т1.02.00.000 СБ Устройство натяжное. Сборочный чертеж
ТП 903-1-250.87 4Т1.02.01.000 Опора натяжки
ТП 903-1-250.87 4Т1.02.02.000 Ограждение барабана натяжки
ТП 903-1-250.87 4Т1.02.01.000 СБ Опора натяжки. Сборочный чертеж
ТП 903-1-250.87 4Т1.02.02.000 СБ Ограждение барабана натяжки. Сборочный чертеж
ТП 903-1-250.87 4Т1.03.00.000 Секция загрузочная ℓ=6000
ТП 903-1-250.87 4Т1.04.00.000 Секция ℓ=2770
ТП 903-1-250.87 4Т1.05.00.000 Стойка
ТП 903-1-250.87 4Т1.03.00.000 СБ Секция загрузочная ℓ=6000. Сборочный чертеж
ТП 903-1-250.87 4Т1.04.00.000 СБ Секция ℓ=2770. Сборочный чертеж
ТП 903-1-250.87 4Т1.05.00.000 СБ Стойка. Сборочный чертеж
ТП 903-1-250.87 4Т1.06.00.000 Лоток концевой (проходной)
ТП 903-1-250.87 4Т1.06.00.000 СБ Лоток концевой (проходной). Сборочный чертеж
ТП 903-1-250.87 4Т1.06.01.000 СБ Корпус. Сборочный чертеж
ТП 903-1-250.87 4Т1.06.01.000 Корпус
ТП 903-1-250.87 4Т1.06.02.000 Прижим боковой
ТП 903-1-250.87 4Т1.06.02.000 СБ Прижим боковой. Сборочный чертеж
ТП 903-1-250.87 4Т1.06.03.000 Завеса
ТП 903-1-250.87 4Т1.06.03.000 СБ Завеса. Сборочный чертеж
ТП 903-1-250.87 4Т1.06.04.000 СБ Связь. Сборочный чертеж
ТП 903-1-250.87 4Т1.06.04.000 Связь
ТП 903-1-250.87 4Т1.06.05.000 СБ Завеса боковая. Сборочный чертеж
ТП 903-1-250.87 4Т1.06.05.000 Завеса боковая
ТП 903-1-250.87 4Т1.06.06.000 Прижим задний
ТП 903-1-250.87 4Т1.06.06.000 СБ Прижим задний. Сборочный чертеж
ТП 903-1-250.87 4Т1.06.07.000 Стойка
ТП 903-1-250.87 4Т1.07.00.000 Лоток прижимной типа 1
ТП 903-1-250.87 4Т1.06.07.000 СБ Стойка. Сборочный чертеж
ТП 903-1-250.87 4Т1.07.00.000 СБ Лоток промежуточный типа 1. Сборочный чертеж
ТП 903-1-250.87 4Т1.07.01.000 Корпус
ТП 903-1-250.87 4Т1.07.01.000 СБ Корпус. Сборочный чертеж
ТП 903-1-250.87 4Т1.07.02.000 Прижим боковой
ТП 903-1-250.87 4Т1.07.02.000 СБ Прижим боковой. Сборочный чертеж
ТП 903-1-250.87 4Т1.08.00.000 Лоток промежуточный типа 2
ТП 903-1-250.87 4Т1.09.00.000 Стойка
ТП 903-1-250.87 4Т1.08.00.000 СБ Лоток промежуточный типа 2. Сборочный чертеж
ТП 903-1-250.87 4Т1.08.01.000 Корпус
ТП 903-1-250.87 4Т1.08.01.000 СБ Корпус. Сборочный чертеж
ТП 903-1-250.87 4Т1.08.02.000 Прижим боковой
ТП 903-1-250.87 4Т1.08.02.000 СБ Прижим боковой. Сборочный чертеж
ТП 903-1-250.87 4Т1.09.00.000 СБ Стойка. Сборочный чертеж
ТП 903-1-250.87 4Т2.00.00.000 Конвейер ленточный №2
ТП 903-1-250.87 4Т2.00.00.000 СБ Конвейер ленточный №2. Сборочный чертеж
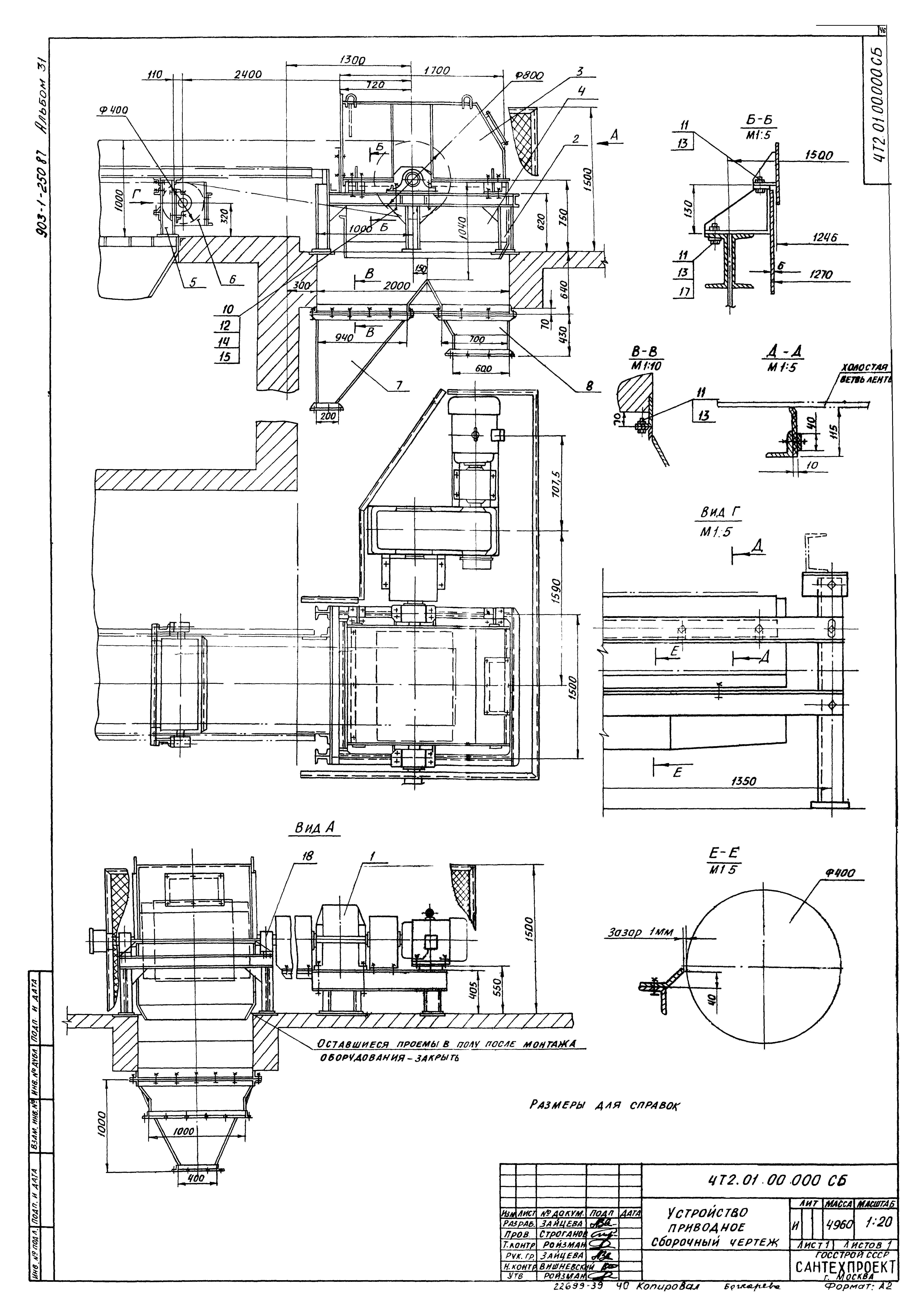
ТП 903-1-250.87 4Т2.01.00.000 Устройство приводное
ТП 903-1-250.87 4Т2.01.01.000 Привод
ТП 903-1-250.87 4Т2.01.00.000 СБ Устройство приводное. Сборочный чертеж
ТП 903-1-250.87 4Т2.01.01.000 СБ Привод. Сборочный чертеж
ТП 903-1-250.87 4Т2.01.01.100 СБ Рама привода. Сборочный чертеж
ТП 903-1-250.87 4Т2.01.01.100 Рама привода
ТП 903-1-250.87 4Т2.01.01.103 Ребро
ТП 903-1-250.87 4Т2.01.01.104 Швеллер
ТП 903-1-250.87 4Т2.01.01.108 Швеллер
ТП 903-1-250.87 4Т2.01.01.110 Уголок
ТП 903-1-250.87 4Т2.01.01.111 Косынка
ТП 903-1-250.87 4Т2.01.01.112 Швеллер
ТП 903-1-250.87 4Т2.01.01.200 Ограждение муфты
ТП 903-1-250.87 4Т2.01.01.200 СБ Ограждение муфты. Сборочный чертеж
ТП 903-1-250.87 4Т2.01.01.202 Лист
ТП 903-1-250.87 4Т2.01.01.201 Лист
ТП 903-1-250.87 4Т2.01.01.300 Ограждение муфты
ТП 903-1-250.87 4Т2.01.01.300 СБ Ограждение муфты. Сборочный чертеж
ТП 903-1-250.87 4Т2.01.01.301 Лист
ТП 903-1-250.87 4Т2.01.01.302 Лист
ТП 903-1-250.87 4Т2.01.02.000 Опора приводного барабана
ТП 903-1-250.87 4Т2.01.01.001 Прокладка
ТП 903-1-250.87 4Т2.01.03.000 Верхняя часть головной воронки
ТП 903-1-250.87 4Т2.01.04.000 Нижняя часть головной воронки
ТП 903-1-250.87 4Т2.01.02.000 СБ Опора приводного барабана. Сборочный чертеж
ТП 903-1-250.87 4Т2.01.03.000 СБ Верхняя часть головной воронки. Сборочный чертеж
ТП 903-1-250.87 4Т2.01.04.000 СБ Нижняя часть головной воронки. Сборочный чертеж
ТП 903-1-250.87 4Т2.01.05.000 Опора барабана отклоняющего
ТП 903-1-250.87 4Т2.01.06.000 Ограждение барабана отклоняющего
ТП 903-1-250.87 4Т2.01.05.000 СБ Опора барабана отклоняющего. Сборочный чертеж
ТП 903-1-250.87 4Т2.01.06.000 СБ Ограждение барабана отклоняющего. Сборочный чертеж
ТП 903-1-250.87 4Т2.01.07.000 Воронка типа 1
ТП 903-1-250.87 4Т2.01.08.000 Воронка типа 2
ТП 903-1-250.87 4Т2.01.07.000 СБ Воронка типа 1. Сборочный чертеж
ТП 903-1-250.87 4Т2.01.08.000 СБ Воронка типа 2. Сборочный чертеж
ТП 903-1-250.87 4Т2.02.00.000 СБ Устройство натяжное. Сборочный чертеж
ТП 903-1-250.87 4Т2.02.00.000 Устройство натяжное
ТП 903-1-250.87 4Т2.02.01.000 Опора барабанов оборотных
ТП 903-1-250.87 4Т2.02.01.000 СБ Опора барабанов оборотных. Сборочный чертеж
ТП 903-1-250.87 4Т2.02.02.000 СБ Ограждение барабанов оборотных. Сборочный чертеж
ТП 903-1-250.87 4Т2.02.03.000 СБ Металлоконструкция конвейера №2. Сборочный чертеж
ТП 903-1-250.87 4Т2.02.02.000 Ограждение барабанов оборотных
ТП 903-1-250.87 4Т2.02.03.000 Металлоконструкция конвейера №2
ТП 903-1-250.87 4Т2.03.01.000 Секция средней части ℓ=6000
ТП 903-1-250.87 4Т2.03.02.000 Секция загрузочная ℓ=6000
ТП 903-1-250.87 4Т2.03.01.000 СБ Секция средней части ℓ=6000. Сборочный чертеж
ТП 903-1-250.87 4Т2.03.02.000 СБ Секция загрузочная ℓ=6000. Сборочный чертеж
ТП 903-1-250.87 4Т2.03.03.000 СБ Секция гнутая α=15º. Сборочный чертеж
ТП 903-1-250.87 4Т2.03.04.000 СБ Секция загрузочная ℓ=6000. Сборочный чертеж
ТП 903-1-250.87 4Т2.03.03.000 Секция гнутая α=15º
ТП 903-1-250.87 4Т2.03.04.000 Секция загрузочная ℓ=6000
ТП 903-1-250.87 4Т2.03.06.000 Стойка Н=1495
ТП 903-1-250.87 4Т2.03.05.000 СБ Стойка. Сборочный чертеж
ТП 903-1-250.87 4Т2.03.06.000 СБ Стойка Н=1497. Сборочный чертеж
ТП 903-1-250.87 4Т2.03.05.000 Стойка
ТП 903-1-250.87 4Т2.04.01.000 Панель ограждения ℓ=3000
ТП 903-1-250.87 4Т2.04.00.000 Установка ограждений и аварийных выключателей
ТП 903-1-250.87 4Т2.04.00.000 СБ Установка ограждений и аварийных выключателей. Сборочный чертеж
ТП 903-1-250.87 4Т2.04.01.000 СБ Панель ограждения ℓ=3000. Сборочный чертеж
Разработан: ГПИ Сантехпроект Госстроя СССР
Утверждён:29.09.1987 Госстрой СССР (Государственный комитет Совета Министров СССР по делам строительства) (USSR Gosstroy 78)
Расположен в:Техническая документация Строительство Справочные документы Типовые строительные конструкции, изделия и узлы Общероссийский строительный каталог Промышленные предприятия, здания и сооружения Здания и сооружения санитарно-технические Теплоснабжение Котельные установки Открытые системы теплоснабжения Топливо - каменные и бурые угли
Заменяет собой:
Типовой проект 903-1-250.87Типовой проект 903-1-250.87Типовой проект 903-1-250.87Типовой проект 903-1-250.87Типовой проект 903-1-250.87Типовой проект 903-1-250.87Типовой проект 903-1-250.87Типовой проект 903-1-250.87Типовой проект 903-1-250.87Типовой проект 903-1-250.87Типовой проект 903-1-250.87Типовой проект 903-1-250.87Типовой проект 903-1-250.87Типовой проект 903-1-250.87Типовой проект 903-1-250.87Типовой проект 903-1-250.87Типовой проект 903-1-250.87Типовой проект 903-1-250.87Типовой проект 903-1-250.87Типовой проект 903-1-250.87Типовой проект 903-1-250.87Типовой проект 903-1-250.87Типовой проект 903-1-250.87Типовой проект 903-1-250.87Типовой проект 903-1-250.87Типовой проект 903-1-250.87Типовой проект 903-1-250.87Типовой проект 903-1-250.87Типовой проект 903-1-250.87Типовой проект 903-1-250.87Типовой проект 903-1-250.87Типовой проект 903-1-250.87Типовой проект 903-1-250.87Типовой проект 903-1-250.87Типовой проект 903-1-250.87Типовой проект 903-1-250.87Типовой проект 903-1-250.87Типовой проект 903-1-250.87Типовой проект 903-1-250.87Типовой проект 903-1-250.87Типовой проект 903-1-250.87Типовой проект 903-1-250.87Типовой проект 903-1-250.87Типовой проект 903-1-250.87Типовой проект 903-1-250.87Типовой проект 903-1-250.87Типовой проект 903-1-250.87Типовой проект 903-1-250.87Типовой проект 903-1-250.87Типовой проект 903-1-250.87Типовой проект 903-1-250.87Типовой проект 903-1-250.87Типовой проект 903-1-250.87Типовой проект 903-1-250.87Типовой проект 903-1-250.87Типовой проект 903-1-250.87Типовой проект 903-1-250.87Типовой проект 903-1-250.87Типовой проект 903-1-250.87Типовой проект 903-1-250.87Типовой проект 903-1-250.87Типовой проект 903-1-250.87Типовой проект 903-1-250.87Типовой проект 903-1-250.87Типовой проект 903-1-250.87Типовой проект 903-1-250.87Типовой проект 903-1-250.87Типовой проект 903-1-250.87Типовой проект 903-1-250.87Типовой проект 903-1-250.87Типовой проект 903-1-250.87Типовой проект 903-1-250.87Типовой проект 903-1-250.87Типовой проект 903-1-250.87Типовой проект 903-1-250.87Типовой проект 903-1-250.87Типовой проект 903-1-250.87

© 2013 Ёшкин Кот :-) Карта сайта