Информационная система
«Ёшкин Кот»

Скачать базу одним архивом
Скачать обновления
История создания базы
Карта сайта

Скачать Типовой проект 903-1-250.87 Альбом 25. Механизация транспорта. Отопление и вентиляция. Водопровод и канализация

Дата актуализации: 10.08.2017

Типовой проект 903-1-250.87

Альбом 25. Механизация транспорта. Отопление и вентиляция. Водопровод и канализация

Обозначение: Типовой проект 903-1-250.87
Обозначение англ: 903-1-250.87
Статус:не определен законодательством
Название рус.:Альбом 25. Механизация транспорта. Отопление и вентиляция. Водопровод и канализация
Дата добавления в базу:01.09.2013
Дата актуализации:05.05.2017
Дата введения:29.09.1987
Оглавление:ТП 903-1-250.87 Содержание альбома
ТП 903-1-250.87 ТП-1 Общие данные
ТП 903-1-250.87 ТП-2 Механизация топливоподачи. План
ТП 903-1-250.87 ТП-3 Механизация топливоподачи. Разрезы 1-1;2-2
ТП 903-1-250.87 ТП-4 Механизация топливоподачи. Разрезы 3-3;8-8
ТП 903-1-250.87 ТП-5 Приемное устройство. Разрез 1-1
ТП 903-1-250.87 ТП-6 Приемное устройство. План на отм. 0.000. Разрез 4-4. Вид А
ТП 903-1-250.87 ТП-7 Приемное устройство. Разрезы 2-2;3-3
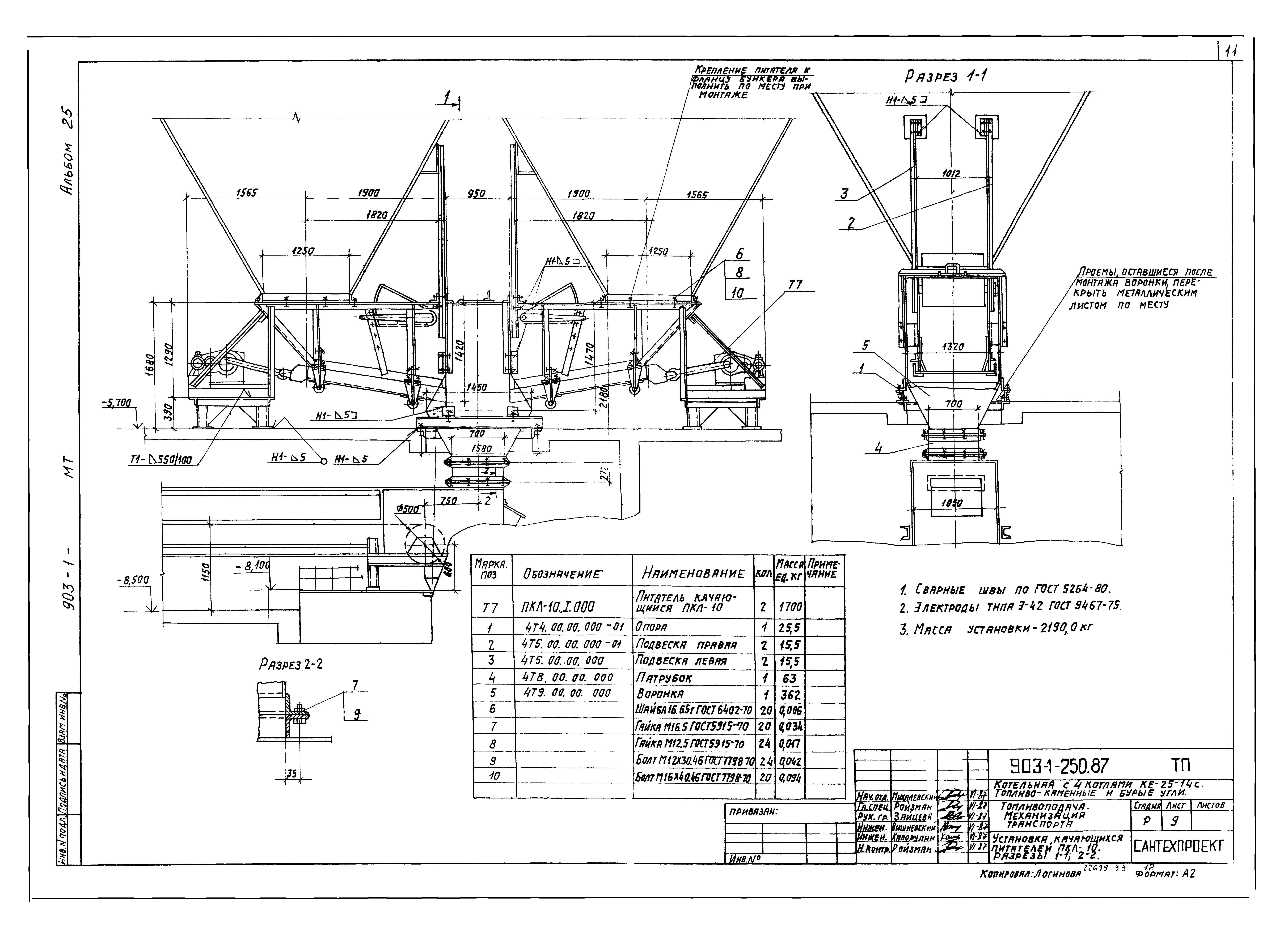
ТП 903-1-250.87 ТП-8 Установка качающегося питателя ПКЛ-10. Разрезы 1-1;2-2
ТП 903-1-250.87 ТП-9 Установка качающегося питателя ПКЛ-10. Разрезы 1-1;2-2
ТП 903-1-250.87 ТП-10 Установка качающихся питателей ПКЛ-8
ТП 903-1-250.87 ТП-11 Установка люкоподъемников
ТП 903-1-250.87 ТП-12 Установка маневрового устройства МУ-12М2. План на отм. 0.000. Разрез 3-3
ТП 903-1-250.87 ТП-13 Установка маневрового устройства МУ-12М2. Разрезы 4-4÷10-10
ТП 903-1-250.87 ТП-14 Дробильное устройство. Общий вид
ТП 903-1-250.87 ТП-15 Дробильное устройство. Разрезы 1-1÷8-8
ТП 903-1-250.87 ОВ-1 Общие данные (начало)
ТП 903-1-250.87 ОВ-2 Общие данные (продолжение)
ТП 903-1-250.87 ОВ-3 Общие данные (окончание)
ТП 903-1-250.87 ОВ-4 Приемное устройство. Планы на отм. 0.000;-3.200 местные отсосы от технологического оборудования
ТП 903-1-250.87 ОВ-5 Приемное устройство. Планы на отм. -5.700;-8.100;-8.300
ТП 903-1-250.87 ОВ-6 Приемное устройство. Планы на отм. -10.600. Разрез 1-1
ТП 903-1-250.87 ОВ-7 Дробильное устройство. Планы на отм. 0.000;6.000;11.400. Разрез 4-4
ТП 903-1-250.87 ОВ-8 Разрезы 2-2;3-3
ТП 903-1-250.87 ОВ-9 Планы галерей первого и второго подъема. Разрезы 5-5;6-6
ТП 903-1-250.87 ОВ-10 Схемы систем П1-П4,В1-В4,ВЕ1-ВЕ3
ТП 903-1-250.87 ОВ-11 Схемы систем отопления приемного устройства и теплоснабжения П1;П2. Узел 3
ТП 903-1-250.87 ОВ-12 Схема системы отопления дробильного устройства и галереи первого подъема
ТП 903-1-250.87 ОВ-13 Схема системы отопления галерей второго подъема и теплоснабжения П3;П4. Узлы 1;2
ТП 903-1-250.87 ОВ-14 Схема системы теплоснабжения и узлов управления. Узел 4. Таблица размеров компенсаторов
ТП 903-1-250.87 ОВ-15 Узлы управления 1;2
ТП 903-1-250.87 ОВ-16 Установка систем П1-П4
ТП 903-1-250.87 ОВ-17 Установка систем В1;В2
ТП 903-1-250.87 ОВ-18 Установка систем В3;В4
ТП 903-1-250.87 ОВ-19 Задание электроотделу на привязку приточных вентсистем П1,П3
ТП 903-1-250.87 ВК-1 Общие данные
ТП 903-1-250.87 ВК-2 Приемное устройства. Планы на отм. 0.000-3.200 -5.700 -8.100,-8.500,-10.500
ТП 903-1-250.87 ВК-3 Дробильное устройство. Планы на отм. 0.000; 6.000, 11.400. План кровли. Планы галерей 1 и 2 подъема
ТП 903-1-250.87 ВК-4 Схемы систем В1. Водомерные узлы 2,3
ТП 903-1-250.87 ВК-5 Схемы систем К2;К3;К6
ТП 903-1-250.87 ВК-6 Приемное устройство. Установка системы К6
Разработан: ГПИ Сантехпроект Госстроя СССР
Утверждён:29.09.1987 Госстрой СССР (Государственный комитет Совета Министров СССР по делам строительства) (USSR Gosstroy 78)
Расположен в:Техническая документация Строительство Справочные документы Типовые строительные конструкции, изделия и узлы Общероссийский строительный каталог Промышленные предприятия, здания и сооружения Здания и сооружения санитарно-технические Теплоснабжение Котельные установки Открытые системы теплоснабжения Топливо - каменные и бурые угли
Заменяет собой:
Типовой проект 903-1-250.87Типовой проект 903-1-250.87Типовой проект 903-1-250.87Типовой проект 903-1-250.87Типовой проект 903-1-250.87Типовой проект 903-1-250.87Типовой проект 903-1-250.87Типовой проект 903-1-250.87Типовой проект 903-1-250.87Типовой проект 903-1-250.87Типовой проект 903-1-250.87Типовой проект 903-1-250.87Типовой проект 903-1-250.87Типовой проект 903-1-250.87Типовой проект 903-1-250.87Типовой проект 903-1-250.87Типовой проект 903-1-250.87Типовой проект 903-1-250.87Типовой проект 903-1-250.87Типовой проект 903-1-250.87Типовой проект 903-1-250.87Типовой проект 903-1-250.87Типовой проект 903-1-250.87Типовой проект 903-1-250.87Типовой проект 903-1-250.87Типовой проект 903-1-250.87Типовой проект 903-1-250.87Типовой проект 903-1-250.87Типовой проект 903-1-250.87Типовой проект 903-1-250.87Типовой проект 903-1-250.87Типовой проект 903-1-250.87Типовой проект 903-1-250.87Типовой проект 903-1-250.87Типовой проект 903-1-250.87Типовой проект 903-1-250.87Типовой проект 903-1-250.87Типовой проект 903-1-250.87Типовой проект 903-1-250.87Типовой проект 903-1-250.87Типовой проект 903-1-250.87Типовой проект 903-1-250.87Типовой проект 903-1-250.87

© 2013 Ёшкин Кот :-) Карта сайта