Информационная система
«Ёшкин Кот»

Скачать базу одним архивом
Скачать обновления
История создания базы
Карта сайта

Скачать Типовой проект 903-1-250.87 Альбом 7. Часть 1. Архитектурные решения. Конструкции железобетонные

Дата актуализации: 10.08.2017

Типовой проект 903-1-250.87

Альбом 7. Часть 1. Архитектурные решения. Конструкции железобетонные

Обозначение: Типовой проект 903-1-250.87
Обозначение англ: 903-1-250.87
Статус:не определен законодательством
Название рус.:Альбом 7. Часть 1. Архитектурные решения. Конструкции железобетонные
Дата добавления в базу:01.09.2013
Дата актуализации:05.05.2017
Дата введения:29.09.1987
Оглавление:Содержание альбома
Архитектурные решения
   Общие данные
   Спецификация заполнения проемов. Ведомости перемычек, ворот и дверей
   План на отм. 0.000
   План на отм. 3.600
   Планы на отм. 7.200; 13.200; 16.900; 20.400
   Фрагменты плана 1, 2, 3, 4, 5
   Разрезы 1-1, 2-2, 3-3
   План кровли. Разрез 4-4, 5-5
   Фасады 1 - 16; Е - А
   Фасады 16 - 1; А - Е
   Узлы 1 - 10
   Планы полов на отм. 0.000; 3.600. Экспликация полов
   Планы полов на отм. 7.200; 13.200; 16.900. Экспликация полов
   Планы отверстий в стенах и перегородках на отм. 0.000; 7.200
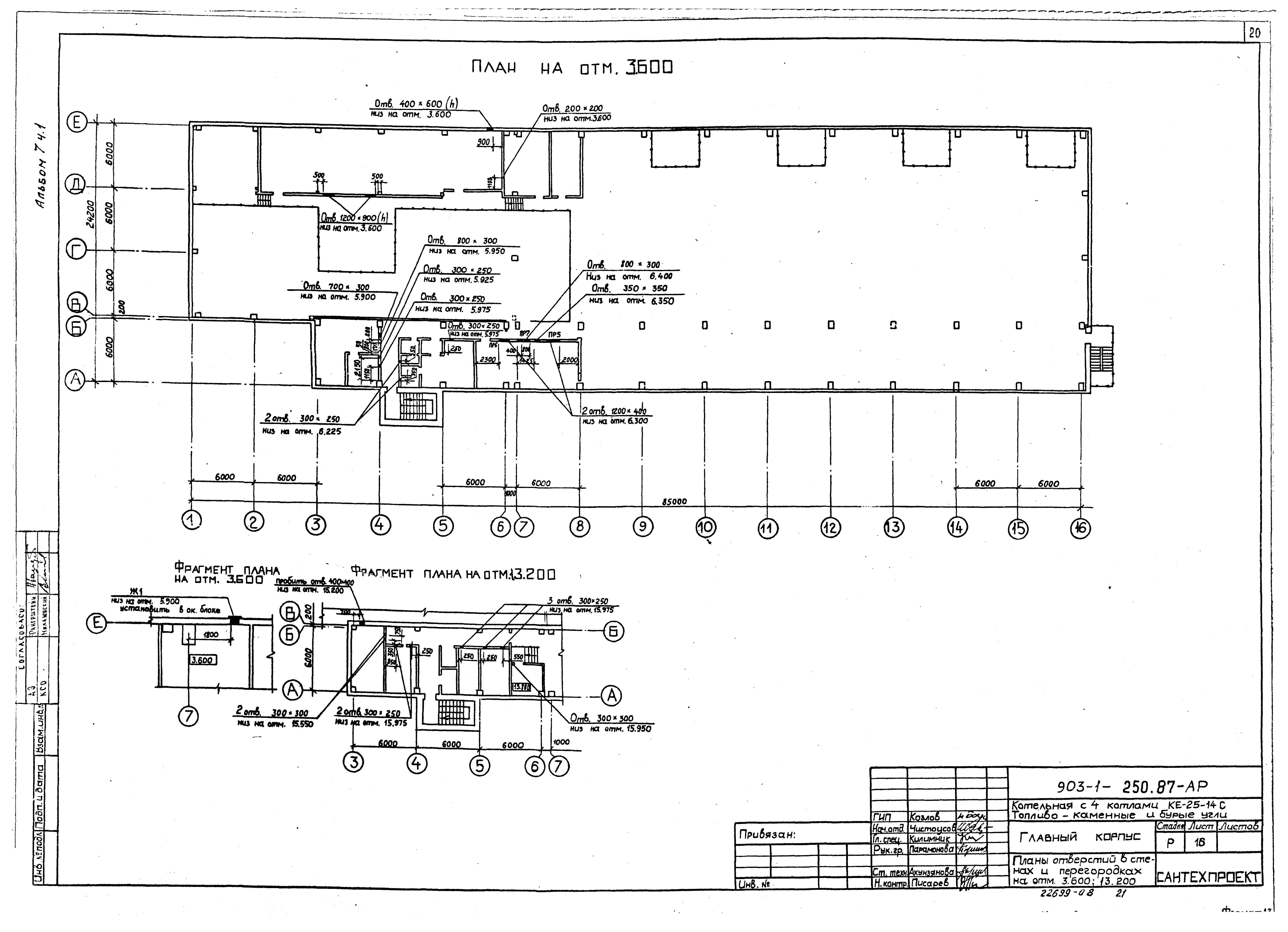
   Планы отверстий в стенах и перегородках на отм. 3.600; 13.200
   План помещения КИП. План подвесного потолка. Разрез 1-1
   Узлы 4 - 16
   Декоративные деревянные щиты Щ1, 2, 3, 4. Решетка ДР1
   Металлические рамы Р1 - 5
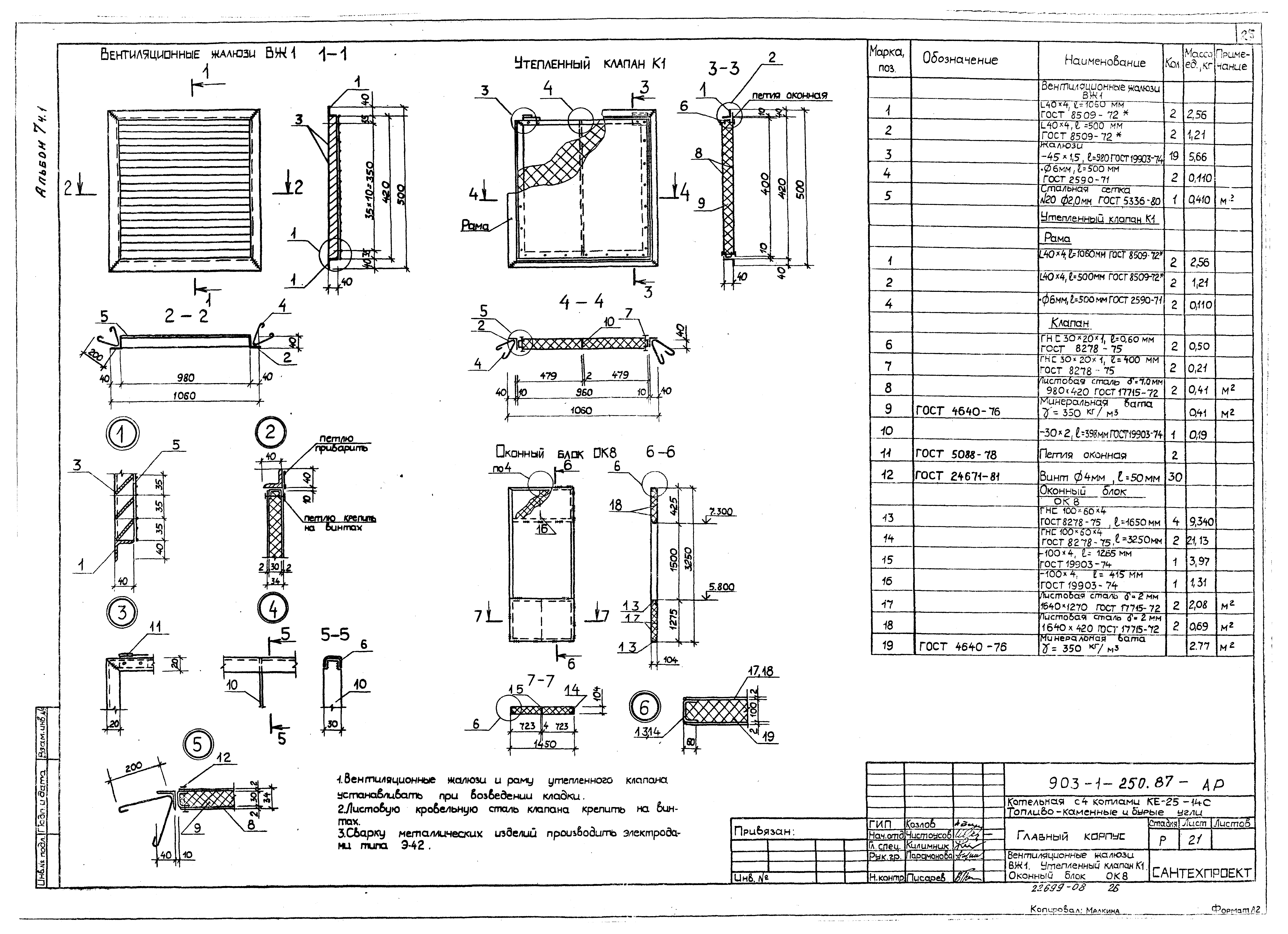
   Вентиляционные жалюзи ВЖ1. Утепленный клапан К1. Оконный блок ОК3
   Рециркуляционный шкаф РШ1.2
Железобетонные конструкции
   Общие данные
   Схемы загружения поперечных рам каркаса и фундаментов
   Таблица нагрузок на фундаменты. Схема загружения фундаментов
   Схема расположения фундаментов и фундаментных балок
   Спецификация к схеме расположения фундаментов и фундаментных балок
   Фундаменты 1, 2
   Узлы 1 - 5; 13; 14
   Узлы 6 - 12
   Узлы 15 - 20
   Узлы 21 - 25
   Фундаменты Фм1, Фм2
   Фундаменты Фм3, Фм4
   Фундаменты Фм5, Фм6
   Фундаменты Фм8, Фм9, Фм10
   Фундаменты Фм11, Фм12, Фм13
   Фундаменты Фм14, Фм15, Фм16
   Фундаменты Фм7, Фм17, Фм18
   Фундаменты Фм19, Фм20
   Фундаменты Фм21, Фм22
   Фундаменты Фм23, Фм24
   Фундаменты Фм25, Фм26
   Фундаменты Фм27, Фм28
   Схема расположения подземного хозяйства в осях А - Е и 1 - 9
   Схема расположения подземного хозяйства в осях А - Е и 9 - 16
   Подземное хозяйство. Сечения 1-1 - 7-7. Узел 1
   Схема расположения подземного хозяйства в осях Д - Е и 2 - 5 (КТП)
   Схема подземного хозяйства в осях Д - Е и 2 - 5. Сечения и узлы
   Схема подземного хозяйства в осях Д - Е и 2 - 5. Перекрытие каналаБТ3м1
   Схема подземного хозяйства в осях Д - Е и 2 - 5. Балки Бм1, Бм2, Бм3, Бм4
   Схема расположения канала БТ1. Перекрытие. Сечения 1-1 - 3-3
   Схема расположения канала БТм1
   Схема расположения канала БТм2
   Канал БТм2. Армирование
   Канал БТм2. Узлы 1, 3, 5. Спецификации. Выборка стали
   Схема расположения канала БТм3. Сечения
   Подземное хозяйство. Фундамент ФОм1 под котел. Схемы расположения
   Подземное хозяйство. Разрезы 1-1 - 3-3
   Подземное хозяйство. Опорные подушки ОПм1, ОПм2, ОПм3
   Подземное хозяйство. Колонны КМ1, 1а, КМ2, 2а
   Подземное хозяйство. Плита Пм1. Схема армирования
   Подземное хозяйство. Пм1. Армирование. Разрезы 1-1 - 5-5
   Подземное хозяйство. Балки Бм1, Бм1а. Схемы армирования. Схемы расположения
   Подземное хозяйство. Балки Бм2, Бм3, Бм4. Схемы армирования
   Подземное хозяйство. Спецификации. ФОм1. Ведомость расхода стали
   Фундаменты ФОм2, ФОм3, ФОм4, ФОм5
   Фундаменты ФОм5, ФОм7, ФОм8
   Фундаменты ФОм9 - ФОм11
   Схемы расположения приямка ПРм1 на отм. 0.000 - 2.500
   ПРм1. Схемы армирования
Разработан: Сантехпроект
Утверждён:29.09.1987 Госстрой СССР (Государственный комитет Совета Министров СССР по делам строительства) (USSR Gosstroy 78)
Расположен в:Техническая документация Строительство Справочные документы Типовые строительные конструкции, изделия и узлы Общероссийский строительный каталог Промышленные предприятия, здания и сооружения Здания и сооружения санитарно-технические Теплоснабжение Котельные установки Открытые системы теплоснабжения Топливо - каменные и бурые угли
Заменяет собой:
Типовой проект 903-1-250.87Типовой проект 903-1-250.87Типовой проект 903-1-250.87Типовой проект 903-1-250.87Типовой проект 903-1-250.87Типовой проект 903-1-250.87Типовой проект 903-1-250.87Типовой проект 903-1-250.87Типовой проект 903-1-250.87Типовой проект 903-1-250.87Типовой проект 903-1-250.87Типовой проект 903-1-250.87Типовой проект 903-1-250.87Типовой проект 903-1-250.87Типовой проект 903-1-250.87Типовой проект 903-1-250.87Типовой проект 903-1-250.87Типовой проект 903-1-250.87Типовой проект 903-1-250.87Типовой проект 903-1-250.87Типовой проект 903-1-250.87Типовой проект 903-1-250.87Типовой проект 903-1-250.87Типовой проект 903-1-250.87Типовой проект 903-1-250.87Типовой проект 903-1-250.87Типовой проект 903-1-250.87Типовой проект 903-1-250.87Типовой проект 903-1-250.87Типовой проект 903-1-250.87Типовой проект 903-1-250.87Типовой проект 903-1-250.87Типовой проект 903-1-250.87Типовой проект 903-1-250.87Типовой проект 903-1-250.87Типовой проект 903-1-250.87Типовой проект 903-1-250.87Типовой проект 903-1-250.87Типовой проект 903-1-250.87Типовой проект 903-1-250.87Типовой проект 903-1-250.87Типовой проект 903-1-250.87Типовой проект 903-1-250.87Типовой проект 903-1-250.87Типовой проект 903-1-250.87Типовой проект 903-1-250.87Типовой проект 903-1-250.87Типовой проект 903-1-250.87Типовой проект 903-1-250.87Типовой проект 903-1-250.87Типовой проект 903-1-250.87Типовой проект 903-1-250.87Типовой проект 903-1-250.87Типовой проект 903-1-250.87Типовой проект 903-1-250.87Типовой проект 903-1-250.87Типовой проект 903-1-250.87Типовой проект 903-1-250.87Типовой проект 903-1-250.87Типовой проект 903-1-250.87Типовой проект 903-1-250.87Типовой проект 903-1-250.87Типовой проект 903-1-250.87Типовой проект 903-1-250.87Типовой проект 903-1-250.87Типовой проект 903-1-250.87Типовой проект 903-1-250.87Типовой проект 903-1-250.87Типовой проект 903-1-250.87Типовой проект 903-1-250.87Типовой проект 903-1-250.87Типовой проект 903-1-250.87Типовой проект 903-1-250.87Типовой проект 903-1-250.87Типовой проект 903-1-250.87Типовой проект 903-1-250.87Типовой проект 903-1-250.87Типовой проект 903-1-250.87Типовой проект 903-1-250.87Типовой проект 903-1-250.87

© 2013 Ёшкин Кот :-) Карта сайта