Информационная система
«Ёшкин Кот»

Скачать базу одним архивом
Скачать обновления
История создания базы
Карта сайта

Скачать Типовой проект 903-1-250.87 Альбом 1. Тепломеханические решения. Золошлакоудаление

Дата актуализации: 10.08.2017

Типовой проект 903-1-250.87

Альбом 1. Тепломеханические решения. Золошлакоудаление

Обозначение: Типовой проект 903-1-250.87
Обозначение англ: 903-1-250.87
Статус:не определен законодательством
Название рус.:Альбом 1. Тепломеханические решения. Золошлакоудаление
Дата добавления в базу:01.09.2013
Дата актуализации:05.05.2017
Дата введения:29.09.1987
Оглавление:ТП 903-1-250.87 ТМ Тепломеханические решения (чертежи марки ТМ)
ТП 903-1-250.87 ТМ Общие данные (начало)
ТП 903-1-250.87 ТМ Общие данные (продолжение)
ТП 903-1-250.87 ТМ Общие данные (окончание)
ТП 903-1-250.87 ТМ Компоновка оборудования котельной. План на отм.0.000
ТП 903-1-250.87 ТМ Компоновка оборудования котельной. Планы на отм. +3.600 и +7.200. Разрезы 1-1,2-2
ТП 903-1-250.87 ТМ Компоновка оборудования котельной. Планы на отм. +13.200 между осями 3-8 и А-Б. Разрезы 3-3,4-4
ТП 903-1-250.87 ТМ Монтажный генплан
ТП 903-1-250.87 ТМ Общекотельные соединительные трубопроводы. Тепловая схема
ТП 903-1-250.87 ТМ Трубопроводы пара. Вид сверху между осями 5-9 и А-Д. Разрезы 4-4,5-5,6-6. Элемент плана на отм 0.000 в осях 7-9; А-Б
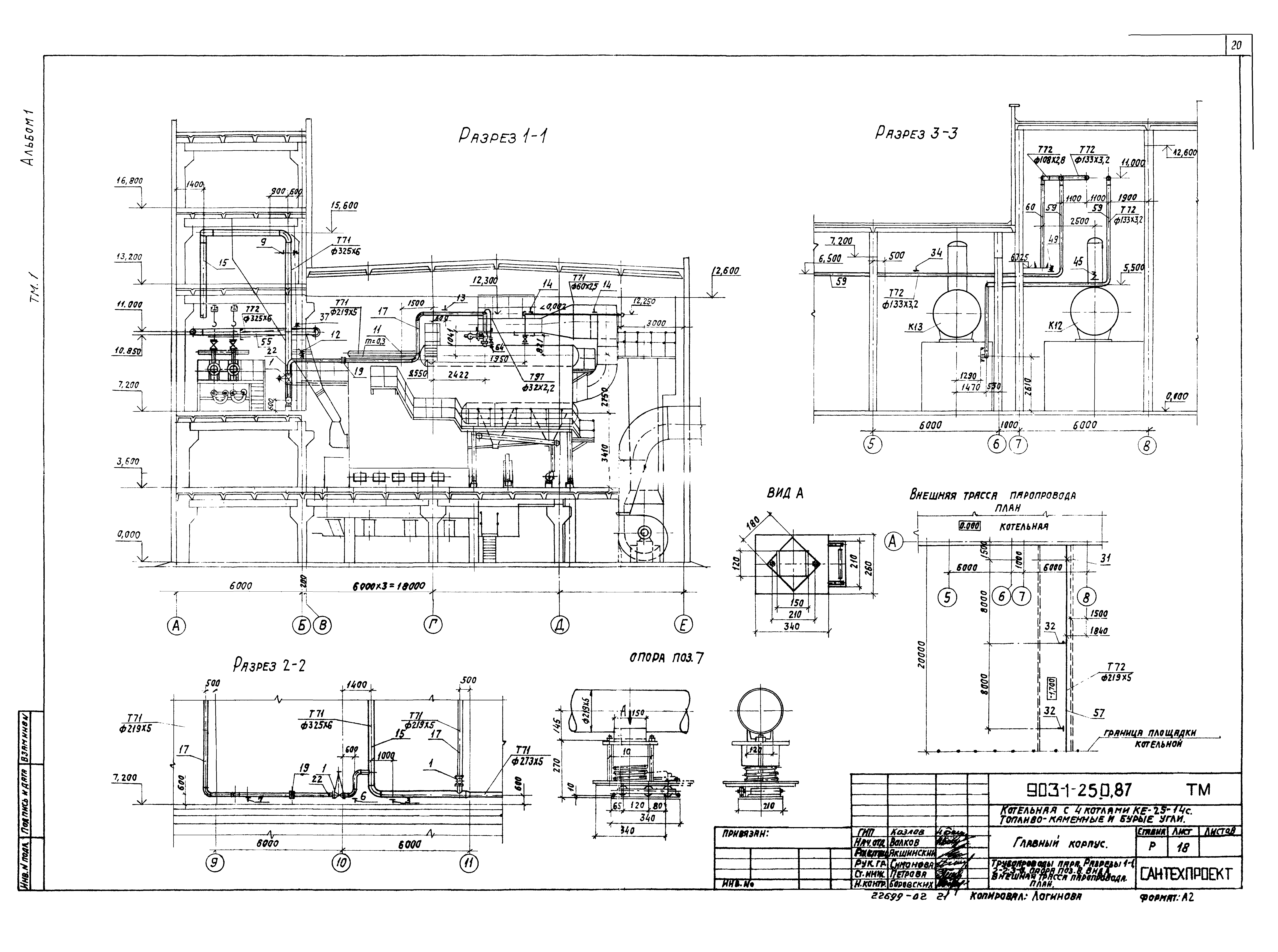
ТП 903-1-250.87 ТМ Трубопроводы пара. Разрезы 1-1;2-2;3-3. Опора поз.8. Вид Р. Внешняя трасса паропровода. План
ТП 903-1-250.87 ТМ Трубопроводы пара. Вид сверху между осями 9-16 и А-Е. Опора поз.3, опора поз.6. Вид А
ТП 903-1-250.87 ТМ Трубопроводы пара. Спецификация
ТП 903-1-250.87 ТМ Трубопроводы сетевой воды. План на отм. 0.000 между осями 6-9 и А-Б. Разрез 1-1,2-2
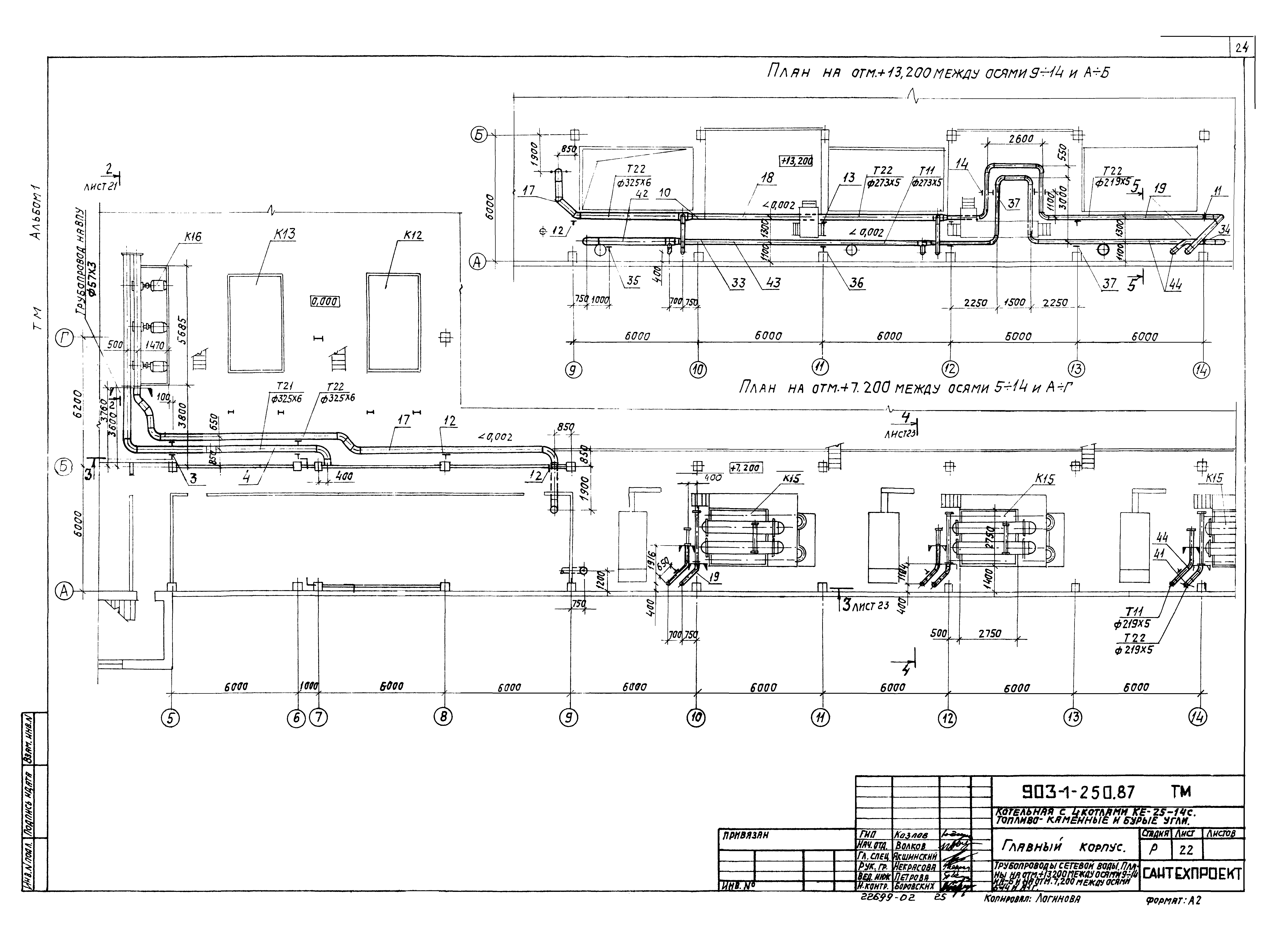
ТП 903-1-250.87 ТМ Трубопроводы сетевой воды. Планы на отм.+13.200 между осями 9-14 и А-Б и на отм. +7200 между осями 5-14 и А-Г
ТП 903-1-250.87 ТМ Трубопроводы сетевой воды. Разрезы 3-3,4-4,5-5
ТП 903-1-250.87 ТМ Трубопроводы сетевой воды. Спецификация
ТП 903-1-250.87 ТМ Трубопроводы горячего водоснабжения. План на отм. 0.000. Разрезы 1-1÷5-5. План по 6-6
ТП 903-1-250.87 ТМ Трубопроводы горячего водоснабжения. Спецификация
ТП 903-1-250.87 ТМ Трубопроводы установки аккумуляторных баков. План. Разрезы 1-1÷10-10
ТП 903-1-250.87 ТМ Трубопроводы установки аккумуляторных баков. Спецификация
ТП 903-1-250.87 ТМ Трубопроводы котельной. Напорные питательные. План на отм. 0.000 и =3.600 между осями 7-15 и Б-А
ТП 903-1-250.87 ТМ Трубопроводы котельной. Конденсатопроводы. Трубопроводы из ВПУ. План на отм.+3.600 между осями 4-5. Разрезы 2-2;3-3
ТП 903-1-250.87 ТМ Трубопроводы котельной. Конденсатопроводы. Трубопроводы из ВПУ. План на отм.+7.200 между осями 5-15 и А-Д. Разрез 1-1
ТП 903-1-250.87 ТМ Трубопроводы питательные, конденсатопроводы и трубопроводы из ВПУ. Спецификация
ТП 903-1-250.87 ТМ Трубопроводы Сетевой воды к калориферам. План на отм. 0.000 между осями 6-15 и А-Г. Разрезы 1-1;2-2
ТП 903-1-250.87 ТМ Трубопроводы продувочные, сливные, дренажные. Схема
ТП 903-1-250.87 ТМ Трубопроводы продувочные, сливные, дренажные. План на отм. 0.000 в осях 5-16 и Б-Е
ТП 903-1-250.87 ТМ Трубопроводы продувочные, сливные, дренажные. Элемент плана. Узлы 1,2. Разрезы 1-1÷8-8
ТП 903-1-250.87 ТМ Трубопроводы продувочные, сливные, дренажные. Спецификация
ТП 903-1-250.87 ТМ Котлоагрегат. Компоновка оборудования. План на отм. 0.000;+3.600
ТП 903-1-250.87 ТМ Котлоагрегат. Компоновка оборудования. Вид сверху. Разрез 2-2
ТП 903-1-250.87 ТМ Котлоагрегат. Компоновка оборудования. Вид сверху. Разрез 1-1;3-3
ТП 903-1-250.87 ТМ Котлоагрегат. Обмуровка фронтовой стенки котла, предтопка и шлакового бункера. Разрезы 1-1;2-2. Узлы 1;2
ТП 903-1-250.87 ТМ Котлоагрегат. Тепловая изоляция соединительных трубопроводов, котлоагрегатов, барабанов котла. Вид А. Разрезы 2-2,3-3,4-4,5-5. План по 1-1
ТП 903-1-250.87 ТМ Котлоагрегат. Ведомость на тепловую изоляцию соединительных трубопроводов. Разрезы 6-6÷12-12
ТП 903-1-250.87 ТМ Котлоагрегат. Схема трубопроводов
ТП 903-1-250.87 ТМ Котлоагрегат. Трубопроводы питательные, паровые, атмосферные. Разрезы 1-1÷4-4. Вид сверху. План по 5-5. Виды А,Б. Узел 1
ТП 903-1-250.87 ТМ Котлоагрегат. Трубопроводы дренажные, сливные, воздушники. План на отм. 0.000. Вид сверху. Разрезы 1-1÷4-4,а-а. Виды А,Б,В
ТП 903-1-250.87 ТМ Котлоагрегат. Трубопровод возврата золы из-под батарейного циклона в котел. План на отм. +3.600. Разрезы 1-1,2-2,3-3
ТП 903-1-250.87 ТМ Котлоагрегат. Трубопровод. Спецификация (начало)
ТП 903-1-250.87 ТМ Котлоагрегат. Трубопровод. Спецификация (окончание)
ТП 903-1-250.87 ТМН Тепломеханические решения (чертежи марки ТМН)
ТП 903-1-250.87 ТМН Изоляция аккумуляторного бака
ТП 903-1-250.87 ТМН Изоляция дымососа
ТП 903-1-250.87 ТМН Изоляция вентилятора
ТП 903-1-250.87 ТМН Изоляция коробов и газоходов прямоугольного сечения
ТП 903-1-250.87 ЗШ Шлакозолоудаление (чертежи марки 3Ш)
ТП 903-1-250.87 ЗШ Общие данные
ТП 903-1-250.87 ЗШ Установка подъемника для шлакоудаления. План на отм. 0.000
ТП 903-1-250.87 ЗШ Установка подъемника для шлакоудаления. Разрез 1-1
ТП 903-1-250.87 ЗШ Установка подъемника для шлакоудаления. Разрезы 10-10,2-2,3-3,11-11
ТП 903-1-250.87 ЗШ Установка подъемника для шлакоудаления. План на отм. +7.200. Разрезы 4-4,5-5,6-6
ТП 903-1-250.87 ЗШ Установка подъемника для шлакоудаления. Разрезы 7-7,8-8,9-9
ТП 903-1-250.87 ЗШ Установка подъемника для шлакоудаления. Принципиальная схема монтажа
Разработан: ГПИ Сантехпроект Госстроя СССР
Утверждён:29.09.1987 Госстрой СССР (Государственный комитет Совета Министров СССР по делам строительства) (USSR Gosstroy 78)
Расположен в:Техническая документация Строительство Справочные документы Типовые строительные конструкции, изделия и узлы Общероссийский строительный каталог Промышленные предприятия, здания и сооружения Здания и сооружения санитарно-технические Теплоснабжение Котельные установки Открытые системы теплоснабжения Топливо - каменные и бурые угли
Заменяет собой:
Типовой проект 903-1-250.87Типовой проект 903-1-250.87Типовой проект 903-1-250.87Типовой проект 903-1-250.87Типовой проект 903-1-250.87Типовой проект 903-1-250.87Типовой проект 903-1-250.87Типовой проект 903-1-250.87Типовой проект 903-1-250.87Типовой проект 903-1-250.87Типовой проект 903-1-250.87Типовой проект 903-1-250.87Типовой проект 903-1-250.87Типовой проект 903-1-250.87Типовой проект 903-1-250.87Типовой проект 903-1-250.87Типовой проект 903-1-250.87Типовой проект 903-1-250.87Типовой проект 903-1-250.87Типовой проект 903-1-250.87Типовой проект 903-1-250.87Типовой проект 903-1-250.87Типовой проект 903-1-250.87Типовой проект 903-1-250.87Типовой проект 903-1-250.87Типовой проект 903-1-250.87Типовой проект 903-1-250.87Типовой проект 903-1-250.87Типовой проект 903-1-250.87Типовой проект 903-1-250.87Типовой проект 903-1-250.87Типовой проект 903-1-250.87Типовой проект 903-1-250.87Типовой проект 903-1-250.87Типовой проект 903-1-250.87Типовой проект 903-1-250.87Типовой проект 903-1-250.87Типовой проект 903-1-250.87Типовой проект 903-1-250.87Типовой проект 903-1-250.87Типовой проект 903-1-250.87Типовой проект 903-1-250.87Типовой проект 903-1-250.87Типовой проект 903-1-250.87Типовой проект 903-1-250.87Типовой проект 903-1-250.87Типовой проект 903-1-250.87Типовой проект 903-1-250.87Типовой проект 903-1-250.87Типовой проект 903-1-250.87Типовой проект 903-1-250.87Типовой проект 903-1-250.87Типовой проект 903-1-250.87Типовой проект 903-1-250.87Типовой проект 903-1-250.87Типовой проект 903-1-250.87Типовой проект 903-1-250.87Типовой проект 903-1-250.87Типовой проект 903-1-250.87Типовой проект 903-1-250.87Типовой проект 903-1-250.87

© 2013 Ёшкин Кот :-) Карта сайта