Скачать Типовые материалы для проектирования 407-03-473.87 Альбом IV. Открытое распределительное устройство 220 кВ. Электротехническая частьДата актуализации: 10.08.2017 Типовые материалы для проектирования 407-03-473.87
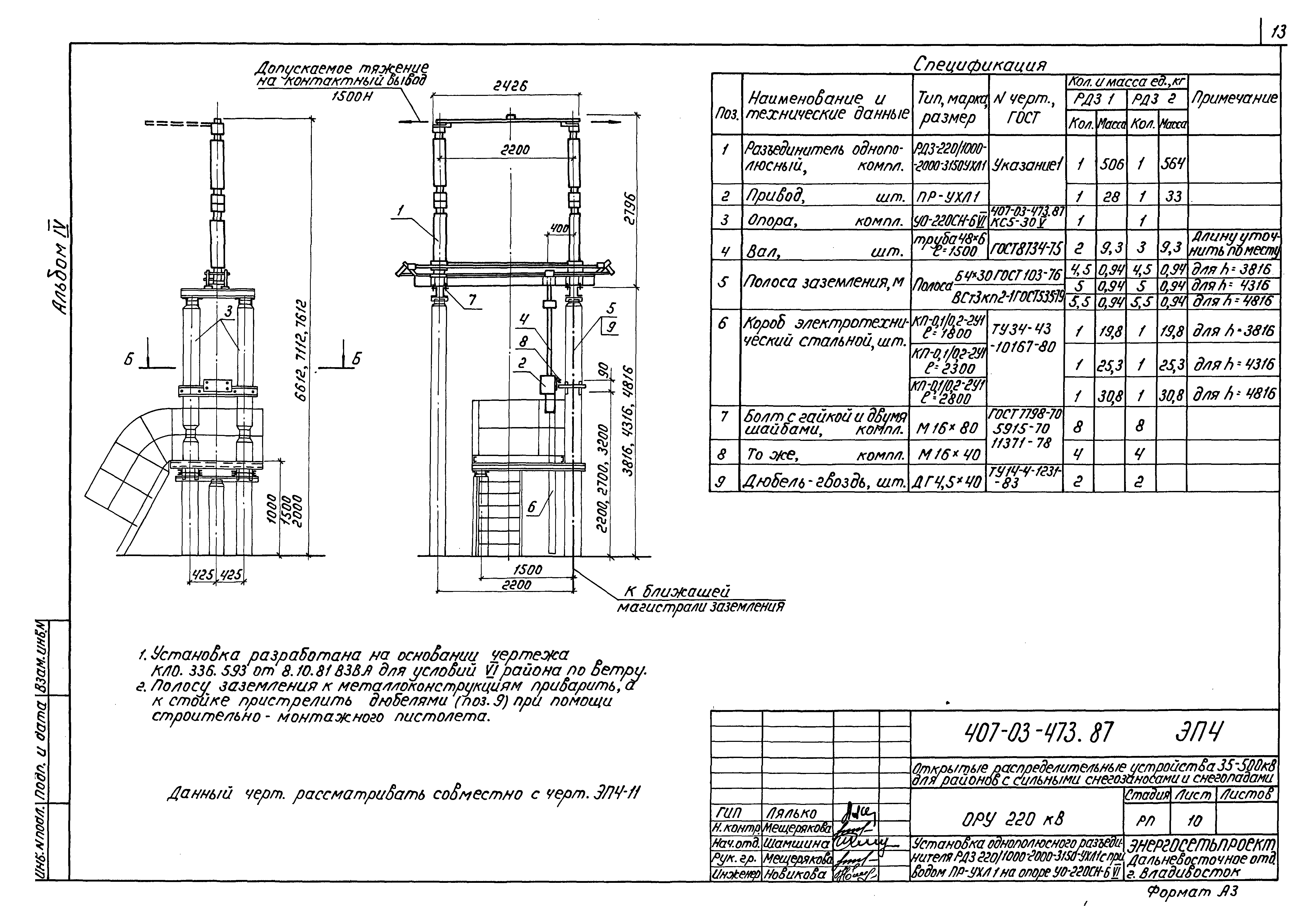
Альбом IV. Открытое распределительное устройство 220 кВ. Электротехническая частьОбозначение: | Типовые материалы для проектирования 407-03-473.87 | Обозначение англ: | 407-03-473.87 | Статус: | cправочные материалы, мп, тпр | Название рус.: | Альбом IV. Открытое распределительное устройство 220 кВ. Электротехническая часть | Дата добавления в базу: | 01.09.2013 | Дата актуализации: | 05.05.2017 | Дата введения: | 23.12.1987 | Оглавление: | ТП 407-03-473.87 Содержание альбома ТП 407-03-473.87 ПЗ Пояснительная записка ТП 407-03-473.87 ЭП4-1 Установка элегазового выключателя ВЭК-220Б-40/2000У1 на опоре УО-220СН-1. Общий вид, узлы ТП 407-03-473.87 ЭП4-2 Установка элегазового выключателя ВЭК-220Б-40/2000У1 на опоре УО-220СН-1. Вид Б ТП 407-03-473.87 ЭП4-3 Установка выключателей ВМТ-220Б-25/1250УХЛ1,ВМТ-220Б-40/2000УХЛ1 с приводом ППрК-1800УХЛ1 на опоре УО-220СН-2. Общий вид, узлы ТП 407-03-473.87 ЭП4-4 Установка выключателей ВМТ-220Б-25/1250УХЛ1,ВМТ-220Б-40/2000УХЛ1 с приводом ППрК-1800УХЛ1 на опоре УО-220СН-2. План ТП 407-03-473.87 ЭП4-5 Установка отделителя ОД-220/1000У1 с приводом ПРО-1У1 на опорах УО-220СН-3III,УО-220СН-3VI ТП 407-03-473.87 ЭП4-6 Установка отделителя ОД-220/1000У1 с приводом ПРО-1У1 на опорах УО-220СН-3III,УО-220СН-3VI. Узлы, спецификация ТП 407-03-473.87 ЭП4-7 Установка короткозамыкателя КЗ-220У1 с приводом ПРК-1У1 с тремя трансформаторами тока ТШЛ-0.5 на опоре УО-220СН-4 ТП 407-03-473.87 ЭП4-8 Установка короткозамыкателя КЗ-220У1 с приводом ПРК-1У1 с шестью трансформаторами тока ТШЛ-0.5 на опоре УО-220СН-5 ТП 407-03-473.87 ЭП4-9 Установка однополюсного разъединителя РДЗ-220/1000-2000-3150УХЛ1 с приводом ПР-УХЛ1 на опоре УО-220СН-6III ТП 407-03-473.87 ЭП4-10 Установка однополюсного разъединителя РДЗ-220/1000-2000-3150УХЛ1 с приводом ПР-УХЛ1 на опоре УО-220СН-6VI ТП 407-03-473.87 ЭП4-11 Установка однополюсных разъединителей РДЗ-220/1000-2000-3150УХЛ1. Узлы ТП 407-03-473.87 ЭП4-12 Установка трехполюсного разъединителя РДЗ-220/1000-2000-3150УХЛ1 с приводом ПР-УХЛ1 на опоре УО-220СН-7III. Общий вид ТП 407-03-473.87 ЭП4-13 Установка трехполюсного разъединителя РДЗ-220/1000-2000-3150УХЛ1 с приводом ПР-УХЛ1 на опоре УО-220СН-7III. Разрез и узлы ТП 407-03-473.87 ЭП4-14 Установка трехполюсного разъединителя РДЗ-220/1000-2000-3150УХЛ1 с приводом ПР-УХЛ1 на опоре УО-220СН-7VI. Общий вид, спецификация ТП 407-03-473.87 ЭП4-15 Установка трехполюсного разъединителя РДЗ-220/1000-2000-3150УХЛ1 с приводом ПР-УХЛ1 на опоре УО-220СН-7VI. Разрез, узлы ТП 407-03-473.87 ЭП4-16 Установка однополюсного разъединителя РНДЗ-220Б/2000У1 с приводом ПД-5У1 на опоре УО-220СН-8 ТП 407-03-473.87 ЭП4-17 Установка трехполюсного разъединителя РНДЗ-220Б/2000У1 с приводом ПД-5У1 на опоре УО-220СН-9 ТП 407-03-473.87 ЭП4-18 Установка разъединителей РНДЗ-220Б/2000У1. Узлы ТП 407-03-473.87 ЭП4-19 Установка ящиков зажимов ЯЗВ-120,ЯЗВК,2ХЯОВ-2 и Б блоков управления приводами ПД-5УХЛ1 разъединителей на мостике обслуживания выключателей ТП 407-03-473.87 ЭП4-20 Установка 12 блоков управления приводами ПД-5УХЛ1 разъединителей на мостике обслуживания | Разработан: | Энергосетьпроект
| Утверждён: | 23.12.1987 Минэнерго СССР (USSR Minenergo 50)
| Расположен в: |
|
                      
|