Информационная система
«Ёшкин Кот»

Скачать базу одним архивом
Скачать обновления
История создания базы
Карта сайта

Скачать Типовой проект 810-1-35.90 Альбом 1. Часть 2. Конструкции металлические. Теплица

Дата актуализации: 10.08.2017

Типовой проект 810-1-35.90

Альбом 1. Часть 2. Конструкции металлические. Теплица

Обозначение: Типовой проект 810-1-35.90
Обозначение англ: 810-1-35.90
Статус:не определен законодательством
Название рус.:Альбом 1. Часть 2. Конструкции металлические. Теплица
Дата добавления в базу:01.09.2013
Дата актуализации:05.05.2017
Дата введения:25.09.1990
Оглавление:ТП810-1-35.90 КМ Конструкции металлические КМ
ТП810-1-35.90 КМ Общие данные (начало)
ТП810-1-35.90 КМ Общие данные (продолжение)
ТП810-1-35.90 КМ Общие данные (окончание)
ТП810-1-35.90 КМ Схема расположения стоек, ферм, ригелей, прогонов и связей. Фрагмент 1...3
ТП810-1-35.90 КМ Схема расположения шпросов и форточек. Схема расположения стоек и прогонов по оси А в осях 22...25. Схема расположения элементов ограждения по оси А в осях 22...25
ТП810-1-35.90 КМ Схемы расположения элементов по осям 1,47,23,24
ТП810-1-35.90 КМ Схемы расположения элементов коридора-вставки
ТП810-1-35.90 КМ Разрез Б-Б схема расположения элементов фермы Ф
ТП810-1-35.90 КМ Узел 1
ТП810-1-35.90 КМ Узел 2
ТП810-1-35.90 КМ Узлы 3...5
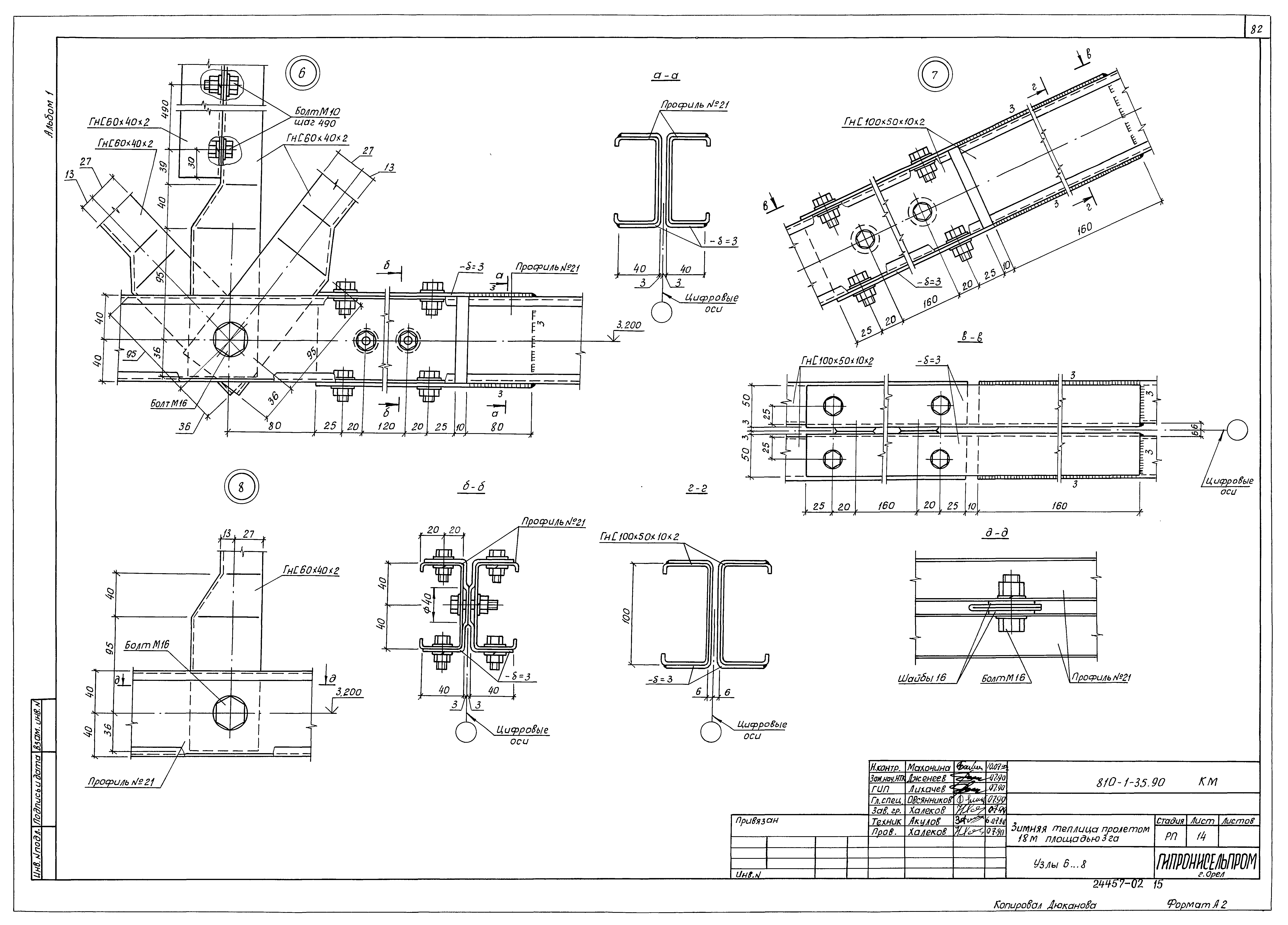
ТП810-1-35.90 КМ Узлы 6...8
ТП810-1-35.90 КМ Узлы 9...11
ТП810-1-35.90 КМ Узлы 12...15
ТП810-1-35.90 КМ Узел 16
ТП810-1-35.90 КМ Узлы 17...19
ТП810-1-35.90 КМ Узлы 20...21
ТП810-1-35.90 КМ Узлы 22...25
ТП810-1-35.90 КМ Узлы 26...27
ТП810-1-35.90 КМ Узлы 28...31
ТП810-1-35.90 КМ Узлы 32,33
ТП810-1-35.90 КМ Узлы 34...36
ТП810-1-35.90 КМ Узел 37
ТП810-1-35.90 КМ Узлы 38...41
ТП810-1-35.90 КМ Узлы 42...44
ТП810-1-35.90 КМ Узел 45
ТП810-1-35.90 КМ Узлы 46...51
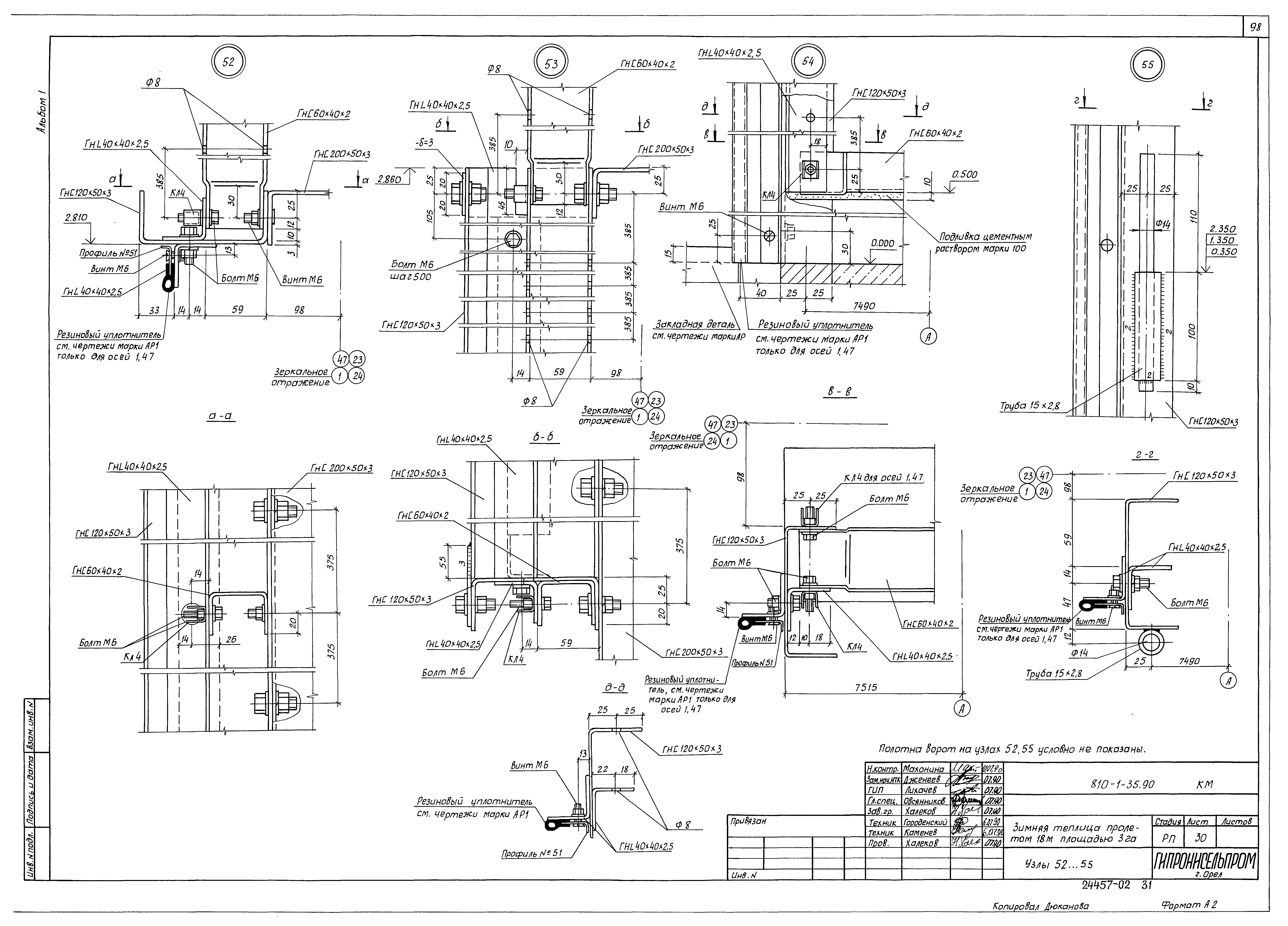
ТП810-1-35.90 КМ Узлы 52...55
ТП810-1-35.90 КМ Узлы 56...60
ТП810-1-35.90 КМ Узлы 61,62
ТП810-1-35.90 КМ Узлы 63...65
ТП810-1-35.90 КМ Узел 66
ТП810-1-35.90 КМ Форточки ВФ1,ВФ1-01,ВФ2,ВФ2-01,ВФ3,ВФ4,ВФ4-01. Узлы 67...72
ТП810-1-35.90 КМ Полотна ворот В1л,В1п. Узлы 73...77
ТП810-1-35.90 КМ Узлы 78...80
ТП810-1-35.90 КМ Схемы расположения отверстий для крепления технологического оборудования. Узлы 81...87
ТП810-1-35.90 КМ Схемы расположения отверстий для крепления механизмов коньковой и боковой вентиляции. Узел 88
ТП810-1-35.90 КМ Соединительные элементы МС1,МС2
ТП810-1-35.90 КМ Соединительные элементы МС3,МС5. Деталь разбивки отверстий в шпросе Ш2
ТП810-1-35.90 КМ Схема расположения отверстий для крепления резинового уплотнителя в проеме ворот. Кляммеры КЛ2,КЛ2-01,КЛ2-02,КЛ3,КЛ4
Разработан: ЦНИИСК им. В.А. Кучеренко
Институт Гипронисельпром Минсельхозпрода СССР
Утверждён:21.09.1990 Главное научно-проектное управление по строительству Госкомиссии Совмина СССР по продовольствию и закупкам (11)
Расположен в:Техническая документация Строительство Справочные документы Типовые строительные конструкции, изделия и узлы Общероссийский строительный каталог Сельскохозяйственные предприятия, здания и сооружения Тепличные комбинаты, теплицы и парники Тепличные комбинаты и теплицы
Типовой проект 810-1-35.90Типовой проект 810-1-35.90Типовой проект 810-1-35.90Типовой проект 810-1-35.90Типовой проект 810-1-35.90Типовой проект 810-1-35.90Типовой проект 810-1-35.90Типовой проект 810-1-35.90Типовой проект 810-1-35.90Типовой проект 810-1-35.90Типовой проект 810-1-35.90Типовой проект 810-1-35.90Типовой проект 810-1-35.90Типовой проект 810-1-35.90Типовой проект 810-1-35.90Типовой проект 810-1-35.90Типовой проект 810-1-35.90Типовой проект 810-1-35.90Типовой проект 810-1-35.90Типовой проект 810-1-35.90Типовой проект 810-1-35.90Типовой проект 810-1-35.90Типовой проект 810-1-35.90Типовой проект 810-1-35.90Типовой проект 810-1-35.90Типовой проект 810-1-35.90Типовой проект 810-1-35.90Типовой проект 810-1-35.90Типовой проект 810-1-35.90Типовой проект 810-1-35.90Типовой проект 810-1-35.90Типовой проект 810-1-35.90Типовой проект 810-1-35.90Типовой проект 810-1-35.90Типовой проект 810-1-35.90Типовой проект 810-1-35.90Типовой проект 810-1-35.90Типовой проект 810-1-35.90Типовой проект 810-1-35.90Типовой проект 810-1-35.90Типовой проект 810-1-35.90Типовой проект 810-1-35.90Типовой проект 810-1-35.90

© 2013 Ёшкин Кот :-) Карта сайта