Информационная система
«Ёшкин Кот»

Скачать базу одним архивом
Скачать обновления
История создания базы
Карта сайта

Скачать Типовой проект 810-1-30.88 Альбом 9. Эскизные чертежи общих видов нестандартизированного оборудования

Дата актуализации: 10.08.2017

Типовой проект 810-1-30.88

Альбом 9. Эскизные чертежи общих видов нестандартизированного оборудования

Обозначение: Типовой проект 810-1-30.88
Обозначение англ: 810-1-30.88
Статус:не определен законодательством
Название рус.:Альбом 9. Эскизные чертежи общих видов нестандартизированного оборудования
Дата добавления в базу:01.09.2013
Дата актуализации:05.05.2017
Дата введения:07.12.1988
Оглавление:ТП 810-1-30.88 Содержание альбома
ТП 810-1-30.88 Механизм открывания и закрывания форточек
ТП 810-1-30.88 Ф192.00.00.00 ПЗ Пояснительная записка.
ТП 810-1-30.88 Ф192.00.00.00КЗ Механизм открывания и закрывания форточек теплицы. Схема кинематическая принципиальная.
ТП 810-1-30.88 Ф192.00.00.00 Механизм открывания и закрывания форточек, теплицы. Спецификация.
ТП 810-1-30.88 Ф194.00.00.00 Механизм открывания и закрывания форточек коридора L=75м. Спецификация.
ТП 810-1-30.88 Ф195.00.00.00 Механизм открывания и закрывания форточек коридора L=81м. Спецификация.
ТП 810-1-30.88 Ф192.00.00.00ВО Механизм открывания и закрывания форточек теплицы. Чертеж общего вида.
ТП 810-1-30.88 Ф194.00.00.00КЗ Механизм открывания и закрывания форточек коридора L=75м. Схема кинематическая.
ТП 810-1-30.88 Ф194.00.00.00ВО Механизм открывания и закрывания форточек коридора L=75м. Чертеж общего вида.
ТП 810-1-30.88 Ф195.00.00.00ВО Механизм открывания и закрывания форточек коридора L=81м. Чертеж общего вида.
ТП 810-1-30.88 Ф193.00.00.00ПЗ Механизм зашторивания теплицы. Пояснительная записка.
ТП 810-1-30.88 Ф193.00.00.00КЗ Механизм зашторивания теплицы. Схема кинематическая принципиальная.
ТП 810-1-30.88 Ф193.00.00.00 Механизм зашторивания теплицы. Спецификация.
ТП 810-1-30.88 Ф193.00.00.00ВО Механизм зашторивания теплицы. Чертеж общего вида.
ТП 810-1-30.88 Ф196.00.00.00ПЗ Механизм подъема регистров надпочвенного обогрева. Пояснительная записка.
ТП 810-1-30.88 Ф196.00.00.00КЗ Механизм подъема регистров надпочвенного обогрева. Схема кинематическая принципиальная.
ТП 810-1-30.88 Ф196.00.00.00 Механизм подъема регистров надпочвенного обогрева. Спецификация.
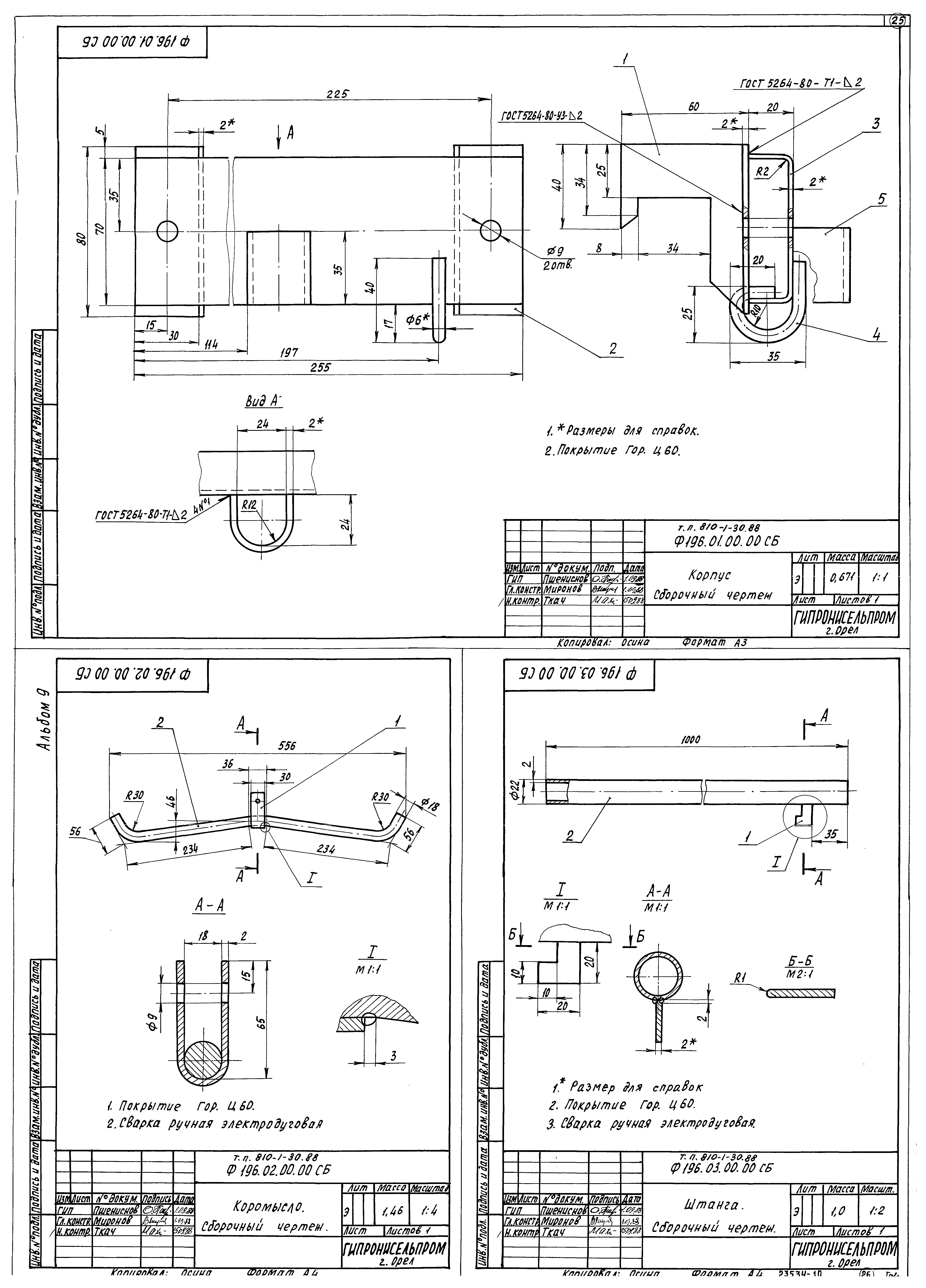
ТП 810-1-30.88 Ф196.00.00.00 Корпус. Спецификация.
ТП 810-1-30.88 Ф196.02.00.00 Коромысло. Спецификация.
ТП 810-1-30.88 Ф196.03.00.00 Штанга. Спецификация.
ТП 810-1-30.88 Ф196.00.00.00 ВО Механизм подъема регистров надпочвенного обогрева. Чертеж общего вида.
ТП 810-1-30.88 Ф196.01.00.00 СБ Корпус. Сборочный чертеж.
ТП 810-1-30.88 Ф196.02.00.00 СБ Коромысло. Сборочный чертеж.
ТП 810-1-30.88 Ф196.03.00.00 СБ Штанга. Сборочный чертеж.
Разработан: Гипронисельпром Госагропрома СССР
Утверждён:06.12.1988 Госагропром СССР (USSR Gosagroprom 805-42/153)
Расположен в:Техническая документация Строительство Справочные документы Типовые строительные конструкции, изделия и узлы Общероссийский строительный каталог Сельскохозяйственные предприятия, здания и сооружения Тепличные комбинаты, теплицы и парники Тепличные комбинаты и теплицы
Типовой проект 810-1-30.88Типовой проект 810-1-30.88Типовой проект 810-1-30.88Типовой проект 810-1-30.88Типовой проект 810-1-30.88Типовой проект 810-1-30.88Типовой проект 810-1-30.88Типовой проект 810-1-30.88Типовой проект 810-1-30.88Типовой проект 810-1-30.88Типовой проект 810-1-30.88Типовой проект 810-1-30.88Типовой проект 810-1-30.88Типовой проект 810-1-30.88Типовой проект 810-1-30.88Типовой проект 810-1-30.88Типовой проект 810-1-30.88Типовой проект 810-1-30.88Типовой проект 810-1-30.88Типовой проект 810-1-30.88Типовой проект 810-1-30.88Типовой проект 810-1-30.88Типовой проект 810-1-30.88Типовой проект 810-1-30.88Типовой проект 810-1-30.88Типовой проект 810-1-30.88

© 2013 Ёшкин Кот :-) Карта сайта