Информационная система
«Ёшкин Кот»

Скачать базу одним архивом
Скачать обновления
История создания базы
Карта сайта

Скачать Типовой проект 810-1-30.88 Альбом 7. Часть 2. Автоматизация отопления и вентиляции

Дата актуализации: 10.08.2017

Типовой проект 810-1-30.88

Альбом 7. Часть 2. Автоматизация отопления и вентиляции

Обозначение: Типовой проект 810-1-30.88
Обозначение англ: 810-1-30.88
Статус:не определен законодательством
Название рус.:Альбом 7. Часть 2. Автоматизация отопления и вентиляции
Дата добавления в базу:01.09.2013
Дата актуализации:05.05.2017
Дата введения:07.12.1988
Оглавление:ТП 810-1-30.88 АОВ Автоматизация отопления и вентиляция АОВ
ТП 810-1-30.88 АОВ Общие данные (начало)
ТП 810-1-30.88 АОВ Общие данные (продолжение)
ТП 810-1-30.88 АОВ Общие данные (окончание)
ТП 810-1-30.88 АОВ Регулирование температуры воздуха в теплице 1. Схема электрическая функциональная
ТП 810-1-30.88 АОВ Регулирование температуры воздуха в теплице 3. Схема электрическая функциональная
ТП 810-1-30.88 АОВ Регулирование температуры воздуха в соединительном коридоре. Схема электрическая функциональная
ТП 810-1-30.88 АОВ Управление вентилями газогенераторов СОI. Схема электрическая функциональная
ТП 810-1-30.88 АОВ Надпочвенный и подпочвенный обогрев. Управление и контроль. Схема электрическая функциональная
ТП 810-1-30.88 АОВ Управление и контроль надпочвенного обогрева, системы испарительного охлаждения и системы полива. Схема электрическая функциональная
ТП 810-1-30.88 АОВ Управление исполнительными механизмами клапанов кровельного обогрева. Схема электрическая функциональная
ТП 810-1-30.88 АОВ Тепловой пункт. Контроль теплотехнических параметров. Схема электрическая функциональная
ТП 810-1-30.88 АОВ Управление и контроль регулирующих узлов кровельного обогрева и СИОД. Схема электрическая принципиальная
ТП 810-1-30.88 АОВ Управление электроприводами зашторивания теплиц 1,2,4,5,6. Схема электрическая принципиальная
ТП 810-1-30.88 АОВ Регулирования температуры воздуха в теплицах 1,2. Схема соединений внешних проводок
ТП 810-1-30.88 АОВ Регулирования температуры воздуха в теплице 3. Схема соединений внешних проводок
ТП 810-1-30.88 АОВ Регулирования температуры воздуха в теплицах 4,5. Схема соединений внешних проводок
ТП 810-1-30.88 АОВ Регулирования температуры воздуха в теплице 6 и соединительном коридоре. Схема соединений внешних проводок
ТП 810-1-30.88 АОВ Управление фрамугами. Теплица 1. Схема соединений внешних проводок
ТП 810-1-30.88 АОВ Управление фрамугами. Теплица 2. Схема соединений внешних проводок
ТП 810-1-30.88 АОВ Управление фрамугами. Теплица 3. Схема соединений внешних проводок
ТП 810-1-30.88 АОВ Управление фрамугами. Теплица 4. Схема соединений внешних проводок
ТП 810-1-30.88 АОВ Управление фрамугами. Теплица 5. Схема соединений внешних проводок
ТП 810-1-30.88 АОВ Управление фрамугами. Теплица 6. Схема соединений внешних проводок
ТП 810-1-30.88 АОВ Управление фрамугами. Соединительный коридор. Схема соединений внешних проводок
ТП 810-1-30.88 АОВ Положение фрамуг теплиц 1...3. Схема соединений внешних проводок
ТП 810-1-30.88 АОВ Положение фрамуг теплиц 4...6. Схема соединений внешних проводок
ТП 810-1-30.88 АОВ Управление электроприводами зашторивания теплицы 1. Схема соединений внешних проводок
ТП 810-1-30.88 АОВ Управление электроприводами зашторивания теплицы 2. Схема соединений внешних проводок
ТП 810-1-30.88 АОВ Управление электроприводами зашторивания теплицы 4. Схема соединений внешних проводок
ТП 810-1-30.88 АОВ Управление электроприводами зашторивания теплицы 5. Схема соединений внешних проводок
ТП 810-1-30.88 АОВ Управление электроприводами зашторивания теплицы 6. Схема соединений внешних проводок
ТП 810-1-30.88 АОВ Управление вентилями газогенераторов СО2 в теплицах 1,2. Схема соединений внешних проводок
ТП 810-1-30.88 АОВ Управление вентилями газогенераторов СО2 в теплицах 3,4 Схема соединений внешних проводок
ТП 810-1-30.88 АОВ Управление вентилями газогенераторов СО2 в теплицах 5,6 Схема соединений внешних проводок
ТП 810-1-30.88 АОВ Управление клапанами надпочвенного обогрева. Схема соединений внешних проводок
ТП 810-1-30.88 АОВ Управление клапанами подпочвенного обогрева. Схема соединений внешних проводок
ТП 810-1-30.88 АОВ Управление клапанами кровельного обогрева теплиц 1...3. Схема соединений внешних проводок
ТП 810-1-30.88 АОВ Управление клапанами кровельного обогрева теплиц 4...6 и испарительного охлаждения. Схема соединений внешних проводок
ТП 810-1-30.88 АОВ Тепловой пункт. Контроль температуры и давления. Схема соединений внешних проводок (начало)
ТП 810-1-30.88 АОВ Тепловой пункт. Контроль температуры и давления. Схема соединений внешних проводок (продолжение)
ТП 810-1-30.88 АОВ Тепловой пункт. Контроль температуры. Схема соединений внешних проводок (продолжение)
ТП 810-1-30.88 АОВ Тепловой пункт. Контроль температуры и давления. Схема соединений внешних проводок (продолжение)
ТП 810-1-30.88 АОВ Тепловой пункт. Контроль температуры и давления. Схема соединений внешних проводок (окончание)
ТП 810-1-30.88 АОВ Приточные установки П1...П3. Защита калорифера от замораживания. Схемы электрические функциональная, принципиальная
ТП 810-1-30.88 АОВ Управление холодильной машиной. Приточные установки П1...П3. Схема соединений внешних проводок
ТП 810-1-30.88 АОВ Регулирование температуры воздуха в теплицах. План расположения
ТП 810-1-30.88 АОВ Зашторивание в теплицах. План расположения
ТП 810-1-30.88 АОВ Регулирование температуры воздуха в соединительном коридоре. План расположения
ТП 810-1-30.88 АОВ Управление газогенераторами СО2 в теплицах. План расположения
ТП 810-1-30.88 АОВ Тепловой пункт. План расположения
ТП 810-1-30.88 АОВ Щитовая. План расположения
ТП 810-1-30.88 АОВ Управление и контроль. План расположения оборудования
ТП 810-1-30.88 АОВ Силовые панели 3,2,4,2,8,2,9,2. Схема подключений внешних проводок
ТП 810-1-30.88 АОВ Шкафы 998101,998201,998401,990101. Схема подключений внешних проводок
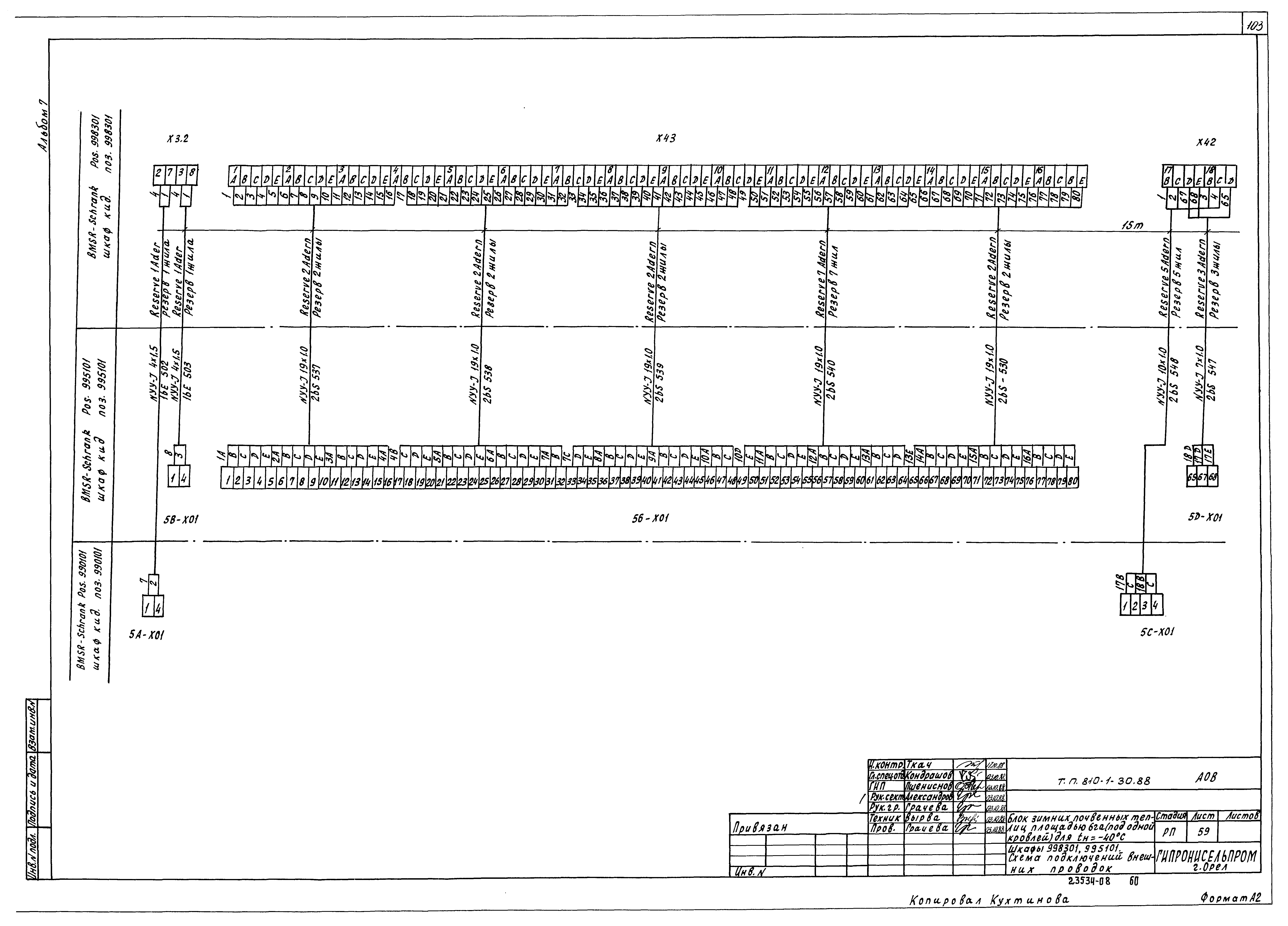
ТП 810-1-30.88 АОВ Шкафы 998301,995101. Схема подключений внешних проводок
ТП 810-1-30.88 АОВ Шкафы 998301,995101,990101. Схема подключений внешних проводок
ТП 810-1-30.88 АОВ Шкафы 998201,990101. Схема подключений внешних проводок
ТП 810-1-30.88 АОВ Шкафы 990101,998401,998201. Схема подключений внешних проводок
ТП 810-1-30.88 АОВ Шкафы 990101,998101. Схема подключений внешних проводок
ТП 810-1-30.88 АОВ Шкафы 998101. Схема подключений внешних проводок
ТП 810-1-30.88 АОВ Опросный лист №1 (начало)
ТП 810-1-30.88 АОВ Опросный лист №1 (окончание)
ТП 810-1-30.88 АОВ Опросный лист №2 (начало)
ТП 810-1-30.88 АОВ Опросный лист №2 (окончание)
ТП 810-1-30.88 АОВ Опросный лист №3 (начало)
ТП 810-1-30.88 АОВ Опросный лист №3 (окончание)
ТП 810-1-30.88 АОВ Опросный лист №4 (начало)
ТП 810-1-30.88 АОВ Опросный лист №4 (окончание)
ТП 810-1-30.88 АОВ Опросный лист №5 (начало)
ТП 810-1-30.88 АОВ Опросный лист №5 (окончание)
Разработан: Гипронисельпром Госагропрома СССР
Утверждён:06.12.1988 Госагропром СССР (USSR Gosagroprom 805-42/153)
Расположен в:Техническая документация Строительство Справочные документы Типовые строительные конструкции, изделия и узлы Общероссийский строительный каталог Сельскохозяйственные предприятия, здания и сооружения Тепличные комбинаты, теплицы и парники Тепличные комбинаты и теплицы
Типовой проект 810-1-30.88Типовой проект 810-1-30.88Типовой проект 810-1-30.88Типовой проект 810-1-30.88Типовой проект 810-1-30.88Типовой проект 810-1-30.88Типовой проект 810-1-30.88Типовой проект 810-1-30.88Типовой проект 810-1-30.88Типовой проект 810-1-30.88Типовой проект 810-1-30.88Типовой проект 810-1-30.88Типовой проект 810-1-30.88Типовой проект 810-1-30.88Типовой проект 810-1-30.88Типовой проект 810-1-30.88Типовой проект 810-1-30.88Типовой проект 810-1-30.88Типовой проект 810-1-30.88Типовой проект 810-1-30.88Типовой проект 810-1-30.88Типовой проект 810-1-30.88Типовой проект 810-1-30.88Типовой проект 810-1-30.88Типовой проект 810-1-30.88Типовой проект 810-1-30.88Типовой проект 810-1-30.88Типовой проект 810-1-30.88Типовой проект 810-1-30.88Типовой проект 810-1-30.88Типовой проект 810-1-30.88Типовой проект 810-1-30.88Типовой проект 810-1-30.88Типовой проект 810-1-30.88Типовой проект 810-1-30.88Типовой проект 810-1-30.88Типовой проект 810-1-30.88Типовой проект 810-1-30.88Типовой проект 810-1-30.88Типовой проект 810-1-30.88Типовой проект 810-1-30.88Типовой проект 810-1-30.88Типовой проект 810-1-30.88Типовой проект 810-1-30.88Типовой проект 810-1-30.88Типовой проект 810-1-30.88Типовой проект 810-1-30.88Типовой проект 810-1-30.88Типовой проект 810-1-30.88Типовой проект 810-1-30.88Типовой проект 810-1-30.88Типовой проект 810-1-30.88Типовой проект 810-1-30.88Типовой проект 810-1-30.88Типовой проект 810-1-30.88Типовой проект 810-1-30.88Типовой проект 810-1-30.88Типовой проект 810-1-30.88Типовой проект 810-1-30.88Типовой проект 810-1-30.88Типовой проект 810-1-30.88Типовой проект 810-1-30.88Типовой проект 810-1-30.88Типовой проект 810-1-30.88Типовой проект 810-1-30.88Типовой проект 810-1-30.88Типовой проект 810-1-30.88Типовой проект 810-1-30.88Типовой проект 810-1-30.88Типовой проект 810-1-30.88Типовой проект 810-1-30.88Типовой проект 810-1-30.88Типовой проект 810-1-30.88Типовой проект 810-1-30.88Типовой проект 810-1-30.88Типовой проект 810-1-30.88

© 2013 Ёшкин Кот :-) Карта сайта