Информационная система
«Ёшкин Кот»

Скачать базу одним архивом
Скачать обновления
История создания базы
Карта сайта

Скачать Типовой проект 810-1-30.88 Альбом 2. Конструкции железобетонные

Дата актуализации: 10.08.2017

Типовой проект 810-1-30.88

Альбом 2. Конструкции железобетонные

Обозначение: Типовой проект 810-1-30.88
Обозначение англ: 810-1-30.88
Статус:не определен законодательством
Название рус.:Альбом 2. Конструкции железобетонные
Дата добавления в базу:01.09.2013
Дата актуализации:05.05.2017
Дата введения:07.12.1988
Оглавление:ТП 810-1-30.88 Содержание альбома
ТП 810-1-30.88 КЖ1 Конструкции железобетонные КЖ1
ТП 810-1-30.88 КЖ1 Общие данные (начало)
ТП 810-1-30.88 КЖ1 Общие данные (окончание)
ТП 810-1-30.88 КЖ1 Схема расположения фундаментов и цокольных панелей теплицы 1. Деталь. Первый вариант
ТП 810-1-30.88 КЖ1 Схема расположения фундаментов и цокольных панелей теплицы 2. Деталь. Первый вариант
ТП 810-1-30.88 КЖ1 Схема расположения фундаментов и цокольных панелей теплицы 3. Деталь. Первый вариант
ТП 810-1-30.88 КЖ1 Схема расположения фундаментов и цокольных панелей теплицы 4. Деталь. Первый вариант
ТП 810-1-30.88 КЖ1 Схема расположения фундаментов и цокольных панелей теплицы 5. Деталь. Первый вариант
ТП 810-1-30.88 КЖ1 Схема расположения фундаментов и цокольных панелей теплицы 6. Деталь. Первый вариант
ТП 810-1-30.88 КЖ1 Схема расположения фундаментов и цокольных панелей соединительного коридора. Первый вариант
ТП 810-1-30.88 КЖ1 Фундаменты Фм1...Фм12. Первый вариант
ТП 810-1-30.88 КЖ1 Фундаменты ФМ13...ФМ20,ФОМ1. Приямок ПРМ1. Первый вариант
ТП 810-1-30.88 КЖ1 Спецификация элементов монолитных фундаментов. Первый вариант
ТП 810-1-30.88 КЖ1 Спецификация элементов монолитных фундаментов и приямок. Первый вариант
ТП 810-1-30.88 КЖ1 Узлы 1...6. Первый вариант
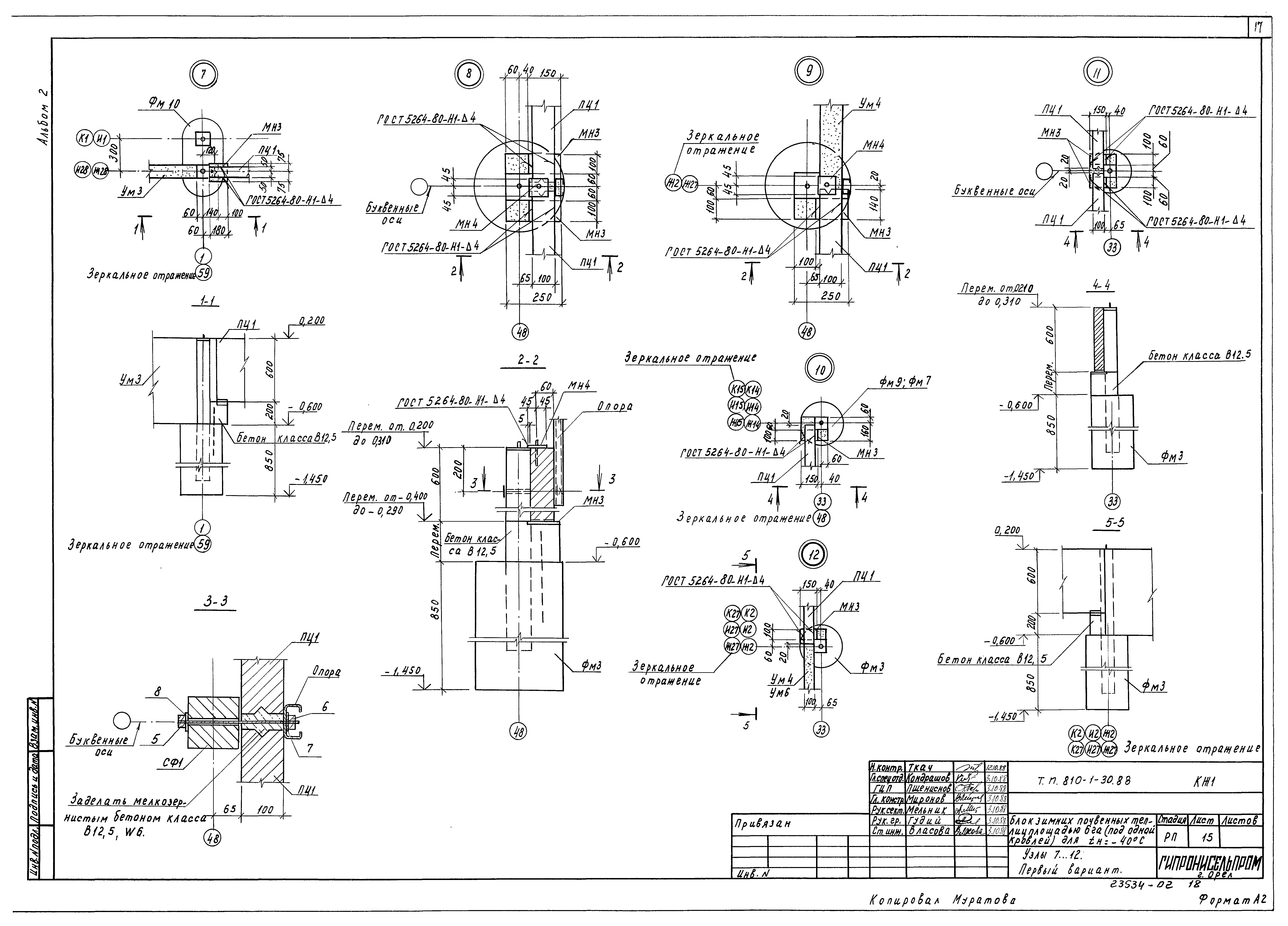
ТП 810-1-30.88 КЖ1 Узлы 7...12. Первый вариант
ТП 810-1-30.88 КЖ1 Узлы 13...20. Первый вариант
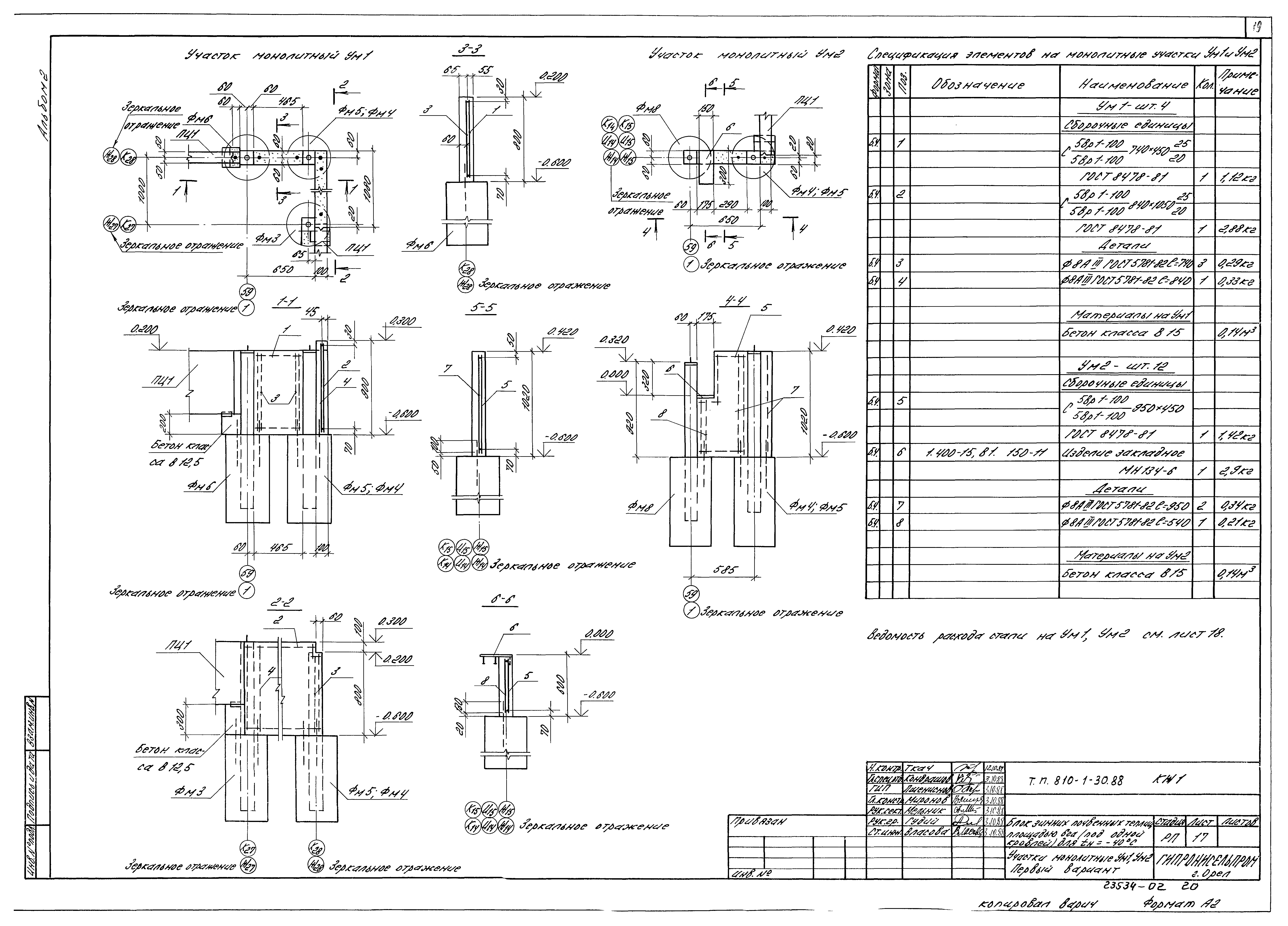
ТП 810-1-30.88 КЖ1 Участки монолитные УМ1,УМ2. Первый вариант
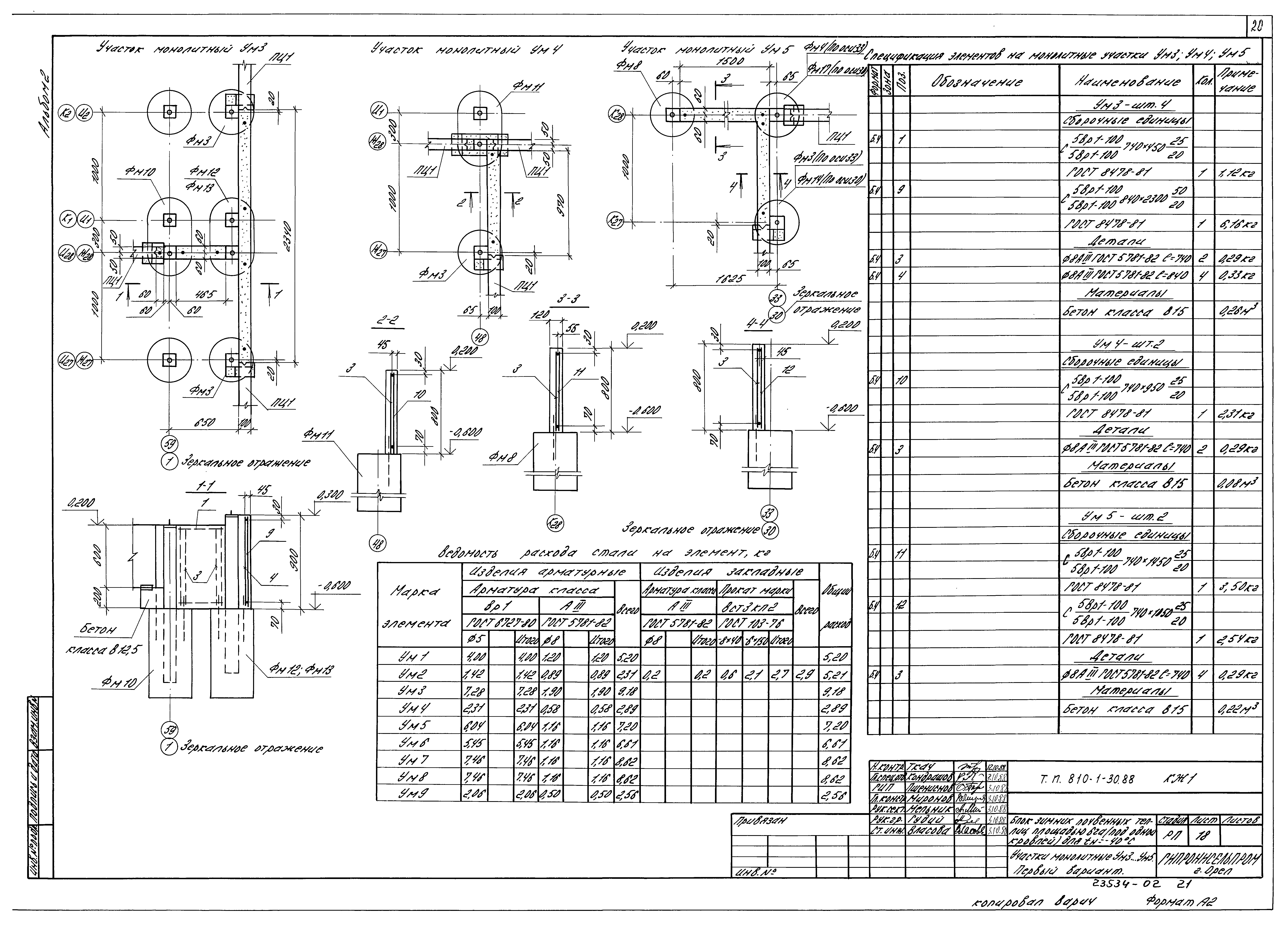
ТП 810-1-30.88 КЖ1 Участки монолитные УМ3...УМ5. Первый вариант
ТП 810-1-30.88 КЖ1 Участки монолитные УМ6...УМ9. Первый вариант
ТП 810-1-30.88 КЖ1 Схема расположения свай теплиц 1 и 2. Второй вариант
ТП 810-1-30.88 КЖ1 Схема расположения свай теплицы 3. Второй вариант
ТП 810-1-30.88 КЖ1 Схема расположения свай теплиц 4 и 5. Второй вариант
ТП 810-1-30.88 КЖ1 Схема расположения свай теплицы 6. Второй вариант
ТП 810-1-30.88 КЖ1 Схема расположения свай соединительного коридора. Второй вариант
ТП 810-1-30.88 КЖ1 Схема расположения цокольных панелей теплицы 1. Деталь. Второй вариант
ТП 810-1-30.88 КЖ1 Схема расположения цокольных панелей теплицы 2. Деталь. Второй вариант
ТП 810-1-30.88 КЖ1 Схема расположения цокольных панелей и фундаментов под оборудование теплицы 3. Второй вариант
ТП 810-1-30.88 КЖ1 Схема расположения цокольных панелей теплицы 4. Второй вариант
ТП 810-1-30.88 КЖ1 Схема расположения цокольных панелей теплицы 5. Второй вариант
ТП 810-1-30.88 КЖ1 Схема расположения цокольных панелей теплицы 6. Второй вариант
ТП 810-1-30.88 КЖ1 Схема расположения цокольных панелей и приямков соединительного коридора. Второй вариант
ТП 810-1-30.88 КЖ1 Узлы 1...6. Второй вариант
ТП 810-1-30.88 КЖ1 Узлы 7...13. Второй вариант
ТП 810-1-30.88 КЖ1 Узлы 14...21. Второй вариант
ТП 810-1-30.88 КЖ1 Участки монолитные УМ1,УМ2. Второй вариант
ТП 810-1-30.88 КЖ1 Участки монолитные УМ3...УМ5. Второй вариант
ТП 810-1-30.88 КЖ1 Участки монолитные УМ16...УМ9. Второй вариант
ТП 810-1-30.88 КЖ2 Конструкции железобетонные КЖ2
ТП 810-1-30.88 КЖ2 Общие данные (начало)
ТП 810-1-30.88 КЖ2 Общие данные (окончание)
ТП 810-1-30.88 КЖ2 Схема расположения элементов фундаментов. Фрагменты 1,2
ТП 810-1-30.88 КЖ2 Фрагменты 3...5
ТП 810-1-30.88 КЖ2 Фрагменты 6...13
ТП 810-1-30.88 КЖ2 Фрагменты 14,15. Сечения А-А
ТП 810-1-30.88 КЖ2 Схема расположения фундаментов под оборудование. Фундаменты ФОМ1...ФОМ5
ТП 810-1-30.88 КЖ2 Фундаменты ФОМ6...ФОМ15
ТП 810-1-30.88 КЖ2 Схема расположения каналов и приямков. Фрагмент 16
ТП 810-1-30.88 КЖ2 Фрагмент 17
ТП 810-1-30.88 КЖ2 Фрагмент 18. Приямок ПРМ1
ТП 810-1-30.88 КЖ2 Схема расположения колонн и ригелей
ТП 810-1-30.88 КЖ2 Схема расположения плит покрытия
ТП 810-1-30.88 КЖ2 Фрагмент 19,20. Деталь установки стакана. Схема расположения закладных деталей для крепления подвесок между осями 31...38
ТП 810-1-30.88 КЖ2 Схема расположения стеновых панелей
Разработан: Гипронисельпром Госагропрома СССР
Утверждён:06.12.1988 Госагропром СССР (USSR Gosagroprom 805-42/153)
Расположен в:Техническая документация Строительство Справочные документы Типовые строительные конструкции, изделия и узлы Общероссийский строительный каталог Сельскохозяйственные предприятия, здания и сооружения Тепличные комбинаты, теплицы и парники Тепличные комбинаты и теплицы
Типовой проект 810-1-30.88Типовой проект 810-1-30.88Типовой проект 810-1-30.88Типовой проект 810-1-30.88Типовой проект 810-1-30.88Типовой проект 810-1-30.88Типовой проект 810-1-30.88Типовой проект 810-1-30.88Типовой проект 810-1-30.88Типовой проект 810-1-30.88Типовой проект 810-1-30.88Типовой проект 810-1-30.88Типовой проект 810-1-30.88Типовой проект 810-1-30.88Типовой проект 810-1-30.88Типовой проект 810-1-30.88Типовой проект 810-1-30.88Типовой проект 810-1-30.88Типовой проект 810-1-30.88Типовой проект 810-1-30.88Типовой проект 810-1-30.88Типовой проект 810-1-30.88Типовой проект 810-1-30.88Типовой проект 810-1-30.88Типовой проект 810-1-30.88Типовой проект 810-1-30.88Типовой проект 810-1-30.88Типовой проект 810-1-30.88Типовой проект 810-1-30.88Типовой проект 810-1-30.88Типовой проект 810-1-30.88Типовой проект 810-1-30.88Типовой проект 810-1-30.88Типовой проект 810-1-30.88Типовой проект 810-1-30.88Типовой проект 810-1-30.88Типовой проект 810-1-30.88Типовой проект 810-1-30.88Типовой проект 810-1-30.88Типовой проект 810-1-30.88Типовой проект 810-1-30.88Типовой проект 810-1-30.88Типовой проект 810-1-30.88Типовой проект 810-1-30.88Типовой проект 810-1-30.88Типовой проект 810-1-30.88Типовой проект 810-1-30.88Типовой проект 810-1-30.88Типовой проект 810-1-30.88Типовой проект 810-1-30.88Типовой проект 810-1-30.88Типовой проект 810-1-30.88Типовой проект 810-1-30.88Типовой проект 810-1-30.88Типовой проект 810-1-30.88

© 2013 Ёшкин Кот :-) Карта сайта