Информационная система
«Ёшкин Кот»

Скачать базу одним архивом
Скачать обновления
История создания базы
Карта сайта

Скачать Типовой проект 810-1-29.88 Альбом 5. Механизм вентиляции теплиц. Механизм зашторивания кровли теплиц. Механизм приспускания растений. Тележка для сбора овощей. Система подвески монорельсов

Дата актуализации: 10.08.2017

Типовой проект 810-1-29.88

Альбом 5. Механизм вентиляции теплиц. Механизм зашторивания кровли теплиц. Механизм приспускания растений. Тележка для сбора овощей. Система подвески монорельсов

Обозначение: Типовой проект 810-1-29.88
Обозначение англ: 810-1-29.88
Статус:не определен законодательством
Название рус.:Альбом 5. Механизм вентиляции теплиц. Механизм зашторивания кровли теплиц. Механизм приспускания растений. Тележка для сбора овощей. Система подвески монорельсов
Дата добавления в базу:01.09.2013
Дата актуализации:05.05.2017
Дата введения:18.10.1988
Оглавление:ТП 810-1-29.88 5854-354.00.00.000 Механизм вентиляции блока зимних теплиц пролетом 24 м площадью 3 ед. Спецификация
ТП 810-1-29.88 5854-354.00.00.000 СБ Механизм вентиляции блока зимних теплиц пролетом 24 м площадью 3 ед. Сборочный чертеж
ТП 810-1-29.88 5854-354.ИМ Механизм вентиляции ангарной теплицы пролетом 24 м. Инструкция по монтажу, пуску, регулированию и обкатке изделия на месте его применения
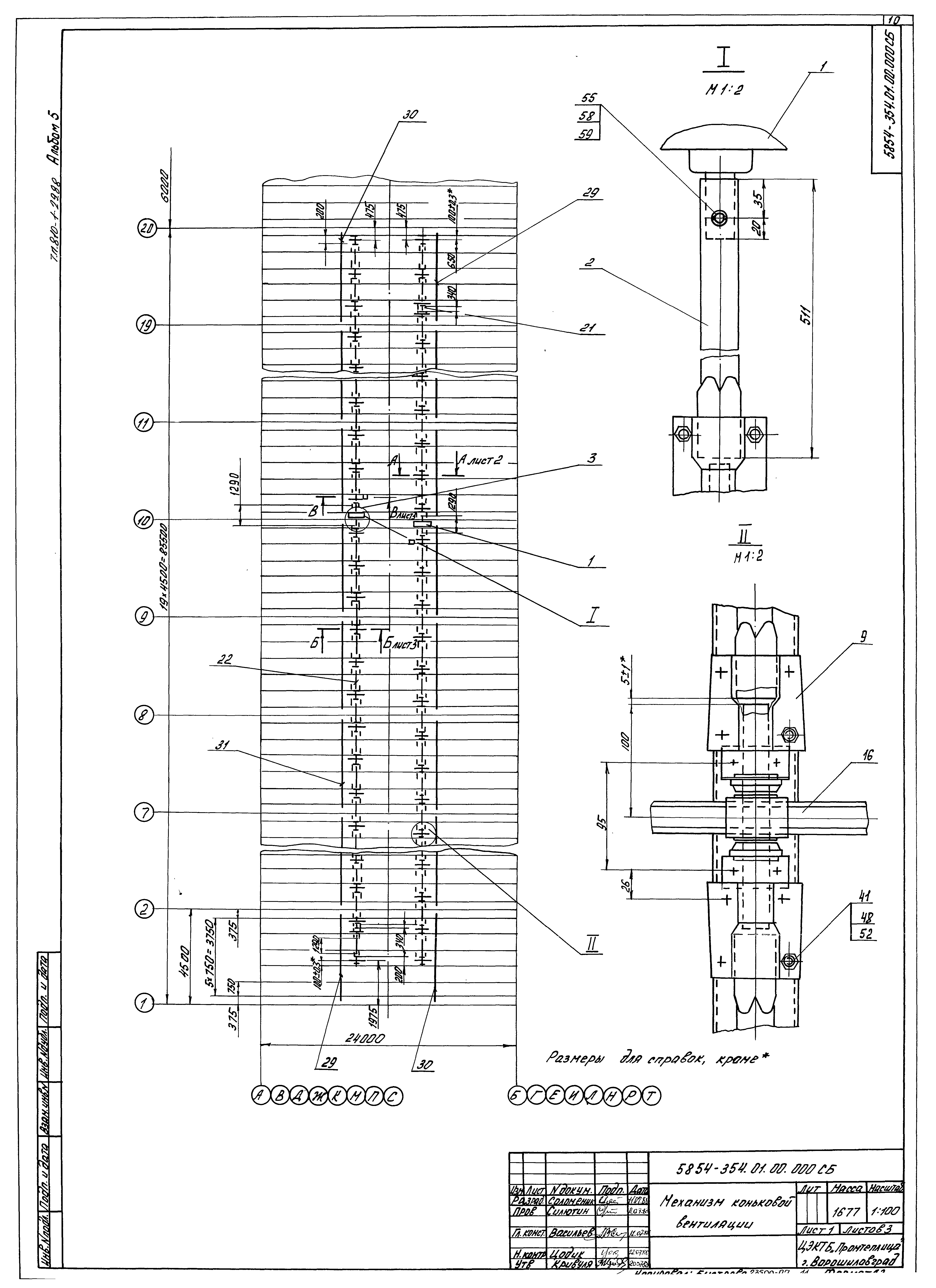
ТП 810-1-29.88 5854-354.01.00.000 Механизм коньковой вентиляции. Спецификация
ТП 810-1-29.88 5854-354.01.000 СБ Механизм коньковой вентиляции. Сборочный чертеж
ТП 810-1-29.88 5854-354.01.01.000 СБ Вал в сборе
ТП 810-1-29.88 5854-354.01.02.000 СБ Кронштейн
ТП 810-1-29.88 5854-354.01.00.001 Рейка
ТП 810-1-29.88 5854-354.01.00.002 Втулка
ТП 810-1-29.88 5854-354.01.00.003 Кронштейн
ТП 810-1-29.88 5854-354.01.00.004 Шайба
ТП 810-1-29.88 5854-354.01.00.005 Кронштейн
ТП 810-1-29.88 5854-354.01.00.006 Вал
ТП 810-1-29.88 5854-354.01.00.007 Плита
ТП 810-1-29.88 5854-354.01.00.008 Плита
ТП 810-1-29.88 5854-354.01.00.009 Скоба
ТП 810-1-29.88 5854-354.01.00.010 Упор
ТП 810-1-29.88 5854-354.01.00.011 Упор
ТП 810-1-29.88 5854-354.01.00.012 Шпилька
ТП 810-1-29.88 5854-354.01.00.013 Прогон
ТП 810-1-29.88 5854-354.01.00.014 Прогон
ТП 810-1-29.88 5854-354.01.00.015 Прогон
ТП 810-1-29.88 5854-354.01.00.017 Вкладыш
ТП 810-1-29.88 5854-354.02.00.000 Механизм коньковой вентиляции. Спецификация
ТП 810-1-29.88 5854-354.02.00.000 СБ Механизм коньковой вентиляции. Сборочный чертеж
ТП 810-1-29.88 5854-354.03.00.000 Механизм боковой вентиляции. Спецификация
ТП 810-1-29.88 5854-354.03.00.000 СБ Механизм боковой вентиляции. Сборочный чертеж
ТП 810-1-29.88 5854-354.03.01.000 СБ Кронштейн
ТП 810-1-29.88 5854-354.03.00.001 Рейка
ТП 810-1-29.88 5854-354.03.00.002 Стойка
ТП 810-1-29.88 5854-354.03.00.003 Упор
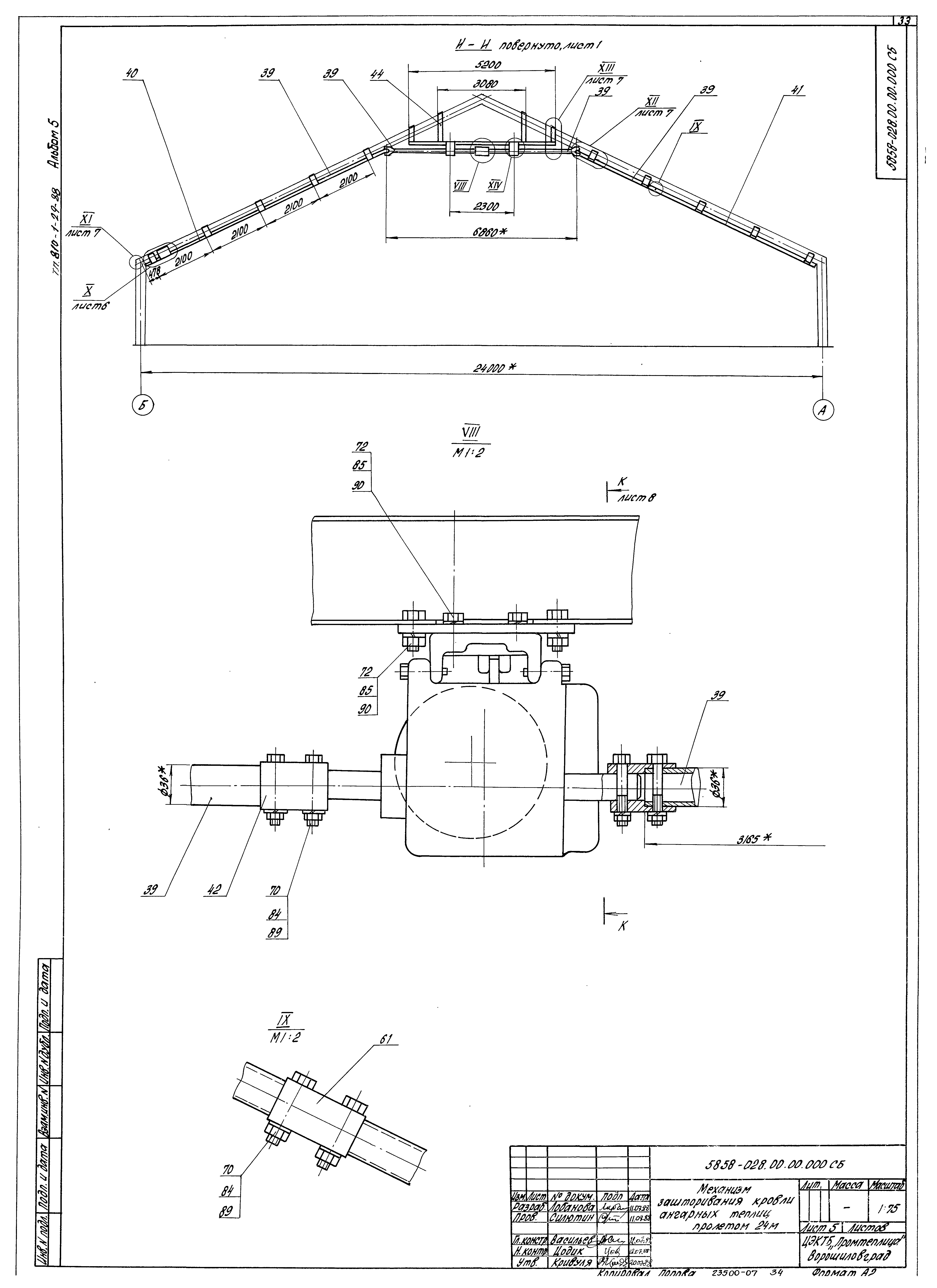
ТП 810-1-29.88 5858-028.00.00.000 Механизм зашторивания кровли ангарных теплиц пролетом 24 м. Спецификация
ТП 810-1-29.88 5858-028.00.00.000 СБ Механизм зашторивания кровли ангарных теплиц пролетом 24 м. Сборочный чертеж
ТП 810-1-29.88 5858-028.00.00.000 ИЭ Механизм зашторивания кровли ангарных теплиц пролетом 24 м. Инструкция по эксплуатации
ТП 810-1-29.88 5858-028.014.00.000 СБ Балка
ТП 810-1-29.88 5858-028.015.00.000 СБ Балка
ТП 810-1-29.88 5858-028.016.00.000 СБ Ползун
ТП 810-1-29.88 5858-028.017.00.000 СБ Опора
ТП 810-1-29.88 5858-028.18.00.000 СБ Опора
ТП 810-1-29.88 5858-028.19.00.000 СБ Блок
ТП 810-1-29.88 5858-028.20.00.000 СБ Планка
ТП 810-1-29.88 5858-028.21.00.000 СБ Планка
ТП 810-1-29.88 5858-028.22.00.000 СБ Опора
ТП 810-1-29.88 5858-028.23.00.000 СБ Опора
ТП 810-1-29.88 5858-028.24.00.000 СБ Балка
ТП 810-1-29.88 5858-028.00.00.025 Плита
ТП 810-1-29.88 5858-028.00.00.026 Планка
ТП 810-1-29.88 5858-028.00.00.027 Штора
ТП 810-1-29.88 5858-028.00.00.028 Кронштейн
ТП 810-1-29.88 5858-028.00.00.029 Винт
ТП 810-1-29.88 5858-028.00.00.030 Вкладыш
ТП 810-1-29.88 5858-028.00.00.031 Пробка
ТП 810-1-29.88 5858-028.00.00.032 Прокладка
ТП 810-1-29.88 5858-028.00.00.033 Упор
ТП 810-1-29.88 5858-028.00.00.034 Балка
ТП 810-1-29.88 5858-028.00.00.035 Балка
ТП 810-1-29.88 5858-028.00.00.036 Кнопка
ТП 810-1-29.88 5858-028.00.00.037 Шайба
ТП 810-1-29.88 5858-028.00.00.038 Вал
ТП 810-1-29.88 5858-028.00.00.039 Муфта
ТП 810-1-29.88 5858-028.00.00.040 Кронштейн
ТП 810-1-29.88 5858-028.00.00.041 Труба
ТП 810-1-29.88 5858-028.00.00.042 Переходник
ТП 810-1-29.88 5858-027.02.00.000 СБ Шарнир М31-2
ТП 810-1-29.88 5858-027.00.00.002 Муфта М31-36
ТП 810-1-29.88 5858-027.00.00.007 Скоба М31-41
ТП 810-1-29.88 5858-027.00.00.008 Уголок М31-42
ТП 810-1-29.88 5858-016.017 СБ Устройство натяжное
ТП 810-1-29.88 5858-016.111 Подвеска
ТП 810-1-29.88 5858-016.112-02 Зажим
ТП 810-1-29.88 5839-022.00.00.000 Механизм приспускания растений ангарных теплиц пролетом 24 м. Спецификация
ТП 810-1-29.88 5839-022.00.00.000 СБ Механизм приспускания растений ангарных теплиц пролетом 24 м. Сборочный чертеж
ТП 810-1-29.88 5839-022.00.00.000 ИЭ Инструкция по эксплуатации
ТП 810-1-29.88 5839-022.01.00.000 Привод
ТП 810-1-29.88 5839-022.02.00.000 Привод
ТП 810-1-29.88 5839-022.03.00.000 Кронштейн
ТП 810-1-29.88 5839-022.04.00.000 Кронштейн
ТП 810-1-29.88 5839-022.05.00.000 Ролик поддерживающий
ТП 810-1-29.88 5839-022.06.00.000 Ролики поворотные
ТП 810-1-29.88 5839-022.07.00.000 Трос в сборе
ТП 810-1-29.88 5839-022.08.00.000 Стеллаж
ТП 810-1-29.88 5839-022.00.00.001 Кронштейн
ТП 810-1-29.88 5839-022.00.00.002 Скоба
ТП 810-1-29.88 5839-022.00.00.003 Петля
ТП 810-1-29.88 5839-022.00.00.004 Уголок
ТП 810-1-29.88 5839-022.00.00.005 Платик
ТП 810-1-29.88 5839-022.00.00.016 Кольцо
Разработан: ЦЭКТБ Промтеплица Госагропрома СССР
Утверждён:15.07.1987 Госагропром СССР (USSR Gosagroprom 549)
Расположен в:Техническая документация Строительство Справочные документы Типовые строительные конструкции, изделия и узлы Общероссийский строительный каталог Сельскохозяйственные предприятия, здания и сооружения Тепличные комбинаты, теплицы и парники Тепличные комбинаты и теплицы
Типовой проект 810-1-29.88Типовой проект 810-1-29.88Типовой проект 810-1-29.88Типовой проект 810-1-29.88Типовой проект 810-1-29.88Типовой проект 810-1-29.88Типовой проект 810-1-29.88Типовой проект 810-1-29.88Типовой проект 810-1-29.88Типовой проект 810-1-29.88Типовой проект 810-1-29.88Типовой проект 810-1-29.88Типовой проект 810-1-29.88Типовой проект 810-1-29.88Типовой проект 810-1-29.88Типовой проект 810-1-29.88Типовой проект 810-1-29.88Типовой проект 810-1-29.88Типовой проект 810-1-29.88Типовой проект 810-1-29.88Типовой проект 810-1-29.88Типовой проект 810-1-29.88Типовой проект 810-1-29.88Типовой проект 810-1-29.88Типовой проект 810-1-29.88Типовой проект 810-1-29.88Типовой проект 810-1-29.88Типовой проект 810-1-29.88Типовой проект 810-1-29.88Типовой проект 810-1-29.88Типовой проект 810-1-29.88Типовой проект 810-1-29.88Типовой проект 810-1-29.88Типовой проект 810-1-29.88Типовой проект 810-1-29.88Типовой проект 810-1-29.88Типовой проект 810-1-29.88Типовой проект 810-1-29.88Типовой проект 810-1-29.88Типовой проект 810-1-29.88Типовой проект 810-1-29.88Типовой проект 810-1-29.88Типовой проект 810-1-29.88Типовой проект 810-1-29.88Типовой проект 810-1-29.88Типовой проект 810-1-29.88Типовой проект 810-1-29.88Типовой проект 810-1-29.88Типовой проект 810-1-29.88Типовой проект 810-1-29.88Типовой проект 810-1-29.88Типовой проект 810-1-29.88Типовой проект 810-1-29.88Типовой проект 810-1-29.88Типовой проект 810-1-29.88Типовой проект 810-1-29.88Типовой проект 810-1-29.88Типовой проект 810-1-29.88Типовой проект 810-1-29.88Типовой проект 810-1-29.88Типовой проект 810-1-29.88Типовой проект 810-1-29.88Типовой проект 810-1-29.88Типовой проект 810-1-29.88Типовой проект 810-1-29.88Типовой проект 810-1-29.88Типовой проект 810-1-29.88Типовой проект 810-1-29.88Типовой проект 810-1-29.88Типовой проект 810-1-29.88Типовой проект 810-1-29.88Типовой проект 810-1-29.88

© 2013 Ёшкин Кот :-) Карта сайта