Информационная система
«Ёшкин Кот»

Скачать базу одним архивом
Скачать обновления
История создания базы
Карта сайта

Скачать Типовой проект 810-1-29.88 Альбом 2. Конструкции металлические. Несущий и ограждающий каркас. Металлоконструкции под оборудование

Дата актуализации: 10.08.2017

Типовой проект 810-1-29.88

Альбом 2. Конструкции металлические. Несущий и ограждающий каркас. Металлоконструкции под оборудование

Обозначение: Типовой проект 810-1-29.88
Обозначение англ: 810-1-29.88
Статус:не определен законодательством
Название рус.:Альбом 2. Конструкции металлические. Несущий и ограждающий каркас. Металлоконструкции под оборудование
Дата добавления в базу:01.09.2013
Дата актуализации:05.05.2017
Дата введения:18.10.1988
Оглавление:ТП 810-1-29.88 Общие данные (начало)
ТП 810-1-29.88 Общие данные (продолжение)
ТП 810-1-29.88 Общие данные (окончание)
ТП 810-1-29.88 Несущий каркас. Техническая спецификация металла
ТП 810-1-29.88 Несущий каркас. Ведомость металлоконструкций по видам профилей
ТП 810-1-29.88 Ограждающий каркас. Техническая спецификация металла
ТП 810-1-29.88 Схемы расположения анкерных болтов
ТП 810-1-29.88 Таблицы расчетных нагрузок на фундаменты и цоколь
ТП 810-1-29.88 Схема расположения колонн. Разрез 1-1
ТП 810-1-29.88 Схема расположения ригелей, прогонов и связей покрытия
ТП 810-1-29.88 Схема расположения шпросов и форточек. Разрез 2-2
ТП 810-1-29.88 Разрезы 3-3;4-4;5-5;6-6;7-7
ТП 810-1-29.88 Схемы расположения элементов фахверка по осям 1;20;21;40
ТП 810-1-29.88 Схемы расположения шпросов и ворот по осям 1;20;21;40
ТП 810-1-29.88 Схема расположения элементов ригеля РР1. Узлы 1;2;3;4
ТП 810-1-29.88 Узлы 6;7;8;9;10
ТП 810-1-29.88 Узел 11
ТП 810-1-29.88 Узел 12
ТП 810-1-29.88 Узлы 13;14
ТП 810-1-29.88 Узел 15
ТП 810-1-29.88 Узел 16
ТП 810-1-29.88 Узлы 17;18;19;20
ТП 810-1-29.88 Узлы 21;22;23
ТП 810-1-29.88 Узлы 24;25
ТП 810-1-29.88 Узлы 26;27;28;29
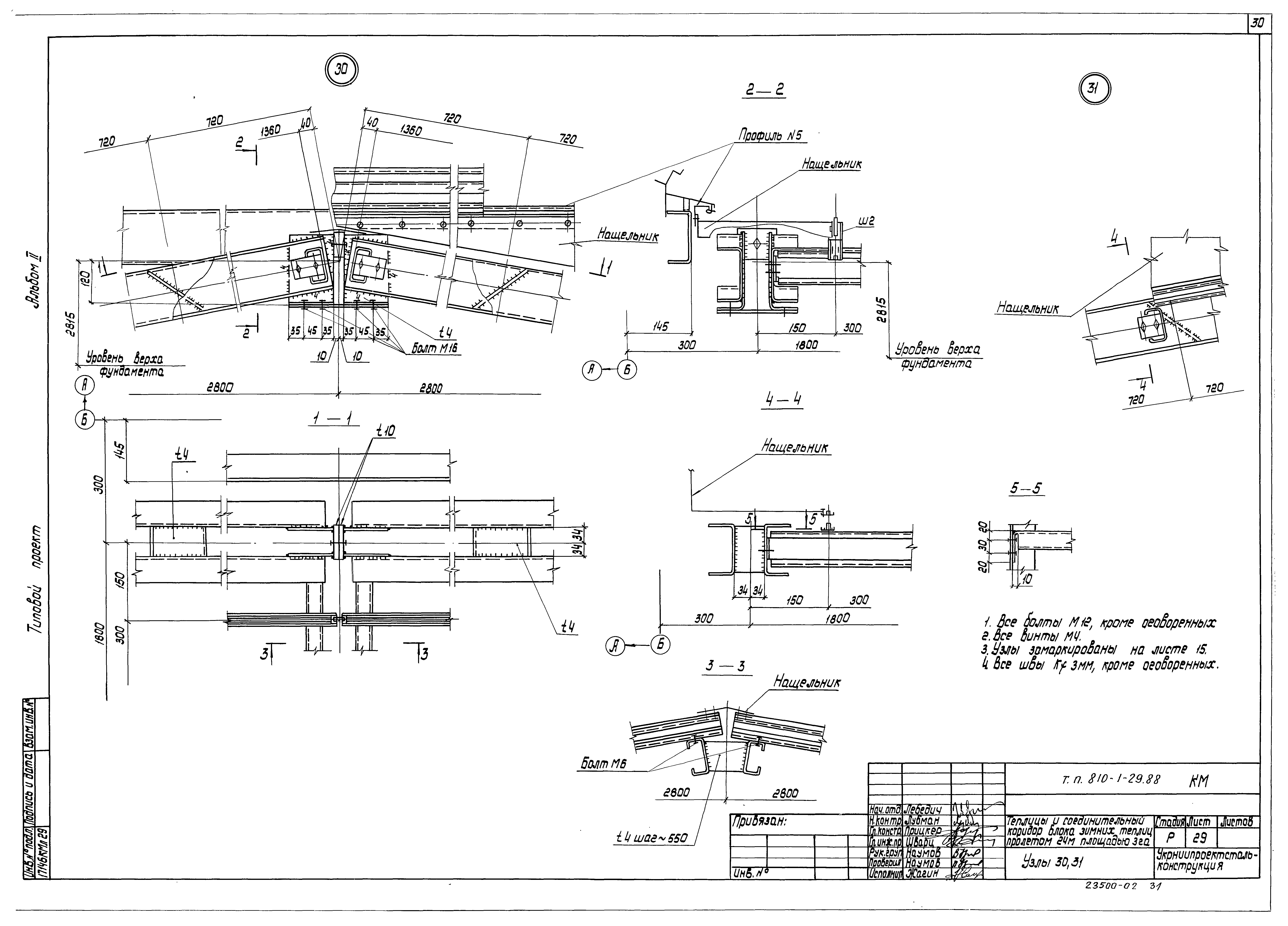
ТП 810-1-29.88 Узлы 30;31
ТП 810-1-29.88 Узлы 32;33;34;35
ТП 810-1-29.88 Узлы 36;37;38
ТП 810-1-29.88 Узлы 39;40;41;42. Схема расположения элементов Ш7
ТП 810-1-29.88 Фрамуги бокового фасада ВФС2Г;ВФС2. Узел 43
ТП 810-1-29.88 Фрамуги кровли ВФС1Г;ВФС1. Узел 44
ТП 810-1-29.88 Схема расположения поперечных элементов кровельного и бокового ограждений. Узел 45
ТП 810-1-29.88 Схема расположения поперечных элементов на торцах и перегородках теплицы и коридоре-вставке. Узел 46
ТП 810-1-29.88 Схема расположения нащельников. Узлы 47;48
ТП 810-1-29.88 Схема расположения компенсатора. Узлы 49,50
ТП 810-1-29.88 Профили алюминиевые марки СПА и дополнительные профили
ТП 810-1-29.88 Схема расположения элементов распашных раздвижных ворот
ТП 810-1-29.88 Узлы 51,52,53
ТП 810-1-29.88 Узлы 54;55;56;57;58
ТП 810-1-29.88 Схема расположения горизонтальных ферм ФГ1. Таблица расхода металла
ТП 810-1-29.88 Схема расположения элементов фермы ФГ1
ТП 810-1-29.88 Узел 59
ТП 810-1-29.88 Узлы 60;61
ТП 810-1-29.88 Узел 62
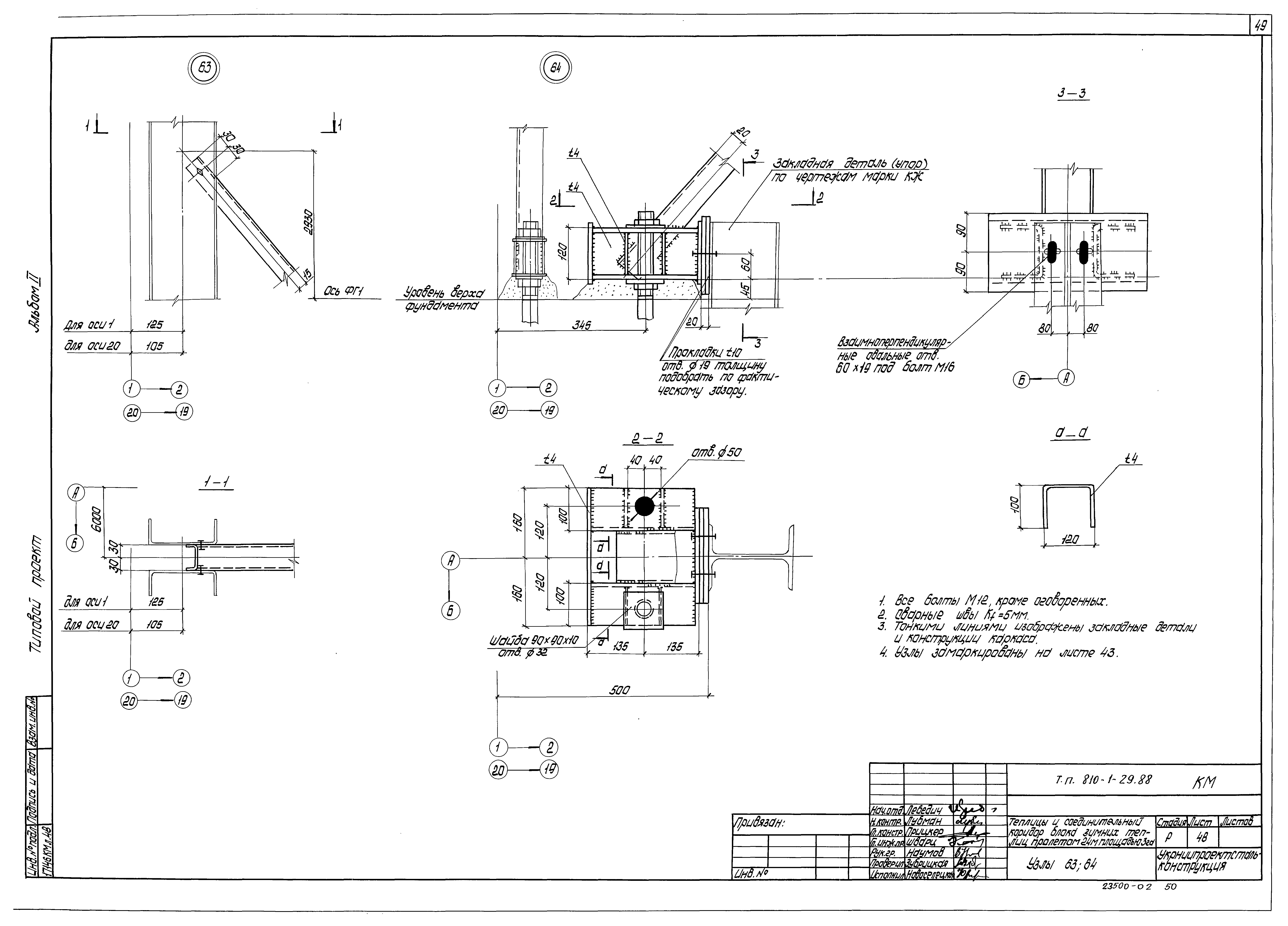
ТП 810-1-29.88 Узлы 63;64
ТП 810-1-29.88 Схема расположения площадок под оборудование. Нагрузки на фундаменты
ТП 810-1-29.88 Схема расположения элементов площадки ПЛ1
ТП 810-1-29.88 Схема расположения решетчатого настила марки "д" площадок ПЛ1. Узлы 65;66;67
ТП 810-1-29.88 Узлы 68;69;70;71;72
Разработан: ЦНИИСК им. В.А. Кучеренко
Укрниипроектстальконструкция
Утверждён:15.07.1987 Госагропром СССР (USSR Gosagroprom 549)
Расположен в:Техническая документация Строительство Справочные документы Типовые строительные конструкции, изделия и узлы Общероссийский строительный каталог Сельскохозяйственные предприятия, здания и сооружения Тепличные комбинаты, теплицы и парники Тепличные комбинаты и теплицы
Типовой проект 810-1-29.88Типовой проект 810-1-29.88Типовой проект 810-1-29.88Типовой проект 810-1-29.88Типовой проект 810-1-29.88Типовой проект 810-1-29.88Типовой проект 810-1-29.88Типовой проект 810-1-29.88Типовой проект 810-1-29.88Типовой проект 810-1-29.88Типовой проект 810-1-29.88Типовой проект 810-1-29.88Типовой проект 810-1-29.88Типовой проект 810-1-29.88Типовой проект 810-1-29.88Типовой проект 810-1-29.88Типовой проект 810-1-29.88Типовой проект 810-1-29.88Типовой проект 810-1-29.88Типовой проект 810-1-29.88Типовой проект 810-1-29.88Типовой проект 810-1-29.88Типовой проект 810-1-29.88Типовой проект 810-1-29.88Типовой проект 810-1-29.88Типовой проект 810-1-29.88Типовой проект 810-1-29.88Типовой проект 810-1-29.88Типовой проект 810-1-29.88Типовой проект 810-1-29.88Типовой проект 810-1-29.88Типовой проект 810-1-29.88Типовой проект 810-1-29.88Типовой проект 810-1-29.88Типовой проект 810-1-29.88Типовой проект 810-1-29.88Типовой проект 810-1-29.88Типовой проект 810-1-29.88Типовой проект 810-1-29.88Типовой проект 810-1-29.88Типовой проект 810-1-29.88Типовой проект 810-1-29.88Типовой проект 810-1-29.88Типовой проект 810-1-29.88Типовой проект 810-1-29.88Типовой проект 810-1-29.88Типовой проект 810-1-29.88Типовой проект 810-1-29.88Типовой проект 810-1-29.88Типовой проект 810-1-29.88Типовой проект 810-1-29.88Типовой проект 810-1-29.88Типовой проект 810-1-29.88Типовой проект 810-1-29.88

© 2013 Ёшкин Кот :-) Карта сайта