Информационная система
«Ёшкин Кот»

Скачать базу одним архивом
Скачать обновления
История создания базы
Карта сайта

Скачать Типовой проект 810-1-12.86 Альбом IX. Производственно-вспомогательные и бытовые помещения. Архитектурно-строительные решения. Отопление и вентиляция. Тепломеханическая часть

Дата актуализации: 10.08.2017

Типовой проект 810-1-12.86

Альбом IX. Производственно-вспомогательные и бытовые помещения. Архитектурно-строительные решения. Отопление и вентиляция. Тепломеханическая часть

Обозначение: Типовой проект 810-1-12.86
Обозначение англ: 810-1-12.86
Статус:не определен законодательством
Название рус.:Альбом IX. Производственно-вспомогательные и бытовые помещения. Архитектурно-строительные решения. Отопление и вентиляция. Тепломеханическая часть
Дата добавления в базу:01.09.2013
Дата актуализации:05.05.2017
Дата введения:01.08.1986
Оглавление:ТП 810-1-12.86 ДС Содержание альбома
ТП 810-1-12.86 АР-1 Общие данные (начало)
ТП 810-1-12.86 АР-2 Общие данные (окончание)
ТП 810-1-12.86 АР-3 План на отметке 0.000 в осях 1-8
ТП 810-1-12.86 АР-4 План на отметке 0.000 в осях 8-11
ТП 810-1-12.86 АР-5 Фрагменты 1;2
ТП 810-1-12.86 АР-6 Разрезы. Фасады. Схемы заполнения оконных проемов
ТП 810-1-12.86 АР-7 Схема расположения перемычек
ТП 810-1-12.86 АР-8 План полов. Детали
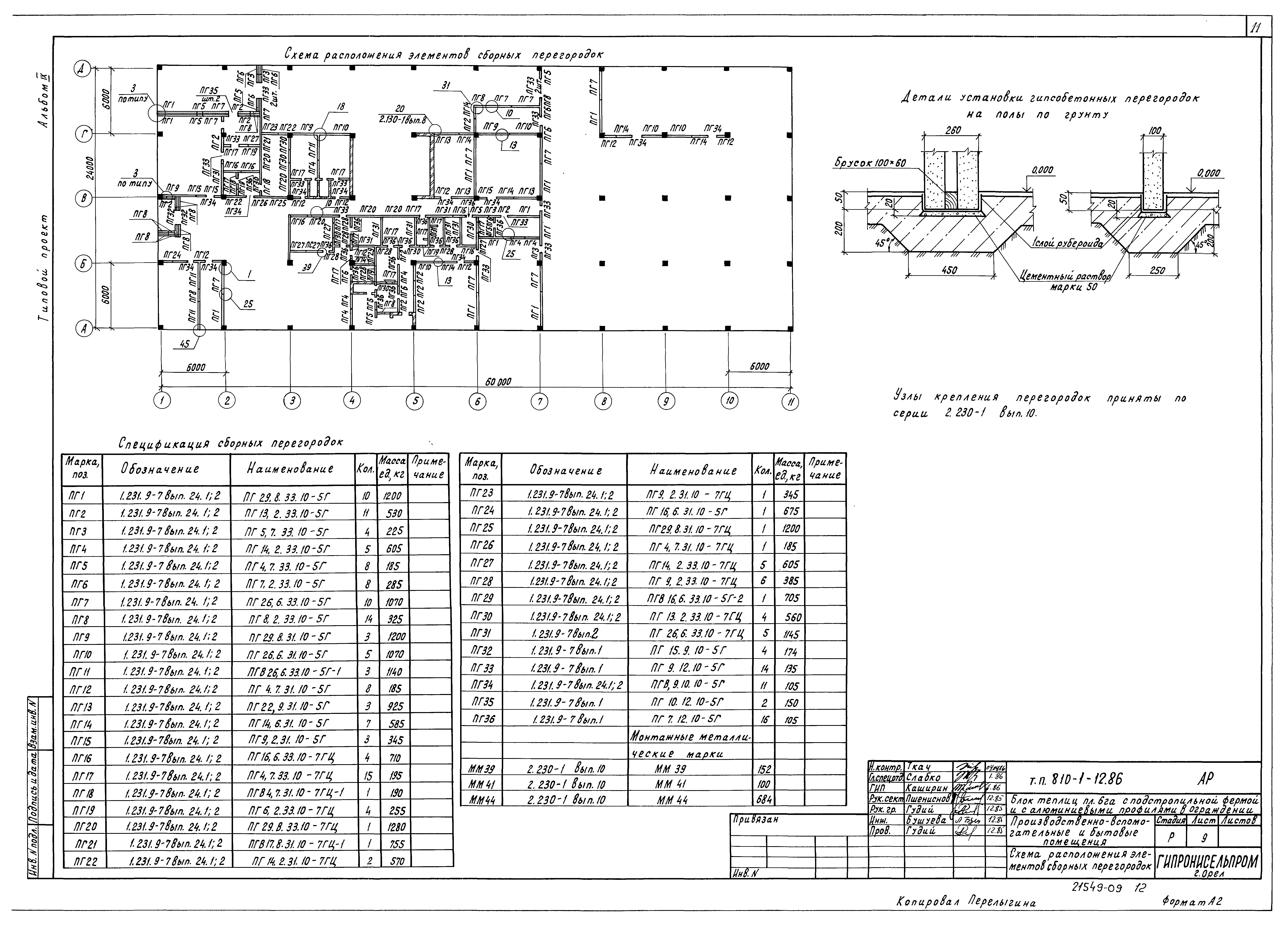
ТП 810-1-12.86 АР-9 Схема расположения элементов сборных перегородок
ТП 810-1-12.86 АР-10 План расположения отверстий
ТП 810-1-12.86 АР-11 План подшивного потолка
ТП 810-1-12.86 АР-12 Теплоизоляция стен минераловатными плитами. Детали. Узел 1
ТП 810-1-12.86 АР-13 План кровли. Детали. Схема
ТП 810-1-12.86 АР-14 Схемы расположения элементов кабин душевых и уборных
ТП 810-1-12.86 КЖ-1 Общие данные (начало)
ТП 810-1-12.86 КЖ-2 Общие данные (окончание)
ТП 810-1-12.86 КЖ-3 Схема расположения фундаментов, цокольных и фундаментных балок. Фрагменты 1-3
ТП 810-1-12.86 КЖ-4 Фрагменты 4-12
ТП 810-1-12.86 КЖ-5 Схема расположения фундаментов под оборудование в осях 5-8. Фундаменты ФОМ-1÷ФОМ-5
ТП 810-1-12.86 КЖ-6 Схемы расположения фундаментов под оборудование в тепловом пункте и переходной площадки ПП1. Фундаменты ФОМ-6÷ФОМ-9
ТП 810-1-12.86 КЖ-7 Фундаменты ФОМ10-ФОМ15
ТП 810-1-12.86 КЖ-8 Схема расположения подземных конструкций
ТП 810-1-12.86 КЖ-9 Приямок ПРМ1-ПРМ4
ТП 810-1-12.86 КЖ-10 Фрагменты 13-16
ТП 810-1-12.86 КЖ-11 Фрагменты 17-18
ТП 810-1-12.86 КЖ-12 Схема расположения колонн и ригелей
ТП 810-1-12.86 КЖ-13 Схема расположения плит покрытия
ТП 810-1-12.86 КЖ-14 Схема расположения стеновых панелей по осям А;Д;11 и 1
ТП 810-1-12.86 ОВ-1 Общие данные (начало)
ТП 810-1-12.86 ОВ-2 Общие данные (окончание)
ТП 810-1-12.86 ОВ-3 План системы отопления, теплоснабжения установки А1;П1;П2 в осях 1-7
ТП 810-1-12.86 ОВ-4 План системы отопления и вентиляции в осях 7-11
ТП 810-1-12.86 ОВ-5 План систем вентиляции в осях 1-7
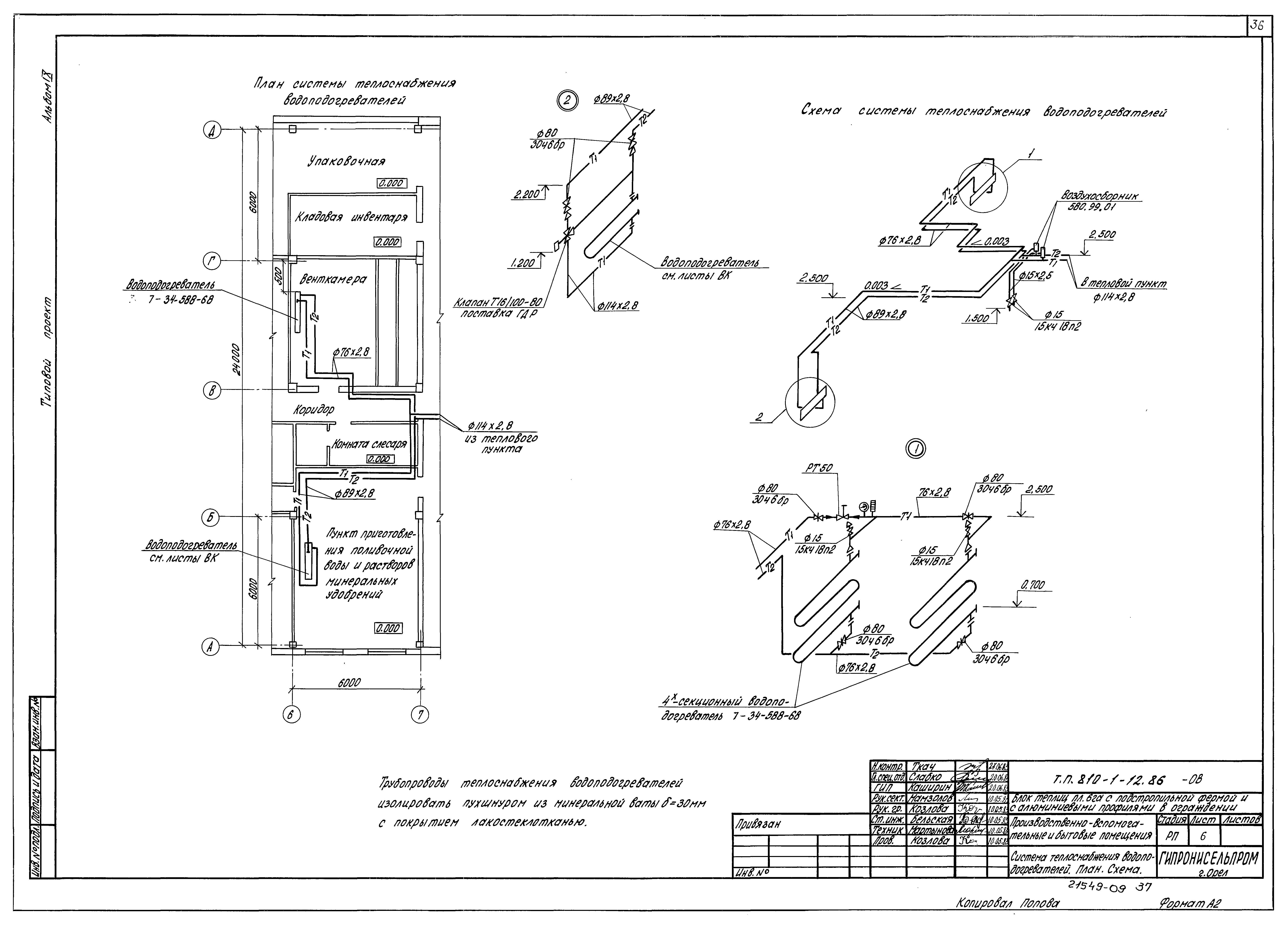
ТП 810-1-12.86 ОВ-6 Система теплоснабжения водоподогревателей. План. Схема
ТП 810-1-12.86 ОВ-7 Разрез 1-1. Схема теплоснабжения установок П-1;П-2;А-1
ТП 810-1-12.86 ОВ-8 Схема систем отопления в осях 1-7
ТП 810-1-12.86 ОВ-9 Схема систем отопления в осях 7-11
ТП 810-1-12.86 ОВ-10 Схемы систем вентиляции
ТП 810-1-12.86 ОВ-11 Схемы систем вентиляции
ТП 810-1-12.86 ОВ-12 Приточные установки П-1;П-2. План. Разрезы 1-1;2-2
ТП 810-1-12.86 ОВН1 Диффузор
ТП 810-1-12.86 ОВН2 Лючок с заглушкой
ТП 810-1-12.86 ОВН3 Редукционная вставка
ТП 810-1-12.86 ОВН4 Рамка навески герметической двери
ТП 810-1-12.86 ОВН5 Подставка под калорифер
ТП 810-1-12.86 ОВН6 Вытяжной зонт
ТП 810-1-12.86 ОВН7 Рамка под калорифер
ТП 810-1-12.86 ОВН8 Решетка вентиляционная
ТП 810-1-12.86 ОВН9 Решетка воздухоприточная
ТП 810-1-12.86 ОВН10 Конструкция теплоизоляционная
ТП 810-1-12.86 ОВН11 Конструкция теплоизоляционная (для воздуховодов)
ТП 810-1-12.86 ТМ-1 Общие данные
ТП 810-1-12.86 ТМ-2 План оборудования. Сечение В-В
ТП 810-1-12.86 ТМ-3 План трубопроводов
ТП 810-1-12.86 ТМ-4 Разрезы 1-1;2-2;3-3
ТП 810-1-12.86 ТМ-5 Разрезы 4-4;5-5. Сечение 2-2
ТП 810-1-12.86 ТМ-6 Разрезы 6-6;7-7;8-8. Сечение а-а;б-б
ТП 810-1-12.86 ТМ-7 Тепловой пункт. Принципиальная схема трубопроводов
ТП 810-1-12.86 ТМ-8 Схемы пропорционального регулирования
ТП 810-1-12.86 ТМ-9 План магистральных трубопроводов в коридоре
ТП 810-1-12.86 ТМ-10 Схема магистральных трубопроводов в коридоре
ТП 810-1-12.86 ТМН-1 Коллектор распределительный подающий ø480х6.0
ТП 810-1-12.86 ТМН-2 Коллектор распределительный обратный ø480х6.0
ТП 810-1-12.86 ТМН-3 Узел крепления прибора РД-3а
ТП 810-1-12.86 ТМН-4 Площадка передвижная
ТП 810-1-12.86 ТМН-5 Конструкции тепловой изоляции трубопроводов
Разработан: Гипронисельпром Минплодоовощхоза СССР
Утверждён:16.11.1984 Минплодоовощхоз СССР (03-7-52/6210)
Расположен в:Техническая документация Строительство Справочные документы Типовые строительные конструкции, изделия и узлы Общероссийский строительный каталог Сельскохозяйственные предприятия, здания и сооружения Тепличные комбинаты, теплицы и парники Тепличные комбинаты и теплицы
Типовой проект 810-1-12.86Типовой проект 810-1-12.86Типовой проект 810-1-12.86Типовой проект 810-1-12.86Типовой проект 810-1-12.86Типовой проект 810-1-12.86Типовой проект 810-1-12.86Типовой проект 810-1-12.86Типовой проект 810-1-12.86Типовой проект 810-1-12.86Типовой проект 810-1-12.86Типовой проект 810-1-12.86Типовой проект 810-1-12.86Типовой проект 810-1-12.86Типовой проект 810-1-12.86Типовой проект 810-1-12.86Типовой проект 810-1-12.86Типовой проект 810-1-12.86Типовой проект 810-1-12.86Типовой проект 810-1-12.86Типовой проект 810-1-12.86Типовой проект 810-1-12.86Типовой проект 810-1-12.86Типовой проект 810-1-12.86Типовой проект 810-1-12.86Типовой проект 810-1-12.86Типовой проект 810-1-12.86Типовой проект 810-1-12.86Типовой проект 810-1-12.86Типовой проект 810-1-12.86Типовой проект 810-1-12.86Типовой проект 810-1-12.86Типовой проект 810-1-12.86Типовой проект 810-1-12.86Типовой проект 810-1-12.86Типовой проект 810-1-12.86Типовой проект 810-1-12.86Типовой проект 810-1-12.86Типовой проект 810-1-12.86Типовой проект 810-1-12.86Типовой проект 810-1-12.86Типовой проект 810-1-12.86Типовой проект 810-1-12.86Типовой проект 810-1-12.86Типовой проект 810-1-12.86Типовой проект 810-1-12.86Типовой проект 810-1-12.86Типовой проект 810-1-12.86Типовой проект 810-1-12.86Типовой проект 810-1-12.86Типовой проект 810-1-12.86Типовой проект 810-1-12.86Типовой проект 810-1-12.86Типовой проект 810-1-12.86Типовой проект 810-1-12.86Типовой проект 810-1-12.86Типовой проект 810-1-12.86Типовой проект 810-1-12.86Типовой проект 810-1-12.86Типовой проект 810-1-12.86Типовой проект 810-1-12.86Типовой проект 810-1-12.86Типовой проект 810-1-12.86Типовой проект 810-1-12.86Типовой проект 810-1-12.86Типовой проект 810-1-12.86Типовой проект 810-1-12.86Типовой проект 810-1-12.86Типовой проект 810-1-12.86

© 2013 Ёшкин Кот :-) Карта сайта