Информационная система
«Ёшкин Кот»

Скачать базу одним архивом
Скачать обновления
История создания базы
Карта сайта

Скачать Шифр М8.5/08 Выпуск 1. Перегородки на стальном каркасе. Материалы для проектирования и рабочие чертежи узлов

Дата актуализации: 10.08.2017

Шифр М8.5/08

Выпуск 1. Перегородки на стальном каркасе. Материалы для проектирования и рабочие чертежи узлов

Обозначение: Шифр М8.5/08
Обозначение англ: М8.5/08
Статус:не определен законодательством
Название рус.:Выпуск 1. Перегородки на стальном каркасе. Материалы для проектирования и рабочие чертежи узлов
Дата добавления в базу:01.09.2013
Дата актуализации:05.05.2017
Дата введения:01.01.2008
Оглавление:М 8.5/08-1.ПЗ Пояснительная записка
М 8.5/08-1.ПЗ 1. Общие положения
М 8.5/08-1.ПЗ 2. Область применения
М 8.5/08-1.ПЗ 3. Типы перегородок
М 8.5/08-1.ПЗ 4. Основные элементы перегородок
М 8.5/08-1.ПЗ 4.1. Гипсокартонные листы
М 8.5/08-1.ПЗ 4.2. Гипсоволокнистые листы
М 8.5/08-1.ПЗ 4.3. Элементы стального каркаса
М 8.5/08-1.ПЗ 4.4. Тепло- и звукоизоляционные материалы URSA GLASS WOOL
М 8.5/08-1.ПЗ 4.5. Крепежные изделия
М 8.5/08-1.ПЗ 4.6. Уплотнители и шпаклевки
М 8.5/08-1.ПЗ 4.7. Расход основных материалов на 1 м глухой перегородки
М 8.5/08-1.ПЗ 5. Конструктивное решение перегородок
М 8.5/08-1.ПЗ 6. Устройство криволинейных участков
М 8.5/08-1.ПЗ 7. Особенности конструкции перегородок влажных помещений
М 8.5/08-1.ПЗ 8. Сопряжение перегородок с коммуникациями
М 8.5/08-1.ПЗ 9. Крепление навесного оборудования и различных предметов на перегородки
М 8.5/08-1.ПЗ 10. Отделка поверхности конструкции
М 8.5/08-1.ПЗ 11. Основные правила техники безопасности при производстве работ
М 8.5/08-1.ПЗ 12. Транспортирование и хранение материалов и изделий
М 8.5/08-1.ПЗ 13. Указания по монтажу и приемке конструкции
М 8.5/08-1.1 Перегородка ОС 101
М 8.5/08-1.2 Устройство дверных проемов. Раскладка листов
М 8.5/08-1.3 Перегородка ОС 202
М 8.5/08-1.4 Устройство криволинейных участков
М 8.5/08-1.5 Перегородка ДС 202
М 8.5/08-1.6 Перегородка ДСР 202
М 8.5/08-1.7 Комбинированные перегородки П1-С1 100 М50иП1-С1200М50
М 8.5/08-1.8 Комбинированные перегородки П2-С1 100 М50иП2-С1200М50
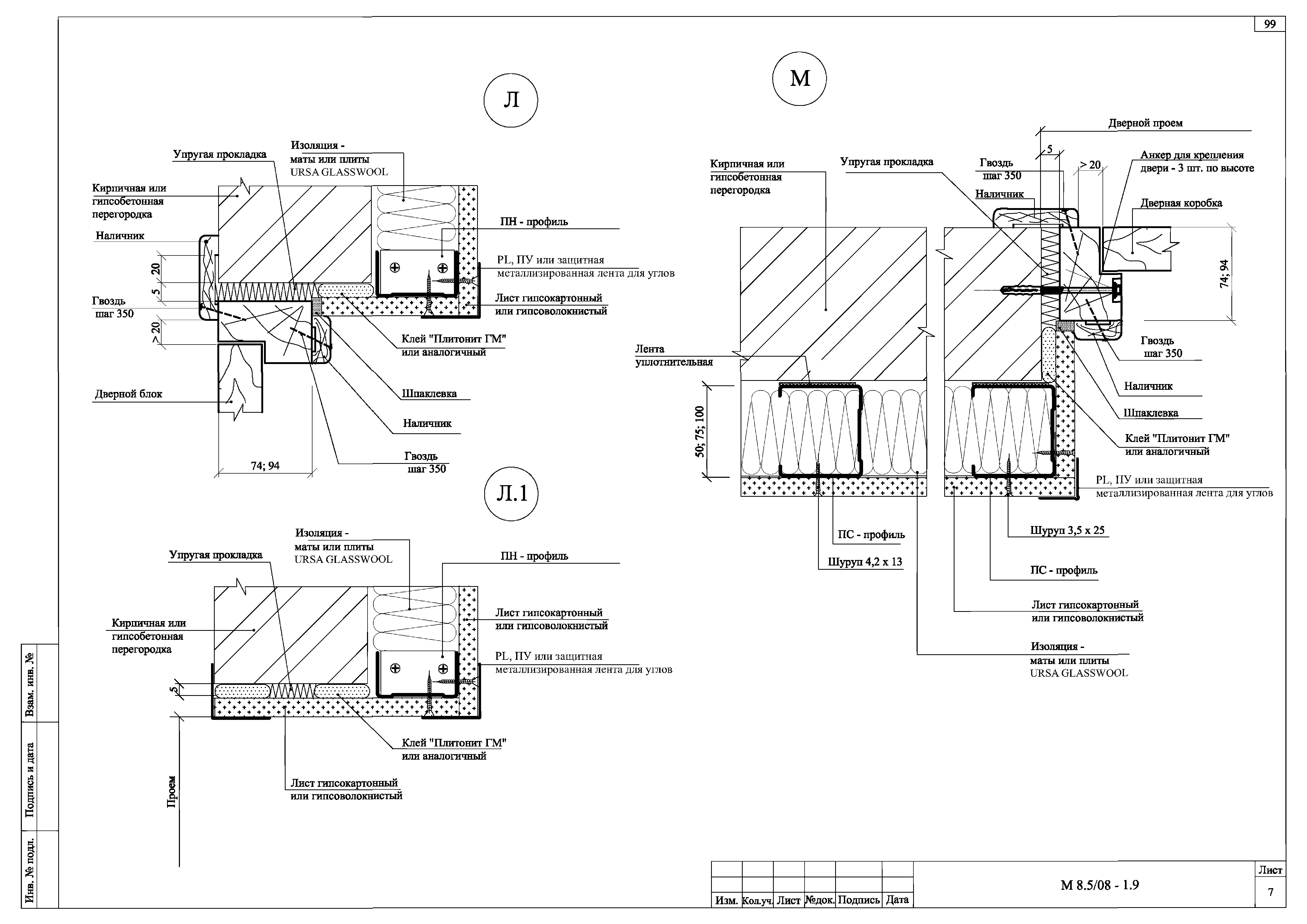
М 8.5/08-1.9 Комбинированные перегородки П1-С2 100 иП1-С2 200
М 8.5/08-1.10 Комбинированные перегородки П2-С2 100 и П2-С2 200
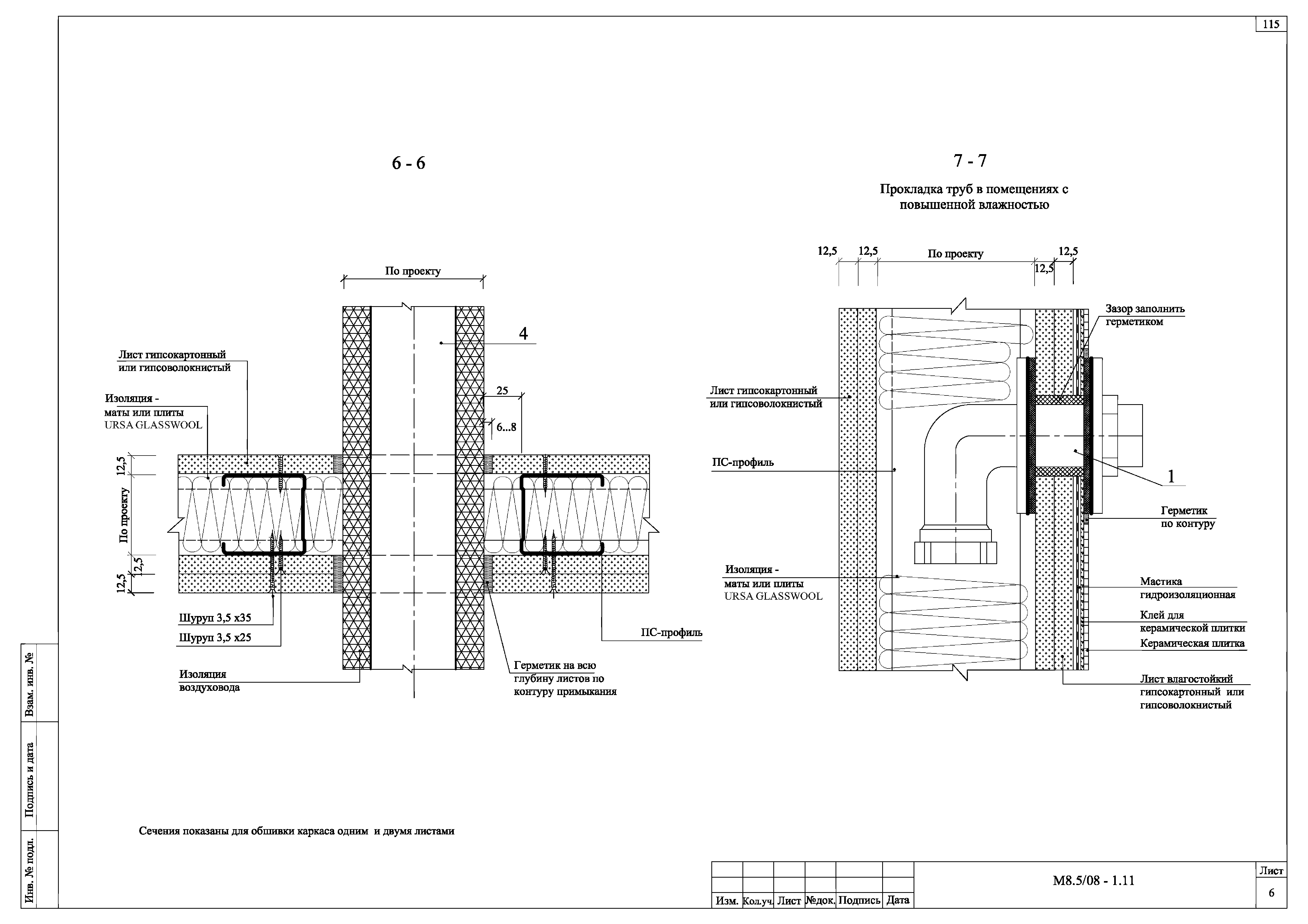
М 8.5/08-1.11 Размещение различного оборудования в перегородках
М 8.5/08-1.12 Спецификация стальных и крепежных элементов
Разработан: ОАО ЦНИИпромзданий
ОАО Урса Евразия
Утверждён:01.01.2008 ЦНИИ промзданий (TsNII promzdaniy )
Расположен в:Техническая документация Строительство Справочные документы Типовые строительные конструкции, изделия и узлы Разработанные другими министерствами, ведомствами и организациями
Шифр М8.5/08Шифр М8.5/08Шифр М8.5/08Шифр М8.5/08Шифр М8.5/08Шифр М8.5/08Шифр М8.5/08Шифр М8.5/08Шифр М8.5/08Шифр М8.5/08Шифр М8.5/08Шифр М8.5/08Шифр М8.5/08Шифр М8.5/08Шифр М8.5/08Шифр М8.5/08Шифр М8.5/08Шифр М8.5/08Шифр М8.5/08Шифр М8.5/08Шифр М8.5/08Шифр М8.5/08Шифр М8.5/08Шифр М8.5/08Шифр М8.5/08Шифр М8.5/08Шифр М8.5/08Шифр М8.5/08Шифр М8.5/08Шифр М8.5/08Шифр М8.5/08Шифр М8.5/08Шифр М8.5/08Шифр М8.5/08Шифр М8.5/08Шифр М8.5/08Шифр М8.5/08Шифр М8.5/08Шифр М8.5/08Шифр М8.5/08Шифр М8.5/08Шифр М8.5/08Шифр М8.5/08Шифр М8.5/08Шифр М8.5/08Шифр М8.5/08Шифр М8.5/08Шифр М8.5/08Шифр М8.5/08Шифр М8.5/08Шифр М8.5/08Шифр М8.5/08Шифр М8.5/08Шифр М8.5/08Шифр М8.5/08Шифр М8.5/08Шифр М8.5/08Шифр М8.5/08Шифр М8.5/08Шифр М8.5/08Шифр М8.5/08Шифр М8.5/08Шифр М8.5/08Шифр М8.5/08Шифр М8.5/08Шифр М8.5/08Шифр М8.5/08Шифр М8.5/08Шифр М8.5/08Шифр М8.5/08Шифр М8.5/08Шифр М8.5/08Шифр М8.5/08Шифр М8.5/08Шифр М8.5/08Шифр М8.5/08Шифр М8.5/08Шифр М8.5/08Шифр М8.5/08Шифр М8.5/08Шифр М8.5/08Шифр М8.5/08Шифр М8.5/08Шифр М8.5/08Шифр М8.5/08Шифр М8.5/08Шифр М8.5/08Шифр М8.5/08Шифр М8.5/08Шифр М8.5/08Шифр М8.5/08Шифр М8.5/08Шифр М8.5/08Шифр М8.5/08Шифр М8.5/08Шифр М8.5/08Шифр М8.5/08Шифр М8.5/08Шифр М8.5/08Шифр М8.5/08Шифр М8.5/08Шифр М8.5/08Шифр М8.5/08Шифр М8.5/08Шифр М8.5/08Шифр М8.5/08Шифр М8.5/08Шифр М8.5/08Шифр М8.5/08Шифр М8.5/08Шифр М8.5/08Шифр М8.5/08Шифр М8.5/08Шифр М8.5/08Шифр М8.5/08Шифр М8.5/08Шифр М8.5/08Шифр М8.5/08Шифр М8.5/08Шифр М8.5/08Шифр М8.5/08Шифр М8.5/08Шифр М8.5/08Шифр М8.5/08Шифр М8.5/08Шифр М8.5/08

© 2013 Ёшкин Кот :-) Карта сайта