Информационная система
«Ёшкин Кот»

Скачать базу одним архивом
Скачать обновления
История создания базы
Карта сайта

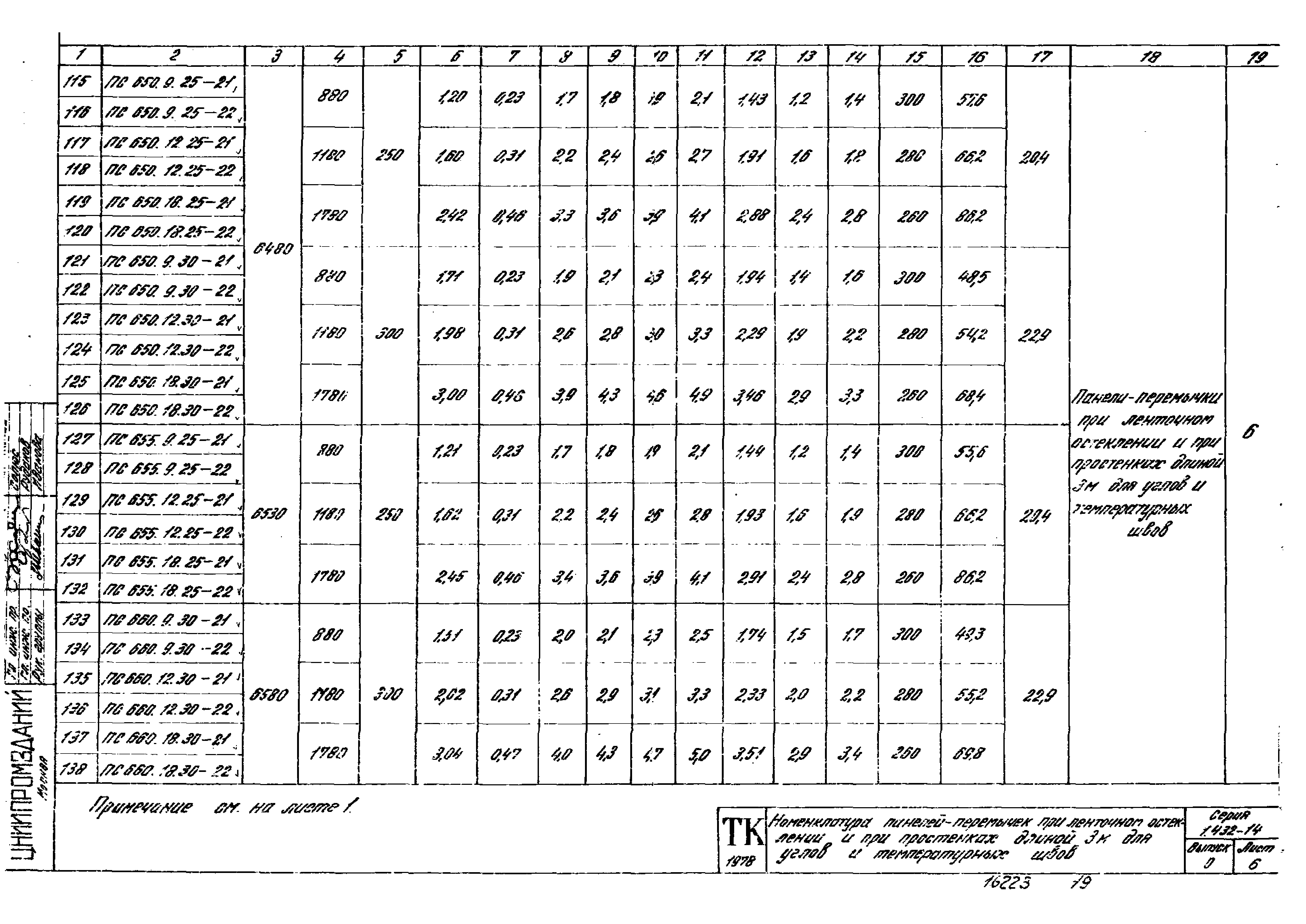
Скачать Серия 1.432-14 Выпуск 0. Материалы для проектирования

Дата актуализации: 10.08.2017

Серия 1.432-14

Выпуск 0. Материалы для проектирования

Обозначение: Серия 1.432-14
Обозначение англ: Series 1.432-14
Статус:заменен
Название рус.:Выпуск 0. Материалы для проектирования
Дата добавления в базу:01.09.2013
Дата актуализации:05.05.2017
Дата введения:01.03.1982
Область применения:В настоящей серии даны рабочие чертежи панелей стен отапливаемых одноэтажных и многоэтажных производственных зданий с шагом крайних колонн 6 м
Разработан: ЦНИИпромзданий
Уральский ПромстройНИИпроект
НИИЖБ
Утверждён:28.06.1979 Госстрой СССР (Государственный комитет Совета Министров СССР по делам строительства) (USSR Gosstroy 104)
Расположен в:Техническая документация Строительство Справочные документы Типовые строительные конструкции, изделия и узлы Общероссийский строительный каталог Строительные конструкции, изделия и узлы зданий и сооружений для всех видов строительства Конструкции, изделия и узлы зданий Ограждающие конструкции Стены наружные Панели (бетонные и железобетонные)
Чем заменён:
Нормативные ссылки:
Серия 1.432-14Серия 1.432-14Серия 1.432-14Серия 1.432-14Серия 1.432-14Серия 1.432-14Серия 1.432-14Серия 1.432-14Серия 1.432-14Серия 1.432-14Серия 1.432-14Серия 1.432-14Серия 1.432-14Серия 1.432-14Серия 1.432-14Серия 1.432-14Серия 1.432-14Серия 1.432-14Серия 1.432-14Серия 1.432-14Серия 1.432-14Серия 1.432-14Серия 1.432-14Серия 1.432-14Серия 1.432-14Серия 1.432-14Серия 1.432-14Серия 1.432-14Серия 1.432-14Серия 1.432-14Серия 1.432-14Серия 1.432-14Серия 1.432-14Серия 1.432-14Серия 1.432-14Серия 1.432-14Серия 1.432-14Серия 1.432-14Серия 1.432-14

© 2013 Ёшкин Кот :-) Карта сайта