Информационная система
«Ёшкин Кот»

Скачать базу одним архивом
Скачать обновления
История создания базы
Карта сайта

Скачать Типовой проект 416-6-37.90 Альбом 2. Строительные изделия

Дата актуализации: 10.08.2017

Типовой проект 416-6-37.90

Альбом 2. Строительные изделия

Обозначение: Типовой проект 416-6-37.90
Обозначение англ: 416-6-37.90
Статус:не определен законодательством
Название рус.:Альбом 2. Строительные изделия
Дата добавления в базу:01.09.2013
Дата актуализации:05.05.2017
Дата введения:21.11.1990
Оглавление:КЖИ-01 Колонна 1К33.2-1-а. Сборочный чертеж
КЖИ-02 Колонна 2К33.2-1-а. Сборочный чертеж
КЖИ-03 Колонна 1К33.2-1-б. Сборочный чертеж
КЖИ-04 Колонна 1К33.2-1-в, 1К33.2-1-г. Сборочный чертеж
КЖИ-05 Колонна 2К51.3-1-а, 2К51.3-1-в. Сборочный чертеж
КЖИ-06 Колонна 2К51.3-1-в. Сборочный чертеж
КЖИ-07 Колонна 1К51.3-2-а, 1К51.3-2-г. Сборочный чертеж
КЖИ-08 Колонна 1К51.3-2-б. Сборочный чертеж
КЖИ-09 Перемычка 4ПБ48-а. Сборочный чертеж
КЖИ-10 Балка 1БСТ6-1АIII-Т-а, 1БСТ6-3АIII-Т-а, 1БСТ6-1АIII-Т-б, 1БСТ6-3АIII-Т-б. Сборочный чертеж
КЖИ-11 Панель ПСД60.12.30-Т-а, ПСД60.12.30-Т-б. Сборочный чертеж
КЖИ-12 Панель ПСД60.12.30-Т-в. Сборочный чертеж
КЖИ-13 Панель ПСД12.12.30-Т-а, ПСД6.12.30-Т-а. Сборочный чертеж
КЖИ-14 Металлическая насадка НФ4-а. Сборочный чертеж
КЖИ-15 Металлическая насадка НФ4-б. Сборочный чертеж
КЖИ-16 Изделие соединительное МС12-а. Сборочный чертеж
КЖИ-17 Изделие закладное МН-3. Сборочный чертеж
КЖИ-18 Изделие закладное МН-1. Сборочный чертеж
КЖИ-19 Сетка С-5. Сборочный чертеж
КЖИ-20 Изделие закладное МН-2. Сборочный чертеж
КЖИ-21 Изделие закладное МН-4. Сборочный чертеж
КЖИ-22 Изделие закладное МН-5. Сборочный чертеж
КЖИ-23 Изделие закладное МН-6. Сборочный чертеж
КЖИ-24 Изделие закладное МН-7. Сборочный чертеж
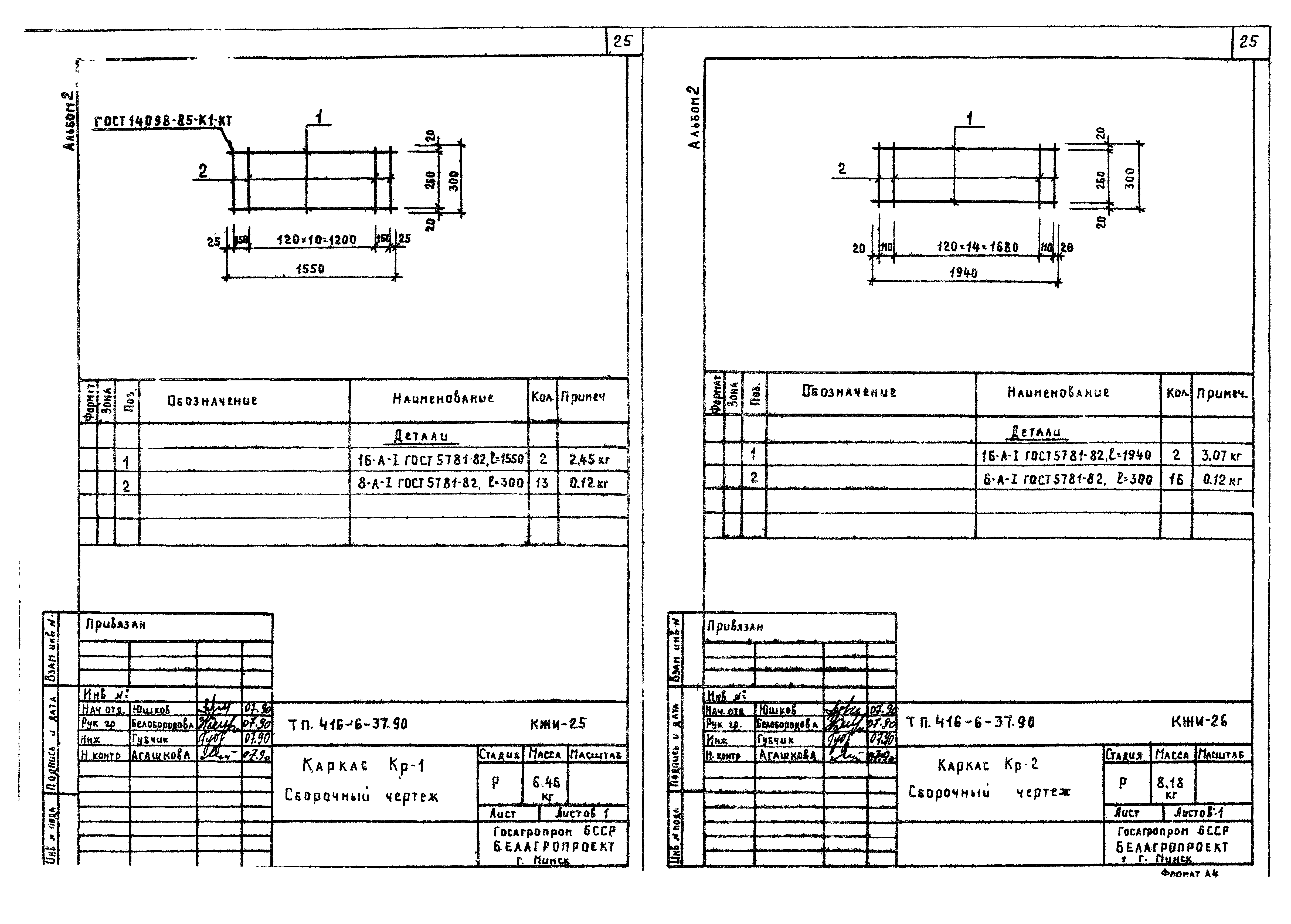
КЖИ-25 Каркас КР-1. Сборочный чертеж
КЖИ-26 Каркас КР-2. Сборочный чертеж
КЖИ-27 Сетка С-1. Сборочный чертеж
КЖИ-28 Сетка С-2. Сборочный чертеж
КЖИ-29 Сетка С-3. Сборочный чертеж
КЖИ-30 Сетка С-4. Сборочный чертеж
КЖИ-31 Анкер А-1. Сборочный чертеж
КЖИ-32 Подвеска П-1. Сборочный чертеж
КЖИ-33 Скоба подвески СП-1. Сборочный чертеж
КЖИ-34 Наездник Н-1. Сборочный чертеж
КЖИ-35 Соединительная накладка СН-1. Сборочный чертеж
КЖИ-36 Шпонка Ш-1. Сборочный чертеж
Разработан: Белагропроект
Утверждён:19.11.1990 Госагропром БССР (41-КС)
Расположен в:Техническая документация Строительство Справочные документы Типовые строительные конструкции, изделия и узлы Общероссийский строительный каталог Промышленные предприятия, здания и сооружения Предприятия, здания и сооружения промышленности и электроэнергетики Ремонтные предприятия. Административно-бытовые, производственные и вспомогательные здания и сооружения промышленных предприятий Депо пожарные, пункты и вышки наблюдательные Сельскохозяйственные предприятия, здания и сооружения Разные сельскохозяйственные здания и сооружения Пожарные депо
Типовой проект 416-6-37.90Типовой проект 416-6-37.90Типовой проект 416-6-37.90Типовой проект 416-6-37.90Типовой проект 416-6-37.90Типовой проект 416-6-37.90Типовой проект 416-6-37.90Типовой проект 416-6-37.90Типовой проект 416-6-37.90Типовой проект 416-6-37.90Типовой проект 416-6-37.90Типовой проект 416-6-37.90Типовой проект 416-6-37.90Типовой проект 416-6-37.90Типовой проект 416-6-37.90Типовой проект 416-6-37.90Типовой проект 416-6-37.90Типовой проект 416-6-37.90Типовой проект 416-6-37.90Типовой проект 416-6-37.90Типовой проект 416-6-37.90Типовой проект 416-6-37.90Типовой проект 416-6-37.90Типовой проект 416-6-37.90Типовой проект 416-6-37.90Типовой проект 416-6-37.90Типовой проект 416-6-37.90Типовой проект 416-6-37.90Типовой проект 416-6-37.90Типовой проект 416-6-37.90Типовой проект 416-6-37.90Типовой проект 416-6-37.90

© 2013 Ёшкин Кот :-) Карта сайта