Информационная система
«Ёшкин Кот»

Скачать базу одним архивом
Скачать обновления
История создания базы
Карта сайта

Скачать Типовой проект 407-3-499.13.88 Альбом III. Часть I. Изделия заводского изготовления. Железобетонные изделия

Дата актуализации: 10.08.2017

Типовой проект 407-3-499.13.88

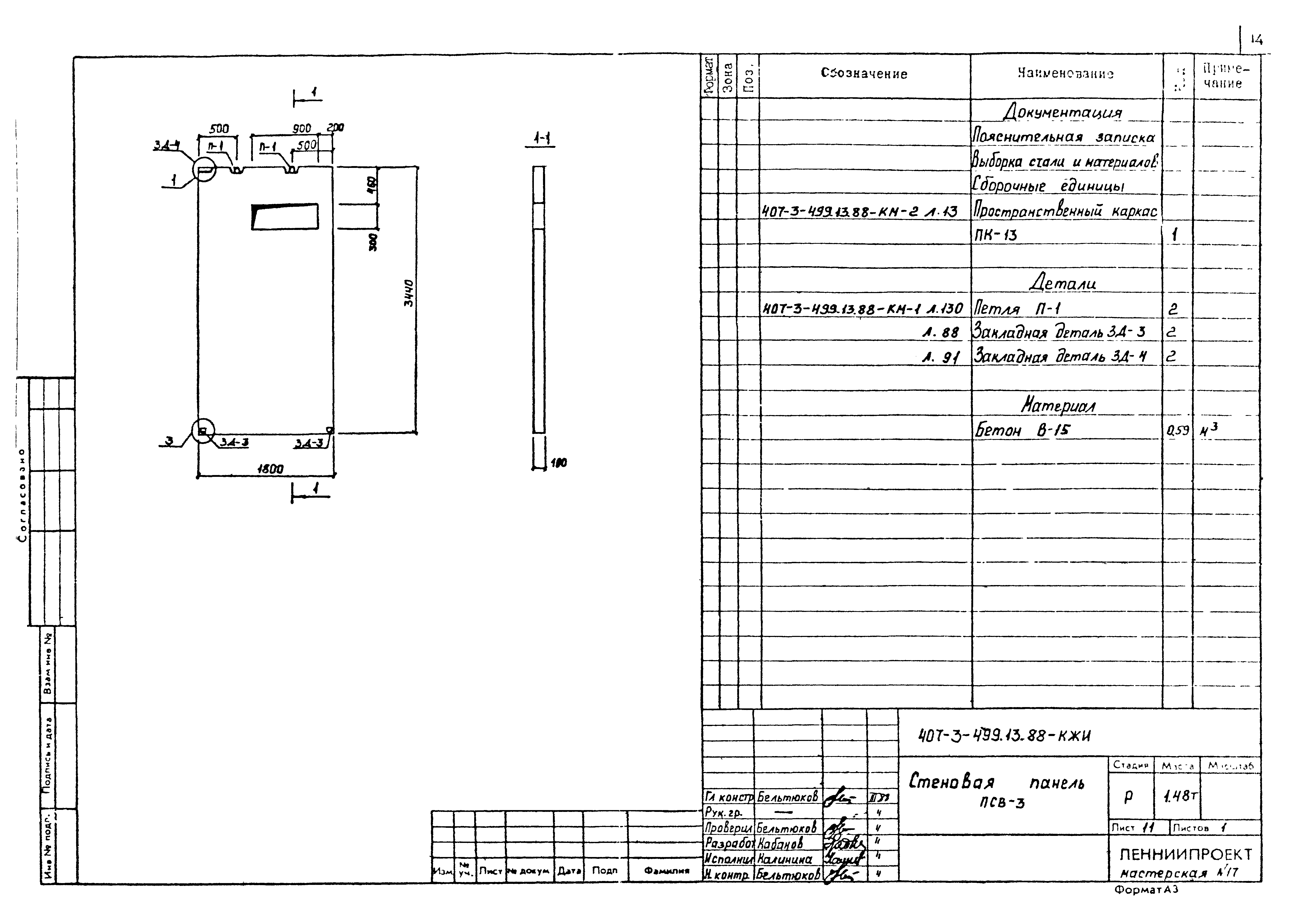
Альбом III. Часть I. Изделия заводского изготовления. Железобетонные изделия

Обозначение: Типовой проект 407-3-499.13.88
Обозначение англ: 407-3-499.13.88
Статус:не определен законодательством
Название рус.:Альбом III. Часть I. Изделия заводского изготовления. Железобетонные изделия
Дата добавления в базу:01.09.2013
Дата актуализации:05.05.2017
Дата введения:06.07.1988
Оглавление:Обложка
Титульный лист
Содержание альбома
Пояснительная записка
Плита перекрытия ПЛ-1
Плита перекрытия ПЛ-2
Плита перекрытия ПЛ-3
Плита перекрытия ПЛ-4
Цокольная панель ПСЦ-1
Цокольная панель ПСЦ-2
Цокольные панели ПСЦ-3л, ПСЦ-3п
Цокольная панель ПСЦ-4
Стеновая панель ПСВ-1
Стеновая панель ПСВ-2
Стеновая панель ПСВ-3
Стеновая панель ПСН-1
Стеновые панели ПСН-2л, ПСН-2п
Стеновые панели ПСН-3л, ПСН-3п
Стеновая панель ПСН-4
Стеновая панель ПСН-5
Стеновая панель ПСН-6
Плиты кровли ПК-1, ПК-1а
Детали 1-12
Детали 13-15
Разработан: Ленниипроект
Утверждён:06.07.1988 Ленниипроект (351)
Расположен в:Техническая документация Строительство Справочные документы Типовые строительные конструкции, изделия и узлы Общероссийский строительный каталог Промышленные предприятия, здания и сооружения Предприятия, здания и сооружения промышленности и электроэнергетики Электроэнергетика Устройства и подстанции распределительные
Типовой проект 407-3-499.13.88Типовой проект 407-3-499.13.88Типовой проект 407-3-499.13.88Типовой проект 407-3-499.13.88Типовой проект 407-3-499.13.88Типовой проект 407-3-499.13.88Типовой проект 407-3-499.13.88Типовой проект 407-3-499.13.88Типовой проект 407-3-499.13.88Типовой проект 407-3-499.13.88Типовой проект 407-3-499.13.88Типовой проект 407-3-499.13.88Типовой проект 407-3-499.13.88Типовой проект 407-3-499.13.88Типовой проект 407-3-499.13.88Типовой проект 407-3-499.13.88Типовой проект 407-3-499.13.88Типовой проект 407-3-499.13.88Типовой проект 407-3-499.13.88Типовой проект 407-3-499.13.88Типовой проект 407-3-499.13.88Типовой проект 407-3-499.13.88Типовой проект 407-3-499.13.88Типовой проект 407-3-499.13.88

© 2013 Ёшкин Кот :-) Карта сайта