Информационная система
«Ёшкин Кот»

Скачать базу одним архивом
Скачать обновления
История создания базы
Карта сайта

Скачать Типовой проект 407-3-16 Альбом 15. Общие материалы. Строительная часть

Дата актуализации: 10.08.2017

Типовой проект 407-3-16

Альбом 15. Общие материалы. Строительная часть

Обозначение: Типовой проект 407-3-16
Обозначение англ: 407-3-16
Статус:не действует
Название рус.:Альбом 15. Общие материалы. Строительная часть
Дата добавления в базу:01.09.2013
Дата актуализации:05.05.2017
Оглавление:Содержание альбома
Перечень альбомов строительной части. Пояснительная записка
АС-1 Детали с 1 по 10
АС-2 Ворота В-1; монтажная схема и монтажные детали. Полотно П-1. Рама ворот РВ-1. Детали
АС-3 Детали установки приборов ворот В-1; детали навески ворот. Шпингалет нижний ШН; петля подгибная ПП. Защелка пружинная ЗП. Пробой Т-90
АС-4 Двери Д-1; Д-2; Д-3. Детали 21-27. Щеколда фалевая ЩФ. Уголок защитный У-2. Жалюзийная решетка ВЖ-5
АС-5 Стальные жалюзи ВЖ-1; ВЖ-2; ВЖ-3; ВЖ-4
АС-6 Утепленные клапаны УК-1; УК-2; УК-3; УК-4; УК-5; УК-6; УК-7; УК-8
АС-10 Элемент плана №1; разрезы 1-1; 2-2; 3-3; 4-4. Узел "А"
АС-11 Элемент плана №2; разрезы 1-1; 2-2; 3-3; 4-4. Спецификации
АС-12 Элемент плана №3; разрезы 1-1; 2-2; 3-3; 4-4. Спецификации
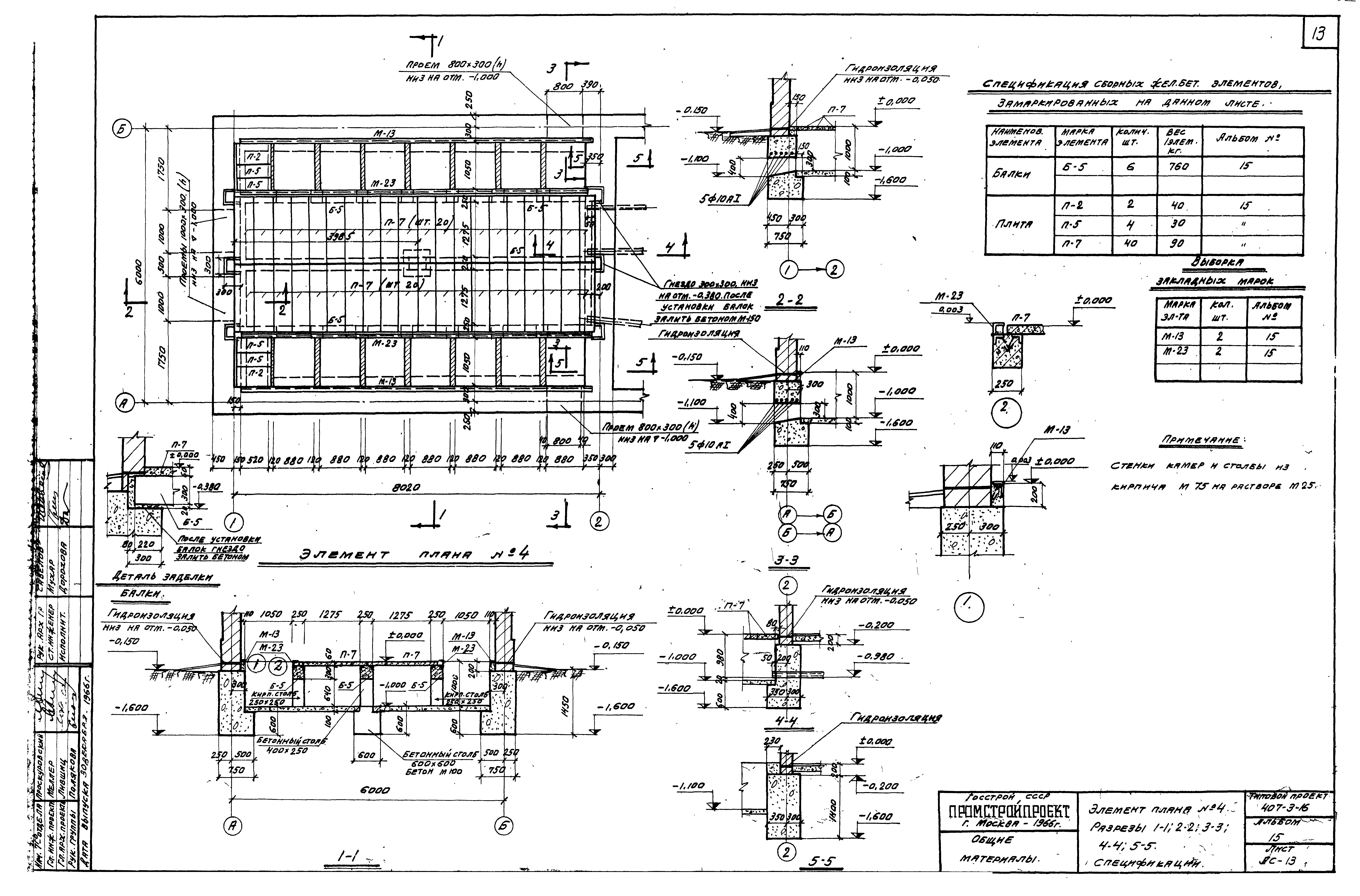
АС-13 Элемент плана №4; разрезы 1-1; 2-2; 3-3; 4-4; 5-5. Спецификации
АС-14 Элемент плана №6; разрезы 1-1; 2-2; 3-3. Узел "А"
АС-15 Элемент плана №7; разрезы 1-1; 2-2; 3-3; 4-4; 5-5. Спецификации
АС-16 Элемент плана №8; разрезы 1-1; 2-2; 3-3; 4-4; 5-5; 6-6. Спецификации
АС-17 Элемент плана №9; разрезы 1-1; 2-2; 3-3; 4-4; 5-5; 6-6; 7-7. Спецификации
АС-18 Балки Б-1 и Б-2
АС-19 Балки Б-3; Б-4; Б-5
АС-20 Плиты П-1; П-2; П-3; П-4
АС-21 Плиты П-5; П-6; П-7; П-8
АС-22 Плита (ПНС-4А (Д-70))/(3*6) и перемычка БП2-3А
АС-23 Закладные марки с М-1 по М-9
АС-24 Закладные марки с М-10 по М-20
АС-25 Закладные марки с М-21 по М-27
АС-26 Закладные марки с М-28 по М-34
АС-27 Стальные решетки Р-1; Р-2; Р-3; Р-4; Р-5; Р-6
АС-28 Стальные решетки Р-7; Р-8; Р-9; Р-10
АС-29 Щиты Щ-1; Щ-3; Щ-6; Щ-7; Щ-11
ОВ-1 ВС-1 Установка осевого вентилятора в стене. Откидная дверка (утепленная)
ОВ-2 Ш-1 и Ш-2 Поддоны к вытяжным шахтам d=495 и d=595
Разработан: Промстройпроект
Утверждён:24.02.1967 Тяжпромэлектропроект (35)
Расположен в:Техническая документация Строительство Справочные документы Типовые строительные конструкции, изделия и узлы Общероссийский строительный каталог Промышленные предприятия, здания и сооружения Предприятия, здания и сооружения промышленности и электроэнергетики Электроэнергетика Устройства и подстанции распределительные
Типовой проект 407-3-16Типовой проект 407-3-16Типовой проект 407-3-16Типовой проект 407-3-16Типовой проект 407-3-16Типовой проект 407-3-16Типовой проект 407-3-16Типовой проект 407-3-16Типовой проект 407-3-16Типовой проект 407-3-16Типовой проект 407-3-16Типовой проект 407-3-16Типовой проект 407-3-16Типовой проект 407-3-16Типовой проект 407-3-16Типовой проект 407-3-16Типовой проект 407-3-16Типовой проект 407-3-16Типовой проект 407-3-16Типовой проект 407-3-16Типовой проект 407-3-16Типовой проект 407-3-16Типовой проект 407-3-16Типовой проект 407-3-16Типовой проект 407-3-16Типовой проект 407-3-16Типовой проект 407-3-16Типовой проект 407-3-16Типовой проект 407-3-16Типовой проект 407-3-16Типовой проект 407-3-16Типовой проект 407-3-16

© 2013 Ёшкин Кот :-) Карта сайта