Скачать Типовой проект 407-3-13 Альбом 3. Комплектная трансформаторная подстанция мощностью 320 кВА Армянского электромашиностроительного завода (отдельностоящая, встроенная, внутрицеховая). Электрическая частьДата актуализации: 10.08.2017 Типовой проект 407-3-13
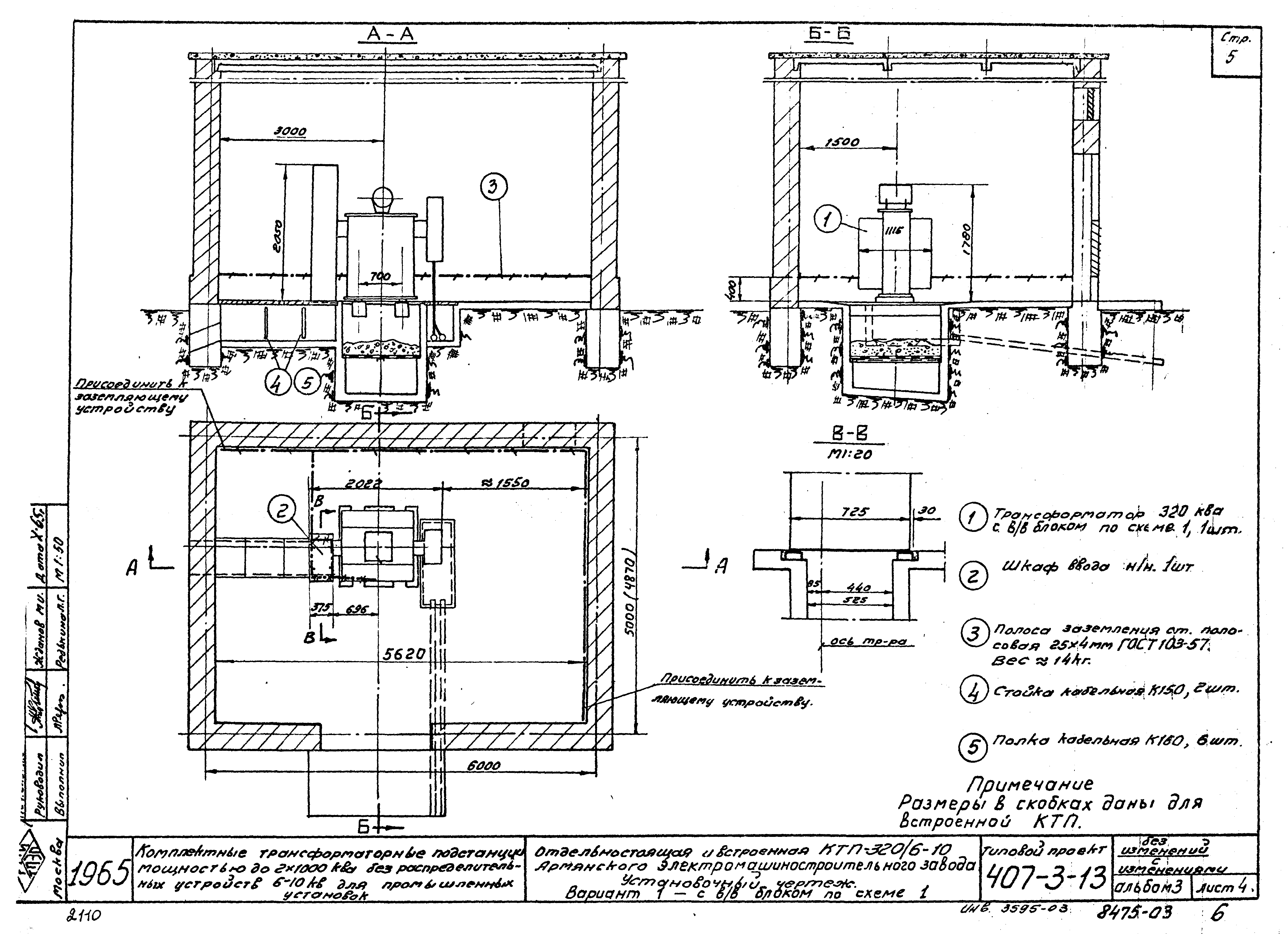
Альбом 3. Комплектная трансформаторная подстанция мощностью 320 кВА Армянского электромашиностроительного завода (отдельностоящая, встроенная, внутрицеховая). Электрическая частьОбозначение: | Типовой проект 407-3-13 | Обозначение англ: | 407-3-13 | Статус: | не действует | Название рус.: | Альбом 3. Комплектная трансформаторная подстанция мощностью 320 кВА Армянского электромашиностроительного завода (отдельностоящая, встроенная, внутрицеховая). Электрическая часть | Дата добавления в базу: | 01.09.2013 | Дата актуализации: | 05.05.2017 | Оглавление: | Содержание альбома № 3 Общие чертежи для отдельностоящей, встроенной и внутрицеховой подстанций Принципиальная однолинейная схема Спецификация подстанционного электрооборудования Чертежи для отдельностоящей и встроенной подстанций Установочный чертеж Электрическое освещение Спецификация электрооборудования и материалов для электрического освещения Чертежи для внутрицеховой подстанции Установочный чертеж Сметы | Разработан: | Тяжпромэлектропроект
| Утверждён: | 30.11.1965 Тяжпромэлектропроект (1426)
| Расположен в: |
|
                            
|