Информационная система
«Ёшкин Кот»

Скачать базу одним архивом
Скачать обновления
История создания базы
Карта сайта

Скачать Типовой проект 407-3-530.13.89 Альбом II. Архитектурно-строительная часть проекта

Дата актуализации: 10.08.2017

Типовой проект 407-3-530.13.89

Альбом II. Архитектурно-строительная часть проекта

Обозначение: Типовой проект 407-3-530.13.89
Обозначение англ: 407-3-530.13.89
Статус:не определен законодательством
Название рус.:Альбом II. Архитектурно-строительная часть проекта
Дата добавления в базу:01.09.2013
Дата актуализации:05.05.2017
Дата введения:01.01.1988
Оглавление:Обложка
Титульный лист
1-4 Общие данные
5 План на отм. -1.45. Спецификация
6 План на отм. 0.000. Спецификация
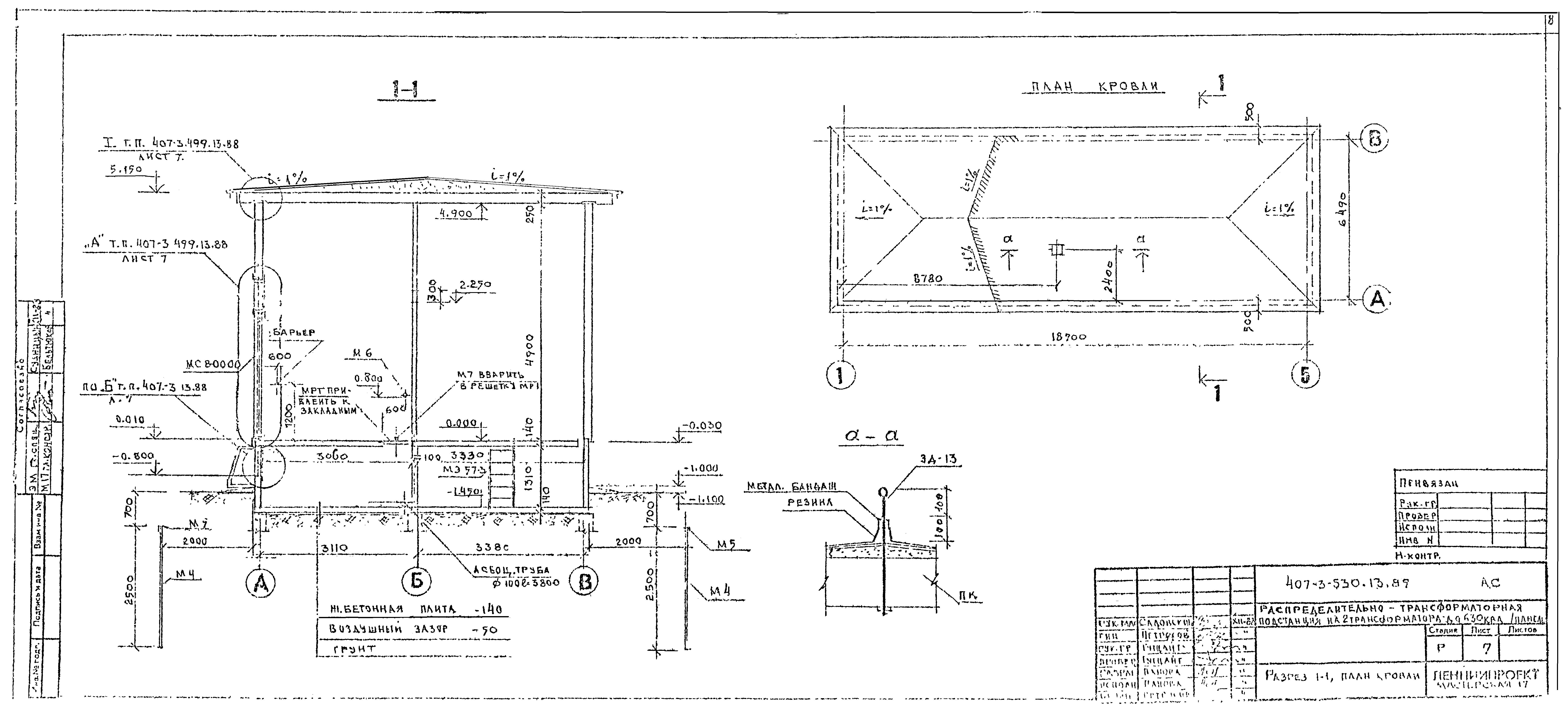
7 Разрез 1-1. План кровли
8 Разрез 2-2
9 Фасады по осям "А", "В", "1", "5"
10 Схема расположения фундаментов
11 Схема расположения плит перекрытия на отм. -1.45
12 Схема расположения цокольных панелей
13 Схема расположения плит перекрытия на отм. 0.000
14 Схема расположения стеновых панелей
15 Схема расположения плит перекрытия
16 Спецификация металлических монтажных деталей. Разрез А-А
17 Спецификация сборных железобетонных элементов
18 Монтажные узлы 22-28
Разработан: Ленниипроект
Утверждён:01.01.1988 Ленниипроект
Расположен в:Техническая документация Строительство Справочные документы Типовые строительные конструкции, изделия и узлы Общероссийский строительный каталог Промышленные предприятия, здания и сооружения Предприятия, здания и сооружения промышленности и электроэнергетики Электроэнергетика Устройства и подстанции распределительные
Типовой проект 407-3-530.13.89Типовой проект 407-3-530.13.89Типовой проект 407-3-530.13.89Типовой проект 407-3-530.13.89Типовой проект 407-3-530.13.89Типовой проект 407-3-530.13.89Типовой проект 407-3-530.13.89Типовой проект 407-3-530.13.89Типовой проект 407-3-530.13.89Типовой проект 407-3-530.13.89Типовой проект 407-3-530.13.89Типовой проект 407-3-530.13.89Типовой проект 407-3-530.13.89Типовой проект 407-3-530.13.89Типовой проект 407-3-530.13.89Типовой проект 407-3-530.13.89Типовой проект 407-3-530.13.89Типовой проект 407-3-530.13.89Типовой проект 407-3-530.13.89Типовой проект 407-3-530.13.89

© 2013 Ёшкин Кот :-) Карта сайта