Информационная система
«Ёшкин Кот»

Скачать базу одним архивом
Скачать обновления
История создания базы
Карта сайта

Скачать Типовой проект 901-1-91.88 Альбом III. Архитектурно-строительные решения (подземная часть), указания по производству строительных работ

Дата актуализации: 10.08.2017

Типовой проект 901-1-91.88

Альбом III. Архитектурно-строительные решения (подземная часть), указания по производству строительных работ

Обозначение: Типовой проект 901-1-91.88
Обозначение англ: 901-1-91.88
Статус:не определен законодательством
Название рус.:Альбом III. Архитектурно-строительные решения (подземная часть), указания по производству строительных работ
Дата добавления в базу:01.09.2013
Дата актуализации:05.05.2017
Дата введения:05.07.1988
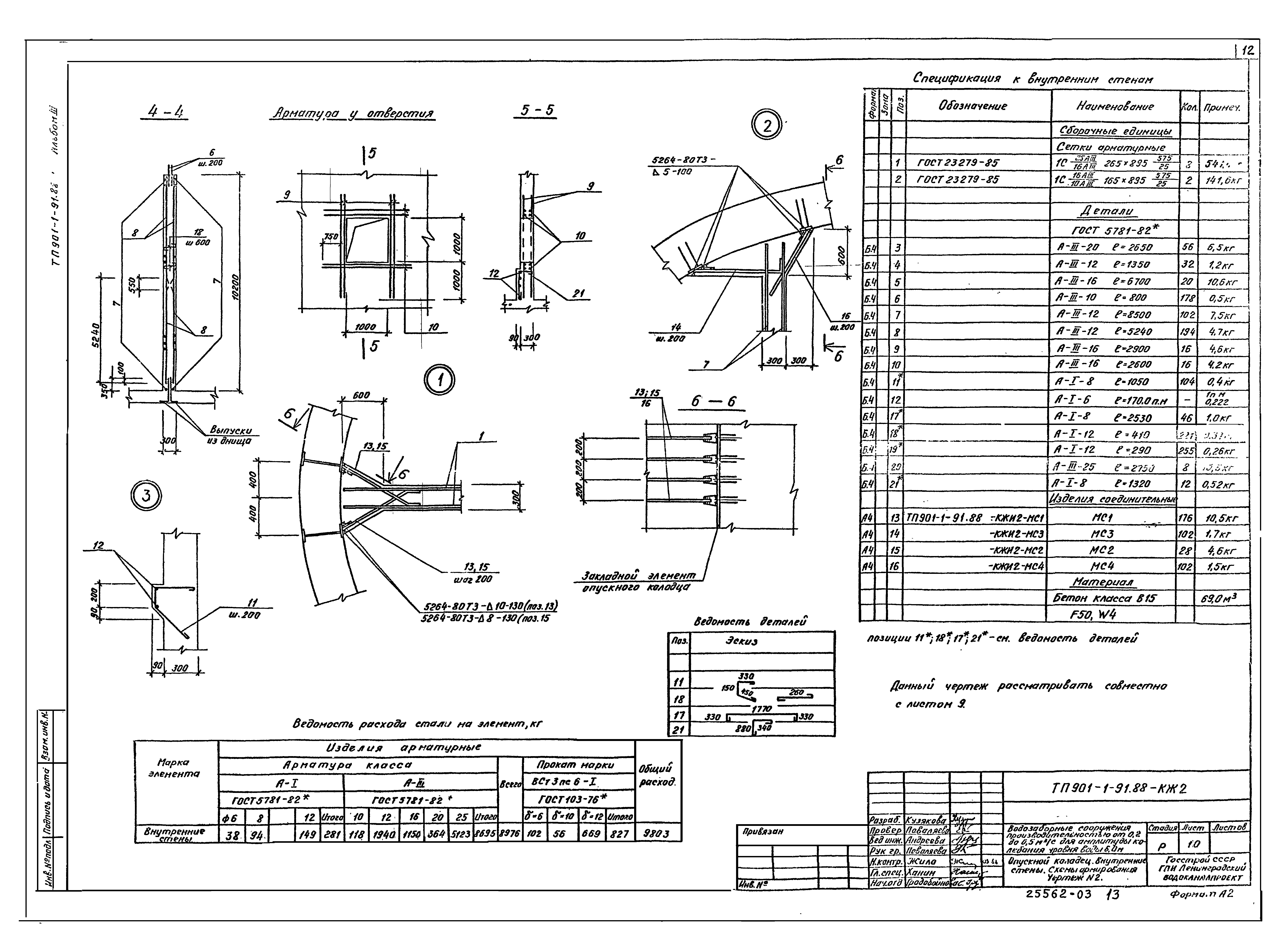
Оглавление:Конструкции железобетонные - КЖ2
1 Общие данные (начало)
2 Общие данные (окончание)
3 Опускной колодец
4 Опускной колодец. Схема армирования. Чертеж №1
5 Опускной колодец. Схема армирования. Чертеж №2
6 Опускной колодец. Днище
7 Опускной колодец. Днище. Схемы армирования
8 Опускной колодец. Внутренние стены
9 Опускной колодец. Внутренние стены. Схемы армирования. Чертеж №1
10 Опускной колодец. Внутренние стены. Схемы армирования. Чертеж №2
11 Форшахта
Конструкции железобетонные - КМ2
1 Общие данные. Ведомость металлоконструкций по видам профилей
2 Техническая спецификация стали
3 Схема расположения лестниц, площадок и опор под трубы
4 Схема расположения лестниц, площадок и опор под трубы. Узлы
5 Схема расположения направляющих балок для крепления насосов
Организация строительства - ОС
1 Общие данные (начало)
2 Общие данные (продолжение)
3 Общие данные (окончание)
4 Схемы производства работ. I этап
5 Схемы производства работ. II и III этапы
6 Схема производства свайных работ
7 Схемы производства монтажных работ. Надземная часть
8 График производства работ
Разработан: Ленинградский Водоканалпроект
Утверждён:06.04.1988 Госстрой СССР (Государственный комитет Совета Министров СССР по делам строительства) (USSR Gosstroy 25)
Расположен в:Техническая документация Строительство Справочные документы Типовые строительные конструкции, изделия и узлы Общероссийский строительный каталог Промышленные предприятия, здания и сооружения Здания и сооружения санитарно-технические Водоснабжение Водозаборные сооружения
Заменяет собой:
Типовой проект 901-1-91.88Типовой проект 901-1-91.88Типовой проект 901-1-91.88Типовой проект 901-1-91.88Типовой проект 901-1-91.88Типовой проект 901-1-91.88Типовой проект 901-1-91.88Типовой проект 901-1-91.88Типовой проект 901-1-91.88Типовой проект 901-1-91.88Типовой проект 901-1-91.88Типовой проект 901-1-91.88Типовой проект 901-1-91.88Типовой проект 901-1-91.88Типовой проект 901-1-91.88Типовой проект 901-1-91.88Типовой проект 901-1-91.88Типовой проект 901-1-91.88Типовой проект 901-1-91.88Типовой проект 901-1-91.88Типовой проект 901-1-91.88Типовой проект 901-1-91.88Типовой проект 901-1-91.88Типовой проект 901-1-91.88Типовой проект 901-1-91.88Типовой проект 901-1-91.88Типовой проект 901-1-91.88

© 2013 Ёшкин Кот :-) Карта сайта