Информационная система
«Ёшкин Кот»

Скачать базу одним архивом
Скачать обновления
История создания базы
Карта сайта

Скачать Шифр А26-94 Прокладка кабелей и проводов на лотках. Материалы для проектирования и рабочие чертежи

Дата актуализации: 10.08.2017

Шифр А26-94

Прокладка кабелей и проводов на лотках. Материалы для проектирования и рабочие чертежи

Обозначение: Шифр А26-94
Обозначение англ: А26-94
Статус:cправочные материалы, мп, тпр
Название рус.:Прокладка кабелей и проводов на лотках. Материалы для проектирования и рабочие чертежи
Дата добавления в базу:01.09.2013
Дата актуализации:05.05.2017
Дата введения:15.01.1995
Область применения:В альбоме А26-94 представлены чертежи установки лотков типа НЛ для прокладки кабелей: под перекрытием, вертикально, по стене, в производственных эл. помещениях и кабельных сооружениях и даны рекомендации по способам прокладки кабелей на лотках
Оглавление:Титульный лист
А26-94 Содержание
А26-94-01 ПЗ Пояснительная записка
А26-94-02 Секция прямая НЛ5, НЛ10. Габаритный чертеж
А26-94-03 Секция прямая НЛ10, НЛ40. Габаритный чертеж
А26-94-04 Секция угловая НЛУ45, НЛУ95. Габаритный чертеж
А26-94-05 Соединитель переходный НЛ-СП. Соединитель шарнирный НЛ-СШ. Подвеска НЛ-ПВ. Держатель НЛ-Д. Прижим НЛ-ПР. Габаритные чертежи
А26-94-06 Прокладка лотков. Пример
А26-94-07 Прокладка кабелей и проводов. Пример
А26-94-08 Прокладка лотков горизонтально по стене. Пример
А26-94-09 Прокладка лотков вертикально по стене. Вариант 1; 2
А26-94-10 Прокладка лотков при обходе препятствия
А26-94-11 Вертикальное ответвление лотков
А26-94-12 Прокладка лотков при подводе кабелей к щиту ЩСУ сверху
А26-94-13 Прокладка лотков между колоннами с шагом 6 м. Пример
А26-94-14 Прокладка кабелей на лотках, установленных на стойках. Пример
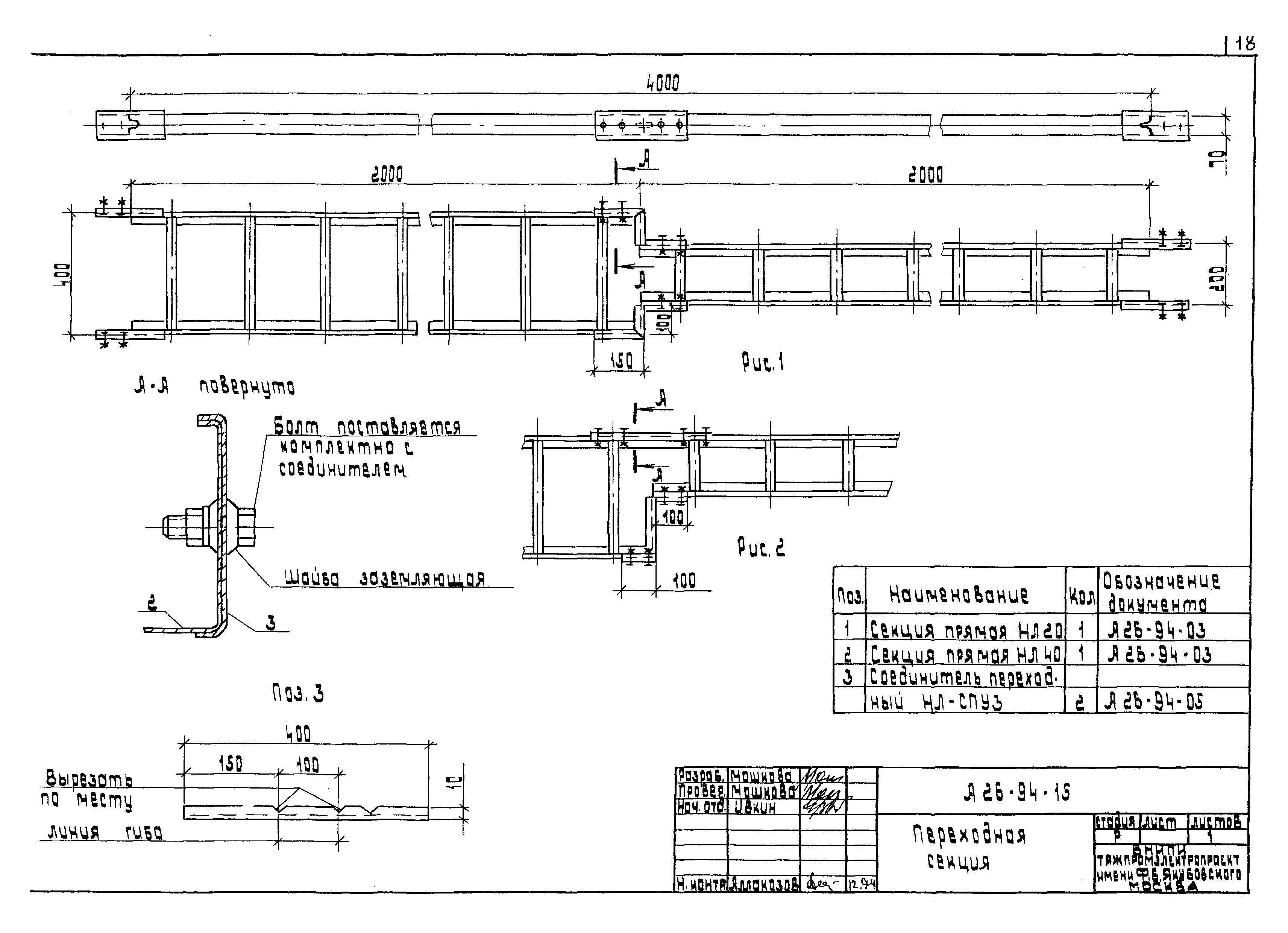
А26-94-15 Переходная секция
А26-94-16 Конструкция для горизонтальной прокладки лотков. Тип 1
А26-94-17 Конструкция для горизонтальной прокладки лотков. Тип 2
А26-94-18 Конструкция для вертикальной прокладки лотков
А26-94-19 Конструкция для крепления лотков к раме ЩСУ
А26-94-20 Кронштейн с одной полкой 250 мм
А26-94-21 Кронштейн с двумя полками 250 мм
А26-94-22 Кронштейн с одной полкой 430 мм
А26-94-23 Кронштейн с двумя полками 430 мм
А26-94-24 Обхват
А26-94-25 Заземление и зануление сварных лотков, проложенных по стене
А26-94-26 Заземление и зануление сварных лотков, проложенных на стойках
Разработан: ВНИПИ Тяжпромэлектропроект им. Ф.Б. Якубовского
Утверждён:15.01.1995 ВНИПИ Тяжпромэлектропроект им. Ф.Б. Якубовского (F.B.Yakubovskiy Tyazhpromelektroproject VNIPI 1)
Расположен в:Техническая документация Строительство Справочные документы Типовые строительные конструкции, изделия и узлы Разработанные другими министерствами, ведомствами и организациями
Шифр А26-94Шифр А26-94Шифр А26-94Шифр А26-94Шифр А26-94Шифр А26-94Шифр А26-94Шифр А26-94Шифр А26-94Шифр А26-94Шифр А26-94Шифр А26-94Шифр А26-94Шифр А26-94Шифр А26-94Шифр А26-94Шифр А26-94Шифр А26-94Шифр А26-94Шифр А26-94Шифр А26-94Шифр А26-94Шифр А26-94Шифр А26-94Шифр А26-94Шифр А26-94Шифр А26-94Шифр А26-94Шифр А26-94

© 2013 Ёшкин Кот :-) Карта сайта