Скачать Шифр А2-96 Установка комплексных трансформаторных подстанций с масляными трансформаторами на 630 и 1000 кВА Хмельницкого завода трансформаторных подстанций. Материалы для проектирования и рабочие чертежиДата актуализации: 10.08.2017 Шифр А2-96
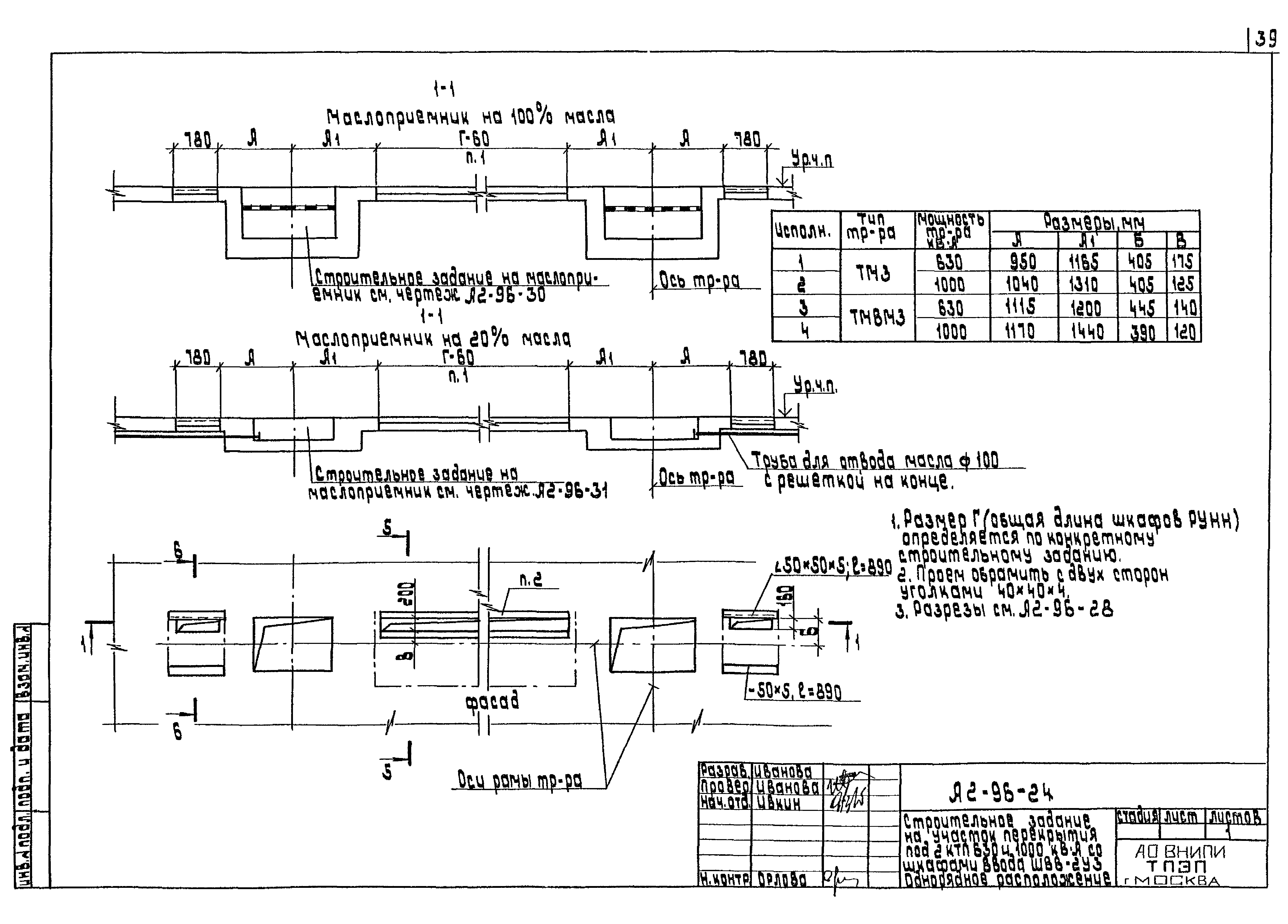
Установка комплексных трансформаторных подстанций с масляными трансформаторами на 630 и 1000 кВА Хмельницкого завода трансформаторных подстанций. Материалы для проектирования и рабочие чертежиОбозначение: | Шифр А2-96 | Обозначение англ: | А2-96 | Статус: | cправочные материалы, мп, тпр | Название рус.: | Установка комплексных трансформаторных подстанций с масляными трансформаторами на 630 и 1000 кВА Хмельницкого завода трансформаторных подстанций. Материалы для проектирования и рабочие чертежи | Дата добавления в базу: | 01.10.2014 | Дата актуализации: | 05.05.2017 | Дата введения: | 25.12.1996 | Оглавление: | А2-96 Содержание А2-96-01ПЗ Пояснительная записка А2-96-02 Схемы главных цепей шкафов РУНН и УВН А2-96-03ГЧ КТП-630/10/0,4-84-У3 и КТП-1000/10/0,4-84-У3 с трансформатором ТМ3. Габаритный чертеж А2-96-04ГЧ 2КТП-630/10/0,4-84-У3 и 2КТП-1000/10/0,4-84-У3 с трансформаторами ТМ3 (однорядное расположение). Габаритный чертеж А2-96-05ГЧ 2КТП-630/10/0,4-84-У3 и 2КТП-1000/10/0,4-84-У3 с трансформаторами ТМ3 (двухрядное расположение). Габаритный чертеж А2-96-06ГЧ КТП-630/10/0,4-84-У3 и КТП-1000/10/0,4-84-У3 с трансформаторами ТМВМ3. Габаритный чертеж А2-96-07ГЧ 2КТП-630/10/0,4-84-У3 и 2КТП-1000/10/0,4-84-У3 с трансформаторами ТМВМ3 (однорядное расположение). Габаритный чертеж А2-96-08ГЧ 2КТП-630/10/0,4-84-У3 и 2КТП-1000/10/0,4-84-У3 с трансформаторами ТМВМ3 (двухрядное расположение). Габаритный чертеж А2-96-09 Шкаф высшего напряжения ШВВ-2У3 А2-96-10 Минимальные размеры приближений при размещении КТП А2-96-11 Требования к строительным заданиям А2-96-12 Строительные задания на однотрансформаторную подстанцию. Пример А2-96-13 Строительные задания на двухтрансформаторную однорядную подстанцию. Пример А2-96-14 Строительные задания на двухрядную двухтрансформаторную подстанцию. Пример А2-96-15 Таблица выбора чертежей строительных заданий А2-96-16 Строительное задание на участок пола под КТП 630 и 1000 кВА со шкафами ввода ШВВ-2У3 А2-96-17 Строительное задание на участок пола под КТП 630 и 1000 кВА с глухим вводом А2-96-18 Строительное задание на участок пола под 2КТП 630 и 1000 кВА со шкафами ввода ШВВ-2У3. Однорядное расположение А2-96-19 Строительное задание на участок пола под 2КТП 630 и 1000 кВА с глухими вводами. Однорядное расположение А2-96-20 Строительное задание на участок пола под 2КТП 630 и 1000 кВА со шкафами ввода ШВВ-2У3. Двухрядное расположение А2-96-21 Строительное задание на участок пола под 2КТП 630 и 1000 кВА с глухими вводами. Двухрядное расположение А2-96-22 Строительное задание на участок перекрытия под КТП 630 и 1000 кВА со шкафом ввода ШВВ-2У3 А2-96-23 Строительное задание на участок перекрытия под КТП 630 и 1000 кВА с глухим вводом А2-96-24 Строительное задание на участок перекрытия под 2КТП 630 и 1000 кВА со шкафами ввода ШВВ-2У3. Однорядное расположение А2-96-25 Строительное задание на участок перекрытия под 2КТП 630 и 1000 кВА с глухими вводами. Однорядное расположение А2-96-26 Строительное задание на участок перекрытия под 2КТП 630 и 1000 кВА со шкафами ввода ШВВ-2У3. Двухрядное расположение А2-96-27 Строительное задание на участок перекрытия под 2КТП 630 и 1000 кВА с глухими вводами. Двухрядное расположение А2-96-28 Разрезы 2-2…6-6 А2-96-29 Строительное задание на установку патрубков под шкафы РУНН А2-96-30 Маслоприемник для трансформаторов ТМ3 630 и 1000 кВА т ТМВМ3 630 и 1000 кВА (на 100% масла) А2-96-31 Маслоприемник для трансформаторов ТМ3 630 и 1000 кВА т ТМВМ3 630 и 1000 кВА (на 20% масла) А2-96-32 Строительное задание на металлические решетки для маслоприемника А2-96-33 Установка 2КТП - 1000 кВА в помещении. Пример А2-96-34 Установка 2КТП - 1000 кВА в цехе. Пример А2-96-35 Установка 2КТП - 1000 кВА (в два ряда) в помещении. Пример А2-96-36 Установка шкафа ШВВ-2 на канале А2-96-37 Установка шкафа ШВВ-2 на перекрытии А2-96-38 Подвод кабелей к шкафам РУНН на канале А2-96-39 Подвод кабелей к шкафам РУНН на перекрытии | Разработан: | ОАО ВНИПИ Тяжпромэлектропроект
| Утверждён: | 16.12.1996 ОАО ВНИПИ Тяжпромэлектропроект (VNIPI Tyazhpromelektroproject OAO 23)
| Расположен в: |
| Заменяет собой: | |
                                                    
|